Ons kantoor is lid van Baerz & Co Luxury Homes; een internationaal platform dat exclusieve woningmakelaars met elkaar verbindt. Neem contact op met ons secretariaat voor meer informatie over het landelijke aanbod, waarvan u hieronder een selectie kunt bekijken.

LEIDEN
Hooglandse Kerkgracht 23 - 2312 HS
Netherlands

Wim Graal RM profile image
Wim Graal RM
NVM Register Makelaar & Partner
€2,495,000 k.k.
Living Area
445m2
Plot Size
657m2
Bedrooms
4

Description

Unique grade-A listed object with beautiful garden of approximately 500 m2 in a prime location

Very rarely does such a unique and historic object come on the market in Leiden. An excellently maintained house with a living area of approximately 445 m2 and a beautiful sunny west-facing garden.

The Hooglandse Kerkgracht is without a doubt one of the most beautiful streets in Leiden. Since its redevelopment in 2004, this former canal has almost no car traffic and is best known for the many monumental facades and the attractive central area where two beautiful rows of trees provide an almost Mediterranean atmosphere in the summer. A more beautiful location in the center of Leiden is hardly imaginable.

The appearance and layout of this beautiful house has hardly changed since the early 18th century. However, the house was extensively renovated around 1900 by the then resident (and architect) Leo van der Laan; His work includes the unique steel roof between the front and rear house with glass and rivets. And in 2013, the entire building was thoroughly renovated with the aim of making it more sustainable. For example, the entire roof has been renewed and insulated, the heating systems of the front and rear house have been separated, the gutters and drains have been renewed, etc. All windows and frames on the entire outside have recently been painted. In short, the property has retained much of its original character and is very well maintained.

The garden is perhaps the real 'unique selling point' of this property... a garden with several terraces and seating areas for shade and sun; a garden with a back entrance; a garden with beautiful mature trees, colourful shrubs and flowers and space for your own vegetable garden; and a garden with beautiful views to, for example, 'De Burcht' and the Hooglandse Kerk.

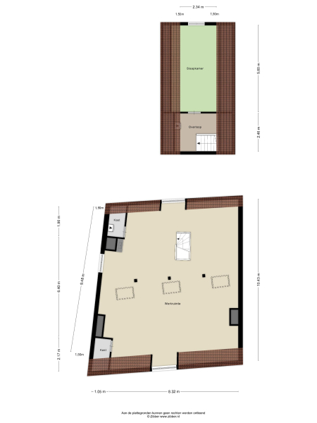
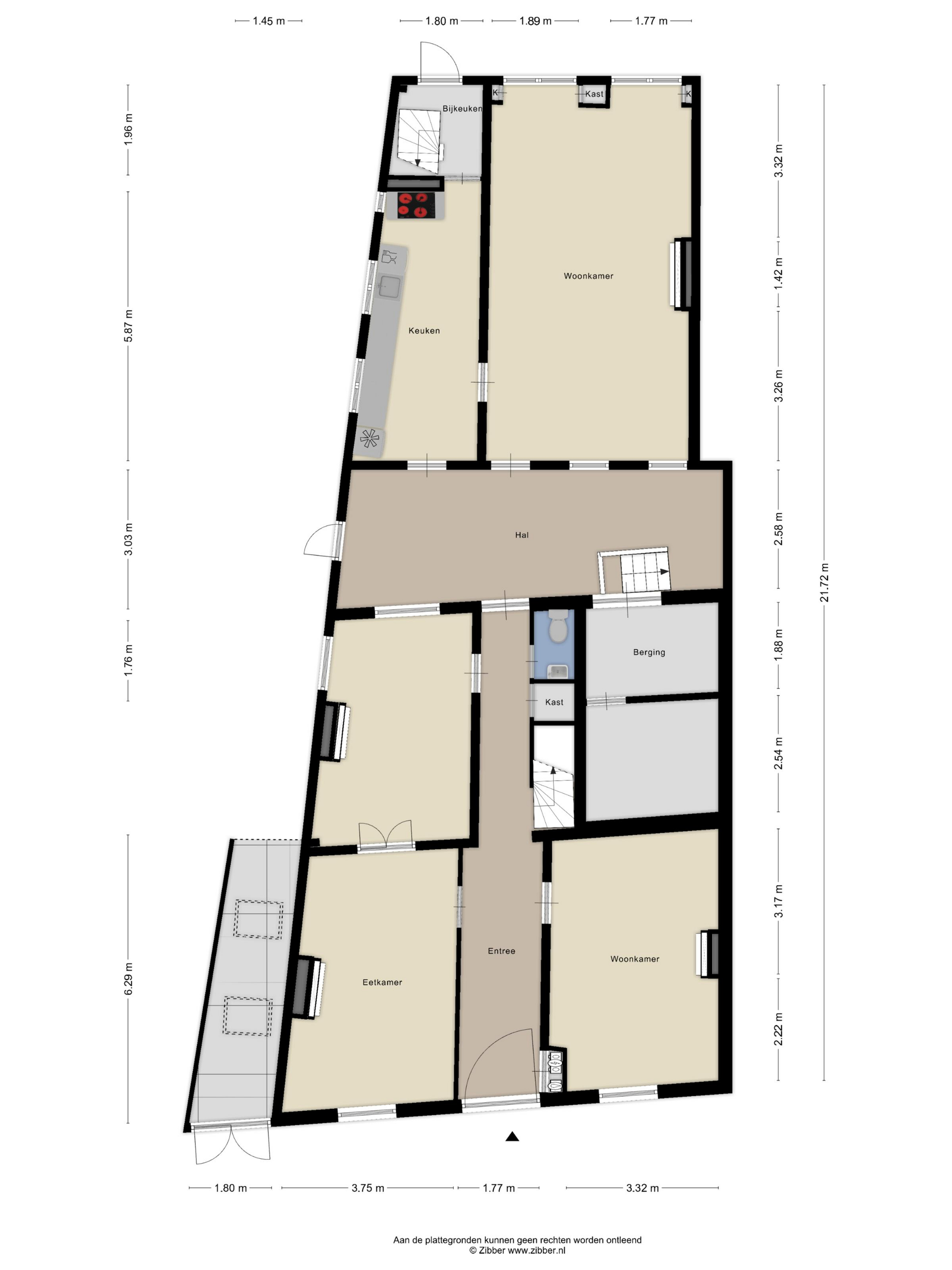
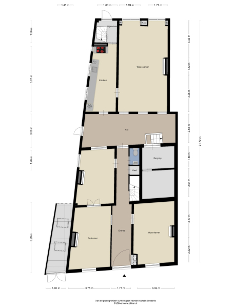
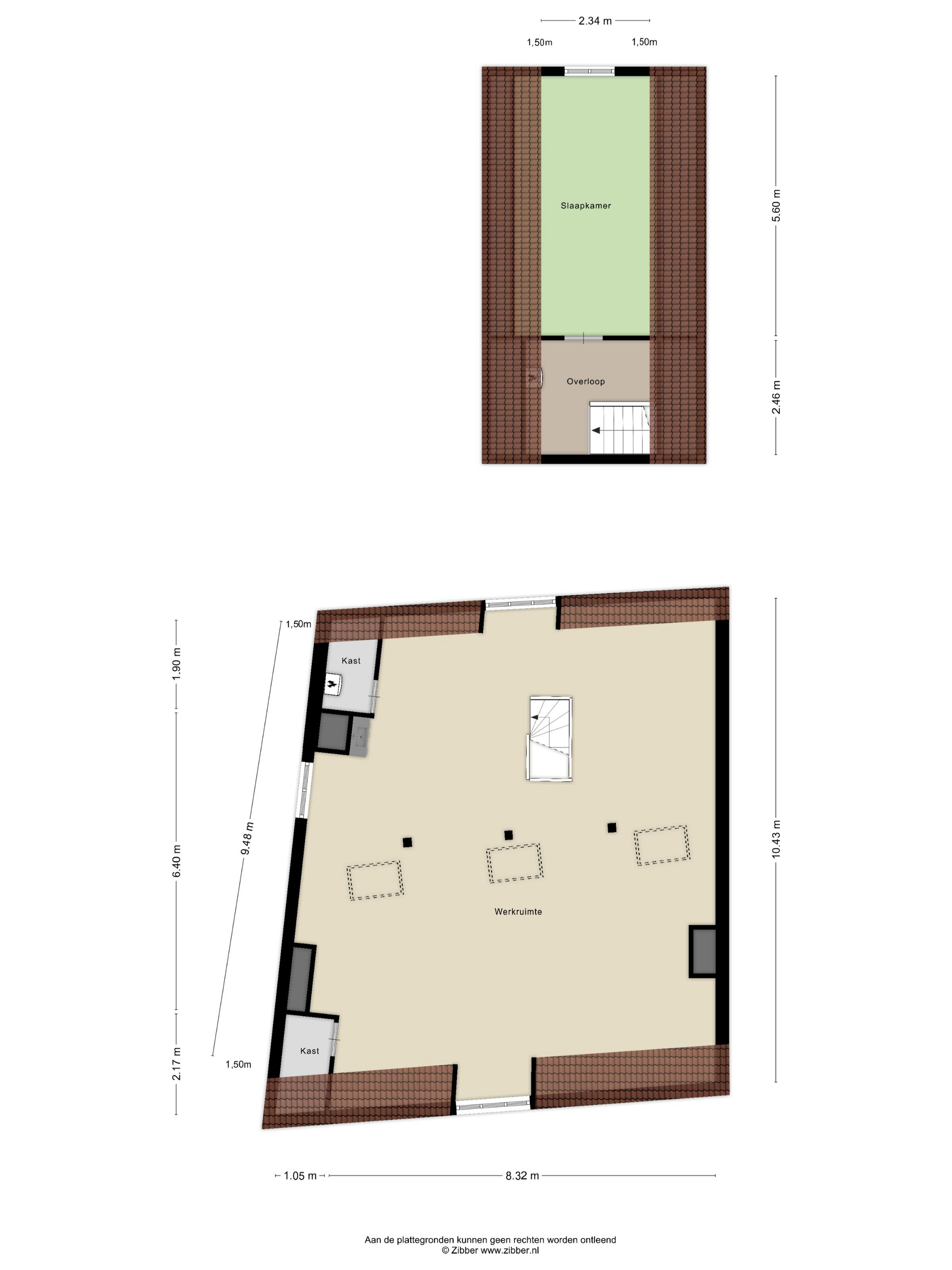
For a good impression of the layout and atmosphere of this unique object, we refer to the floor plans and the beautiful photos. A viewing is of course necessary for the real 'feel'.

Special Features

Alarm system

Features

Transfer of ownership
Asking Price
€ 2.495.000 k.k.
Status
onder bod
Acceptance
in overleg
Construction
Kind of house
Herenhuis
Building type
tussenwoning
Construction period
1738
Roof type
samengesteld dak
Bedrooms
4
Bathrooms
2
Surface Areas And Volume
Living Area
445 m2
Other indoor space
0 m2
Exterior space attached to the buildinge
10 m2
Volume in cubic meters
1575 m3
Plot Size
657 m2
Facilities
Mechanische ventilatie
Alarminstallatie
Tv kabel
Aan rustige weg
In centrum
Baerz & Co Property Brochure

Brochure

Videos

Floor Plans

Graal Makelaardij

Rapenburg 4
2311 EV Leiden

info@graalmakelaardij.nl
+31 (0)71 51 61 000

www.graalmakelaardij.nl

Information / Viewing request

Wim Graal RM profile image
Wim Graal RM
NVM Register Makelaar & Partner