Baerz & Co is een landelijk samenwerkingsverband van zorgvuldig geselecteerde boutique luxury makelaars. Samen vormen wij één netwerk, met één gedeeld aanbod. De woningen die u op onze website ziet, zijn afkomstig van alle aangesloten kantoren binnen Baerz & Co. Daardoor is niet ieder object rechtstreeks door ons kantoor in verkoop, maar door een gespecialiseerde collega binnen ons netwerk. Heeft u een woning gevonden die u aanspreekt en wilt u meer informatie? Dan brengen wij u graag persoonlijk in contact met de betreffende verkoopmakelaar, zodat u direct en zorgvuldig wordt begeleid.

AMSTERDAM
Vossiusstraat 31 H - 1071 AG
Netherlands

Niels Eering profile image
Niels Eering
Real Estate Agent
€6,200,000 k.k.
Living Area
323m2
Plot Size
157m2
Bedrooms
6

Description

Vossiusstraat 31H, 1071 AG Amsterdam

Located on the beautiful Vossiusstraat, this exceptionally stylish and spacious home of 323 m², spread over three floors and situated on freehold land, offers a rare combination of classic elegance and contemporary comfort. Finished with high-quality materials, including herringbone wooden floors, steel pivot doors, marble accents, and multiple gas fireplaces, this property features six bedrooms, three luxurious bathrooms, an expansive live-in kitchen, a beautifully landscaped south-facing garden (157 m²), and stunning views over the park. It provides an exceptional blend of space, tranquility, and urban allure—right in the heart of Amsterdam Oud-Zuid.

Accessibility
Vossiusstraat is located in one of Amsterdam’s most coveted areas, with gorgeous views over Vondelpark at the front and direct access to the chic P.C. Hooftstraat with its exclusive boutiques at the rear. Within walking distance, you'll find the charming Cornelis Schuytstraat, as well as a wide array of top-tier restaurants, cafés, and cultural landmarks such as the Rijksmuseum, Van Gogh Museum, Stedelijk Museum, Concertgebouw, and Stadsschouwburg. The lively city center is just a short walk away, and the neighborhood also offers excellent educational options, with various primary and secondary schools and childcare facilities nearby. Accessibility is optimal: Zuid/WTC Station is just a few minutes away by bike, and the property is easily accessible by car via the A10 and A4 ring roads and Schiphol Airport. Public transport is plentiful, with tram and bus stops near Leidseplein and Hobbemastraat. Parking is available directly in front of the house, both by permit and paid parking.

Layout
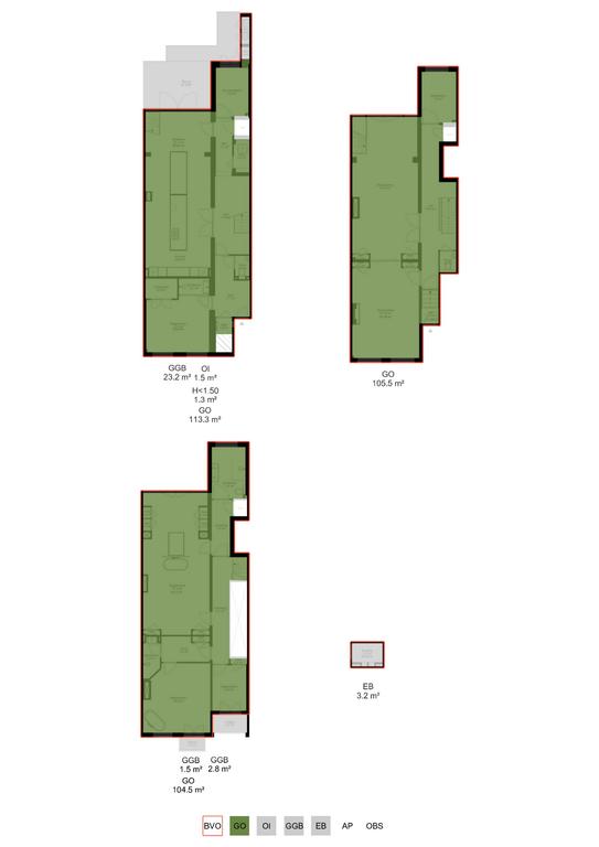
Bel-Etage (Elevated Ground Floor)
The entrance features a marble-accented vestibule with an imposing steel door that opens into the central hallway with a separate guest toilet. The expansive living area spans the full length of the home and is elegantly divided with original en-suite doors featuring built-in cabinetry.

At the front, a cozy sitting area centers around a stylish gas fireplace with a marble mantelpiece, flooded with natural light through large windows and offering an uninterrupted view of Vondelpark. The dining area at the rear is accessible from both the living room and hallway through sleek steel pivot doors and features another gas fireplace with a marble surround, adding warmth and sophistication. A staircase connects this space to the kitchen in the lower ground floor, creating a natural flow between the levels.

Adjacent to the dining room is a versatile room, perfect as a guest bedroom or home office. The entire floor boasts premium finishes with elegant wallpaper, enhancing its warmth and character. Large windows on both sides ensure exceptional natural light and emphasize the floor’s sense of space and luxury.

Souterrain (Lower Ground Floor)
This level is accessible from both the bel-etage and externally via stairs or lift, or directly from the dining room above. Upon entry, you arrive in a hallway with a separate toilet.

To the front is a bedroom with an en-suite bathroom featuring a washbasin and walk-in shower—currently used as a home gym, but easily repurposed. At the rear is the stunning open-plan kitchen, the centerpiece of this level. Outfitted with Gaggenau appliances, including a fridge, freezer, Quooker, five-burner gas stove integrated into the counter, oven, steam oven, dishwasher, and wine fridge, the kitchen combines luxury and functionality. A solid natural stone countertop with a wooden breakfast bar provides a warm, refined look.

A gas fireplace enhances the cozy atmosphere, and the kitchen offers ample storage. It's accessible from the dining area above or through French doors from the hallway. Adjacent is a room currently used as a home office, which, like the kitchen, has direct access to the large terrace via French doors. The terrace leads down to the beautifully landscaped south-facing garden, also accessible via a rare private back entrance on Schapenburgerpad, allowing direct access to the garden—ideal for storing bikes, a unique feature in central Amsterdam.

Designed by landscape architect Erik van Gelder, the garden includes a fully equipped outdoor kitchen, making it perfect for summer evenings. A detached storage shed offers additional functionality. This outdoor space is a peaceful and private retreat, ideal for enjoying long, sunny days.

First Floor
Accessible via staircase or lift, the landing leads to all rooms on this level. At the rear is the expansive master bedroom, featuring a glass wall that subtly divides the sleeping area from the bathroom and dressing space. This luxurious suite includes built-in wardrobes, a freestanding bathtub, and French doors overlooking the landscaped garden.

Also at the rear is a modern bathroom with a double vanity, spacious walk-in shower, and toilet. At the front of the home is a second large bedroom, with a gas fireplace, a freestanding bathtub, and French doors opening onto a balcony with breathtaking views over Vondelpark.

Adjacent is a second bathroom with a shower and sink. A third bedroom on this floor is accessible from the hallway and includes a charming loggia, also accessible through French doors.

Additional Features
Apartment right of 323 m²
Six bedrooms
Three bathrooms
Elevator
Beautifully landscaped south-facing garden (157 m²) with storage
Rare private rear entrance via Schapenburgerpad
Luxurious finishes throughout
Municipal monument
Located on freehold land (no leasehold)
Active Homeowners' Association (VvE), monthly service charges: €300
Delivery upon mutual agreement

Disclaimer:
This information has been compiled with the utmost care. However, we accept no liability for any inaccuracies, incompleteness, or consequences thereof. All stated measurements and surface areas are indicative. Buyers are encouraged to conduct their own due diligence on all matters of importance. The broker represents the seller in this transaction. We recommend engaging a professional (NVM) real estate agent to assist with the purchase process. If you have specific wishes regarding the property, please communicate these to your purchasing agent in a timely manner and conduct or commission your own investigation. If you do not engage a professional representative, you are considered by law to be sufficiently knowledgeable to assess all matters of relevance. NVM terms and conditions apply.

Features

Transfer of ownership
Asking Price
€ 6.200.000 k.k.
Status
beschikbaar
Acceptance
in overleg
Construction
Kind of house
Dubbel benedenhuis
Building type
bel etage
Construction period
1905
Energy rating
C
Roof type
plat dak
Bedrooms
6
Bathrooms
4
Surface Areas And Volume
Living Area
323 m2
Other indoor space
2 m2
Exterior space attached to the buildinge
28 m2
External storage space
3 m2
Volume in cubic meters
1314 m3
Plot Size
157 m2
Facilities
Mechanische ventilatie
Lift
In woonwijk
Baerz & Co Property Brochure

Brochure

Videos

Video Vossiusstraat 31 H

11 Makelaars - Amsterdam Noord

Mt. Lincolnweg 36 - 617
1033SN Amsterdam

info@11makelaars.nl
+31 20 20 50 208

www.11makelaars.nl

Information / Viewing request

Niels Eering profile image
Niels Eering
Real Estate Agent

Buying a Luxury Property in Amsterdam

Amsterdam offers a cosmopolitan lifestyle defined by heritage, connectivity, and discreet luxury. Residents benefit from a robust international community, curated services, and vibrant culture. The city’s enduring appeal lies in its blend of history, sophistication, and progressive spirit.