Ons kantoor is lid van Baerz & Co Luxury Homes; een internationaal platform dat exclusieve woningmakelaars met elkaar verbindt. Neem contact op met ons secretariaat voor meer informatie over het landelijke aanbod, waarvan u hieronder een selectie kunt bekijken.

VOORHOUT
Jacoba Van Beierenweg 136 a - 2215 KX
荷兰

Rick Broekhof profile image
Rick Broekhof
Real estate agent
€1,175,000 k.k.
居住面积
422m2
地块大小
726m2
卧室
5

描述

Voorhout别墅以422平方米的居住空间诠释精致私密,四周环绕着波伦斯特雷克地区的开阔景致与自然风光。宽敞的门厅迎接您的到来,大窗户引入柔和的自然光,勾勒出每一处优雅线条。宽阔的起居区、壁炉和独立的餐厅自然营造出舒缓的节奏和温馨氛围,实木地板与地道修道院瓷砖赋予室内安静的本源感。五间卧室分布于三层空间,每个区域光照充沛,部分俯瞰花园并配备空调,布局灵活多变。两间设施齐全的浴室,其中一间配有桑拿,搭配四间卫生间、充裕的储藏空间及光纤等高端连线配备,彰显精心考量。厨房兼通庭院与草地,将日常起居与户外景致自然衔接。独立入口可实现双户居住或无缝整合工作与生活。726平方米的宅基地环绕着精致园景、砖砌烧烤区及数个私密角落,营造多元静谧空间。长车道与专属车位确保低调且舒适的到访体验。房屋构造鼓励灵活适应,无论是家庭生活还是居家办公均十分适宜。2024年4月起的现代供暖及空调系统,以及适合安装太阳能板的条件,彰显出对舒适与未来的前瞻理念。从该别墅出发,可轻松骑行至Voorhout村的配套设施及火车站,实现便捷城市通达,安享宁静环境无须妥协。Voorhout别墅为追求内在厚重与宁静氛围的住户,呈现出罕见的隐私、尺度与交通便利的平衡。

与Baerz一起探索Voorhout,您值得信赖的个人房产搜索和顾问

在弗尔豪特成交高端房源需依赖深厚市场认知、专业关系和高效谈判能力。专属置业顾问可助您发现私密和非公开机会,指引复杂本地法则,全程维护客户利益。其对历史物件与新发展案的深刻理解,确保交易结构合理,满足客户需求。

特点

空调
所有权转让
要价
€ 1.175.000 k.k.
状态
beschikbaar
接受
in overleg
建筑
房屋类型
Villa
建筑类型
vrijstaande woning
建造时期
1975
能源评级
C
屋顶类型
zadeldak
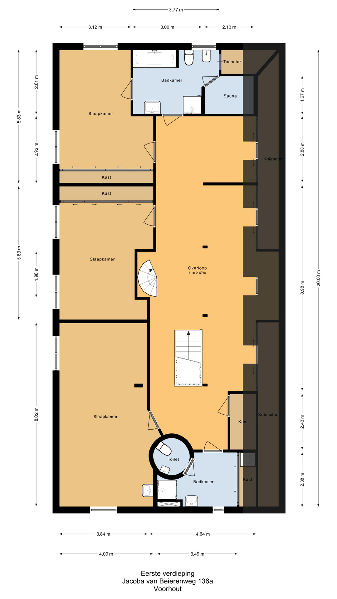
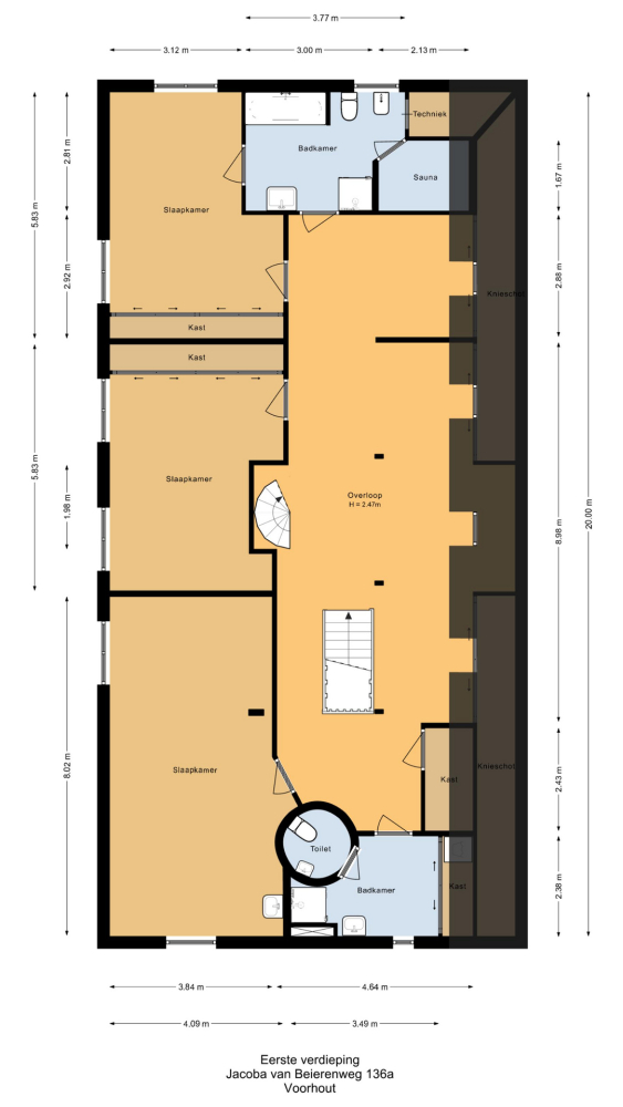
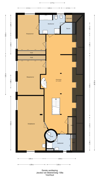
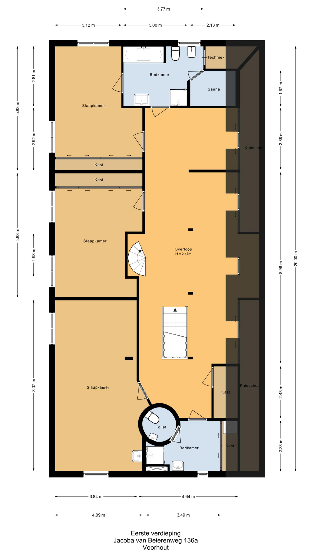
卧室
5
浴室
2
表面积和体积
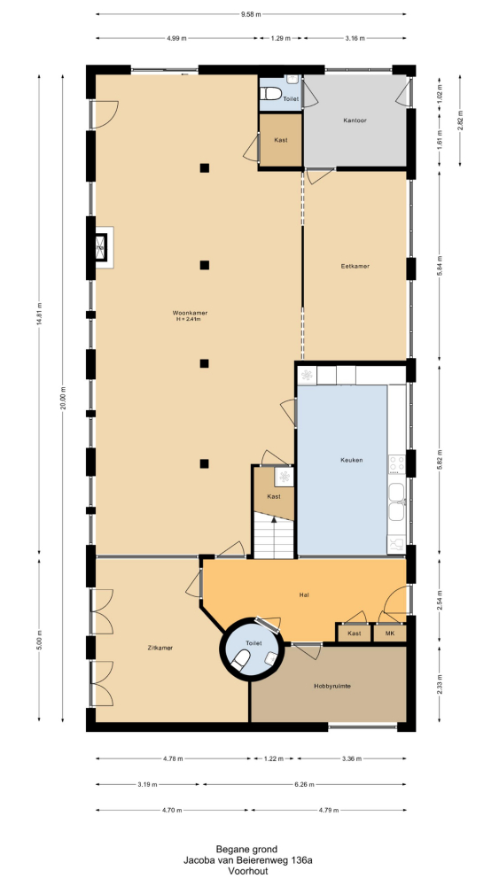
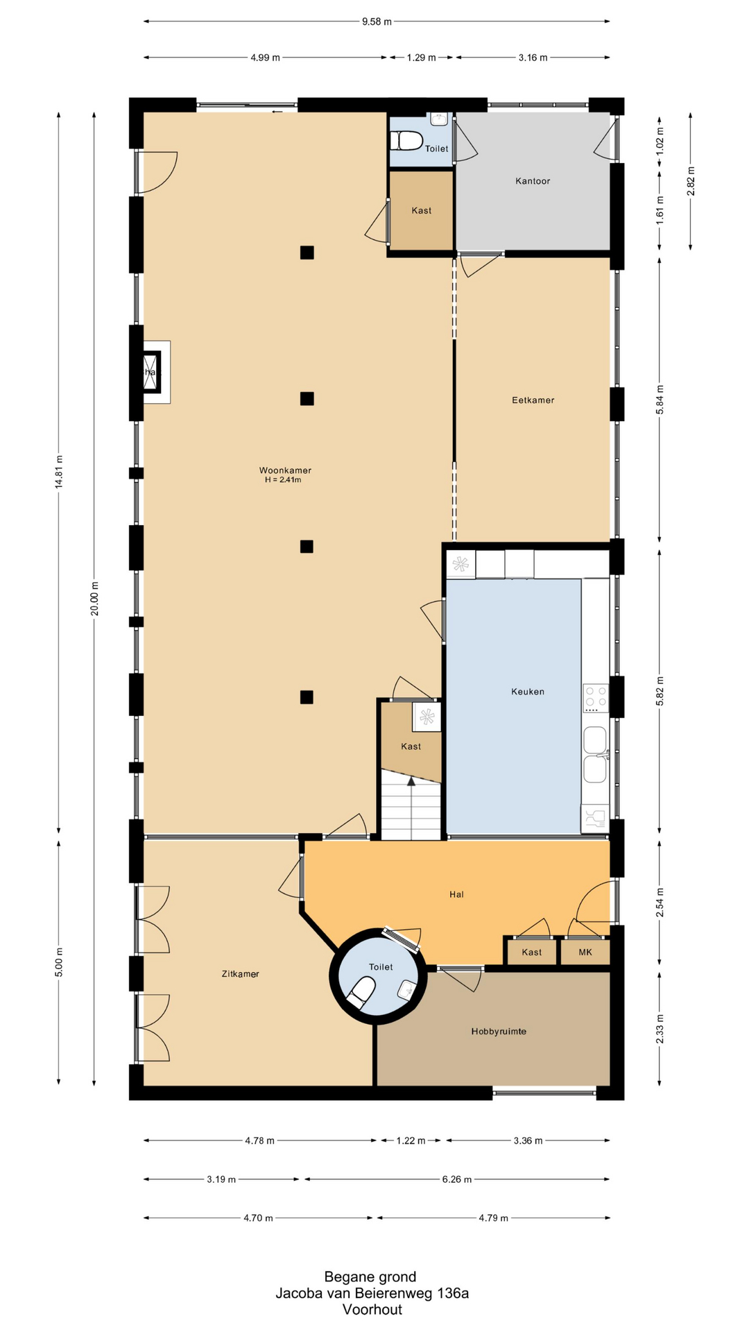
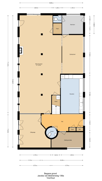
居住面积
422 m2
其他室内空间
0 m2
外部储存空间
7 m2
体积(立方米)
1387 m3
地块大小
726 m2
设施
Mechanische ventilatie
Tv kabel
Airconditioning
Rookkanaal
Sauna
Glasvezel kabel
Natuurlijke ventilatie
Vrij uitzicht
Beschutte ligging
Landelijk gelegen
Baerz & Co Property Brochure

宣传册

视频

户型图

Wilbrink & v.d. Vlugt Makelaars

Heereweg 231
2161 BG Lisse

info@wilbrinkvandervlugt.nl
+31 252 41 90 49

www.onsaanbod.nl

信息/查看请求

Rick Broekhof profile image
Rick Broekhof
Real estate agent

在购买豪华房产 Voorhout

弗尔豪特以低调奢华、人文景观与优越区位,成为荷兰高端人群不容错过的国际化居住新址。