Ons kantoor is lid van Baerz & Co Luxury Homes; een internationaal platform dat exclusieve woningmakelaars met elkaar verbindt. Neem contact op met ons secretariaat voor meer informatie over het landelijke aanbod, waarvan u hieronder een selectie kunt bekijken.

UDEN
Burgemeester Buskensstraat 14 - 5401 EE
荷兰

Bram Van der Wielen profile image
Bram Van der Wielen
Owner, MMCEPI register makelaar
€869,000 k.k.
居住面积
160m2
地块大小
702m2
卧室
3

描述

Uden独立住宅将三十年代的经典风格与当代生活所需的舒适与可持续性优雅融合。该住宅于2003年在建筑师监督下重建,凭借其经典的比例及高品质隔热、HR++玻璃、太阳能板与混合热泵,依然保有宁静自信的格调。住宅使用面积为160 m²,位于702 m²的地块上,室内空间宽敞,户外私密性良好。

宽敞的客厅配备燃气壁炉,与通透采光的高标准厨房餐区无缝衔接。地暖设计、高挑天花板以及甄选的材质带来放松氛围,旋转门则实现了空间的柔和分隔。厨房配备一系列嵌入式电器,可俯瞰花园,兼顾日常起居与款待宾客的多样需求。三间卧室与精致卫浴相连,浴室配有地暖与步入式淋浴,整体装潢内敛而考究。

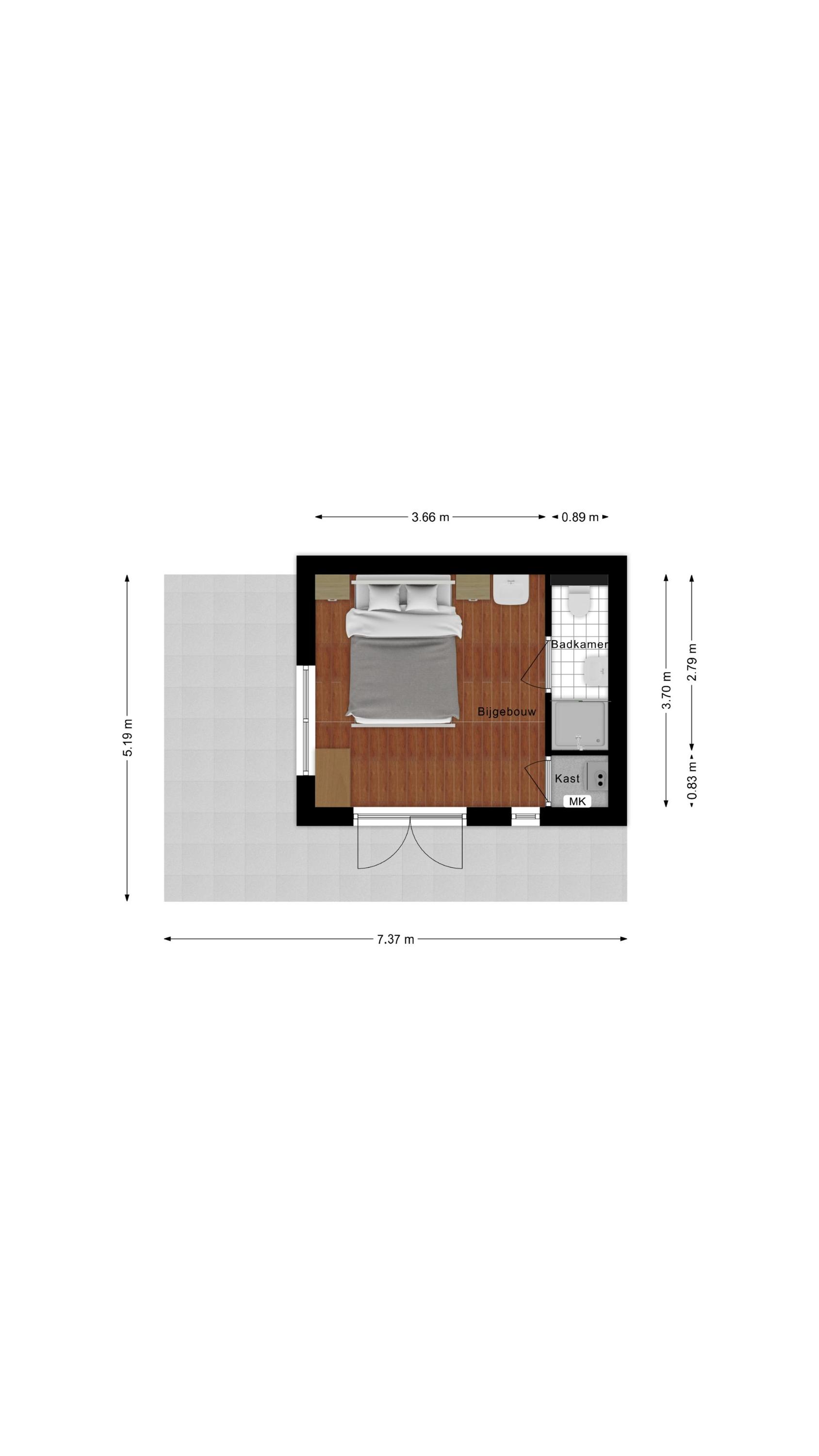
主楼以外,私家园林景观与一间隔热附属建筑相辅相成,附楼设有独立浴室及取暖设施,可作为家庭办公室、宾客套房或工作室使用。独立车库和宽阔车道带来极大便利。住宅静置于Uden老城区,绿树成荫,环境宁静,距市中心配套设施直接可达。紧邻A50高速公路,埃因霍温、丹博斯和奈梅亨交通便捷。Maashorst与Lieverlingsbos自然保护区近在咫尺,适合户外休闲与探险。

本物业的可持续理念体现在优质隔热、B级能效、局部地暖、混合系统与太阳能板等配置中。无疑,这是一处为追求静谧奢华、正统建筑与长远价值的鉴赏型买家精心呈现的稀有之选。

与Baerz一起探索Uden,您值得信赖的个人房产搜索和顾问

在乌登住宅市场取得成功需深厚本地知识、独家房源渠道及娴熟谈判能力。隐私为首要,资深顾问可安排私密看房并简化尽职调查。专家对细节的精准把控——从遗产属性到绿化要求——确保每笔交易周到无忧。

特点

太阳能板
报警系统
空调
所有权转让
要价
€ 869.000 k.k.
状态
beschikbaar
接受
in overleg
建筑
房屋类型
Eengezinswoning
建筑类型
vrijstaande woning
建造时期
1930
能源评级
B
屋顶类型
mansarde dak
卧室
3
浴室
1
表面积和体积
居住面积
160 m2
其他室内空间
6 m2
外部储存空间
22 m2
体积(立方米)
574 m3
地块大小
702 m2
设施
Mechanische ventilatie
Alarminstallatie
Airconditioning
Dakraam
Glasvezel kabel
Zonnepanelen
Aan rustige weg
Baerz & Co Property Brochure

宣传册

视频

户型图

Kordaat Makelaars

Liessentstraat 9 a
5405 AH Uden

bram@kordaatmakelaars.nl
+31 623454361

www.kordaatmakelaars.nl

信息/查看请求

Bram Van der Wielen profile image
Bram Van der Wielen
Owner, MMCEPI register makelaar