Ons kantoor is lid van Baerz & Co Luxury Homes; een internationaal platform dat exclusieve woningmakelaars met elkaar verbindt. Neem contact op met ons secretariaat voor meer informatie over het landelijke aanbod, waarvan u hieronder een selectie kunt bekijken.

THOLEN
Slikkenburg 1 - 4691 TC
荷兰

Tristan Helmig profile image
Tristan Helmig
Makelaar / Taxateur
€739,000 k.k.
居住面积
153m2
地块大小
30430m2
卧室
2

描述

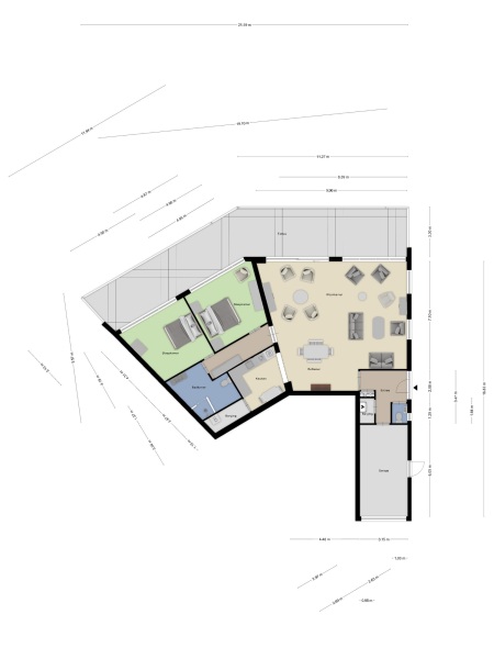
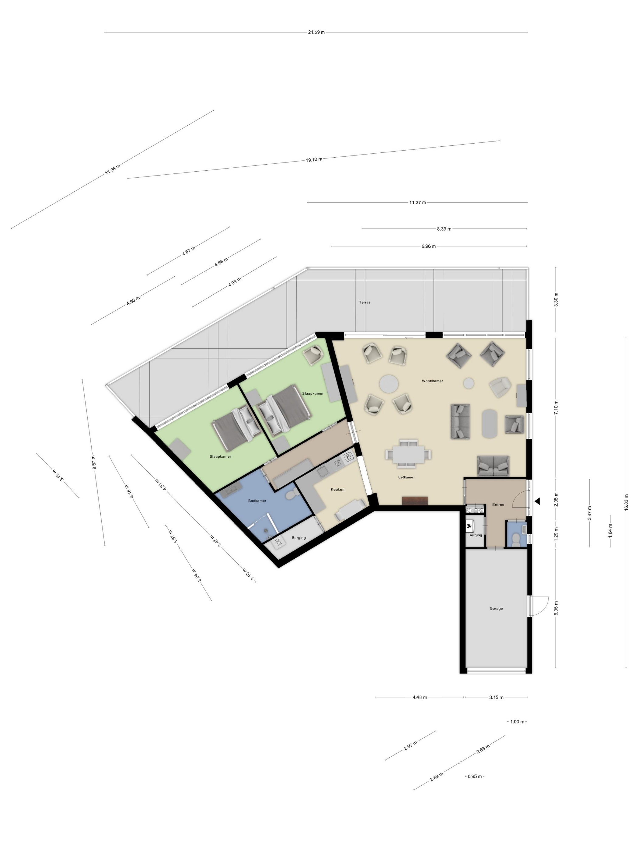
Tholen公寓带来罕见的滨水生活方式,充满充裕采光、港口视野与精心考虑的配套设施。此一楼住宅提供153平方米的生活空间,通过私家入口进入,精选用材与水域的宁静自然衔接。光滑的灰泥墙壁与瓷砖地面贯穿宽敞的起居空间,大幅落地窗框住港口上不断变化的光影。

客厅通过推拉门与70平方米的露台串联,露台配备电动遮阳篷,横跨整条滨水线,为户外起居或静心私享营造流畅延伸。两间宽敞卧室享有港口或水景,光线自然充足;主浴室配备浴缸、带按摩功能的步入式淋浴、双台盆及第二卫生间。半开放式厨房采用花岗岩台面和嵌入式家电,毗邻实用的杂物间,便利日常起居。

室内可直达私人车库,彰显公寓注重隐私与舒适。地暖系统由2018年Remeha Avanta锅炉供能,配合屋顶、地面及夹墙隔热与保温玻璃,令该房产获得A级能效认证。业主可选择自建私人码头,实现与Tholen港完美对接,让您轻松从家中登艇出行。

住户享有业主协会服务,每月€192.65物业管理费涵盖楼宇保险、维护与公共区域公共服务。考究的建筑品质、私密性与不可复制的地段赋予Tholen公寓别具一格,是追求真实水岸生活者难得的选择。活力十足的Tholen市中心咫尺可达,舒适生活无需妥协。

与Baerz一起探索Tholen,您值得信赖的个人房产搜索和顾问

在托伦的细致市场中,值得信赖的地产顾问可助您接触稀有项目,深化对本地历史环境的理解。专业顾问不仅掌握非公开房源和本地谈判经验,还能协助客户适应政策要求及文物保护流程。其专业判断和人脉对于实现长期投资目标至关重要。

特点

所有权转让
要价
€ 739.000 k.k.
状态
onder bod
接受
in overleg
建筑
房屋类型
Benedenwoning
建筑类型
appartement
建造时期
2004
能源评级
A
屋顶类型
plat dak
卧室
2
浴室
1
表面积和体积
居住面积
153 m2
其他室内空间
19 m2
附属于建筑的外部空间
70 m2
体积(立方米)
568 m3
地块大小
30430 m2
设施
Buitenzonwering
Schuifpui
Natuurlijke ventilatie
Aan water
In woonwijk
Baerz & Co Property Brochure

宣传册

视频

户型图

Helmig Makelaardij en Taxatieburo o.z. B.V.

Dorpsstraat 107
4661 HN Halsteren

info@helmigmakelaardij.nl
+31 164-685925

www.helmigmakelaardij.nl

信息/查看请求

Tristan Helmig profile image
Tristan Helmig
Makelaar / Taxateur