Ons kantoor is lid van Baerz & Co Luxury Homes; een internationaal platform dat exclusieve woningmakelaars met elkaar verbindt. Neem contact op met ons secretariaat voor meer informatie over het landelijke aanbod, waarvan u hieronder een selectie kunt bekijken.

RHENEN
Cuneraweg 350 - 3911 RV
荷兰

Wistik Zonnenberg profile image
Wistik Zonnenberg
Register Makelaar Taxateur/ Eigenaar
€989,000 k.k.
居住面积
174m2
地块大小
549m2
卧室
6

描述

这栋独立别墅位于Rhenen,巧妙融合了现代建筑美学与家庭舒适生活,坐落于僻静葱郁的绿地深处。别墅建筑面积174平方米,包括六间卧室、两间浴室,以及以雅致厨房为核心的多功能开放式客厅。房屋占地549平方米,L形园林景观层次分明,为业主带来多重私密空间、阳光露台、下沉式会客区以及全天候的静谧休憩。

住宅建于2020年,维护极为到位,细节处处彰显可持续理念,涵盖了全屋地暖与地面冷却系统、先进的BUVA空气源热泵并带热回收功能、三层铝合金中空窗,以及22块太阳能电池板。Gira智能家居系统、光纤宽带及全自动灌溉提升了居住便利性。宽敞明亮的客厅配有大幅玻璃窗和法式推门,与户外空间无缝衔接。多功能隔热车库与车棚为停车和个人爱好提供额外空间,地下室则设有两间额外卧室、第二间浴室,以及适宜设为家庭办公、宾客套间或工作室的灵活空间。

住宅靠近Rhenen-Veenendaal边界,步行可及日常便利设施、学校、体育俱乐部以及Kwintelooijen自然保护区和Prattenburg森林。便捷的公共交通与主要道路将这片静谧家园与阿纳姆、乌得勒支和瓦赫宁根高效连接,成就低调而紧密相连的家庭私邸。这栋在售豪华独立别墅,完美诠释了精致设计、能源高效与全方位私密性的理念。

与Baerz一起探索Rhenen,您值得信赖的个人房产搜索和顾问

雷嫩高端地产市场的信息远不止于公开房源。专业置业顾问可为客户提供独家交易与历史物业的私下洽购通道,这些房源通常不对外公开。他们在把握房源真实度、建筑潜力和业主动机方面的专业能力,保障买卖双方理性、稳健地做出决策。强大的本地洞察与谈判能力让您顺利完成流程、全面守护利益。

特点

太阳能板
所有权转让
要价
€ 989.000 k.k.
状态
Available
接受
In Concert
建筑
房屋类型
Single Family House
建筑类型
Detached House
建造时期
2020
能源评级
A++
屋顶类型
composite
卧室
6
浴室
2
表面积和体积
居住面积
174 m2
外部储存空间
27 m2
体积(立方米)
646 m3
地块大小
549 m2
设施
Fibreopticcable
Garden
Solarpanels
Ventilation
Baerz & Co Property Brochure

宣传册

视频

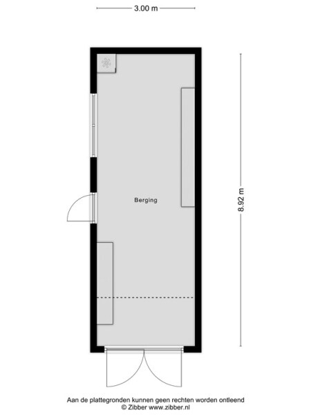
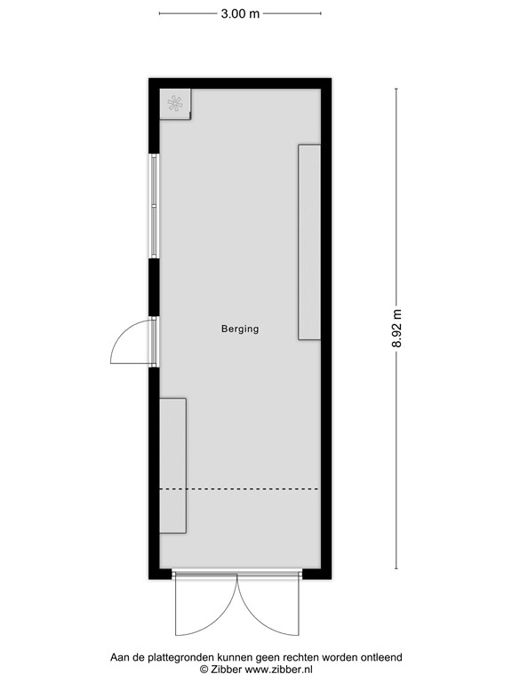
户型图

Zonnenberg Makelaardij

Kerkewijk 108
3904 JG Veenendaal

info@zonnenbergmakelaardij.nl
+31 318 559600

www.zonnenbergmakelaardij.nl

信息/查看请求

Wistik Zonnenberg profile image
Wistik Zonnenberg
Register Makelaar Taxateur/ Eigenaar