Ons kantoor is lid van Baerz & Co Luxury Homes; een internationaal platform dat exclusieve woningmakelaars met elkaar verbindt. Neem contact op met ons secretariaat voor meer informatie over het landelijke aanbod, waarvan u hieronder een selectie kunt bekijken.

MAASTRICHT
Observantenweg 61 - 6212 EP
荷兰

Kenneth Kruse profile image
Kenneth Kruse
NVM MAKELAAR - RM/RT
€1,095,000 k.k.
居住面积
140m2
地块大小
273m2
卧室
4

描述

独立别墅Maastricht于Sint-Pietersberg山脚下的静谧社区尽显高雅生活格调,距离历史市中心仅数分钟。该住宅拥有四间卧室,建筑面积140平方米,坐落于273平方米的地块之上,经过全面现代化升级,融合舒适、设计感与私密性。前后成熟的城市花园实现了室内外空间的自然衔接,铝合金窗框搭配HR++中空玻璃以及2022年Kingspan Unidek屋顶保温层,提升了能效和静谧度。

开阔的底层以约68平方米的宽敞起居空间为核心,铺设橡木拼花地板,配有定制Faber燃气壁炉和设计师散热器。无把手厨房配备五区位感应炉,热风烤箱,内嵌咖啡机以及通往花园的移门,兼具高效日常与待客体验。居住区通向一个朝东北、带遮蔽的城市花园,前庭绿意浓郁,傍晚沐浴夕阳。

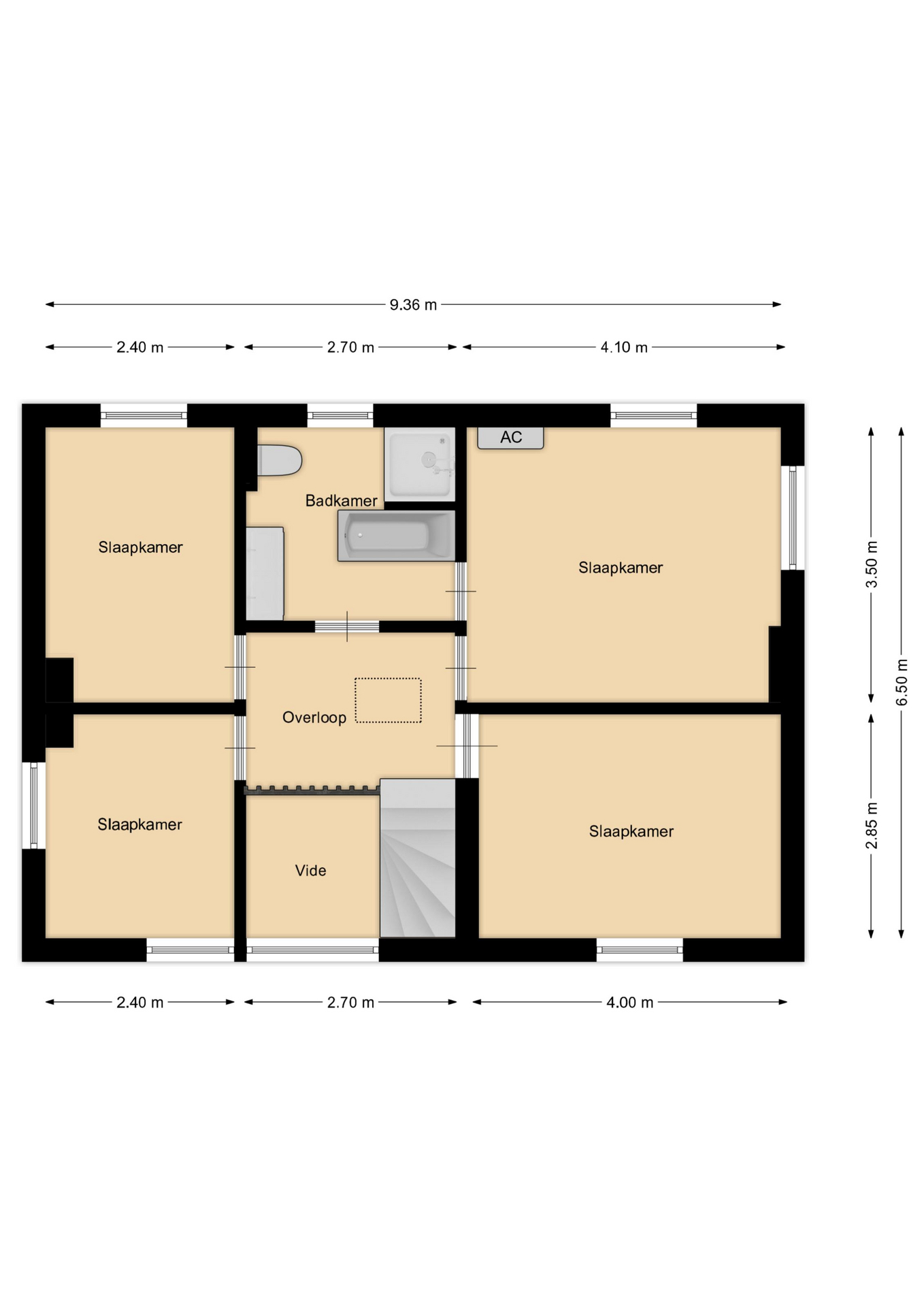
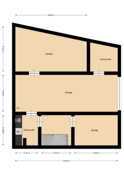
二层设有四间卧室,均有Slangen Interieurbouw定制衣柜和马赛克拼花地板。浴室配有步入式淋浴间和浴缸、机械通风和地暖。主卧设有空调;储物空间充裕,包括面积33平方米的车库及多功能地下室,以及阁楼储藏区。

别墅位于备受青睐的Jekerdal-Sint Pieter社区,兼顾城市便利及自然近邻。学校、医疗设施、商店和交通网络均近在咫尺,彰显便利生活方式。此物业为注重空间、隐私与品质的家庭,提供一处随时可入住、经久不衰的家园,位于Maastricht最受欢迎的街区之一。

与Baerz一起探索Maastricht,您值得信赖的个人房产搜索和顾问

本地房产涉及文保限制、复杂交易、高度保密。经验丰富的顾问可助力获取私下机会,并凭借本地关系网高效达成交易。他们能处理独特的建筑需求与交易结构,令购房和售房过程顺畅而机密。

特点

空调
所有权转让
要价
€ 1.095.000 k.k.
状态
verkocht onder voorbehoud
接受
in overleg
建筑
房屋类型
Eengezinswoning
建筑类型
vrijstaande woning
建造时期
1969
能源评级
E
屋顶类型
zadeldak
卧室
4
浴室
0
表面积和体积
居住面积
140 m2
其他室内空间
94 m2
附属于建筑的外部空间
1 m2
外部储存空间
5 m2
体积(立方米)
805 m3
地块大小
273 m2
设施
Mechanische ventilatie
Rolluiken
Airconditioning
Schuifpui
In woonwijk
Baerz & Co Property Brochure

宣传册

视频

户型图

Damen Makelaardij

Ambyerstraat-Noord 72
6225 EG Maastricht

k.kruse@damen-og.nl
+31 433479090

www.damen-og.nl

信息/查看请求

Kenneth Kruse profile image
Kenneth Kruse
NVM MAKELAAR - RM/RT