Ons kantoor is lid van Baerz & Co Luxury Homes; een internationaal platform dat exclusieve woningmakelaars met elkaar verbindt. Neem contact op met ons secretariaat voor meer informatie over het landelijke aanbod, waarvan u hieronder een selectie kunt bekijken.

LISSE
Heereweg 304 - 2161 BV
荷兰

Miranda van der Wagt-Waasdorp profile image
Miranda van der Wagt-Waasdorp
Real estate agent
€1,695,000 k.k.
居住面积
321m2
地块大小
610m2
卧室
4

描述

Lisse联排别墅作为市政古迹,坐落于村庄中心610平方米的地块上,提供321平方米的高雅居住空间。这座独立庄严的物业经全面精修,既尊重其历史风貌,保留了原有细节,同时也融入了最高规格的现代舒适标准。

入户时,气势非凡的高大前门开启,步入带有原版花岗岩地面的长廊,引领至宽敞的生活厨房。厨房采用哑光白色定制设计,配有木质早餐吧、集成电器与酒柜,焕发家庭中心的活力,并有燃气壁炉和法式落地门直通阳光花园。毗邻的正式会客厅,以及灵活的阁楼多功能室,都非常适合工作或娱乐,完善了一层生活体验。精致的书房、保留完好的原始酒窖和超大室内车库进一步提升了日常功能性。

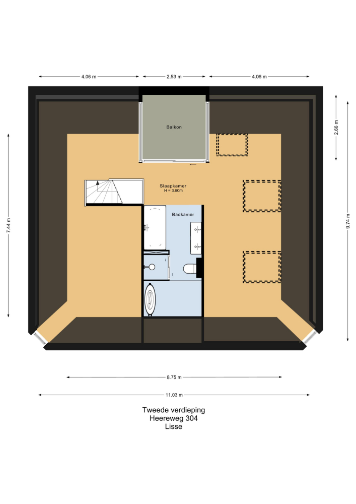
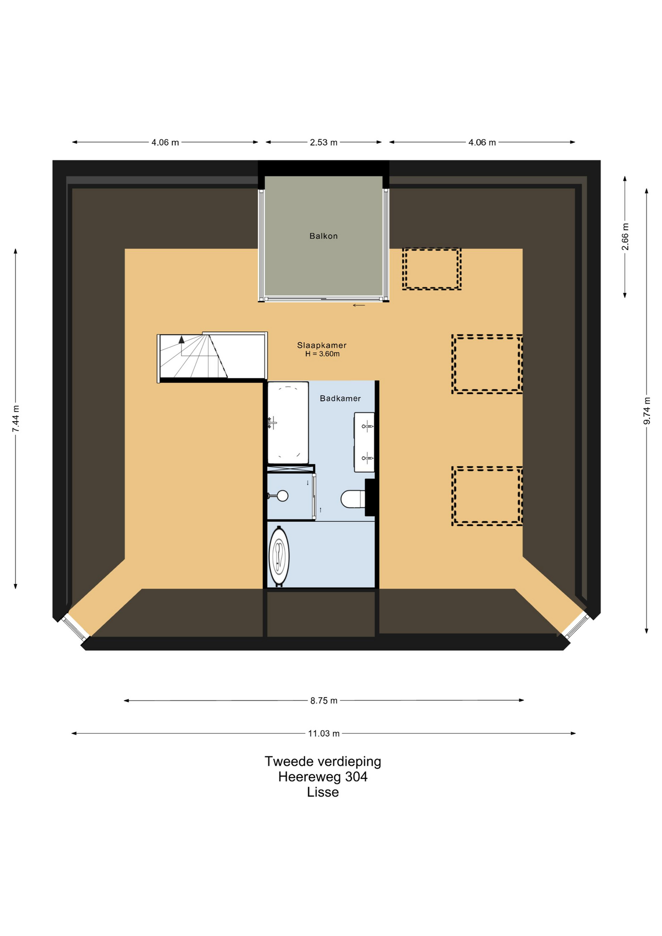
二层设有三间宽敞卧室,一间豪华浴室(设有步入式淋浴、独立浴缸及双洗手盆),还有可自由布置的洗衣间或工作间。整座顶层作为宁静的主人套房,设有朝西的阳台、步入式衣帽间及第二间私人卫浴。

别墅周围环绕锻铁栏杆、成熟山毛榉与有序的园林绿化,营造出隐私与安宁。可持续性措施包括墙体与屋顶保温、隔热玻璃、32块太阳能电池板以及双高效锅炉。报警系统、天花板射灯、全屋定制橱柜和精美橡木地板,彰显考究工艺,使Lisse的这座联排别墅成为传承与精致生活的完美结合。

与Baerz一起探索Lisse,您值得信赖的个人房产搜索和顾问

利瑟独特的高端市场由稀缺的供应与精细的业主买家关系主导。私人地产顾问可开启场外资源,助力低调磋商,保障交易符合您的私密、品质与时机期望,并以尽职调查与专属合同维护权益。

特点

太阳能板
报警系统
所有权转让
要价
€ 1.695.000 k.k.
状态
beschikbaar
接受
in overleg
建筑
房屋类型
Herenhuis
建筑类型
vrijstaande woning
建造时期
1898
能源评级
C
卧室
4
浴室
2
表面积和体积
居住面积
321 m2
其他室内空间
62 m2
附属于建筑的外部空间
9 m2
体积(立方米)
1349 m3
地块大小
610 m2
设施
Mechanische ventilatie
Alarminstallatie
Zonnepanelen
In centrum
Baerz & Co Property Brochure

宣传册

视频

户型图

Wilbrink & v.d. Vlugt Makelaars

Heereweg 231
2161 BG Lisse

info@wilbrinkvandervlugt.nl
+31 252 41 90 49

www.onsaanbod.nl

信息/查看请求

Miranda van der Wagt-Waasdorp profile image
Miranda van der Wagt-Waasdorp
Real estate agent