Ons kantoor is lid van Baerz & Co Luxury Homes; een internationaal platform dat exclusieve woningmakelaars met elkaar verbindt. Neem contact op met ons secretariaat voor meer informatie over het landelijke aanbod, waarvan u hieronder een selectie kunt bekijken.

KAAG
Emmalaan 3 - 2159 LP
荷兰

Frits Wilbrink profile image
Frits Wilbrink
Real estate agent
€1,395,000 k.k.
居住面积
184m2
地块大小
535m2
卧室
3

描述

Kaag Island别墅的滨水生活重新定义了宁静,将私密、湖水与精致舒适融于一体,坐落于罕见的535平方米岛屿地块。这座别墅建于2000年,居住面积达184平方米,坐拥Kagerplassen湖畔。每日清晨,水波荡漾在自家窗前;日暮时分,柔和的阳光洒落在专属码头。宽敞的门厅,配备开放式阁楼和实用衣帽间,令空间与光线的感受贯穿始终。

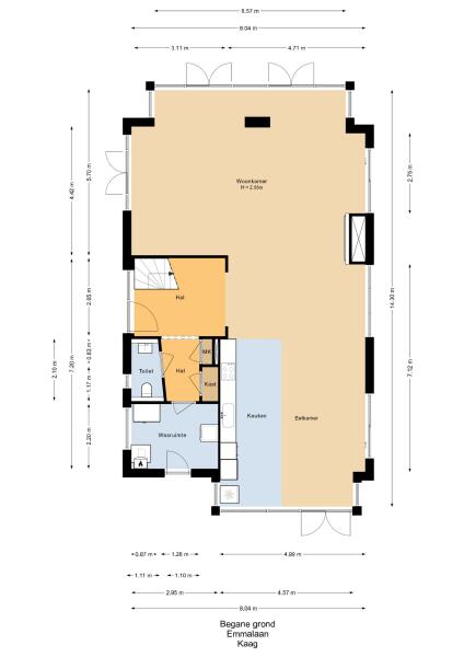
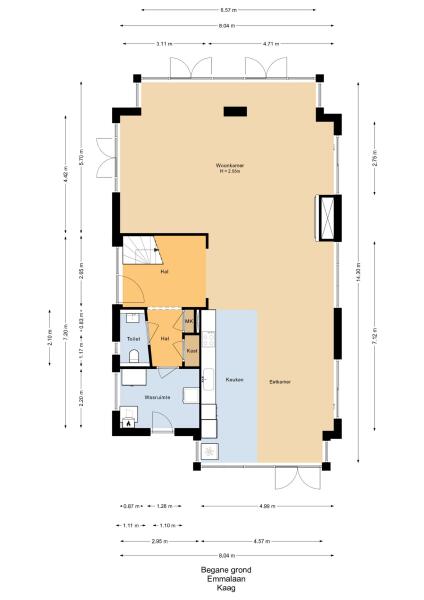
主起居室设有燃气壁炉,配有经典装饰线条,经由落地大窗和海湾窗可随时欣赏水景,并通过双开落地门无缝走向沐浴阳光的湖上露台。

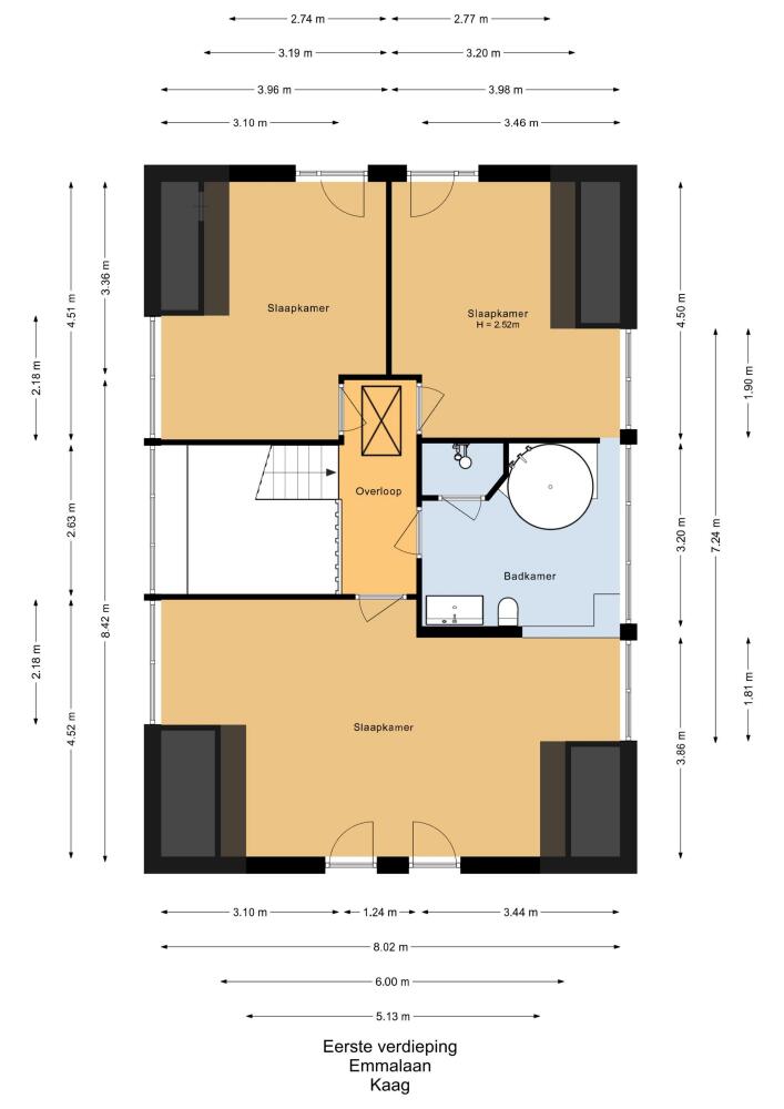
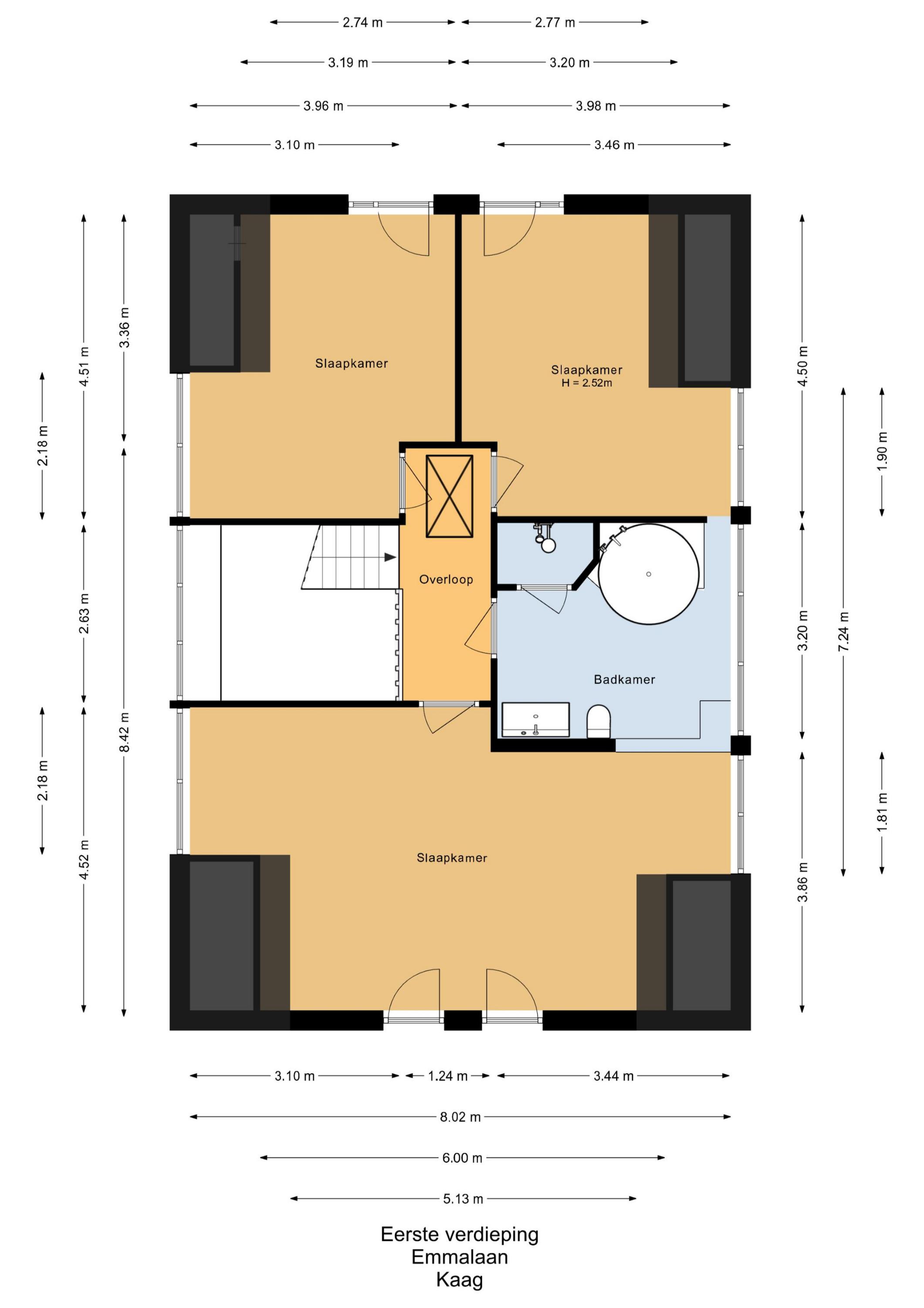
厨房既适合社交聚会,也适于静谧清晨,直接连通甲板露台。独立的多功能间设有洗衣区、中央供暖和储藏空间。二层包含三间宽敞卧室,每间配有老虎窗、法式阳台,并可通往带有深浴缸和按摩浴池的豪华浴室。卓越的隔热性能、机械通风系统与C级能效确保全年舒适与宁静。

室外,精心景观设计的花园及充足的专属停车位突显低调尊贵。私家码头便于悠闲划船畅游湖区,Leiden、Amsterdam、The Hague和Haarlem均近在咫尺。这座Kaag Island别墅带来罕有的岛屿生活节奏,于私密与联结之间缔造独特人生。若您正在寻觅Kaag的高端别墅,这一住宅完美诠释了水岸的安宁与隽永设计。

与Baerz一起探索Kaag,您值得信赖的个人房产搜索和顾问

专业建议与离市房源在Kaag购置优质物业需驾驭以私密和稀缺为特征的市场。资深顾问可为客户对接隐性房源、协商复杂事宜,保障利益最大化。他们的洞察力有助于买卖双方提前预判价格趋势、合规因素以及产权使用条件。与权威专业人士合作,是在这一封闭高端圈层获得成功的有效途径。

特点

空调
所有权转让
要价
€ 1.395.000 k.k.
状态
beschikbaar
接受
in overleg
建筑
房屋类型
Villa
建筑类型
vrijstaande woning
建造时期
2000
能源评级
C
屋顶类型
zadeldak
卧室
3
浴室
1
表面积和体积
居住面积
184 m2
其他室内空间
0 m2
体积(立方米)
655 m3
地块大小
535 m2
设施
Mechanische ventilatie
Airconditioning
Jacuzzi
Rookkanaal
Schuifpui
Frans balkon
Glasvezel kabel
Aan water
Aan rustige weg
In woonwijk
Beschutte ligging
Aan vaarwater
Baerz & Co Property Brochure

宣传册

视频

户型图

Wilbrink & v.d. Vlugt Makelaars

Heereweg 231
2161 BG Lisse

info@wilbrinkvandervlugt.nl
+31 252 41 90 49

www.onsaanbod.nl

信息/查看请求

Frits Wilbrink profile image
Frits Wilbrink
Real estate agent

在购买豪华房产 Kaag

Kaag提供临湖奢居、友善社区与私密顾问服务,适合全球高端买家。岛屿风情、文化氛围和紧邻大城市的地利,使其成为睿智家庭与投资者的首选。