Ons kantoor is lid van Baerz & Co Luxury Homes; een internationaal platform dat exclusieve woningmakelaars met elkaar verbindt. Neem contact op met ons secretariaat voor meer informatie over het landelijke aanbod, waarvan u hieronder een selectie kunt bekijken.

HAAREN
Nieuwe Erven 12 - 5076 NP
荷兰

Marleen de Bekker profile image
Marleen de Bekker
Real Estate Agent
€1,250,000 k.k.
居住面积
184m2
地块大小
918m2
卧室
5

描述

这座位于哈伦的家庭住宅巧妙融合了私密性与开阔的居住体验,坐落于村庄边缘的宽广918平方米地块上。住宅建筑面积达184平方米,四间卧室均位于同一楼层,为和谐的家庭生活营造理想空间。从阳光充足的客厅——搭配大幅落地窗和中央壁炉——自然而然延展至现代开放式厨房,高光白色饰面、复合台面、Quooker开水机及双烤箱尽显现代格调。宽敞的实用间连通车库与花园,增强日常生活便利性。

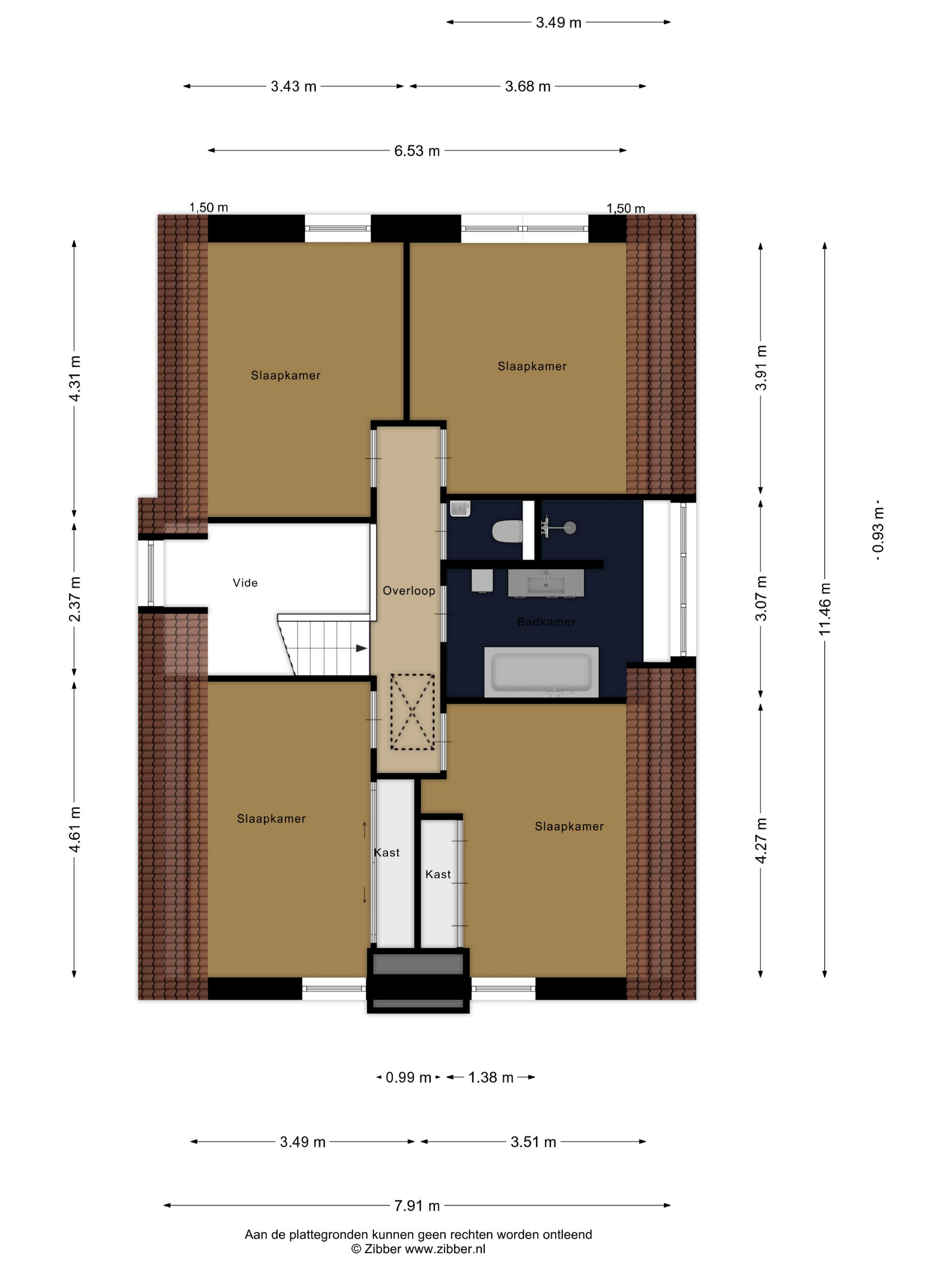
楼上每间卧室面积约为15平方米,营造一份宁静的私人空间。浴室配备步入式淋浴、双台盆、大型浴缸、充沛自然采光及地暖。贯穿全屋长度的阁楼,满足四季储物需求。

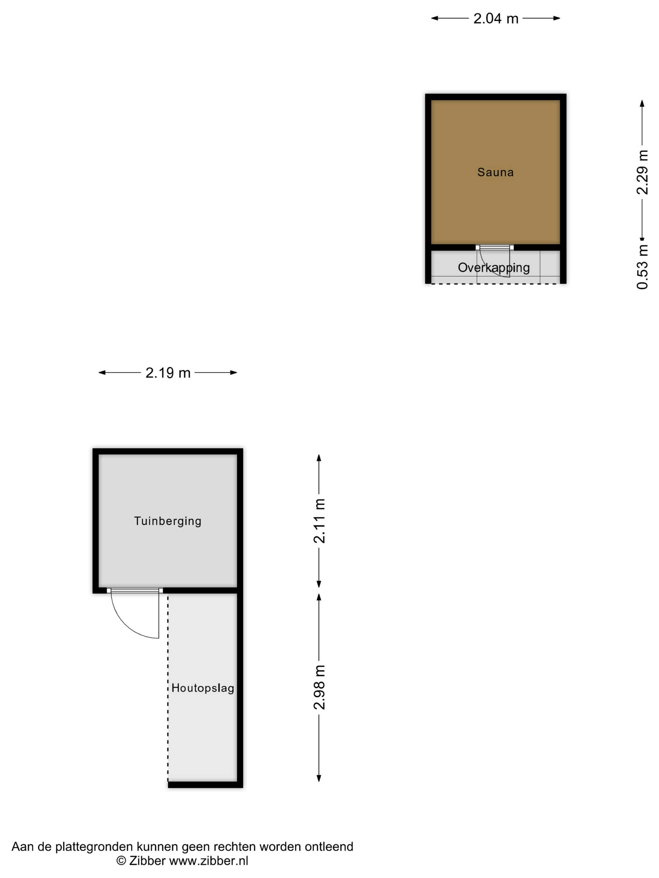
户外空间分为宽阔的阳光露台、带天窗的遮蔽区以及隐秘的桑拿房。成熟的绿篱保证私密性,同时为娱乐与放松腾出空间。面积为3.85米乘6.30米的隔热车库提供更多功能,多车道可容纳四至六辆车。十八块太阳能电池板、全屋隔热以及A+能源评级,确保能效持久。

该住宅位于哈伦宁静的住宅区,咖啡馆、餐厅、自行车道以及广阔的Kampina自然保护区和Loonse en Drunense Dunes国家公园近在咫尺。室内外无缝连接、现代舒适体验以及邻近村落生活,使本物业成为荷兰腹地魅力家庭避世之选。

与Baerz一起探索Haaren,您值得信赖的个人房产搜索和顾问

高端客户从具备本地深度、房东资源及跨境经验丰富的顾问中受益匪浅。哈伦许多顶级地产均为私下交易,需要具备出色谈判、尽调和定制服务能力的中介。资深顾问的价值在于挖掘隐性机会并全程护航复杂交易。

特点

太阳能板
所有权转让
要价
€ 1.250.000 k.k.
状态
onder bod
接受
in overleg
建筑
房屋类型
Eengezinswoning
建筑类型
vrijstaande woning
建造时期
2016
能源评级
A+
屋顶类型
zadeldak
卧室
5
浴室
1
表面积和体积
居住面积
184 m2
其他室内空间
44 m2
附属于建筑的外部空间
36 m2
外部储存空间
9 m2
体积(立方米)
844 m3
地块大小
918 m2
设施
Mechanische ventilatie
Tv kabel
Rookkanaal
Schuifpui
Sauna
Glasvezel kabel
Zonnepanelen
Aan rustige weg
In woonwijk
Baerz & Co Property Brochure

宣传册

视频

户型图

Finesse Makelaardij

Groenstraat 31
5062 NA Oisterwijk

info@finesse-makelaardij.nl
+31 655757171

www.finesse-makelaardij.nl

信息/查看请求

Marleen de Bekker profile image
Marleen de Bekker
Real Estate Agent