Ons kantoor is lid van Baerz & Co Luxury Homes; een internationaal platform dat exclusieve woningmakelaars met elkaar verbindt. Neem contact op met ons secretariaat voor meer informatie over het landelijke aanbod, waarvan u hieronder een selectie kunt bekijken.

HAAFTEN
Steenweg 2 - 4175 AD
荷兰

Jeanette van Haaften profile image
Jeanette van Haaften
Real Estate Agent
€1,500,000 k.k.
居住面积
437m2
地块大小
1930m2
卧室
6

描述

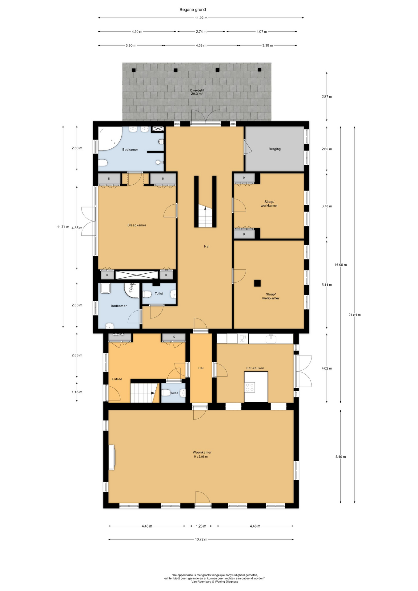
Woonboerderij Haaften 将宁静、空间与可持续性和谐融合。这座由建筑师精心改造、荣获A++能效等级的T型农舍,建筑面积达到437平方米,共设六间卧室和三间浴室,坐落于1,930平方米的地块之上。灵活的空间布局既适合多代同堂居住,也便于工作空间的整合,两间客厅、图书室与多处办公区彰显功能多样。

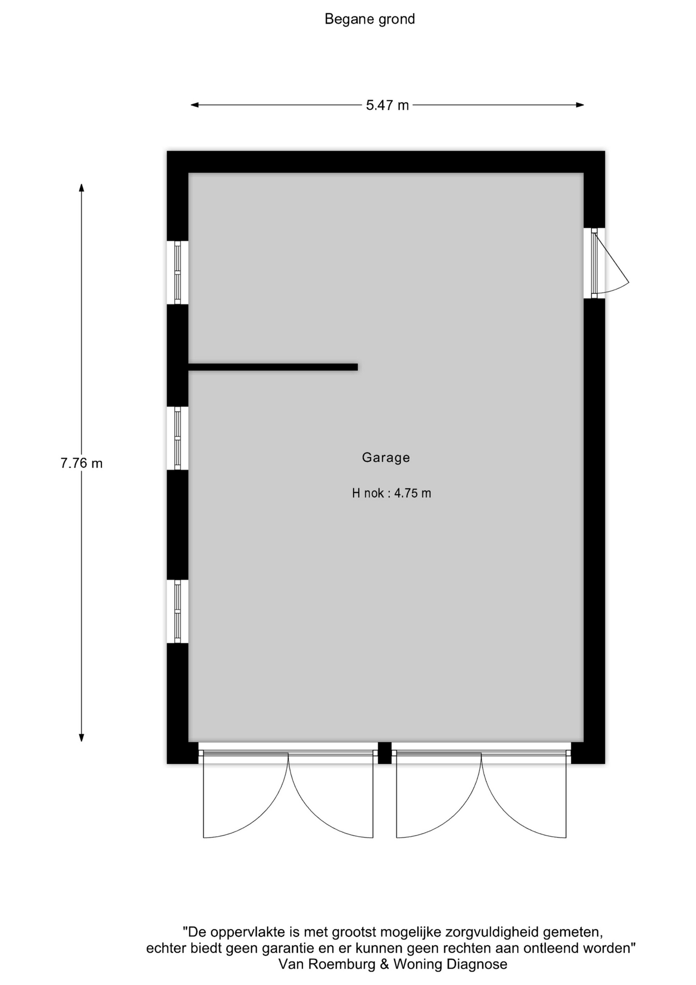
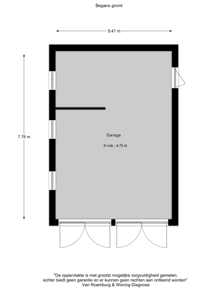
经过遥控大门,映入眼帘的是成熟的私密花园与一座双层隔热的车库(42平方米),可容纳多辆汽车。主入口通向一间明亮、面朝花园的起居室,近三米挑高的横梁天花板及配有内百叶的环绕窗户,营造出静谧尊贵的氛围。地暖系统、天然石材壁炉与定制陶瓷地面进一步提升居住体验。

现代厨房配备花岗岩台面、奢华岛台及近期安装的高端电器,通向一片在夏季由成排法国梧桐树荫庇护的露台。底层主套房设有双开落地门、宽敞衣橱以及配备步入式淋浴、双台盆与坐浴盆的浴室。另有三间多功能卧室、杂物间及两间额外卫浴进一步丰富空间。楼上设有光线充足的图书馆、灵活的工作室及更多卧室,处处体现居家舒适与私密的理念。

46块太阳能板、高性能隔热玻璃、全方位保温系统及Nefit热泵,确保住宅的可持续性。安防报警与可靠锁具为居者提供安心保障。房屋坐落于静谧的尽头路,步行可至瓦尔河畔风景小道与自然保护区,乌得勒支及埃因霍温机场均可便捷抵达。这处房产展现了恒久品质与低调自信的地位归属感。

与Baerz一起探索Haaften,您值得信赖的个人房产搜索和顾问

特点

太阳能板
报警系统
所有权转让
要价
€ 1.500.000 k.k.
状态
beschikbaar
接受
in overleg
建筑
房屋类型
Woonboerderij
建筑类型
vrijstaande woning
建造时期
2002
能源评级
A++
屋顶类型
samengesteld dak
卧室
6
浴室
3
表面积和体积
居住面积
437 m2
其他室内空间
55 m2
附属于建筑的外部空间
29 m2
体积(立方米)
1700 m3
地块大小
1930 m2
设施
Mechanische ventilatie
Alarminstallatie
Rookkanaal
Dakraam
Glasvezel kabel
Zonnepanelen
Natuurlijke ventilatie
Aan rustige weg
Beschutte ligging
Baerz & Co Property Brochure

宣传册

视频

360全景

360°
360 Panorama - Steenweg 2
360°
360 Panorama - Steenweg 2
360°
360 Panorama - Steenweg 2
360°
360 Panorama - Steenweg 2
360°
360 Panorama - Steenweg 2
360°
360 Panorama - Steenweg 2
360°
360 Panorama - Steenweg 2

户型图

Bijzonder Wonen Makelaardij

Heilige Geeststraat, 11
5301CP Zaltbommel

info@bijzonderwonen.com
+31 41 868 00 50

www.bijzonderwonen.com

信息/查看请求

Jeanette van Haaften profile image
Jeanette van Haaften
Real Estate Agent

在购买豪华房产 Haaften

哈夫滕融合了高雅滨河生活、紧密社区和低调建筑美学。业主享受定制服务、安全与荷兰文化的直接体验。