Ons kantoor is lid van Baerz & Co Luxury Homes; een internationaal platform dat exclusieve woningmakelaars met elkaar verbindt. Neem contact op met ons secretariaat voor meer informatie over het landelijke aanbod, waarvan u hieronder een selectie kunt bekijken.

BERKEL-ENSCHOT
Elstar 40 - 5056 DG
荷兰

Shirley Kneepkens profile image
Shirley Kneepkens
Makelaar - taxateur
Price on request
居住面积
206m2
地块大小
530m2
卧室
4

描述

伯克尔-恩斯霍特的独立住宅在这个因私密与亲近自然而备受青睐的村庄,呈现出静谧的创新感。这栋由 JMW Architects 设计的当代住宅,诠释了考究的建筑理念与空间感,总建筑面积为 206 平方米,分布在三层之上,各层均以工业美学、全玻璃立面及低调奢华为基调。

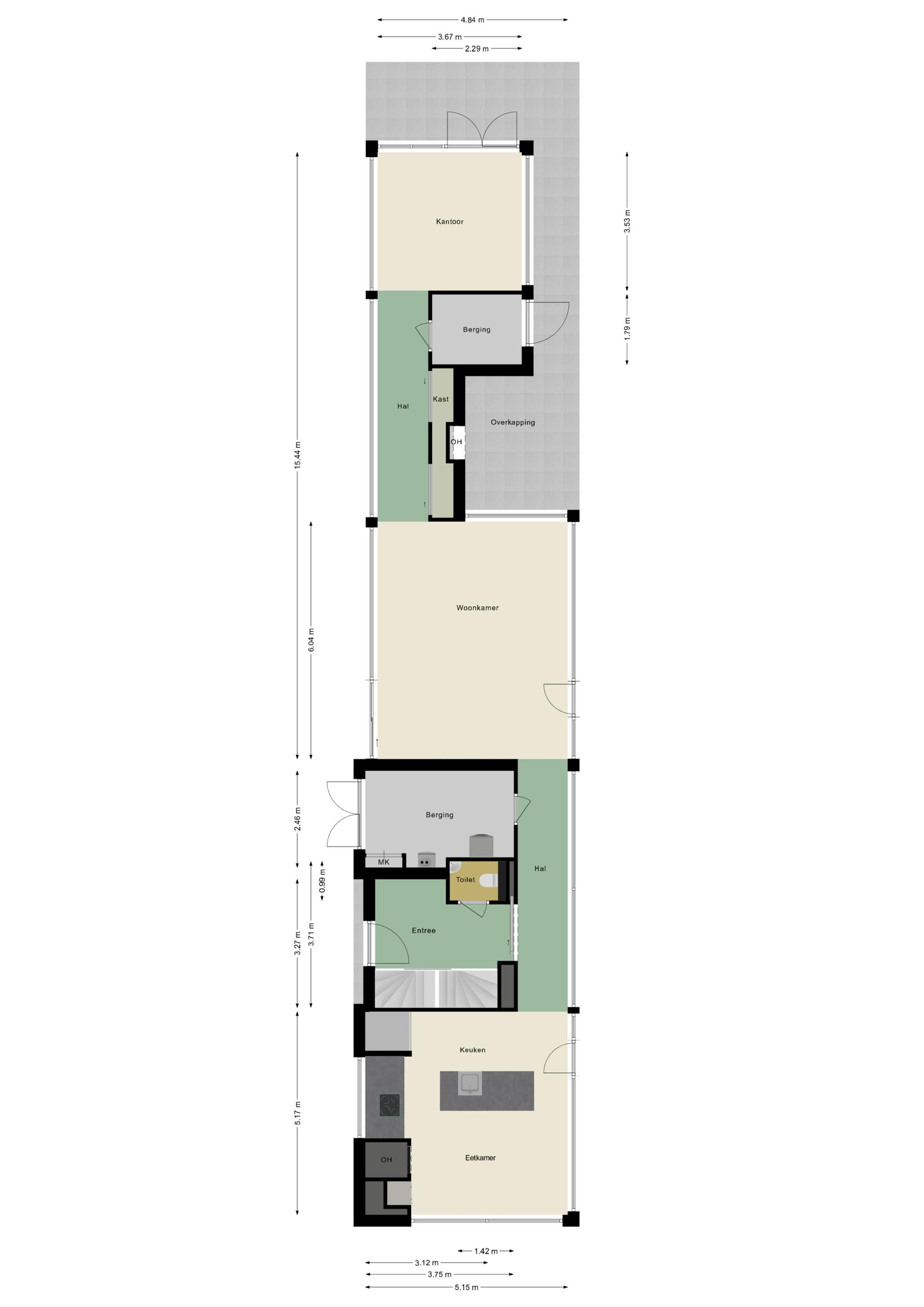
主要生活区域呈现出如阁楼般开阔的氛围:挑高天花、落地大窗,室内空间与室外露台自然衔接。底层一百多平方米专为联通与安逸而设计——开放式厨房配备 Gaggenau 洗碗机和超宽冰箱,光线充盈的休息区,以及可用作工作室或书房的多功能房间。每个空间均与东南向花园及带顶露台形成互动,一棵树精心穿过定制天窗向上生长。

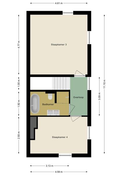
全功能地下室设有两间卧室与套内卫浴,各自直达私家庭院。首层提供两间额外卧室、宽敞浴室以及阁楼。全屋采用设计混凝土、嵌入式照明和分区地暖与制冷,兼具耐用与舒适。二十八块太阳能板、地源热泵和高效玻璃,为住宅带来真正的 A++ 能效表现,实现全年宜居与面向未来的环保生活。

530 平方米的宅基地被绿意包围,产权围合带来极佳私密,并设有院内停车。周边配套齐全,包括焕新后的 Koningsoord 购物中心、知名学校、体育设施,以及便捷通往蒂尔堡、埃因霍温、布雷达等地的高速公路。对于希求在伯克尔-恩斯霍特购置豪华别墅的买家而言,此独栋住宅将建筑的纯粹、可持续理念与真实的私密完美结合。

与Baerz一起探索Berkel-Enschot,您值得信赖的个人房产搜索和顾问

驾驭贝尔克尔-恩斯霍特的小众市场需依赖专家积累资源,发掘稀有机遇并安排私下看房。私人顾问通常能优先掌握房源,拥有成熟谈判网络和市场洞察,确保购置过程贴合客户战略目标。定制化服务让复杂交易亦能高效顺畅,惠及本地和国际客户。

特点

太阳能板
所有权转让
价格面议
状态
verkocht onder voorbehoud
接受
in overleg
建筑
房屋类型
Eengezinswoning
建筑类型
vrijstaande woning
建造时期
2013
能源评级
A++
屋顶类型
samengesteld dak
卧室
4
浴室
2
表面积和体积
居住面积
206 m2
其他室内空间
13 m2
附属于建筑的外部空间
49 m2
体积(立方米)
815 m3
地块大小
530 m2
设施
Mechanische ventilatie
Buitenzonwering
Schuifpui
Zonnepanelen
Aan rustige weg
In woonwijk
Baerz & Co Property Brochure

宣传册

视频

户型图

Shirley Kneepkens Makelaardij

Raadhuisstraat 44
5056HD Berkel-Enschot

shirley@shirleykneepkens.nl
+31 (0)13 533 56 55

www.shirleykneepkens.nl

信息/查看请求

Shirley Kneepkens profile image
Shirley Kneepkens
Makelaar - taxateur