Ons kantoor is lid van Baerz & Co Luxury Homes; een internationaal platform dat exclusieve woningmakelaars met elkaar verbindt. Neem contact op met ons secretariaat voor meer informatie over het landelijke aanbod, waarvan u hieronder een selectie kunt bekijken.

BERGEN AAN ZEE
Elzenlaan 30 - 1865 BM
荷兰

Angeline Croonen profile image
Angeline Croonen
Real Estate Agent
€1,795,000 k.k.
居住面积
126m2
地块大小
768m2
卧室
4

描述

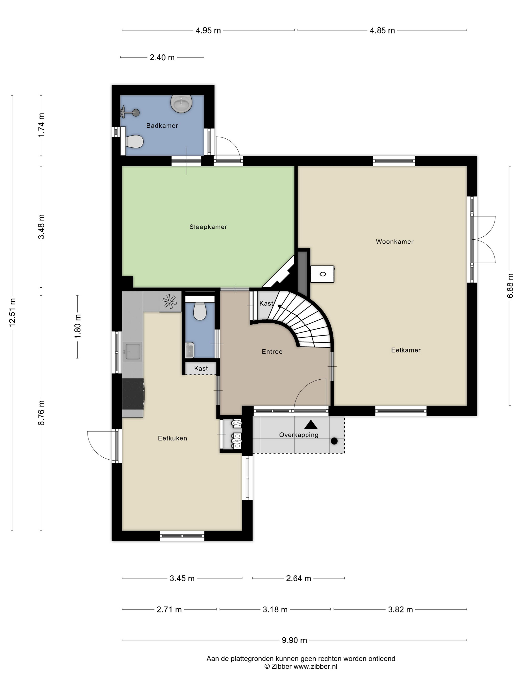
位于Bergen aan Zee的家庭住宅,以其低调格调与隽永实用,在Elzenlaan上脱颖而出。该地段毗邻林缘、沙丘与北海海滩,环境静谧。独立式住宅拥有126平方米居住空间,坐落于768平方米地块,兼顾多代同堂与私密性及精致舒适度。

2022年全面翻新并实现可持续升级,房屋配备屋顶及双层玻璃隔热、新厨房和现代中央供暖系统,达到能源等级D。起居室铺设原木拼花地板、配备壁炉与法式双开门,直通成熟园林;定制柜体兼具功能与美观。底层设有一间卧室及专属卫浴,保障无障碍与终身适居。

楼上三间卧室分别配备洗手台及衣柜,多组老虎窗带来充沛自然光。第二浴室提供浴缸、淋浴、马桶及天窗,满足家庭生活所需。

独立附属建筑目前为车库,亦获批用于休闲用途,进一步提升物业可塑性。内部包含厨房单元、浴室、洗衣机接口,以及带独立入口的阁楼。尽管该建筑待现代化改造,发展潜力巨大,尤适寻求Bergen aan Zee豪华别墅、具弹性客人住宿空间者。

本宅邸坐落于安静私密街区,无论作为永久住宅或精致度假居所,均距海滩与静谧森林仅数步之遥。

与Baerz一起探索Bergen Aan Zee,您值得信赖的个人房产搜索和顾问

聘请地产顾问有助于把握以隐私为前提、制度复杂和房源选择严格的市场。顾问可提供内部房源、牵线搭桥并协助议价,全程保障交易顺畅且契合未来期待。

特点

所有权转让
要价
€ 1.795.000 k.k.
状态
beschikbaar
接受
in overleg
建筑
房屋类型
Villa
建筑类型
vrijstaande woning
建造时期
1950
能源评级
D
屋顶类型
zadeldak
卧室
4
浴室
2
表面积和体积
居住面积
126 m2
其他室内空间
0 m2
附属于建筑的外部空间
3 m2
外部储存空间
44 m2
体积(立方米)
467 m3
地块大小
768 m2
设施
Mechanische ventilatie
Tv kabel
Rookkanaal
Dakraam
Natuurlijke ventilatie
Aan bosrand
Aan rustige weg
Beschutte ligging
In bosrijke omgeving
Baerz & Co Property Brochure

宣传册

视频

户型图

Croon Makelaars

Breelaan 41
1861 GD Bergen

info@croonmakelaars.nl
+31 (0)72 743 32 44

www.croonmakelaars.nl

信息/查看请求

Angeline Croonen profile image
Angeline Croonen
Real Estate Agent