Welkom bij 11 Makelaars - Amsterdam Noord Internationaal. Ook ver buiten Nederland zijn wij zeer actief. Via ons internationale netwerk binnen Baerz & Co Luxury Homes begeleiden onze Nederlandse (!) partners u vakkundig bij de aankoop van exclusieve tweede huizen. U vindt ons in 20 landen rond de Middellandse zee, de Alpen, Mexico en Dubai. Neem voor meer informatie contact op met ons secretariaat.

BARCELONA
西班牙

Chantal Cunningham profile image
Chantal Cunningham
Chief Property Advisory
€1,750,000
居住面积
184m2
地块大小
N/A
卧室
3

描述

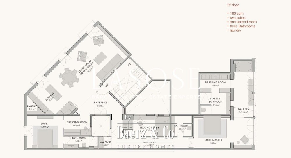
Flat Barcelona 在城市核心地带树立了当代生活的宁静典范,位于2021年全面翻新的楼宇五层,面积达184平方米。此臻品公寓配备三间卧室与三间浴室,甄选天然木质地板及高效能双层玻璃窗,确保居住的安静与舒适。中央空调与热泵暖气系统实现全年恒温的定制气候控制。

理想的朝向为每一处空间带来持久的自然光照,无遮挡的城市景观一览巴塞罗那天际线。私人阳台让起居空间与城市的感官律动紧密相连。公共设施进一步提升生活品质,包括刚翻新的屋顶露台,可欣赏从大海到提比达波的全景,设备齐全的健身房,以及礼宾与电梯服务所带来的便利。

距全新改造的 Consell de Cent 仅一街之隔,步行即达 Paseo de Sant Joan,地段优越,便捷通往高端精品店、静谧绿地与巴塞罗那中心的都市律动。此公寓低调融合奢华与纯粹,为注重私密与地段的品味人士提供理想之选。

与Baerz一起探索Barcelona,您值得信赖的个人房产搜索和顾问

专业顾问在巴塞罗那高端物业领域的重要性不可替代。精准把握本土市场,获取稀缺隐蔽房源,并在议价谈判中为客户把关。量身定制顾问服务,提供严密保密机制、强大人脉与全程风险管理,助力买卖双方达成目标。

特点

游泳池
空调
所有权转让
要价
€ 1.750.000
LAS
建筑
房间
N/A
卧室
3
浴室
3
表面积和体积
居住面积
184 m2
地块大小
0 m2
设施
Balcon
A/A
Elevator
Wardrobes cupboard
Appliances
Heating
Air-Conditioning
Video Intercom
Community Pool
Light
Gymnasium
Washing room
Baerz & Co Property Brochure

宣传册

视频

信息/查看请求

Chantal Cunningham profile image
Chantal Cunningham
Chief Property Advisory

在购买豪华房产 Barcelona

巴塞罗那高端不动产市场欢迎国际居民追求高雅生活、活力文化与稳健投资机遇。在这座地中海之都,传承、社群与全球化服务完美兼具。