Ons kantoor is lid van Baerz & Co Luxury Homes; een internationaal platform dat exclusieve woningmakelaars met elkaar verbindt. Neem contact op met ons secretariaat voor meer informatie over het landelijke aanbod, waarvan u hieronder een selectie kunt bekijken.

BAARLE-NASSAU
Hoogbraak 48 - 5111 CT
荷兰

Andy Tjokrokoesoemo profile image
Andy Tjokrokoesoemo
Real Estate Agent
€1,595,000 k.k.
居住面积
466m2
地块大小
2270m2
卧室
3

描述

Villa Baarle-Nassau邀请您开启雅致生活新篇章。这座宽敞别墅拥有466平方米的居住面积,坐落于2270平方米的私家地块,庄重的建筑语言与现代舒适在Baarle-Nassau核心地段交融共生。通过每一间宽大明亮的房间,流畅开阔的空间布局与充沛自然采光和经精心规划的视线动线一一呼应。Villa Baarle-Nassau荣获A级能效评级,为持续舒适提供保障。

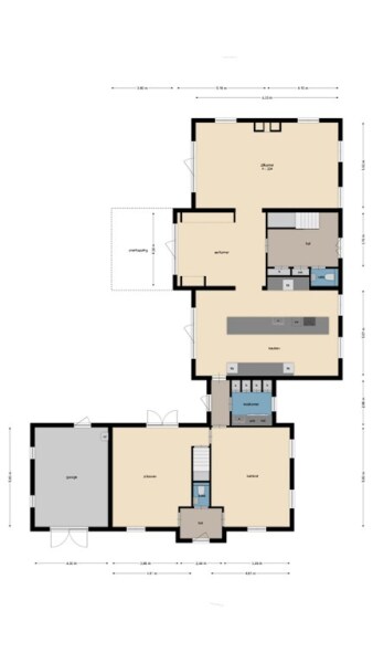
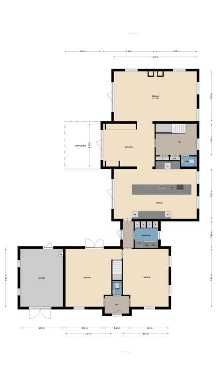
一楼设有三处互通的大型起居空间,各自独立而又以挑高天花与落地窗彼此相连。实木地板与内置燃气壁炉营造静谧氛围,客厅与餐厅可无缝衔接至廊檐和景观花园。醒目的开放式厨房设有大型中岛,并配备了先进的电器,包括BORA模块化设备和恒温酒柜,为家人团聚与日常品味生活提供理想空间。毗邻的多功能侧翼配有杂物间、办公区、花园房和独立出入口,可灵活用作客房、护理套间或专业工作空间。

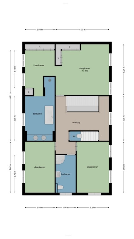
二楼布局包括一间主卧套房,俯瞰花园,设有步入式衣帽间和配备步入式淋浴、独立浴缸及双台盆的独立卫浴。两间次卧及第二卫生间延续住宅的精妙比例,光线与高度注入每一处空间以静谧能量。宽大的阁楼预留洗衣设施接口,空间开放灵活,便于后续个性化定制。

户外,精心设计的园林可尽享宁静的户外生活。草坪、成熟植被、果树和多处休憩区环抱整座别墅,并配有带嵌入照明与灌溉系统的加热廊檐。实用配置包括双车位车库、充足停车区及充电桩预留。安保方面,集成式报警系统为居住安全护航。

项目位于Baarle-Nassau,兼具隐私和便利,邻近荷兰及比利时学校、体育俱乐部、大型超市及医疗设施。村庄独特的飞地环境,坐拥Breda、Tilburg与Turnhout之间的绿意三角,畅享自然步道与文化设施。该豪华别墅已整装待售,专为追求静谧与精细细节的鉴赏家量身打造。

与Baerz一起探索Baarle-Nassau,您值得信赖的个人房产搜索和顾问

在巴尔勒-纳索独特的房产市场,深度本地洞察与国际视野至关重要。跨境细节与紧俏房源常让优质机会只对内行开放。经验丰富的顾问拥有高阶谈判力,了解荷比购房流程,为客户优化隐私与价值、规避风险。

特点

报警系统
车库
所有权转让
要价
€ 1.595.000 k.k.
状态
Available
接受
In Concert
参考
179
建筑
房屋类型
Villa
建筑类型
Detached House
建造时期
2009
能源评级
A
屋顶类型
hipped
卧室
3
浴室
2
表面积和体积
居住面积
466 m2
其他室内空间
25 m2
附属于建筑的外部空间
17 m2
体积(立方米)
1854 m3
地块大小
2270 m2
设施
Alarm
Garage
Garden
Baerz & Co Property Brochure

宣传册

视频

户型图

Van Baarle Makelaardij

Hoogbraak 1
5111 CS Baarle-Nassau

andy@vanbaarlemakelaardij.com
+31 013762 02 02

www.vanbaarlemakelaardij.com

信息/查看请求

Andy Tjokrokoesoemo profile image
Andy Tjokrokoesoemo
Real Estate Agent