Ons kantoor is lid van Baerz & Co Luxury Homes; een internationaal platform dat exclusieve woningmakelaars met elkaar verbindt. Neem contact op met ons secretariaat voor meer informatie over het landelijke aanbod, waarvan u hieronder een selectie kunt bekijken.

AMSTERDAM
Valeriusstraat 170 H - 1075 GH
荷兰

Eran Hausel profile image
Eran Hausel
Real estate agent
€2,500,000 k.k.
居住面积
190m2
地块大小
272m2
卧室
4

描述

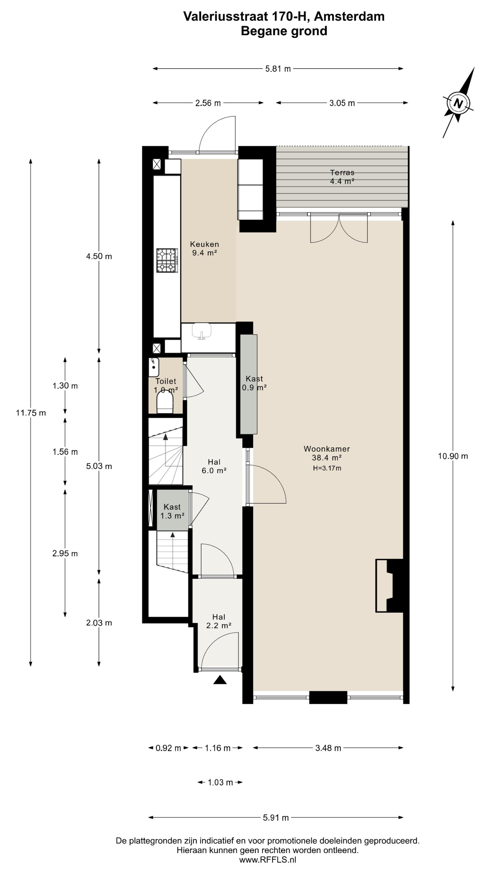
阿姆斯特丹南区公寓位于备受青睐的Oud-Zuid区域Valeriusstraat街上。此永久产权住宅约190平方米,分布于三层空间,配备有52平方米的私家后花园、两处阳台及多功能地下室。物业设有四间优质卧室与两间精致浴室,兼顾家庭舒适与内敛的都市奢华。

通过专属大门入户,进入明亮的客厅区域,高挑天花板、燃气壁炉与木地板为空间增添雅致。大面积落地窗引入充足自然光,开放式格局划分出交流与私密的区域。厨房配备现代家电及Quooker龙头,与露台和精心设计的后花园直接相连,为静谧清晨或温馨夜晚打造理想室外延伸。实用的地下室可作为额外储藏、兴趣或酒窖空间。

楼上设有四间卧室,每间都配有嵌入式衣柜和空调,以及以协调低调风格装修的两间浴室。主卧与楼上后侧卧室通过法式门直通阳台,俯瞰翠绿的内庭花园。全屋地暖与双层玻璃窗确保舒适与能效。

住户近享Cornelis Schuytstraat街、冯德尔公园及重要文化地标,距史基浦机场约15分钟车程,便于国际出行。各种设施、一流学府及美食餐厅皆可步行抵达,这套公寓可谓阿姆斯特丹南区无与伦比的城市私属居所。物业自主管理协会仅有两名成员,极致保障隐私与自主权。提供付费停车及许可制度。

与Baerz一起探索Amsterdam,您值得信赖的个人房产搜索和顾问

驾驭阿姆斯特丹高端市场需深厚本地洞察、严密保密与谈判专业技巧。顶尖顾问可助您获取私密房源,梳理细致产权规定,并洞察那些罕见进入市场的隐藏机会。顾问团队严苛资产甄别与代表,提升协商地位、确保交易顺畅并全程保障您的隐私。

特点

所有权转让
要价
€ 2.500.000 k.k.
状态
onder bod
接受
in overleg
建筑
房屋类型
Dubbel benedenhuis
建筑类型
appartement
建造时期
1911
能源评级
C
屋顶类型
plat dak
卧室
4
浴室
2
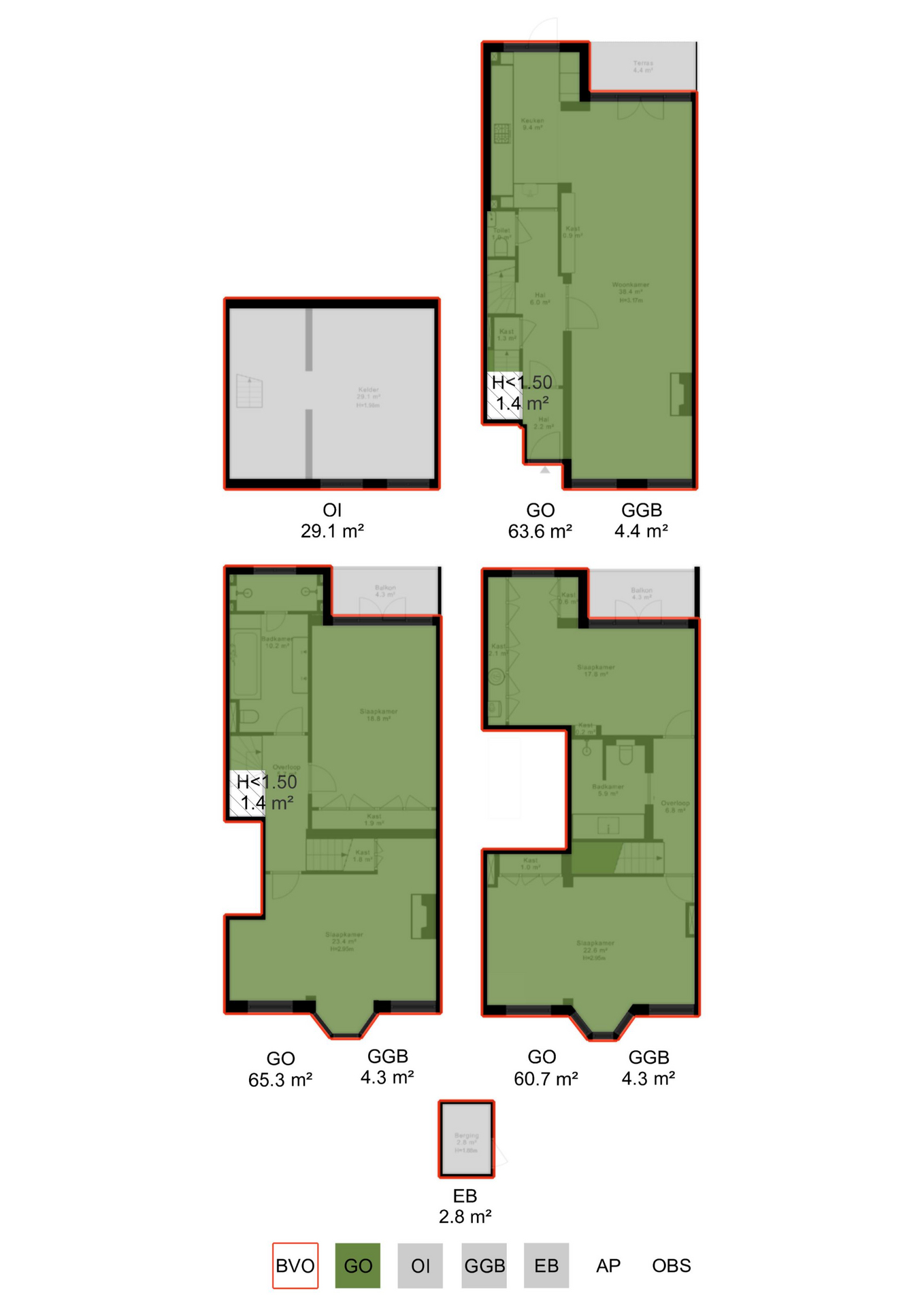
表面积和体积
居住面积
190 m2
其他室内空间
29 m2
附属于建筑的外部空间
13 m2
体积(立方米)
817 m3
地块大小
272 m2
设施
Mechanische ventilatie
Tv kabel
Natuurlijke ventilatie
Aan rustige weg
In centrum
In woonwijk
Baerz & Co Property Brochure

宣传册

视频

虚拟参观

VIRTUAL TOUR
Virtual Tour Valeriusstraat 170 H

Heeren Makelaars

Stadionweg 75
1077 SE Amsterdam

info@heerenmakelaars.nl
+31 204702255

www.heerenmakelaars.nl

信息/查看请求

Eran Hausel profile image
Eran Hausel
Real estate agent

在购买豪华房产 Amsterdam

阿姆斯特丹以传承、互联及低调奢华定义了国际化生活方式。居民享有多元国际社群、精心策划服务及蓬勃文化氛围。城市持久魅力在于其历史积淀、精致格调与进取精神的结合。