Ons kantoor is lid van Baerz & Co Luxury Homes; een internationaal platform dat exclusieve woningmakelaars met elkaar verbindt. Neem contact op met ons secretariaat voor meer informatie over het landelijke aanbod, waarvan u hieronder een selectie kunt bekijken.

AMSTELVEEN
De Bosporus 26 - 1183 GJ
荷兰

Sander Bovenkerk profile image
Sander Bovenkerk
Real estate agent
€2,395,000 k.k.
居住面积
302m2
地块大小
683m2
卧室
6

描述

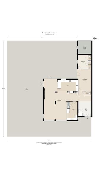
这栋独立别墅位于阿姆斯特尔芬,拥有约302平方米的居住面积,坐落于683平方米的专属用地上。住宅位于Kostverloren社区安静的Bosporus街,设有六间卧室和三间浴室,舒适与私密兼具,无论是家庭生活还是社交接待都极为适宜。宽敞的西南朝向花园直接临水,营造出城市中罕见的隐逸氛围与自然融和感。

室内空间通过宽大的窗户与法式门迎入自然光线,凸显开敞格局。厨房配备嵌入式电器,与宽敞的起居区融为一体,为日常生活营造出温馨氛围。实用的多功能间可用于储藏及洗衣设备连接。底层设有灵活多用的卧室和独立卫浴,为宾客提供私人空间,也可用作办公或工作室。

楼上设有五间宽敞卧室和两间浴室,其中主卧带步入式衣橱和直通卫浴,空间布局更为灵活。所有房间均以中性风格精致收尾,便于将来个性化装饰。

住宅坐拥阿姆斯特尔芬绿色宜人的生活环境,同时日常配套、学校、如Amsterdamse Bos与De Poel等休闲区域及Stadshart Amstelveen等购物中心,均可轻松骑行或乘有轨电车抵达。前往阿姆斯特丹南区(Amsterdam Zuid)、史基浦机场和Zuidas金融区的交通便捷,无论驾车还是搭乘公共交通皆十分高效。这栋待售独立别墅专为追求宁静而无须妥协的鉴赏者打造,配备私人停车位、大部分房间采用空调、自然通风、双层玻璃与中央锅炉采暖。

与Baerz一起探索Amstelveen,您值得信赖的个人房产搜索和顾问

阿姆斯特尔芬市场的低调与激烈竞逐,需依靠深度洞察。资深顾问可协助进入私密销售,精准掌握社区动态,量身定制谈判策略。他们的专长确保细致尽职调查、优化磋商与顺畅跨境交易,全程为高净值客户利益保驾护航。

特点

所有权转让
要价
€ 2.395.000 k.k.
状态
beschikbaar
接受
in overleg
建筑
房屋类型
Villa
建筑类型
vrijstaande woning
能源评级
D
屋顶类型
plat dak
卧室
6
浴室
3
表面积和体积
居住面积
302 m2
其他室内空间
14 m2
外部储存空间
16 m2
体积(立方米)
1115 m3
地块大小
683 m2
设施
Natuurlijke ventilatie
Aan water
Aan rustige weg
In woonwijk
Beschutte ligging
Baerz & Co Property Brochure

宣传册

视频

Heeren Makelaars

Stadionweg 75
1077 SE Amsterdam

info@heerenmakelaars.nl
+31 204702255

www.heerenmakelaars.nl

信息/查看请求

Sander Bovenkerk profile image
Sander Bovenkerk
Real estate agent

在购买豪华房产 Amstelveen

阿姆斯特尔芬拥有高端住宅、国际氛围和卓越交通。绿地、国际配套与成熟社区持续吸引全球买家与家庭,兼顾私密与都市生活。