Ons kantoor is lid van Baerz & Co Luxury Homes; een internationaal platform dat exclusieve woningmakelaars met elkaar verbindt. Neem contact op met ons secretariaat voor meer informatie over het landelijke aanbod, waarvan u hieronder een selectie kunt bekijken.

LISSE
Heereweg 304 - 2161 BV
Нидерланды

Miranda van der Wagt-Waasdorp profile image
Miranda van der Wagt-Waasdorp
Real estate agent
€1,695,000 k.k.
Жилая площадь
321m2
Размер участка
610m2
Спальни
4

Описание

Таунхаус Lisse является муниципальным памятником и предлагает 321 м² изысканных жилых помещений на участке 610 м² в самом сердце деревни. Этот величественный отдельно стоящий объект недвижимости полностью отреставрирован с уважением к своему историческому характеру: оригинальные детали сохранены, а современные стандарты комфорта полностью интегрированы.

Входная высокие парадные двери ведут в длинный коридор с аутентичным полом из гранито, который открывается в просторную кухню-гостиную. Здесь матово-белый кухонный гарнитур на заказ с деревянной барной стойкой, встроенной техникой и холодильником для вина создает атмосферу уюта и вдохновения, дополняемую газовым камином и французскими дверями в залитый солнцем сад. Рядом расположены парадная гостиная и многофункциональная комната на верхнем уровне, подходящая для работы или отдыха, завершая функциональную концепцию первого этажа. Элегантный кабинет, сохранённый оригинальный подвал и просторный гараж делают повседневную жизнь максимально комфортной.

На первом этаже — три просторные спальни, роскошная ванная с душем walk-in, отдельно стоящей ванной и двойной раковиной, а также универсальная прачечная или кабинет. Верхний этаж — это уединённый мастер-сьют с выходом на лоджию, ориентированную на запад, гардеробной и второй частной ванной комнатой.

Вокруг дома кованый забор, зрелые буки и структурированный ландшафт создают атмосферу уединения и спокойствия. Меры для устойчивого развития включают теплоизоляцию стен и крыши, энергосберегающие стеклопакеты, 32 солнечные панели и два конденсационных котла. Система сигнализации, потолочные споты, встроенная мебель и превосходно отделанные дубовые полы подчёркивают тщательную реновацию, превращая этот таунхаус в Лиссе в идеальное сочетание наследия и современного образа жизни.

Исследуйте Lisse с Baerz, вашим надежным личным консультантом по недвижимости

Эксклюзивный рынок Лиссе характеризуется ограниченной доступностью и индивидуальным подходом. Персональный советник дает доступ к внебиржевым резиденциям и помогает вести конфиденциальные переговоры. Его знания обеспечивают сделки с учетом приватности, качества и сроков, а интересы клиентов защищаются тщательной экспертизой и индивидуальными контрактами.

Избегайте распространенных ошибок

Международные покупатели часто тратят драгоценное время на дублирующиеся, устаревшие или вводящие в заблуждение онлайн-объявления, особенно учитывая, что почти 30% роскошных домов никогда не появляются на открытом рынке. Агенты продавца представляют интересы продавца, а не покупателя. Даже запрос информации о недвижимости может привести к тому, что агент продавца зарегистрирует вас как своего «клиента» без вашего согласия.
С Baerz Property Finders & Advisors вы полностью избегаете всех этих ошибок. Мы работаем исключительно в ваших интересах, предлагая независимое представительство, четкое руководство и доступ ко всем доступным объектам, включая возможности вне рынка, которые другие никогда не увидят.

Интересует Личный Консультант по Недвижимости?

Мы показываем вам все доступные дома в одном месте. Не стесняйтесь связаться с нами, чтобы узнать, как мы можем удовлетворить ваши потребности и защитить ваши интересы исключительно.

Особенности

Солнечные панели
Сигнализация
Передача права собственности
Запрашиваемая цена
€ 1.695.000 k.k.
Статус
beschikbaar
Принятие
in overleg
Строительство
Тип дома
Herenhuis
Тип здания
vrijstaande woning
Период строительства
1898
Энергетический рейтинг
C
Спальни
4
Ванные комнаты
2
Площадь и объем
Жилая площадь
321 m2
Другое внутреннее пространство
62 m2
Внешнее пространство, прилегающее к зданию
9 m2
Объем в кубических метрах
1349 m3
Размер участка
610 m2
Удобства
Mechanische ventilatie
Alarminstallatie
Zonnepanelen
In centrum
Baerz & Co Property Brochure

Брошюра

Видео

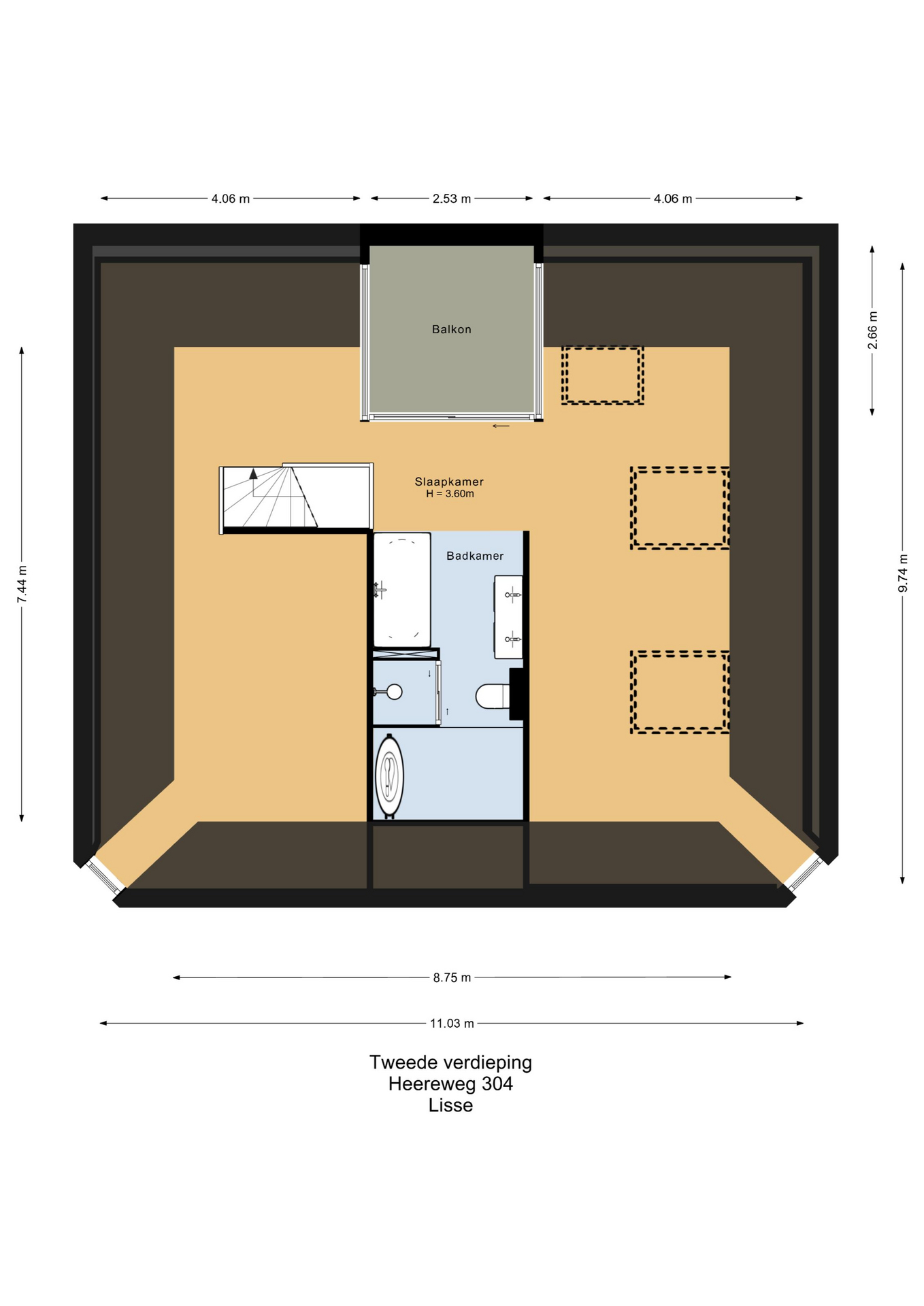
Планы этажей

Wilbrink & v.d. Vlugt Makelaars

Heereweg 231
2161 BG Lisse

info@wilbrinkvandervlugt.nl
+31 252 41 90 49

www.onsaanbod.nl

Запрос информации / просмотра

Miranda van der Wagt-Waasdorp profile image
Miranda van der Wagt-Waasdorp
Real estate agent

Покупка элитной недвижимости в Lisse

Лиссе приглашает к гармоничной жизни, сочетающей традиции и утонченную современность. Эксклюзивные дома, богатая культурная жизнь и удобства предлагают идеальный выбор для международных семей, инвесторов и взыскательных покупателей.