Baerz & Co is een landelijk samenwerkingsverband van zorgvuldig geselecteerde boutique luxury makelaars. Samen vormen wij één netwerk, met één gedeeld aanbod. De woningen die u op onze website ziet, zijn afkomstig van alle aangesloten kantoren binnen Baerz & Co. Daardoor is niet ieder object rechtstreeks door ons kantoor in verkoop, maar door een gespecialiseerde collega binnen ons netwerk. Heeft u een woning gevonden die u aanspreekt en wilt u meer informatie? Dan brengen wij u graag persoonlijk in contact met de betreffende verkoopmakelaar, zodat u direct en zorgvuldig wordt begeleid.

WILNIS
Timotheegras 13 - 3648 JE
Nederland

€1.225.000 k.k.
Woonoppervlakte
219m2
Perceeloppervlakte
849m2
Slaapkamers
7

Omschrijving

Aan de rand van het sfeervolle Wilnis, midden in het weidse en groene landschap van het Groene Hart, ligt deze vrijstaande woning op een plek waar rust, ruimte en privacy vanzelfsprekend zijn. Hier woon je omringd door natuur. Mét vrij uitzicht en een gevoel van vrijheid dat je iedere dag opnieuw ervaart, terwijl steden als Amsterdam, Utrecht, Amstelveen, Haarlem en Hilversum zich op comfortabele afstand bevinden. Alle dagelijkse voorzieningen, zoals (basis-)scholen, sportverenigingen, winkels en openbaar vervoer, zijn bovendien binnen handbereik. De villa is vanaf 2019 volledig en met veel aandacht voor mooie materialen gerenoveerd, Kosten noch moeite zijn gespaard om een perfect samenspel te creëren tussen modern wooncomfort en een warme, uitnodigende sfeer. Met een waterontharder en 26 zonnepanelen is ook duurzaamheid een belangrijk onderdeel van het geheel. Parkeren doe je eenvoudig op eigen terrein.

BEGANE GROND
Bij binnenkomst valt direct de royale hal op, die zorgt voor een prettige en open ontvangst. Vanuit deze representatieve hal heb je toegang tot het toilet, de vernieuwde meterkast voorzien van een 3 fase aansluiting, de multifunctionele ruimte en de heerlijk lichte woonkamer met open keuken. De L-vormige woonkamer bevindt zich aan de achterzijde van de woning en is een heerlijke plek om samen te komen. Grote raampartijen en de schuifpui zorgen voor een prachtige lichtinval en een naadloze verbinding met de tuin. Het vrije uitzicht over het groen maakt dat elk seizoen hier zijn charme heeft. De keramische vloer met vloerverwarming ( op de gehele BG), de subtiel geïntegreerde spotverlichting en de strak weggewerkte bekabeling dragen bij aan de rustige, moderne uitstraling. Aan de voorzijde van de woning ligt de indrukwekkende open keuken geplaats in 2019 , die met recht riant te noemen is. Het grote kookeiland vormt het centrale punt, perfect om samen te koken of gezellig aan te zitten. Aan beide zijden vind je stijlvolle kastenwanden met een compleet pakket aan inbouwapparatuur: een combi-oven, stoomoven, koelkast, vriezer, vaatwasser, inductiekookplaat, plafondafzuiging, Quooker en 2 wijnklimaatkasten. De gehele woning is voorzien van spotledverlichting met touch-dimmers, wat zorgt voor een sfeervolle en flexibele verlichting. Vanuit de centrale hal bereik je tevens de multifunctionele ruimte, voorheen de garage. Deze ruimte is nu volledig geïntegreerd in de woning en biedt talloze mogelijkheden, zoals een werkruimte, praktijk aan huis of extra leefruimte. Hier bevindt zich ook een moderne badkamer van 2022 voorzien van een dubbele regendouche ’s , wastafel, wc en design elektrische handdoekradiatoren, dus ook een slaapkamer op de begane grond behoort tot de mogelijkheden.
Een aparte ruimte voor de wasmachine en de wasdroger, een klein keukenblok en de netjes weggewerkte CV-installatie van 2020 maken de begane grond compleet. Vanuit deze bijkeuken heb je direct toegang tot de tuin.

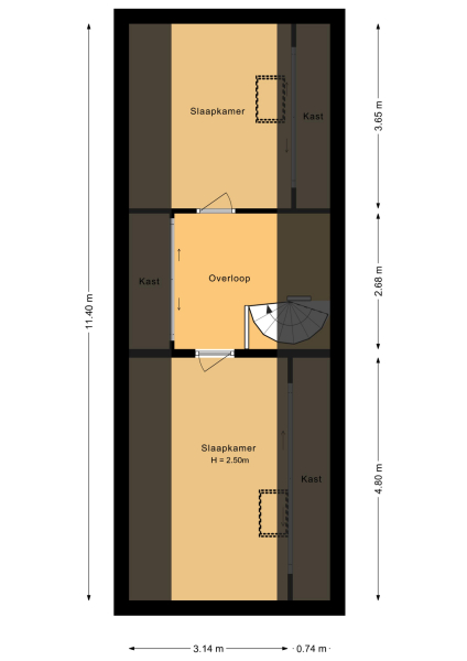
EERSTE VERDIEPING
Via de in 2020 gerenoveerde wenteltrap bereik je de eerste verdieping. Hier bevinden zich vier prima slaapkamers en de ruime, tweede badkamer. Alle slaapkamers zijn voorzien van airconditioning, tv-aansluiting en vaste internet aansluiting wat zorgt voor optimaal comfort in elk seizoen. De kamers aan de voorzijde zijn afgewerkt met een laminaatvloer, terwijl de twee slaapkamers aan de achterzijde en de overloop zijn voorzien van gespannen vloerbedekking. Beide slaapkamers aan de achterzijde hebben een eigen toegangsdeur naar het karakteristieke balkon, dat eveneens in 2020 is vernieuwd. De master bedroom beschikt over een ruime, vaste schuifkast, waar ook de TV aansluiting zich in bevindt.

TWEEDE VERDIEPING
De tweede verdieping is via de vaste wenteltrap bereikbaar en biedt nog eens twee slaapkamers, waarvan de kamer aan de achterzijde eveneens is voorzien van airconditioning. Beide kamers beschikken over een tv-aansluiting en ook vaste internetaansluiting en zijn netjes afgewerkt met laminaat en inbouwspots. Op de overloop bevindt zich daarnaast een praktische en ruime berging waarin netjes weggewerkte 2e CV-installatie van 2020.

TUIN
De tuin rondom de woning is met zorg aangelegd en perfect onderhouden. Dankzij een geavanceerd sproei- en druppelsysteem, gevoed door een pomp vanuit de sloot, blijft het groen in optimale conditie. Het ruime terras op het zuiden, voorzien van grote keramische tegels die naadloos aansluiten bij de vloer binnen, vormt een heerlijke plek om te genieten van zonnige dagen. Het elektrische zonnescherm is eenvoudig via een app te bedienen.
Het bijgebouw biedt bijzonder veel bergruimte en is zelfs voorzien van vloerverwarming. Aan de voorzijde een praktische berging waar ook de omvormer hangt van de PV installatie. Aan de achterzijde bevindt zich een luxe relaxruimte met sauna met een biokachel zodat er gekozen kan worden tussen een Finse sauna, een stoom sauna, kruidensauna en een geurensauna, regendouche, toilet en een houten keukenblok met twee horeca koelkasten, een plek waar ontspanning centraal staat. Het lager gelegen, aangrenzende terras biedt een prachtig uitzicht over het water en het omliggende groen en nodigt uit tot lange, ontspannen avonden. Achterin de tuin vind je diverse fruitbomen, waaronder een pruimenboom en een walnotenboom, en een volledig uitgeruste moestuin met water en elektriciteit. Door de gehele tuin is sfeervolle verlichting aangebracht en via een praktische achterom is de tuin ook buitenom bereikbaar. Een fantastische tuin waarin je kunt relaxen, kinderen eventueel een plek kunnen vinden om uitgebreid te spelen, waar je een enorm gevoel van ruimte en vrijheid in ervaart, een unieke plek! Vrijwel de gehele woning is bovendien voorzien van plissé horren, wat bijdraagt aan het comfort in de warmere maanden.

Deze woning is meer dan een huis, het is een plek waar luxe, rust en natuur samenkomen. Een thuis waar elk detail klopt en waar je iedere dag opnieuw geniet van de ruimte, het uitzicht en het leven buiten.

Wilnis is een plaats in de provincie Utrecht. Het maakt deel uit van de gemeente De Ronde Venen.
Enkele kenmerken van Wilnis:
Ligging: Wilnis is gelegen in het groene hart van Nederland, omgeven door polders en waterwegen. Het is gunstig gelegen ten opzichte van steden als Utrecht en Amsterdam.
Natuur: De omgeving van Wilnis staat bekend om zijn landelijke karakter en biedt mogelijkheden voor prachtige wandel- en fietstochten. Het is omringd door water, waaronder de rivier de Amstel.
Woonomgeving: Wilnis heeft een mix van nieuwbouw en historische woningen. Het is een rustige en aantrekkelijke woonomgeving vaak gekozen door gezinnen die op zoek zijn naar een landelijke sfeer met goede verbindingen naar stedelijke gebieden.
Voorzieningen: Ondanks de landelijke uitstraling zijn er in Wilnis de nodige voorzieningen zoals scholen, winkels en sportfaciliteiten. Het biedt een evenwichtige combinatie van landelijk wonen en nabijheid van voorzieningen.
Wateractiviteiten: Door de waterrijke omgeving zijn er mogelijkheden voor watersporten en recreatie. De Vinkeveense Plassen, bekend om hun heldere water, liggen in de buurt en bieden gelegenheid voor zwemmen, varen en andere wateractiviteiten.

Kortom, Wilnis is een aantrekkelijke woonplaats voor mensen die willen genieten van de rust en schoonheid van oer-Hollandse polders, terwijl ze toch dicht bij stedelijke voorzieningen willen zijn.

Kenmerken

Zonnepanelen
Air conditioning
Overdracht
Vraagprijs
€ 1.225.000 k.k.
Status
beschikbaar
Aanvaarding
in overleg
Bouw
Soort woonhuis
Villa
Soort bouw
vrijstaande woning
Bouwjaar
1989
Energieklasse
A
Soort dak
zadeldak
Slaapkamers
7
Badkamers
2
Oppervlakten en inhoud
Woonoppervlakte
219 m2
Overige inpandige ruimte
0 m2
Gebouwgebonden buitenruimte
4 m2
Externe bergruimte
11 m2
Inhoud
702 m3
Perceeloppervlakte
849 m2
faciliteiten
Mechanische ventilatie
Tv kabel
Buitenzonwering
Airconditioning
Schuifpui
Dakraam
Zonnepanelen
Natuurlijke ventilatie
Aan water
Aan rustige weg
In woonwijk
Vrij uitzicht
Landelijk gelegen
Baerz & Co Property Brochure

Brochure

Video’s

Plattegronden

11 Makelaars - Amsterdam

Mt. Lincolnweg 38 - 617
1033SN Amsterdam

info@11makelaars.nl
+31 20 20 50 208

www.11makelaars.nl

Informatie / bezichtigingsaanvraag

Niels Eering profile image
Niels Eering
Real Estate Agent

Een luxe woning kopen in Wilnis

Wilnis spreekt een internationale gemeenschap van veeleisende bewoners aan, met verfijnde voorzieningen en een rustige leefstijl. Dankzij deskundige begeleiding, exclusief aanbod en cultureel rijke omgeving blijft Wilnis blijvend aantrekkelijk voor hoogwaardige eigenaars en investeerders.