Ons kantoor is lid van Baerz & Co Luxury Homes; een internationaal platform dat exclusieve woningmakelaars met elkaar verbindt. Neem contact op met ons secretariaat voor meer informatie over het landelijke aanbod, waarvan u hieronder een selectie kunt bekijken.

Villa te koop in UDEN

UDEN Burgemeester Buskensstraat 14 - 5401 EE Nederland


Bram Van der Wielen profile image
Bram Van der Wielen
Real Estate Agent
+31 (0) 6 23 45 43 61
bram@kordaatmakelaars.nl

Kordaat Makelaars
Liessentstraat 9 a
5405 AH Uden
NETHERLANDS
+31 623454361
www.kordaatmakelaars.nl
info@kordaatmakelaars.nl

Woonoppervlakte
160m2
Perceeloppervlakte
702m2
Slaapkamers
3

Omschrijving

Vrijstaande woning met karakter, comfort en een prachtig bijgebouw

In een rustige en geliefde straat in Uden staat deze charmante vrijstaande woning, oorspronkelijk jaren '30, maar in 2003 volledig opnieuw en onder architectuur opgebouwd. Daarmee combineert dit huis het karakter van vroeger met het comfort en de duurzaamheid van nu. De woning is uitstekend geïsoleerd, voorzien van volledige isolatie, HR++ beglazing, zonnepanelen en een hybride warmtepomp – klaar voor de toekomst!

Omgeving en ligging
De woning is gelegen in een rustige en sfeervolle woonstraat in een van de oudere, karakteristieke wijken van Uden. Hier geniet je van de gemoedelijke sfeer, veel groen en alle voorzieningen binnen handbereik. Op korte afstand bevinden zich diverse winkels, supermarkten, scholen en sportvoorzieningen. Het levendige centrum van Uden is eenvoudig te bereiken – hier is een uitgebreid aanbod aan winkels, horecagelegenheden en culturele voorzieningen.

Voor natuurliefhebbers liggen de Maashorst en het Levensbomenbos op fietsafstand: prachtige natuurgebieden met volop wandel- en fietsroutes. Dankzij de gunstige ligging nabij de A50 ben je bovendien snel onderweg richting Eindhoven, Den Bosch of Nijmegen. Daarmee combineert deze locatie het beste van twee werelden: rustig wonen met uitstekende bereikbaarheid en voorzieningen dichtbij.

- Royale woonkamer met gashaard;
- Prachtige woonkeuken, luxe uitgevoerd met veel lichtinval en met zicht op de tuin;
- Hoogwaardige afwerking, hoge plafonds en comfortabele vloerverwarming op de begane grond;
- Drie luxe slaapkamers, waarvan twee in het hoofdgebouw;
- Een fraaie badkamer met o.a. vloerverwarming, ligbad en inloopdouche;
- Praktische garage voor stalling van minstens één voertuig;
- Sfeervolle tuin die in privacy is gelegen, met altijd wel ergens een zonnig plekje;
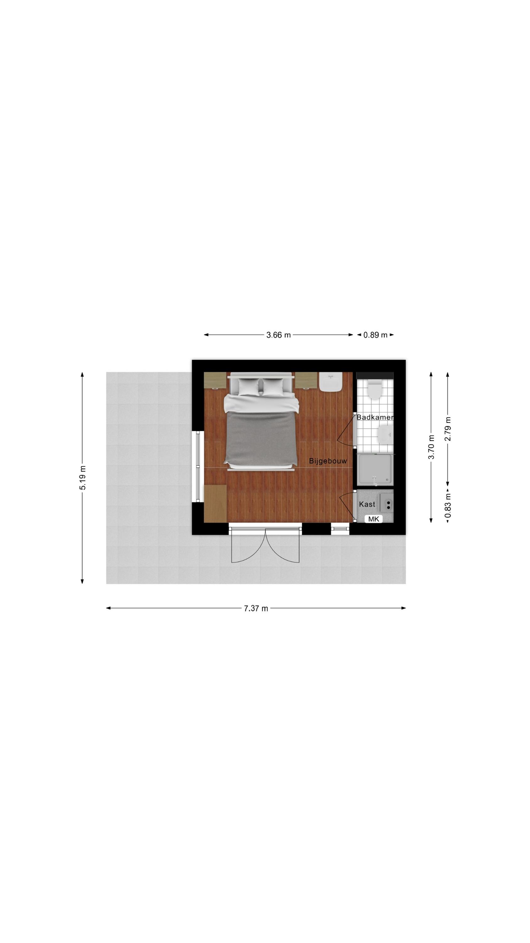
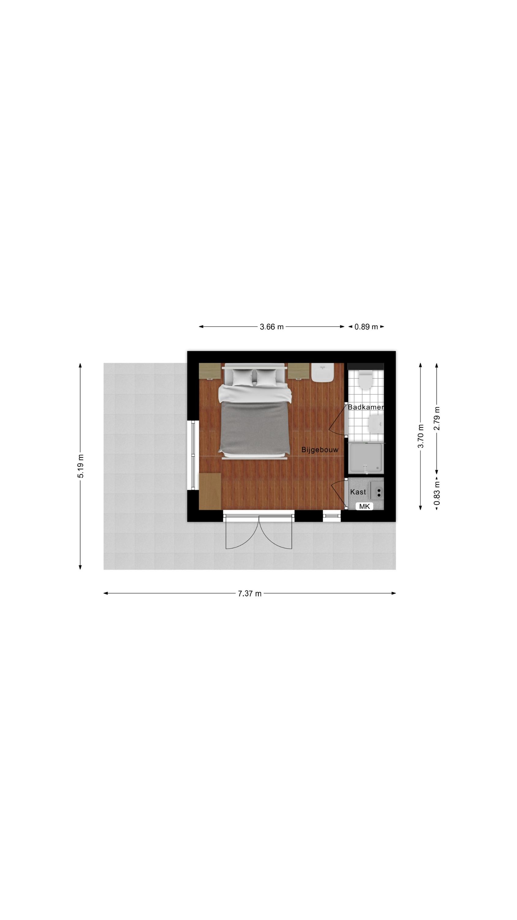
- Een goed geïsoleerd bijgebouw, multifunctioneel te gebruiken en met badkamer;
- Combinatie van sfeer en duurzaamheid dichtbij het centrum van Uden.

Indeling en wooncomfort

Binnen treft u een sfeervolle en lichte woning met een praktische indeling. De hal heeft een hoogwaardige afwerking, veel kastwanden en een garderobe. Hier bevind zich tevens de toiletruimte.

De royale living heeft veel lichtinval en is voorzien vloerverwarming en een gashaard. De woonkamer staat in open verbinding met de woonkeuken en is af te sluiten door de hoge taatsdeuren. Een praktische kelder dient als opslag en via de unieke opkamer naar boven is de eerste verdieping te bereiken.

De in luxe uitgevoerde keuken is modern en functioneel ingericht en biedt zeeën van ruimte, met uitzicht op de tuin is het hier heerlijk tafelen. De keuken is voorzien van inbouwapparatuur als keramische oven, combi oven-magnetron, stoomoven, Amerikaanse koelkast (met water aan-/afvoer) met Quooker. Voorbereiding voor inbouw koffiezetapparaat zijn aanwezig.

Verder beschikt de woning over twee ruime slaapkamers en een volledige badkamer. De slaapkamers zijn aan de voorzijde gelegen en zijn voorzien van hoogwaardige afwerking. Op de overloop is een airco gesitueerd die zowel kan koelen als verwarmen.

De betegelde badkamer is voorzien van vloerverwarming, een ligbad, een inloopdouche, wandcloset, wastafel, spiegelverwarming en instelbare mechanische ventilatie.

Tuin en buitenruimte

De fraai aangelegde tuin is een ware eyecatcher. Met meerdere terrassen, een gazon en borders met bloemen en planten is dit een heerlijke plek om te ontspannen en te genieten van het buitenleven. Op het eigen perceel bevinden zich tevens een garage en een ruime oprit met parkeergelegenheid voor meerdere auto’s.

Bijgebouw met vele mogelijkheden

Het vrijstaande bijgebouw is uitstekend geïsoleerd en voorzien van een badkamer en een eigen cv-installatie. Dit maakt het bij uitstek geschikt als kantoor aan huis, praktijkruimte, gastenverblijf of zelfs als mantelzorgwoning.

Kortom:
Burgemeester Buskensstraat 14 biedt de ideale combinatie van karakter, modern wooncomfort, duurzaamheid en een prachtige buitenruimte. Een unieke kans voor wie zoekt naar een vrijstaande woning met ruimte, privacy en toekomstwaarde – op een aantrekkelijke locatie in Uden.

Kenmerken

Overdracht
Vraagprijs
€ 869.000 k.k.
Status
beschikbaar
Aanvaarding
in overleg
Bouw
Soort woonhuis
Eengezinswoning
Soort bouw
vrijstaande woning
Bouwjaar
1930
Energieklasse
B
Soort dak
mansarde dak
Slaapkamers
3
Badkamers
1
Oppervlakten en inhoud
Woonoppervlakte
160 m2
Overige inpandige ruimte
6 m2
Externe bergruimte
22 m2
Inhoud
574 m3
Perceeloppervlakte
702 m2
faciliteiten
Mechanische ventilatie
Alarminstallatie
Airconditioning
Dakraam
Glasvezel kabel
Zonnepanelen
Aan rustige weg
Baerz & Co Property Brochure

Brochure

Informatie / bezichtigingsaanvraag

Video's

Foto's

Plattegronden