Baerz & Co is een landelijk samenwerkingsverband van zorgvuldig geselecteerde boutique luxury makelaars. Samen vormen wij één netwerk, met één gedeeld aanbod. De woningen die u op onze website ziet, zijn afkomstig van alle aangesloten kantoren binnen Baerz & Co. Daardoor is niet ieder object rechtstreeks door ons kantoor in verkoop, maar door een gespecialiseerde collega binnen ons netwerk. Heeft u een woning gevonden die u aanspreekt en wilt u meer informatie? Dan brengen wij u graag persoonlijk in contact met de betreffende verkoopmakelaar, zodat u direct en zorgvuldig wordt begeleid.

STAVOREN
De Bleeck 7 - 8715 EJ
Nederland

€600.000 k.k.
Woonoppervlakte
154m2
Perceeloppervlakte
266m2
Slaapkamers
5

Omschrijving

Boot aan huis, onderhoudsvriendelijk, energieneutraal A+++ 2020

Wonen aan open vaarwater, met het IJsselmeer om de hoek en een eigen aanlegplaats achter de woning, dat is wonen op een plek waar vrijheid, water en natuur samenkomen. Aan het rustige straatje De Bleeck, in een moderne en waterrijke villawijk in Stavoren, staat deze luxe en stijlvolle geschakelde kadewoning uit 2020 op een perceel van ca. 266 m².
Het moderne herenhuis met energielabel A+++ is met 27 zonnepanelen, een warmtepomp met boiler en kunststof kozijnen op hoogwaardig niveau gebouwd. Met maar liefst vijf slaapkamers, elk met een eigen en-suite badkamer is de kadewoning geschikt voor grote gezinnen of mensen die ruimte en privacy waarderen. De royale living met luxe open keuken vormt het hart van de woning en biedt een prachtig uitzicht op het water en de tuin. Dankzij de grote raampartijen komt het maritieme gevoel hier letterlijk naar binnen.
Achter de woning ligt uw eigen aanlegplaats (ca.13 x 7m) voor een zeilboot, sloep of kruiser. De gedeelde steiger met zwemtrap ligt aan rustig privé vaarwater dat is verbonden met het uitgebreide Friese vaargebied en het IJsselmeer. De voorkant van de woning is ook gelegen aan vaarwater, slechts gescheiden door de straat.
De woning heeft een dubbelbestemming en mag zowel permanent als recreatief worden gebruikt. Ook verhuur behoort tot de mogelijkheden, wat dit object tevens interessant maakt als investering.
Kortom: een moderne, duurzame en royale woning op een unieke locatie aan het water, waar wonen, recreëren en watersport perfect samenkomen.
INDELING

BEGANE GROND
Lichte entree, hal met meterkast en modern royaal toilet.
De ruime en lichte woonkamer is gesitueerd aan de achterzijde en biedt door de grote raampartijen een prachtig uitzicht over de tuin en het water. Openslaande deuren zorgen voor een directe verbinding met het terras en de steiger.
De luxe open keuken vormt een centraal onderdeel van de living en is uitgevoerd met moderne inbouwapparatuur en ruime werkbladen. Vanuit de keuken heeft u speels zicht op de waterpartij aan de straatzijde.
De gehele begane grond is voorzien van een stijlvolle tegelvloer met comfortabele vloerverwarming.
EERSTE VERDIEPING
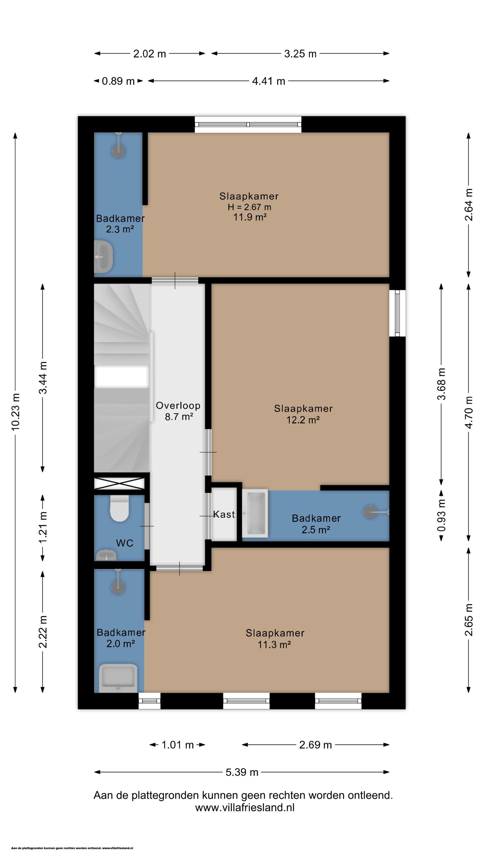
Overloop met toegang tot drie ruime slaapkamers met elk een eigen ensuite badkamer betegeld in mediterrane stijl, voorzien van inloopdouche en wastafelmeubel. De verdiepingsvloer is afgewerkt met een duurzame pvc-vloer en ook hier is vloerverwarming aanwezig. Alle kamers zijn individueel qua temperatuur in te regelen. Op de overloop is een tweede toilet en grote kastruimte gesitueerd.

TWEEDE VERDIEPING
Via een vaste trap bereikt u de tweede verdieping met de vierde en vijfde royale slaapkamers, eveneens voorzien van eigen badkamers. De hoge plafonds met stoere balken in het zicht geven de kamers een ruimtelijk loft gevoel. Vanaf deze verdieping heeft u een bijzonder uitzicht over de omgeving en bij helder weer is zelfs de overkant van het IJsselmeer te zien. Ook hier zijn de kamers individueel qua temperatuur in te regelen. Op de overloop is een derde toilet, ruimte voor de witgoedopstelling en een toegang naar de technische ruimte.

TUIN/SCHUUR/OVERKAPPING/LIGPLAATS
De achtertuin met verzorgde borders ligt op het noordwesten en grenst direct aan het water. Hier vindt u een beschut terras waar u heerlijk kunt tafelen en genieten van de rust, het uitzicht en de boten.
Aan de steiger staat een houten overkapping met berging, een ideale plek om beschut buiten te zitten, zelfs wanneer het weer wat minder is. De bergruimte is groot genoeg voor fietsen, tuingereedschap en/of bootkussens.
De steiger met zwemtrap (gedeeld met nr. 6) maakt het mogelijk om direct vanuit de tuin te zwemmen, vissen of in de boot te stappen. De aanlegplaats is geschikt voor een zeilboot, sloep of kruiser en het vaarwater is verbonden met het hele Friese Merengebied.
BIJZONDERHEDEN
• Bouwjaar 2020
• Energielabel A+++
• Perceel ca. 266 m2 plus mandelige waterpartij
• Achterom, overkapping met schuur
• Eigen ligplaats (ca. 13 x 7m) aan de steiger
• Directe vaarverbinding met Friese meren en IJsselmeer
• 5 ruime slaapkamers met 5 en-suite badkamers
• Energieneutraal gebouwd
• Warmtepomp met boiler en 27 zonnepanelen
• Gehele woning voorzien van vloerverwarming
• Individueel en zone-gestuurd verwarmingssysteem via smartphone
• Kunststof kozijnen
• Glasvezel
• Zowel permanent als recreatief gebruik toegestaan
• Verhuur toegestaan

STAVOREN
Stavoren is een prachtig Elfsteden stadje gelegen aan het IJsselmeer. Er zijn voldoende voorzieningen als een grote supermarkt, diverse winkeltjes, jachthavens, restaurants, een basisschool, kinderopvang, watersportbedrijven en (sport)verenigingen.
In de directe omgeving zijn diverse zwemstranden aan het IJsselmeer. Stavoren grenst aan het glooiende en bosrijke Gaasterland met een uitgebreid netwerk aan wandel en fietspaden. De combinatie van water, bossen en stranden zorgt voor een unieke woonbeleving. Het gehele jaar door zijn er diverse evenementen en activiteiten, zie ook www.stavoren.nl.
Vanuit Stavoren zijn er goede uitvalswegen richting Balk, Lemmer, en de A6 richting Amsterdam of de afsluitdijk richting Noord-Holland. Vanuit Stavoren is een goede treinverbinding naar Sneek-Leeuwarden. In het seizoen is er een veerpont naar Enkhuizen.

DISCLAIMER
Deze informatie is met zorg samengesteld en deels gebaseerd op gegevens van de verkoper en/of derden. Hoewel gestreefd is naar een zo accuraat mogelijke weergave, kunnen aan de inhoud, waaronder teksten, bijlagen, plattegronden en maatvoering, geen rechten worden ontleend.
De vermelde oppervlakten zijn gemeten conform de NEN 2580-meetinstructie, waarbij afwijkingen niet zijn uit te sluiten. Deze aanbieding is geheel vrijblijvend en bedoeld als uitnodiging tot het uitbrengen van een bod. Voor objecten ouder dan 25 jaar worden standaard een ouderdoms- en indien van toepassing asbestclausule opgenomen in de koopakte.

Kenmerken

Zonnepanelen
Overdracht
Vraagprijs
€ 600.000 k.k.
Status
beschikbaar
Aanvaarding
in overleg
Bouw
Soort woonhuis
Herenhuis
Soort bouw
geschakelde woning
Bouwjaar
2020
Energieklasse
A+++
Soort dak
zadeldak
Slaapkamers
5
Badkamers
5
Oppervlakten en inhoud
Woonoppervlakte
154 m2
Overige inpandige ruimte
0 m2
Externe bergruimte
4 m2
Inhoud
568 m3
Perceeloppervlakte
266 m2
faciliteiten
Mechanische ventilatie
Tv kabel
Glasvezel kabel
Zonnepanelen
Natuurlijke ventilatie
Aan water
Aan rustige weg
In woonwijk
Vrij uitzicht
Aan vaarwater
Baerz & Co Property Brochure

Brochure

Video’s

Plattegronden

11 Makelaars - Amsterdam

Mt. Lincolnweg 38 - 617
1033SN Amsterdam

info@11makelaars.nl
+31 20 20 50 208

www.11makelaars.nl

Informatie / bezichtigingsaanvraag

Niels Eering profile image
Niels Eering
Real Estate Agent

Een luxe woning kopen in Stavoren

Stavoren verenigt rijke maritieme historie met hedendaags comfort. Wie privacy, cultuur en verfijnde voorzieningen zoekt, vindt hier een aantrekkelijk aanbod. De sfeer, woningkeuze en gemeenschap spreken internationale kopers en gezinnen aan die rust en echt Nederlands wonen waarderen.