Baerz & Co is a nationwide partnership of carefully selected boutique luxury real estate agents. Together, we form a single network with a shared portfolio. The properties you see on our website come from all affiliated offices within Baerz & Co. As a result, not every property is sold directly by our office, but by a specialized colleague within our network. Have you found a property that appeals to you and would you like more information? We will be happy to put you in touch with the relevant sales agent, so that you receive direct and careful guidance.

POREč
Kroatië

Niels Eering profile image
Niels Eering
Real Estate Agent
€1.562.500
Woonoppervlakte
203m2
Perceeloppervlakte
1013m2
Slaapkamers
4

Omschrijving

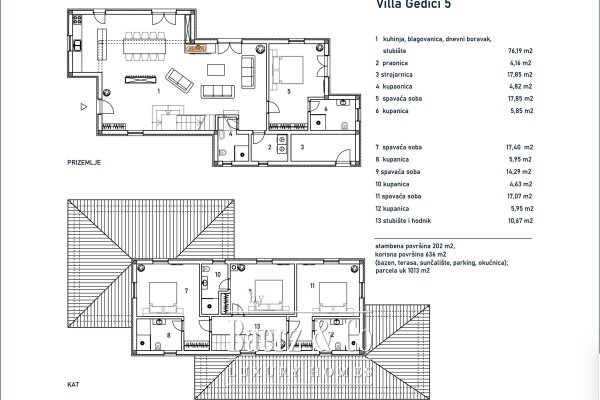
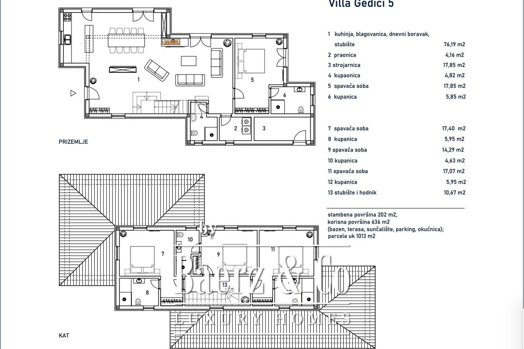
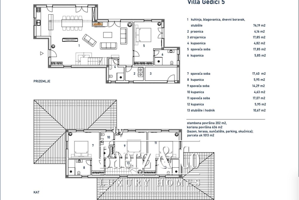
Villa Poreč in mediterrane stijl bevindt zich net achter de historische kustlijn van Istrië en combineert heldere architectuur met de warmte van het zuiden. De villa beschikt over 203 m² woonoppervlak en een fraai aangelegde kavel van 1.013 m², waar balans tussen licht, privacy en het buitenleven centraal staat.

De begane grond verwelkomt met een entreehal die een rustige sfeer neerzet, waarna een open keuken en eetkamer zich ontvouwen. De woonkamer is naadloos georiënteerd op het terras, waardoor het sociale leven zich moeiteloos naar buiten verplaatst. Op het zonnige terras vindt u een houten vlonder die het infinity-zwembad omlijst en een tastbare verbinding met de tuin creëert. Een slaapkamer op de begane grond met privébadkamer heeft directe toegang tot het terras. Verder zijn er praktische voorzieningen zoals een gastentoilet, wasruimte en technische ruimte.

Op de verdieping bieden drie royale slaapkamers elk een eigen, discreet en suite badkamer voor optimale rust en privacy. Functionaliteit en ingetogen innovatie komen samen dankzij zwembadverwarming, voorbereiding op zonne-energie en twee overdekte parkeerplaatsen.

Deze villa te koop in Poreč ademt de mediterrane levensstijl waarin proportie, licht en een doordachte benadering van hedendaags wonen samenkomen.

Ontdek Poreč met Baerz, Uw Vertrouwde Personal Property Finder & Advisor

Het lokale luxesegment vraagt om expertise en discretie. Adviseurs met diepgaande kennis zijn onmisbaar voor toegang tot off-market deals, het realiseren van de beste condities bij biedingen en het beoordelen van de integriteit van vastgoed. Betrouwbare vertegenwoordiging beschermt uw belangen in juridische, logistieke en culturele context – cruciaal voor waarde en rendement in deze verfijnde kustmarkt.

Vermijd veelvoorkomende valkuilen

Internationale kopers verspillen vaak kostbare tijd aan dubbele, verouderde of misleidende online aanbiedingen, en ook omdat bijna 30% van de luxe woningen nooit openbaar op de markt verschijnt. Verkopersmakelaars behartigen de belangen van de verkoper, niet die van kopers. Alleen al het aanvragen van informatie over een woning kan ertoe leiden dat een verkoopmakelaar u zonder uw toestemming als “cliënt” registreert.
Met Baerz Property Finders & Advisors voorkomt u al deze valkuilen volledig. Wij werken uitsluitend in uw belang en bieden onafhankelijke vertegenwoordiging, heldere begeleiding en toegang tot alle beschikbare woningen, inclusief off-market aanbiedingen die anderen nooit te zien krijgen.

Interesse in een Personal Property Advisor?

Wij tonen u alle beschikbare woningen op één plek. Neem gerust contact met ons op om te zien hoe wij aan uw wensen kunnen voldoen en uitsluitend uw belangen zullen beschermen.

Kenmerken

Overdracht
Vraagprijs
€ 1.562.500
Referentie
977398
EUR
Bouw
Soort woonhuis
Villa
Slaapkamers
4
Badkamers
4
Oppervlakten en inhoud
Woonoppervlakte
203 m2
Perceeloppervlakte
1013 m2
Baerz & Co Property Brochure

Brochure

Video’s

Informatie / bezichtigingsaanvraag

Niels Eering profile image
Niels Eering
Real Estate Agent

Een luxe woning kopen in Poreč

Poreč biedt een verfijnde gemeenschap, zeldzame vastgoedkansen en een bruisend cultureel leven. Naadloze dienstverlening, elegant wonen en internationale bereikbaarheid maken de stad blijvend aantrekkelijk voor een kritisch publiek van bewoners en investeerders.