Baerz & Co is een landelijk samenwerkingsverband van zorgvuldig geselecteerde boutique luxury makelaars. Samen vormen wij één netwerk, met één gedeeld aanbod. De woningen die u op onze website ziet, zijn afkomstig van alle aangesloten kantoren binnen Baerz & Co. Daardoor is niet ieder object rechtstreeks door ons kantoor in verkoop, maar door een gespecialiseerde collega binnen ons netwerk. Heeft u een woning gevonden die u aanspreekt en wilt u meer informatie? Dan brengen wij u graag persoonlijk in contact met de betreffende verkoopmakelaar, zodat u direct en zorgvuldig wordt begeleid.

OUDERKERK AAN DE AMSTEL
Kerkstraat 51 - 1191 JD
Nederland

Niels Eering profile image
Niels Eering
Real Estate Agent
€1.625.000 k.k.
Woonoppervlakte
200m2
Perceeloppervlakte
237m2
Slaapkamers
5

Omschrijving

Kerkstraat 51, 1191 JD Ouderkerk aan de Amstel

Kerkstraat 51 is een stijlvolle en royaal opgezette woonhuis, gelegen op een uitzonderlijke plek aan het water in de historische dorpskern van Ouderkerk aan de Amstel. Deze woning combineert het comfort en de luxe van modern wonen met een unieke ligging aan een zijtak van de Amstel. Met circa 200 m² woonoppervlak, meerdere slaapkamers, twee badkamers en een zonnig terras aan het water biedt deze woning een hoogwaardig en veelzijdig woonprogramma.

De woning maakt deel uit van een kleinschalig en architectonisch verzorgd ensemble van drie geschakelde villa’s en kenmerkt zich door een doordachte indeling, hoogwaardige afwerking en een prettige lichtinval op alle verdiepingen. Hier woont u rustig en beschut, terwijl alle voorzieningen, horeca en de stad Amsterdam zich op korte afstand bevinden.

Indeling
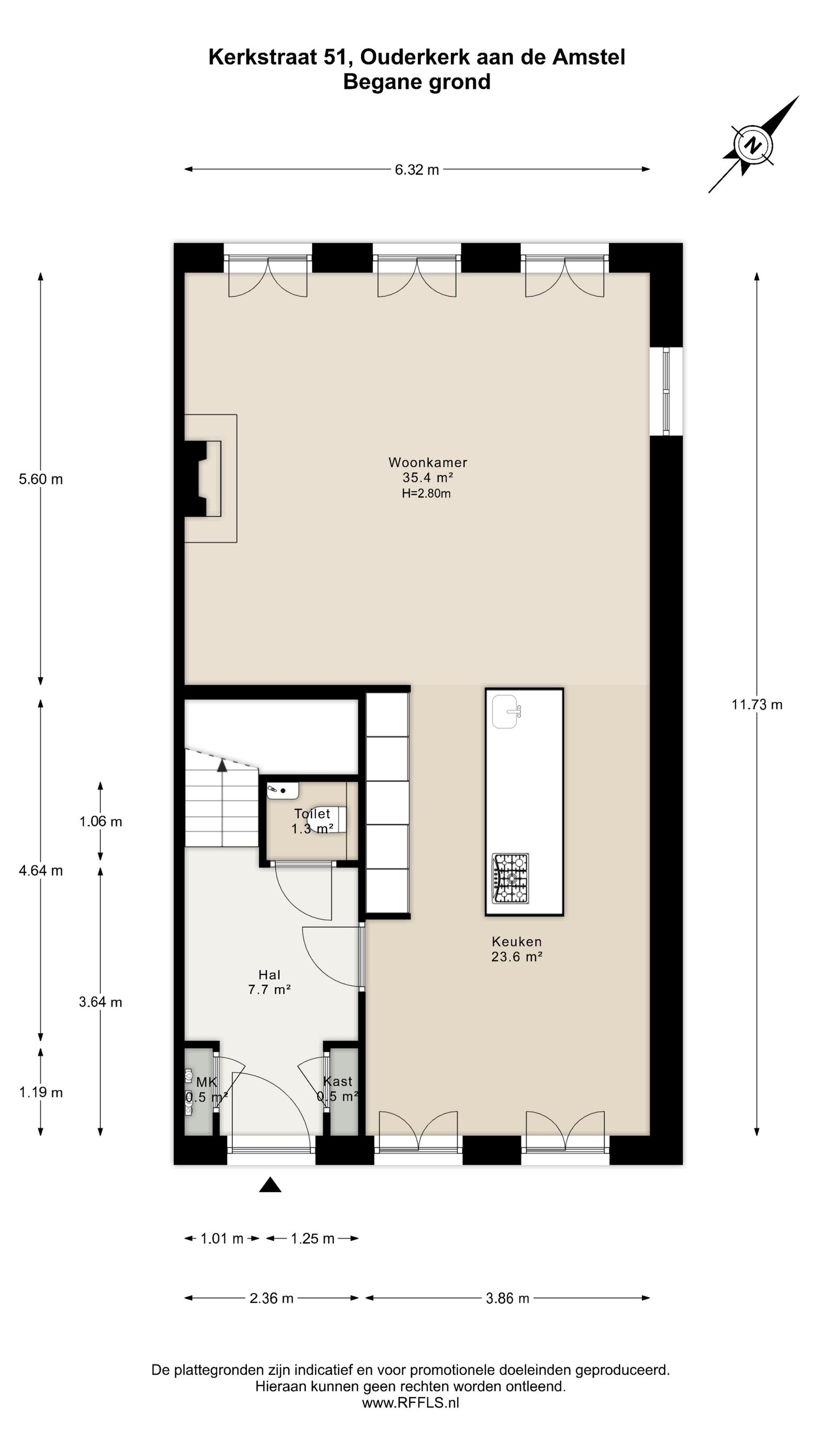
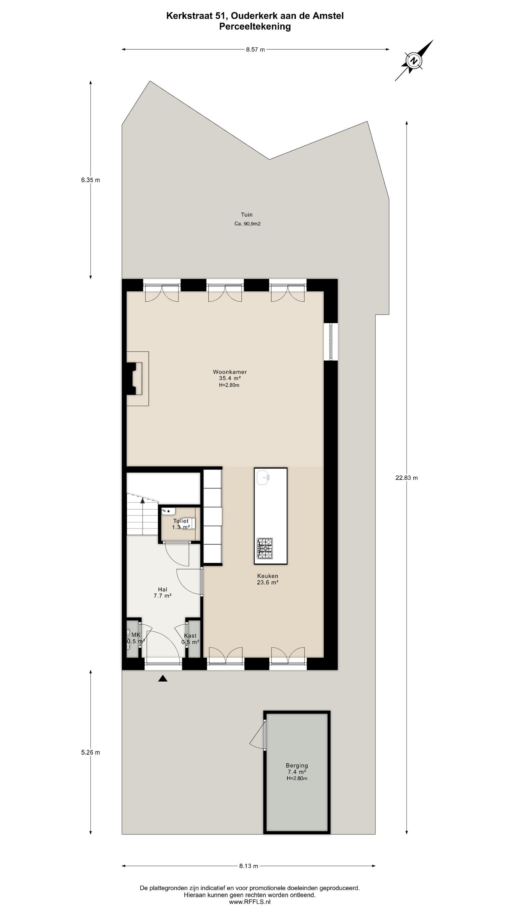
Begane grond
Via de entree betreedt u de ruime hal met vaste garderobekast en separaat gastentoilet. Vanuit de hal heeft u toegang tot de royale woonverdieping, waar de eetkeuken met kookeiland naadloos overloopt in de sfeervolle en lichte woonkamer. De open haard vormt een stijlvol middelpunt en zorgt voor extra warmte en ambiance. De gehele begane grond is voorzien van vloerverwarming.

De keuken is compleet uitgerust met hoogwaardige inbouwapparatuur, waaronder een 5-pits gasfornuis, vaatwasser, oven, koel-vriescombinatie en een Quooker. Aansluitend bevindt zich een praktische bijkeuken met extra bergruimte.

Dankzij de grote raampartijen voelt deze verdieping bijzonder licht en ruim aan. Aan de achterzijde geven drie openslaande deuren toegang tot het zonnige terras.

Het terras is afgewerkt met antracietkleurige tegels en loopt door tot aan de eigen steiger, gelegen aan een zijtak van de Amstel. Een heerlijke plek om op zomerse avonden met vrienden te genieten van een borrel en het uitzicht over het water, en in de winter behoort schaatsen hier zelfs tot de mogelijkheden. In de voortuin bevindt zich een separate berging van circa 7 m², voorzien van elektra. Langs de woning is tevens een achterpad aanwezig.

Eerste verdieping
Via het centrale trappenhuis met bovenlicht bereikt u de eerste verdieping. De ruime overloop profiteert van veel daglicht dankzij de lichtkoepel op de tweede verdieping. Op deze verdieping bevinden zich twee ruime slaapkamers en een extra kamer die uitstekend geschikt is als werk- of studeerkamer.

De royale hoofdslaapkamer aan de achterzijde beschikt over airconditioning en een afsluitbare inloopkast met schuifdeuren en biedt directe toegang tot de en-suite badkamer. De badkamer is voorzien van vloerverwarming, een ligbad met bubbelsysteem, een inloopdouche en een dubbel wastafelmeubel en is tevens bereikbaar vanaf de overloop.

Aan de voorzijde bevinden zich de tweede slaapkamer (eveneens met airconditioning) en de derde kamer. Daarnaast is er op deze verdieping een separaat toilet aanwezig.

Tweede verdieping
De tweede verdieping beschikt over twee ruime slaapkamers en een tweede badkamer, voorzien van een toilet, wastafel en douche. Beide slaapkamers zijn aan twee zijden voorzien van dakkapellen, beschikken over vaste kastenwanden met schuifdeuren en zijn uitgerust met airconditioning.
Centraal op deze verdieping bevindt zich de technische ruimte met aansluitingen voor wasmachine en droger, evenals de C.V.-installatie en mechanische ventilatie. Daarnaast is er nog een separate berging aanwezig.

Gebouw
Deze stijlvolle woonvilla combineert klassieke architectuur met het comfort van modern wonen en maakt deel uit van een kleinschalig geheel van drie-onder-een-kapwoningen. Dankzij het relatief recente bouwjaar is de woning uitstekend geïsoleerd en voorzien van onder meer HR++ beglazing en ankerloze spouwmuren, wat bijdraagt aan een hoog wooncomfort en een prettige geluidsisolatie. De zorgvuldig gekozen vormgeving, materialen en kleurstelling zorgen voor een rustige en tijdloze uitstraling.

Locatie en omgeving
Kerkstraat 51 is gelegen op een uitzonderlijke locatie in de historische dorpskern van Ouderkerk aan de Amstel. Direct aan het oude haventje en met vrij uitzicht over de Amstel woont u hier op een plek waar historie, water en levendigheid samenkomen. Ouderkerk aan de Amstel is sfeervol, kleinschalig en rijk aan karakter.

Op loopafstand bevinden zich diverse restaurants, terrassen en speciaalzaken, waaronder gerenommeerde adressen als Ron Gastrobar en SAAM Restaurant van Jasper Hermans, evenals alle dagelijkse voorzieningen zoals supermarkten, scholen en sportfaciliteiten. De directe ligging aan het water nodigt uit tot wandelen en fietsen langs de Amstel, een boottocht of simpelweg genieten van het uitzicht en het voorbijvarende vaarverkeer.

De dorpskern van Ouderkerk aan de Amstel is aangewezen als beschermd dorpsgezicht en rijk aan cultuurhistorie. Karakteristieke bezienswaardigheden zoals de Amstelkerk, Molen De Zwaan, de houten Kerkbrug en de Joodse begraafplaats onderstrepen het unieke en authentieke karakter van deze bijzondere woonomgeving.

Bereikbaarheid
De bereikbaarheid is zeer goed. Met de auto bent u binnen enkele minuten op de A2, A9 en A10, waardoor onder meer Amsterdam, Schiphol en Utrecht snel te bereiken zijn. Ook met het openbaar vervoer en de fiets is de woning goed bereikbaar; via de Amsteldijk fietst u in circa 30 minuten naar het centrum van Amsterdam.

Parkeren
Parkeren in de omgeving is mogelijk op straat. Dit is een blauwe zone, waar bewoners van die zone een ontheffing voor kunnen als ze geen parkeermogelijkheid hebben op eigen terrein, en ook niet beschikken over een andere gereserveerde parkeermogelijkheid – bijvoorbeeld in een parkeergarage. Per ontheffing brengt de gemeente € 48.50,- (tarief 2026) aan leges in rekening. Per woonadres is maximaal één ontheffing beschikbaar.

Omschrijving registergoed
Het woonhuis met ondergrond en tuin, plaatselijk bekend te 1191 JD Ouderkerk aan de Amstel als Kerkstraat 51, kadastraal bekend gemeente Ouder-Amstel, sectie C nummer 4506, groot twee are en twee centiare en het onverdeeld één/derde (1/3e) aandeel in het mandelige perceel grond, kadastraal bekend gemeente Ouder-Amstel, sectie C nummer 4570, groot vijfendertig centiare.

Erfdienstbaarheden en kwalitatieve verplichting
Ten aanzien van met betrekking tot het verkochte bestaande erfdienstbaarheden, wordt verwezen naar voormelde akte van levering.

Bijzonderheden
- Woonoppervlak van circa 200m² (gemeten conform NEN 2580 meting);
- Externe berging in de voortuin;
- Drie luxueuze geschakelde woning als kleinschalig nieuwbouwproject gebouwd in 2007;
- Toegankelijk via het recht van overpad vanaf ’het Kampje’;
- Alarminstallatie aanwezig;
- Vier ruime slaapkamers en een werkkamer;
- Airconditioning aanwezig;
- Energielabel A;
- Zonnig en royaal buiten terras;
- Oplevering in overleg.

Deze informatie is door ons met de nodige zorgvuldigheid samengesteld. Onzerzijds wordt echter geen enkele aansprakelijkheid aanvaard voor enige onvolledigheid, onjuistheid of anderszins, dan wel de gevolgen daarvan. Alle opgegeven maten en oppervlakten zijn indicatief. Koper heeft zijn eigen onderzoek plicht naar alle zaken die voor hem of haar van belang zijn. Met betrekking tot deze woning is de makelaar adviseur van verkoper. Wij adviseren u een deskundige (NVM-)makelaar in te schakelen die u begeleidt bij het aankoopproces. Indien u specifieke wensen heeft omtrent de woning, adviseren wij u deze tijdig kenbaar te maken aan uw aankopend makelaar en hiernaar zelfstandig onderzoek te (laten) doen. Indien u geen deskundige vertegenwoordiger inschakelt, acht u zich volgens de wet deskundige genoeg om alle zaken die van belang zijn te kunnen overzien. Van toepassing zijn de NVM voorwaarden.

Kenmerken

Alarm system
Air conditioning
Overdracht
Vraagprijs
€ 1.625.000 k.k.
Status
beschikbaar
Aanvaarding
in overleg
Bouw
Soort woonhuis
Herenhuis
Soort bouw
hoekwoning
Bouwjaar
2007
Energieklasse
A
Soort dak
samengesteld dak
Slaapkamers
5
Badkamers
2
Oppervlakten en inhoud
Woonoppervlakte
200 m2
Overige inpandige ruimte
0 m2
Externe bergruimte
7 m2
Inhoud
795 m3
Perceeloppervlakte
237 m2
faciliteiten
Mechanische ventilatie
Alarminstallatie
Airconditioning
Rookkanaal
Frans balkon
Dakraam
Natuurlijke ventilatie
Aan water
Aan rustige weg
Vrij uitzicht
Beschutte ligging
Aan vaarwater
Baerz & Co Property Brochure

Brochure

Video’s

11 Makelaars - Amsterdam Noord

Mt. Lincolnweg 36 - 617
1033SN Amsterdam

info@11makelaars.nl
+31 20 20 50 208

www.11makelaars.nl

Informatie / bezichtigingsaanvraag

Niels Eering profile image
Niels Eering
Real Estate Agent

Een luxe woning kopen in Ouderkerk aan de Amstel

Ouderkerk aan de Amstel brengt verfijnd wonen, rijke historie en een internationale gemeenschap samen. Bewoners genieten privacy, uitstekende voorzieningen en directe toegang tot Amsterdam, met zorgvuldige lokale service en tijdloze rivierpanorama’s.