Ons kantoor is lid van Baerz & Co Luxury Homes; een internationaal platform dat exclusieve woningmakelaars met elkaar verbindt. Neem contact op met ons secretariaat voor meer informatie over het landelijke aanbod, waarvan u hieronder een selectie kunt bekijken.

Landgoed te koop in OIRSCHOT

OIRSCHOT Heerenbeek 1 - 5688 MN Nederland


Jeanette van Haaften profile image
Jeanette van Haaften
Real Estate Agent
+31 (0)41 86 80 050
info@bijzonderwonen.com

Bijzonder Wonen Makelaardij
Heilige Geeststraat, 11
5301CP Zaltbommel
NETHERLANDS
+31 41 868 00 50
www.bijzonderwonen.com
info@bijzonderwonen.com

Woonoppervlakte
673m2
Perceeloppervlakte
9758m2
Slaapkamers
5

Omschrijving

Op sprookjesachtige locatie staat midden in de bossen NSW-Landgoed Heerenbeek, een in topconditie verkerende monumentale buitenplaats met A+-label. Bij het hoofdhuis staan een riant koetshuis (Heerenbeek 2) en een kapschuur voor meerdere auto ’s.
Het geheel staat op bijna een hectare erfpachtgrond van Stichting Het Brabants Landschap, ingericht met volwassen bomen, heesters, gazon en een tuinhuis.

Hal, eetkamer en zitkamer met haarden, hoge stucplafonds en parketvloer, volledig geoutilleerde woonkeuken met hoogwaardige apparatuur en bijkeuken op de begane grond.
Bovenhal met toilet, suite met kleedkamer en aangrenzende badkamer, twee gastenslaapkamers met een gezamenlijke 2e badkamer en een grote bergkamer op de eerste verdieping.
Overloop met toilet, gastenslaapkamer annex ontspanningsruimte met aangrenzende wellness met inloopdouche, sauna en ligbad onder de uitstekend geïsoleerde hoge kap op de tweede verdieping.

Gemeentelijke monumenten

Bruto inhoud: 2.155 m³
Gebruiksoppervlak wonen: 673 m²
(waarvan 195 m2 in het koetshuis Heerenbeek 2)
Perceeloppervlak: 9.758 m²
Bouwjaar: 1864; herbouwd in 1998

Indeling begane grond:
Via een lange oprijlaan is de majestueuze entree bereikbaar. Aan de hal grenzen de woonkamer, keuken en bijkeuken, waar eveneens een buitendeur is.
De volledig op de natuur gerichte woonkamer bestaat uit een zitkamer en een eetkamer. Er zijn twee haarden en vier paar openslaande deuren naar de tuin. De 3.60m hoge stucplafonds zorgen in combinatie met de hoeveelheid licht door de hoge ramen voor een magnifieke ruimtelijke beleving. Dubbele deuren leiden naar de gezellige woonkeuken. Deze volledig geoutilleerde keuken is ingericht met een klassiek Tinello keukenmeubel met een natuurstenen werkblad, spoeleiland en hoogwaardige apparatuur. In de toren die aan de woonkeuken grenst is een provisieruimte. In de woonkeuken zijn twee paar dubbele deuren naar de tuin. De gehele begane grondvloer is voorzien van vloerverwarming.

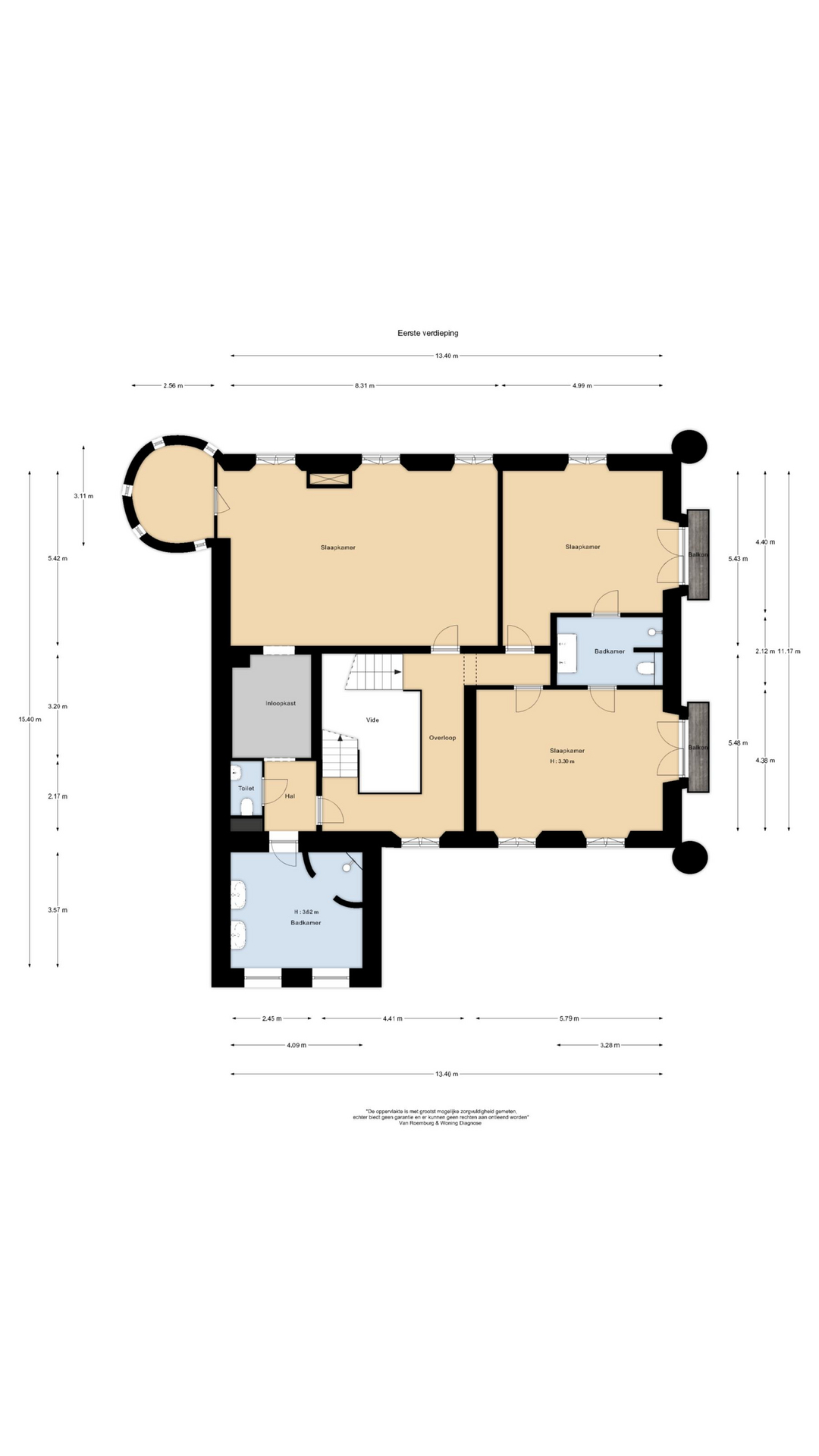
Indeling eerste verdieping:
Via het imposante trappenhuis is de eerste verdieping bereikbaar. De eyecatcher op deze verdieping is de suite; een natuurgerichte slaapkamer van 45 m2 met hoog stucplafond, drie paar dubbele deuren naar de Franse balkons, een aangrenzende kleedkamer en een privébadkamer. Vanuit deze suite is eveneens toegang tot de toren waar desgewenst ruimte is voor een schoenencollectie. Op deze verdieping zijn nog twee slaapkamers, eveneens met Franse balkons. Tussen deze slaapkamers bevindt zich de 2e badkamer met dubbel wastafelmeubel, inloopdouche en toilet. Op de overloop is nog een separaat 2e toilet. De vloer in de suite is belegd met luxe tapijt en de vloeren van de twee andere slaapkamers zijn belegd met parket. Ook deze verdieping is geheel voorzien van vloerverwarming.

Indeling tweede verdieping:
Onder de ruim drie meter hoge geïsoleerde kap bevinden zich een grote leefruimte, bestaande uit een slaapkamer annex ontspanningsruimte met aangrenzende wellness. Ideaal om in te richten als gastenruimte, eigen gym annex wellness. In de ruimte, die we hebben aangemerkt als wellness, is een grote inloopdouche en een 4-persoons sauna, terwijl in de toren -onder een sterrenhemel van Ledlampjes- een ligbad is van waaruit je zo het bos in kijkt. Ook op deze verdieping is vloerverwarming als hoofdverwarming aanwezig.

Indeling koetshuis:
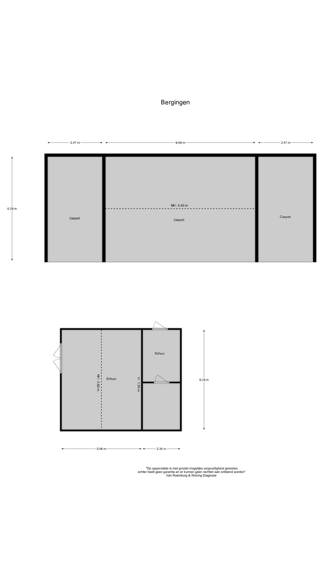
Het vrijstaande koetshuis is onderverdeeld in een tuingerichte zelfstandige werkruimte met pantry, toilet en bergruimte, een woonkamer met vide, woonkeuken en badkamer op de begane grond en een slaapkamer op de verdieping. Aan de zijde van het landhuis zijn een praktische inpandige tuinberging en garage. Recent is een grote veldschuur gerealiseerd met plaats voor vijf auto’s. Uiteraard is hier een laadaansluiting voorzien.

Bijzonderheden:
De rustige en eveneens strategische ligging van het landgoed met kasteelachtige allure maken het tot een ideale residentie. Binnen 30 minuten zijn onder andere Eindhoven airport, de High Tech Campus en Tilburg bereikbaar, terwijl Den Bosch op slechts 20 minuten afstand ligt. In de directe omgeving zijn uitgestrekte wandelroutes om urenlang te struinen door de prachtige Brabantse bossen. Rondom het landhuis ligt een Engelse landschapstuin met een vijverpartij, enkele gazons en vele volwassen bomen, waaronder een schitterende monumentale Kaukasische vleugelnoot en een Canadese populier.
Het landhuis kenmerkt zich door witte gepleisterde gevels, schilddaken, hangtorens op de hoeken en één ronde hoektoren met kantelen. Hoewel het oorspronkelijke bouwjaar niet exact te achterhalen is, leidt de historie terug tot ± 1864. In 1998 is het landhuis grotendeels door brand verwoest en hierna met veel vakmanschap, liefde en aandacht geheel gerenoveerd, gemoderniseerd en verduurzaamd. Mede door de aanwezigheid van 40 zonnepanelen en twee warmtepompen heeft dit geleid tot een uniek energielabel A+.
Het object is als landgoed geschikt onder de Natuurschoonwet, hetgeen diverse fiscale voordelen met zich meebrengt. Hieronder vindt u een overzicht van de belangrijkste voordelen van de Natuurschoonwet (NSW):
Schenk- en erfbelasting
Voor opengestelde NSW-landgoederen wordt de waarde waarover de schenk- en erfbelasting wordt geheven op € 0 gesteld, wat betekent dat deze volledig zijn vrijgesteld. Niet-opengestelde landgoederen worden belast over de helft van de waarde. Het landgoed moet gedurende 25 jaar gerangschikt blijven en in bezit blijven van de verkrijger(s) om deze voordelen te behouden.
Inkomstenbelasting
Onbebouwde grond die gerangschikt is onder de NSW is 100% vrijgesteld van heffing in box III van de inkomstenbelasting. Voor de eigen woning wordt rekening gehouden met een lagere WOZ-waarde, wat resulteert in lagere belaste inkomsten uit de eigen woning.
Vennootschapsbelasting
NSW-landgoederen ingebracht in een B.V. kunnen aanspraak maken op volledige vrijstelling van vennootschapsbelasting, mits de B.V. hoofdzakelijk instandhoudingswerkzaamheden verricht en niet als onderneming wordt gezien.
Overdrachtsbelasting
Er geldt een 100% vrijstelling van overdrachtsbelasting voor NSW-landgoederen, op voorwaarde dat het landgoed 25 jaar gerangschikt blijft. Bij niet-naleving wordt de vrijstelling ingetrokken.
Wet WOZ
NSW-landgoederen hebben vaak een lagere WOZ-waarde door de instandhoudingsverplichting, wat resulteert in lagere belastingen zoals onroerendezaakbelasting en waterschapsbelasting. Deze lagere waardering geldt voor een periode van 25 jaar.
Deze voordelen maken het bezit van een NSW-landgoed financieel aantrekkelijk en ondersteunen de duurzame instandhouding van cultureel en natuurlijk erfgoed.
De opstallen worden verkocht en de ondergrond wordt in erfpacht uitgegeven. De ondergrond kan geen volle eigendom worden. De fiscaal aftrekbare erfpachtcanon bedraagt € 35.323,- per jaar. Het erfpachtcontract met de daarbij behorende voorwaarden wordt in overleg met het Brabants Landschap opgesteld.
Van zowel het hoofdhuis als het koetshuis is door de Monumentenwacht Noord-Brabant een uitgebreid inspectierapport opgemaakt dat bij serieuze belangstelling is in te zien.

Als u een riant pand met allure zoekt om wonen en werken te combineren, maak dan een afspraak voor een bezichtiging. We leiden u met genoegen rond.

Kenmerken

Overdracht
Vraagprijs
€ 1.950.000 v.o.n.
Status
beschikbaar
Aanvaarding
in overleg
Bouw
Soort woonhuis
Landgoed
Soort bouw
vrijstaande woning
Bouwjaar
1998
Energieklasse
A_P
Soort dak
samengesteld dak
Slaapkamers
5
Badkamers
4
Oppervlakten en inhoud
Woonoppervlakte
673 m2
Overige inpandige ruimte
0 m2
Gebouwgebonden buitenruimte
3 m2
Externe bergruimte
47 m2
Inhoud
2155 m3
Perceeloppervlakte
9758 m2
faciliteiten
Mechanische ventilatie
Alarminstallatie
Tv kabel
Rookkanaal
Sauna
Glasvezel kabel
Zonnepanelen
In bosrijke omgeving
Baerz & Co Property Brochure

Brochure

Informatie / bezichtigingsaanvraag

Video's

Video Heerenbeek 1

360 Panorama's

360°
360 Panorama - Heerenbeek 1
360°
360 Panorama - Heerenbeek 1
360°
360 Panorama - Heerenbeek 1
360°
360 Panorama - Heerenbeek 1
360°
360 Panorama - Heerenbeek 1
360°
360 Panorama - Heerenbeek 1
360°
360 Panorama - Heerenbeek 1
360°
360 Panorama - Heerenbeek 1

Foto's

Plattegronden