Baerz & Co is een landelijk samenwerkingsverband van zorgvuldig geselecteerde boutique luxury makelaars. Samen vormen wij één netwerk, met één gedeeld aanbod. De woningen die u op onze website ziet, zijn afkomstig van alle aangesloten kantoren binnen Baerz & Co. Daardoor is niet ieder object rechtstreeks door ons kantoor in verkoop, maar door een gespecialiseerde collega binnen ons netwerk. Heeft u een woning gevonden die u aanspreekt en wilt u meer informatie? Dan brengen wij u graag persoonlijk in contact met de betreffende verkoopmakelaar, zodat u direct en zorgvuldig wordt begeleid.

OEGSTGEEST
Van Brouchovenlaan 6 - 2343 HD
Nederland

Niels Eering profile image
Niels Eering
Real Estate Agent
€2.695.000 k.k.
Woonoppervlakte
272m2
Perceeloppervlakte
1134m2
Slaapkamers
4

Omschrijving

Zeer luxe villa met riante tuin gelegen in een rustig villapark.

Deze fraaie villa is recent geheel nieuw gebouwd met zeer veel aandacht voor materiaalkeuze en architectuur. De wijk waar de villa is gelegen heet het Van Brouchovenpark en is vernoemd naar de kasteelheer van kasteel Abspoel dat hier voorheen was gelegen. Het is een geliefde wijk in Oegstgeest en ideaal gelegen ten opzichte van diverse sportverenigingen, winkelcentrum de Lange Voort, een jachthaven, scholen etc. Ook de uitvalswegen naar o.a. Amsterdam, Schiphol en Den Haag/Rotterdam zijn uitstekend bereikbaar. Al-met-al een toplocatie binnen een gemeente welke al jarenlang in de top 10 van meest aantrekkelijke woongemeenten staat.
INDELING
Begane grond

Het bordes met dubbele entreedeur geeft toegang tot de ruime hal waarin centraal het trappenhuis en vide zijn gesitueerd. In de hal vindt u tevens de wc voor de gasten, een ruime garderobe en de meterkast. Ook bevindt zich hier de trap die leidt naar de kelder en de bordestrap naar de bovengelegen verdieping. De dubbele glazen deuren bieden een doorkijk naar de moderne woonkamer.

De woonkamer heeft een lichte eiken vloer met een moderne open haard (hout gestookt), hoge ramen en dubbele openslaande deuren naar het terras, waardoor er op elk moment van de dag licht binnenvalt vanuit alle kanten en zicht is op de omliggende tuin. De keuken en de studeerkamer kunnen door moderne schuifdeuren gescheiden worden van de woonkamer, maar geopend vormen deze ruimtes één geheel. De vloer in keuken en werkkamer zijn van hardsteen, welke samen met de elementen van eikenhout en kleuren een fraai effect geven. De werkkamer/bibliotheek is ruim en heeft een ingebouwde boekenwand in L-vorm.

De moderne keuken is voorzien van alle wenselijke apparatuur, waarbij het kookeiland beschikt over een dubbele spoelbak, vaatwasser, ijskast en een kookplaat op gas én inductie. De hoge wand biedt ruimte aan de stoomoven, combimagnetronoven en het koffieapparaat. Naast koken biedt de keuken ruimte aan een zeer royale eettafel met een gezellige gasgestookte haard. De dubbele openslaande deuren geven vanuit de keuken toegang tot het ruime terras. Naast de keuken bevindt zich de bijkeuken, voorzien van een gootsteen, veel vaste kastruimte en een deur naar de tuin.
1e etage

Via de fraaie trap bereikt u de overloop met prachtig hoge deuren die toegang geven tot de diverse vertrekken. Achter deze deuren bevinden zich in totaal vier grote slaapkamers, twee badkamers, de technische ruimte en een ruimte voor de was- en droogopstelling. Van de vier slaapkamers zijn er drie in gebruik als kinderkamer met een gedeelde badkamer voorzien van een dubbele wastafel en een inloopdouche met regen- en handdouche. Tevens bevindt zich op de overloop een separaat toilet.

De master bedroom is voorzien van airconditioning en heeft een eigen zithoek, kleedkamer en luxe uitgevoerde badkamer met vrijstaand ligbad, dubbele wastafel, toilet, grote inloopdouche met regen- en handdouche en design handdoek radiator. Beide badkamers en de gang zijn voorzien van vloerverwarming.
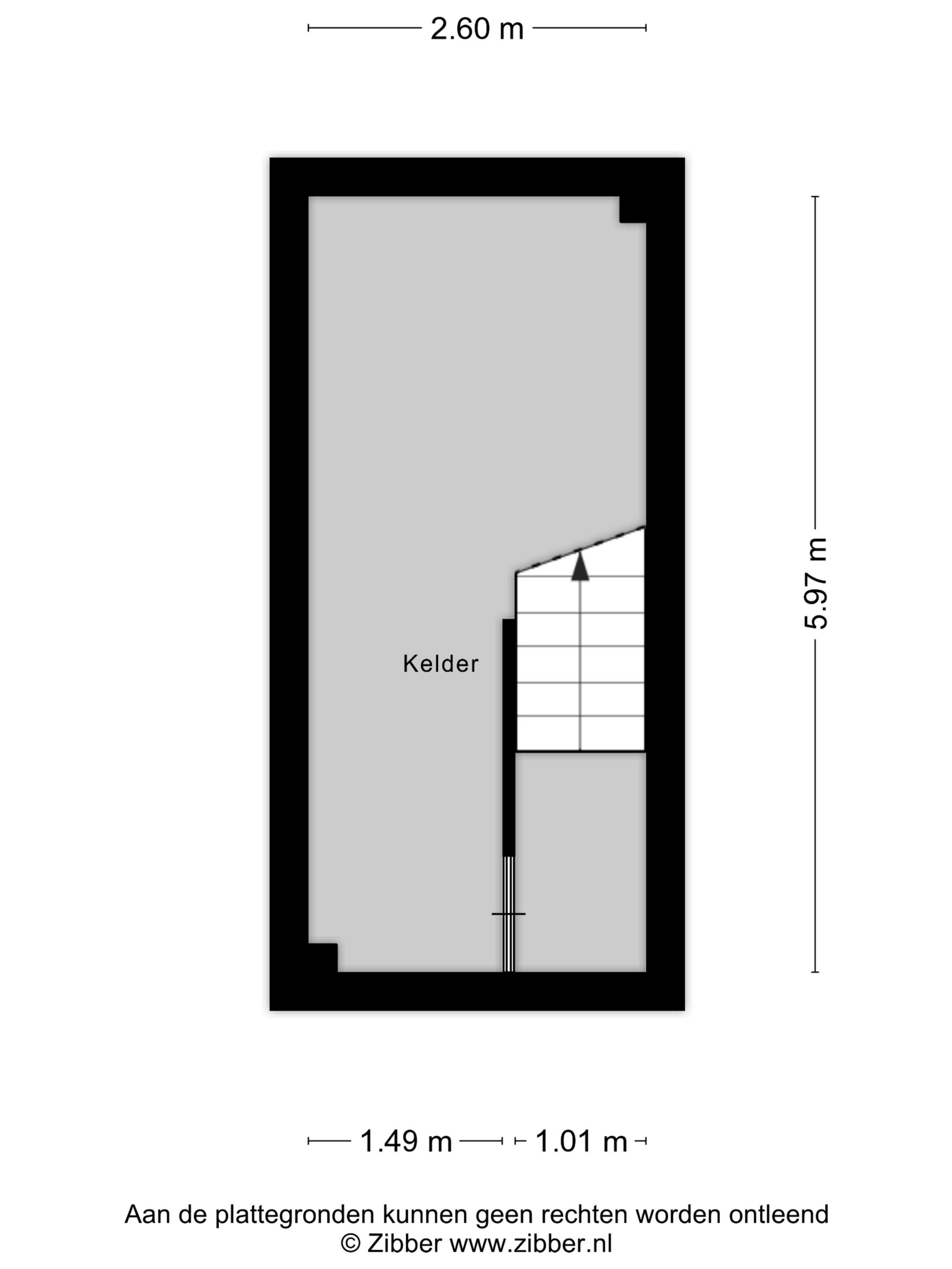
Kelder

De trap naar de kelder is in dezelfde materialen uitgevoerd als de trap naar de verdieping. In de kelder is een afsluitbare, praktische bergruimte, tevens geschikt als ruimte om de wijn te bewaren.
Tuin

De tuin heeft een zeer gunstige zonligging. Vanaf vroeg in de morgen tot laat in de avond staat de zon op het perceel. Achter in de tuin is een zithoek met overkapping en buitenkeuken, een heerlijk beschutte plek om in de zomer te BBQ-en of een mooi glas wijn te drinken. Het grote terras grenzend aan het gazon is op het zuiden gelegen en rondom de woning zijn nog diverse zithoekjes gecreëerd, zodat er op elk moment van de dag van de zon of de schaduw kan worden genoten.

De oprit naar de garage toe is bereikbaar middels het elektrische hek en biedt plaats aan meerdere auto's. Achteraan de oprit ligt de garage, welk is voorzien van dubbele openslaande deuren, een venster en een zijdeur. De garage is geschikt voor een auto, alsmede fietsen en tuingereedschap. Achter de garage bevinden zich de afvalcontainers.

De tuin is volledig omheind door middel van een hek en voorzien van een bewateringssysteem en tuinverlichting. In de gevel zijn op meerdere plaatsen buitenkranen.

Kenmerken

Zonnepanelen
Alarm system
Air conditioning
Overdracht
Vraagprijs
€ 2.695.000 k.k.
Status
onder bod
Aanvaarding
in overleg
Bouw
Soort woonhuis
Villa
Soort bouw
vrijstaande woning
Bouwjaar
2010
Energieklasse
A+
Soort dak
samengesteld dak
Slaapkamers
4
Badkamers
2
Oppervlakten en inhoud
Woonoppervlakte
272 m2
Overige inpandige ruimte
16 m2
Gebouwgebonden buitenruimte
2 m2
Externe bergruimte
26 m2
Inhoud
1068 m3
Perceeloppervlakte
1134 m2
faciliteiten
Alarminstallatie
Tv kabel
Buitenzonwering
Airconditioning
Rookkanaal
Glasvezel kabel
Zonnepanelen
Aan rustige weg
In woonwijk
Beschutte ligging
Baerz & Co Property Brochure

Brochure

Video’s

11 Makelaars - Amsterdam Noord

Mt. Lincolnweg 36 - 617
1033SN Amsterdam

info@11makelaars.nl
+31 20 20 50 208

www.11makelaars.nl

Informatie / bezichtigingsaanvraag

Niels Eering profile image
Niels Eering
Real Estate Agent

Een luxe woning kopen in Oegstgeest

Oegstgeest biedt een verfijnde levensstijl, gekenmerkt door privacy, cultuur en hoogwaardige voorzieningen. De internationale gemeenschap, rijke tradities en luxueus aanbod trekken mensen aan die rust, elegantie en blijvende waarde zoeken nabij Nederlandse stadscentra.