Baerz & Co is een landelijk samenwerkingsverband van zorgvuldig geselecteerde boutique luxury makelaars. Samen vormen wij één netwerk, met één gedeeld aanbod. De woningen die u op onze website ziet, zijn afkomstig van alle aangesloten kantoren binnen Baerz & Co. Daardoor is niet ieder object rechtstreeks door ons kantoor in verkoop, maar door een gespecialiseerde collega binnen ons netwerk. Heeft u een woning gevonden die u aanspreekt en wilt u meer informatie? Dan brengen wij u graag persoonlijk in contact met de betreffende verkoopmakelaar, zodat u direct en zorgvuldig wordt begeleid.

OEGSTGEEST
President Kennedylaan 185 - 2343 GZ
Nederland

Niels Eering profile image
Niels Eering
Real Estate Agent
€1.975.000 k.k.
Woonoppervlakte
416m2
Perceeloppervlakte
1580m2
Slaapkamers
5

Omschrijving

Exclusieve vrijstaande villa op prachtig ruim kavel met multifunctioneel vrijstaand bijgebouw

Deze riante vrijstaande villa, gebouwd in Amerikaanse bungalowstijl, heeft een gezamenlijk woonoppervlakte van maar liefst 416 m2 en is gelegen op een prachtig vrij kavel van 1.580 m2. De woning is ideaal gelegen, aan de rand van Oegstgeest, zonder directe buren dus volop privacy. De villa ligt dichtbij het groen van kasteel Poelgeest en de Leidse Hout; het water, de jachthavens en de golfbaan van Warmond en de scholen, sportverenigingen en winkels van Oegstgeest. Ook Leiden CS en het centrum van Leiden zijn eenvoudig per fiets te bereiken. De woning is ook gunstig gelegen nabij diverse uitvalswegen, die een snelle verbinding bieden naar zowel Den Haag als Amsterdam (A44/A4), evenals Delft/Rotterdam via de nieuwe N434.

Daarnaast zijn er nog tal van eigenschappen die deze woning zeer aantrekkelijk maken, zoals:
- Een prachtige tuin rondom met diverse terrassen voor zon en schaduw, 2 houten bergingen plus een automatisch sproeisysteem (van het merk Rainbird);
- Een vrijstaand bijgebouw met garage en een zelfstandige woonunit; ideaal als gastenverblijf/ kangoeroewoning of kantoor aan huis;
- Parkeren kan in de eigen garage en op de 2 parkeerplekken op eigen terrein alsmede op de openbare weg naast en achter de woning;
- De zeer degelijke bouwkwaliteit en uitstekende staat van onderhoud. De dakbedekking is recentelijk geheel vernieuwd. Onafhankelijk bouwkundig keuringsrapport is beschikbaar;
- De woning is goed beveiligd en uitgerust met een hoogwaardig alarmsysteem, wat zorgt voor een veilig gevoel voor de bewoners.

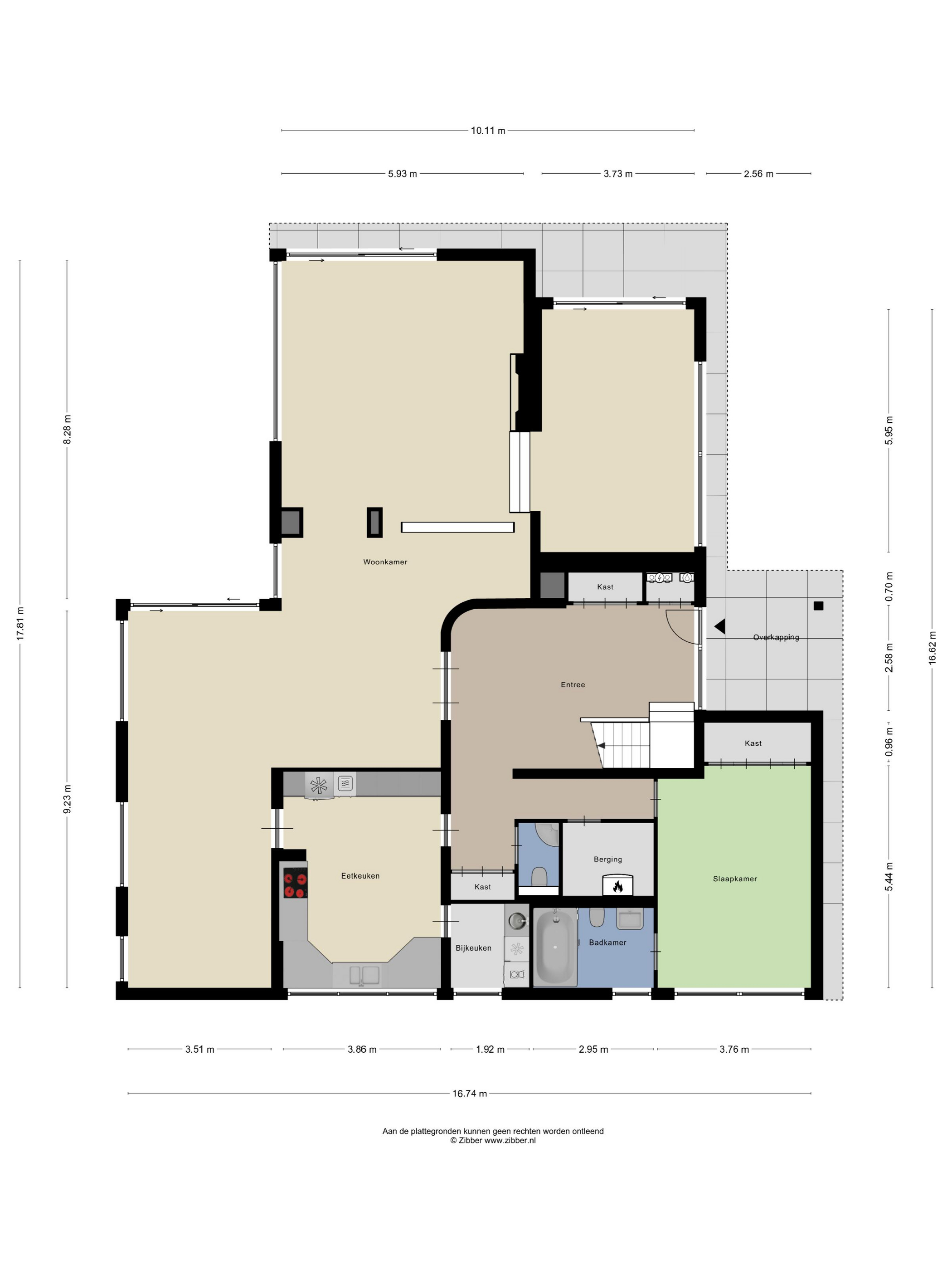
Indeling:
Bij binnenkomst betreedt u een lichte en zeer ruim bemeten entree met vide welke is voorzien van een garderobe. Wanneer u rechtdoor loopt komt u in het woongedeelte dat bestaat uit een eetkamer, een woonkamer en een family room/tv-kamer. Alles bij elkaar beslaan deze ruimten meer dan 100m2! Dankzij de grote raampartijen en de goede plafondhoogte voelt het geheel licht en ruim aan. De woning wordt omgeven door groen, wat door de grote ramen vanuit elke kamer zichtbaar is.
Vanuit ieder vertrek geven schuifpuien toegang tot de terrassen rondom de woning.

De eetkamer staat in verbinding met de ruime keuken, die is voorzien van Miele-apparatuur. Naast de keuken bevindt zich de bijkeuken, die tevens dienst doet als ‘achterom’-entree. Naast de entree bevindt zich een gang met het gastentoilet en een inpandige berging met o.a. de CV-opstelling. Tenslotte bevindt zich op de begane grond een ruime slaapkamer met vaste kastenwand en eigen badkamer en-suite met bad en wastafel.

Eerste verdieping: de overloop geeft toegang tot 2 slaapkamers met een gedeelde badkamer, ieder met toegang tot het dakterras. Aan de andere zijde van de overloop bevindt zich de zeer ruime ouderslaapkamer voorzien van vaste kasten en een riante badkamer en-suite. Het eerste deel betreft een walk-in kleedruimte; in het tweede deel treft u het bad/jacuzzi, een dubbele wastafel, toilet en bidet alsmede toegang tot een tweede kleedruimte/solarium. Ook de master-bedroom heeft toegang tot het grote dakterras.

Het bijgebouw kent een eigen adres: Mariahoevelaan 1. Het ene gedeelte bestaat uit een ruime garage met vaste kasten en de opstelling voor CV, wasmachine en droger. Het woongedeelte heeft een eigen entree op de begane grond met een leefruimte met keukenopstelling en een badkamer voorzien van toilet, douche en wastafel. Op de verdieping treft u een ruime en lichte woonkamer en een slaapkamer.

Al met al een zeer bijzondere en representatieve vrijstaande villa op een uitstekende locatie; uw bezichtiging zeker waard.

Kenmerken

Alarm system
Air conditioning
Overdracht
Vraagprijs
€ 1.975.000 k.k.
Status
beschikbaar
Aanvaarding
in overleg
Bouw
Soort woonhuis
Villa
Soort bouw
vrijstaande woning
Bouwjaar
1978
Energieklasse
C
Soort dak
samengesteld dak
Slaapkamers
5
Badkamers
4
Oppervlakten en inhoud
Woonoppervlakte
416 m2
Overige inpandige ruimte
31 m2
Gebouwgebonden buitenruimte
81 m2
Inhoud
1658 m3
Perceeloppervlakte
1580 m2
faciliteiten
Mechanische ventilatie
Alarminstallatie
Airconditioning
Schuifpui
Glasvezel kabel
Vrij uitzicht
Baerz & Co Property Brochure

Brochure

Video’s

Plattegronden

11 Makelaars - Amsterdam Noord

Mt. Lincolnweg 36 - 617
1033SN Amsterdam

info@11makelaars.nl
+31 20 20 50 208

www.11makelaars.nl

Informatie / bezichtigingsaanvraag

Niels Eering profile image
Niels Eering
Real Estate Agent

Een luxe woning kopen in Oegstgeest

Oegstgeest biedt een verfijnde levensstijl, gekenmerkt door privacy, cultuur en hoogwaardige voorzieningen. De internationale gemeenschap, rijke tradities en luxueus aanbod trekken mensen aan die rust, elegantie en blijvende waarde zoeken nabij Nederlandse stadscentra.