Baerz & Co is een landelijk samenwerkingsverband van zorgvuldig geselecteerde boutique luxury makelaars. Samen vormen wij één netwerk, met één gedeeld aanbod. De woningen die u op onze website ziet, zijn afkomstig van alle aangesloten kantoren binnen Baerz & Co. Daardoor is niet ieder object rechtstreeks door ons kantoor in verkoop, maar door een gespecialiseerde collega binnen ons netwerk. Heeft u een woning gevonden die u aanspreekt en wilt u meer informatie? Dan brengen wij u graag persoonlijk in contact met de betreffende verkoopmakelaar, zodat u direct en zorgvuldig wordt begeleid.

LANDSMEER
Langhuislaan 19 - 1121 RL
Nederland

€1.498.011 k.k.
Woonoppervlakte
233m2
Perceeloppervlakte
395m2
Slaapkamers
5

Omschrijving

Langhuislaan 19 te Landsmeer

Bel nu voor het maken van een afspraak of voor het opvragen van een brochure van dit fantastische luxe herenhuis in Luijendijk-Zuid! Op 2 minuten van de Amsterdamse Ring A10 én aan vaarwater!

Dit rijk gedetailleerde herenhuis (2016) valt op met zijn hoge goten, gemetselde penanten, Frans balkon en kenmerkend afgeknot schilddak. Maar ook opvallend is de ruimte en fijne indeling op alle verdiepingen. Ondermeer met 5 slaapkamers en 2 badkamers. Ideaal om in te leven met een (groter) gezin. Dat zie je ook terug op de begane grond in de ruim bemeten woonkeuken aan de voorzijde van de woning. Hier tref je een groot spoel-/kookeiland en apparatuurwand (alles inbouw).

De living aan de tuinzijde is gezellig, met opvallende cinewall en open haard. Hiervandaan loop via de dubbele deuren naar de tuin met zeer grote porch. Super voor die lange avonden en feestjes buiten op het terras. Ingebouwde trampoline, en een schommel voor de kids. Met een wijntje in de hand, hou je een (klein) oogje in het zeil. De tuinkussen en die van je sloep, leg je netjes weg in de houten schuur. En die sloep? Ach, die meer je af, direct achter het huis. Je vaart op een mooie zomerdag zo naar Amsterdam.

Of zoek je liever de natuur op? Natuur-/recreatiegebied Het Twiske ligt echt letterlijk om de hoek. En dat geldt ook voor het sportpark, en het centrum van Landsmeer met 2 supermarkten, de bekende merkketen winkels én fijne speciaalzaken, waaronder een slijterij. Voor je wijnvoorraad voor op het terras of in de sloep.

En de kids? Die spelen hier gewoon nog op straat, letterlijk voor de deur. Ze gaan naar school een school naar keuze van Montessori onderwijs tot openbaar. Naar de opvang zonder wachtlijsten. En na school zijn er tal van keuze opties op het gebied van muziek, kunst of sport. In zwembad de Breek krijgen ze zwemles en een onvergetelijke jeugd.

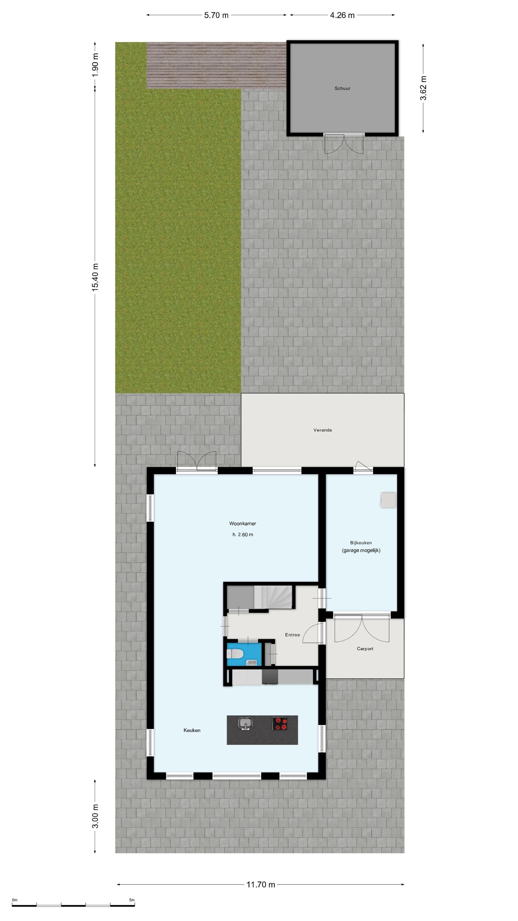
Indeling:
Begane grond:
Via de entree kom je in de hal met meterkast, toiletruimte en trapopgang naar de verdieping. Vanuit de hal heb je toegang tot de ruime en lichte woonkamer, die zich aan de achterzijde van de woning bevindt en openslaande deuren heeft naar de veranda en tuin.

Aan de voorzijde is de royale woonkeuken gesitueerd, voorzien van een kookeiland en diverse inbouwapparatuur. Aansluitend aan de woonkamer bevindt zich de garage (momenteel een werkelijk hele fijne bijkeuken / natte ruimte), met tevens een deur naar buiten en toegang tot de carport.

Eerste verdieping:
De overloop geeft toegang tot drie ruime slaapkamers en de badkamer. Twee slaapkamers zijn gelegen aan de achterzijde en één ruime slaapkamer aan de voorzijde.

De luxe badkamer is compleet uitgevoerd met ligbad, douche, dubbele wastafel en toilet. Daarnaast is er een separate ruimte ingericht als walk-in closet.

Tweede verdieping:
Via de vaste trap bereik je de tweede verdieping. Hier bevinden zich nog eens twee slaapkamers, beide voorzien van daglicht via dakkapellen/dakramen.

Op de overloop is extra bergruimte aanwezig en tevens een tweede badkamer, uitgerust met ligbad, wastafel en toilet.

Noemenswaardig:
- Vrijstaand wonen aan vaarwater
- Gedetailleerde afwerking met rijke materialen
- Duurzame woning met goede isolatievoorzieningen en 35 zonnepanelen
- Ruime woonkeuken met kook-/spoeleiland
- Parkeren op eigen erf
- Perceel EIGEN GROND 395 m2
- Inbouwverlichting binnen & buiten
- Ideaal gelegen t.o.v. Amsterdam en natuurgebied Het Twiske
- 5 slaapkamers, 2 badkamers
- Airconditioning, vloerverwarming
- Tuin met veel privacy
- Fantastisch luxe herenhuis in Luijendijk Zuid!

Kenmerken

Zonnepanelen
Alarm system
Air conditioning
Overdracht
Vraagprijs
€ 1.498.011 k.k.
Status
beschikbaar
Aanvaarding
in overleg
Bouw
Soort woonhuis
Herenhuis
Soort bouw
vrijstaande woning
Bouwjaar
2016
Soort dak
schilddak
Slaapkamers
5
Badkamers
2
Oppervlakten en inhoud
Woonoppervlakte
233 m2
Overige inpandige ruimte
0 m2
Gebouwgebonden buitenruimte
28 m2
Externe bergruimte
15 m2
Inhoud
843 m3
Perceeloppervlakte
395 m2
faciliteiten
Mechanische ventilatie
Alarminstallatie
Tv kabel
Airconditioning
Frans balkon
Dakraam
Cctv
Zonnepanelen
Aan water
Aan rustige weg
In woonwijk
Aan vaarwater
Baerz & Co Property Brochure

Brochure

Video’s

Plattegronden

11 Makelaars - Amsterdam

Mt. Lincolnweg 38 - 617
1033SN Amsterdam

info@11makelaars.nl
+31 20 20 50 208

www.11makelaars.nl

Informatie / bezichtigingsaanvraag

Niels Eering profile image
Niels Eering
Real Estate Agent

Een luxe woning kopen in Landsmeer

Landsmeer staat voor harmonieus en exclusief wonen met hoogwaardige voorzieningen, natuurlijke schoonheid en een internationale gemeenschap. De subtiele balans van privacy en verbondenheid trekt een veeleisend, mondiaal publiek.