Ons kantoor is lid van Baerz & Co Luxury Homes; een internationaal platform dat exclusieve woningmakelaars met elkaar verbindt. Neem contact op met ons secretariaat voor meer informatie over het landelijke aanbod, waarvan u hieronder een selectie kunt bekijken.

Villa te koop in KRIMPEN AAN DEN IJSSEL

KRIMPEN AAN DEN IJSSEL Burgemeester Lepelaarssingel 11 - 2925 ES Nederland


Xandra Bek profile image
Xandra Bek
Real Estate Agent
+31 653634909
xbek@vanherk.nl

Van Herk Makelaars Excellent
Oudehoofdplein 4
3011 TM Rotterdam
NETHERLANDS
+31 102581855
www.vanherk.nl/excellent/
excellent@vanherk.nl

Woonoppervlakte
278m2
Perceeloppervlakte
1840m2
Slaapkamers
6

Omschrijving

ROYAAL WONEN OP UNIEKE LOCATIE AAN HET WATER
Aan een rustige singel, verscholen in het groen en direct aan het water, ligt dit bijzondere vrijstaande huis op een uitzonderlijk royaal perceel van 850 m². Een plek waar ruimte, rust en privacy samenkomen en waar de ligging alleen al indruk maakt. Dit solide gebouwde familiehuis (bouwjaar 1976) biedt een woonoppervlakte van circa 278 m², een inpandige garage, een carport én parkeergelegenheid op eigen terrein. De achtertuin grenst direct aan het water en biedt een vrij uitzicht – alsof je midden in een natuurgebied woont, terwijl alle voorzieningen om de hoek liggen.

De woning is uitermate geschikt voor doorstromers die ruimte zoeken én toekomstgericht willen wonen: een slaapkamer op de begane grond behoort hier namelijk tot de mogelijkheden. Daarnaast biedt het geheel volop kansen voor wie wil moderniseren en het huis naar eigen smaak wil vormgeven.
INDELING MET OOG OP COMFORT EN RUIMTE
Je komt binnen via een overdekte entree in een royale hal met directe doorgang naar de woonkamer.
De living is ruim, licht en door de grote ramen aan drie zijden ervaar je een bijna panoramisch uitzicht op het groen rondom het huis. De schuifpui aan de achterzijde geeft toegang tot het terras en de tuin, waar je in alle rust kunt genieten van het zonnetje en het uitzicht op het water. De eetkamer grenst direct aan het terras, wat zorgt voor een fijne interactie tussen binnen en buiten.

Op de begane grond vind je daarnaast een keuken voorzien van alle benodigde inbouwapparatuur, een toiletruimte, de toegang tot de garage én een ruime extra kamer die perfect te gebruiken is als slaapkamer, werkkamer of hobbyruimte. Hiermee is levensloopbestendig wonen eenvoudig te realiseren.

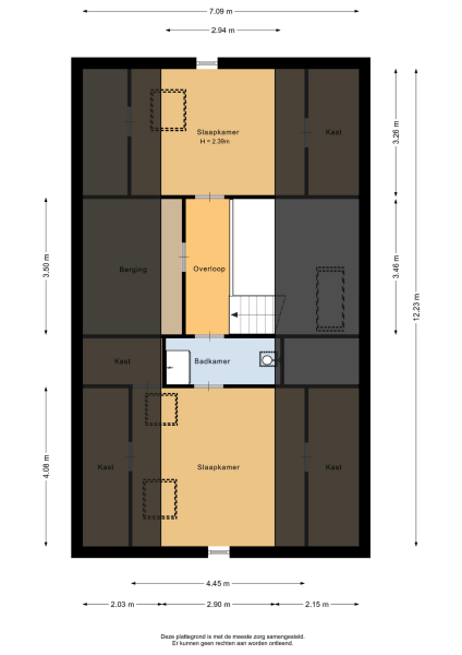
Op de eerste verdieping bevinden zich vier goed bemeten slaapkamers en extra bergruimte. De badkamer is functioneel ingericht en voorzien van een ligbad, wastafel en tweede toilet.

Op de tweede verdieping tref je nog 2 slaapkamers en een extra badkamer welke is voorzien van een wastafel en inloopdouche. Ook op deze verdieping is er nog extra bergruimte te vinden.
TUIN MET VEEL PRIVACY EN NATUUR
De tuin rondom het huis is volwassen en groen aangelegd en biedt volop ruimte om te zitten, spelen of tuinieren. De achterzijde grenst direct aan het water en is voorzien van een zonneterras. Je hebt hier volledige privacy en het gevoel dat je buitenaf woont. De oprit biedt plek voor meerdere auto’s en de inpandige garage is bereikbaar vanuit de woning. Ook de carport biedt extra comfort en bescherming.
VOL OPTIES VOOR MODERNISERING
De woning is altijd goed onderhouden. De basis is ijzersterk: een goed gebouwd huis met betonnen vloeren, houten kozijnen met isolerende beglazing, deels vloerverwarming (woonkamer, keuken, hal en garage) en een goed functionerende Nefit Topline ketel (2012) met recent onderhoud. In 2018 is mechanische ventilatie toegevoegd in de badkamer en het schilderwerk van de kozijnen is in 2017 professioneel uitgevoerd. De woning biedt een solide basis voor diegene die het helemaal naar eigen smaak wilt maken.
GROEN, RUSTIG EN TOCH DICHTBIJ ALLES
Krimpen aan den IJssel staat bekend om de prettige woonomgeving met veel groen, water en ruimte. De Burgemeester Lepelaarssingel is een rustige, ruim opgezette straat met voornamelijk vrijstaande woningen. Je woont hier op een ideale plek: op korte afstand van winkelcentrum Crimpenhof, scholen, sportverenigingen en het openbaar vervoer. Ook de uitvalswegen naar Rotterdam en de Krimpenerwaard zijn snel bereikbaar.

Voor natuurliefhebbers is er in de directe omgeving volop gelegenheid tot wandelen en fietsen langs de IJssel, door het polderlandschap of in het nabijgelegen Hitland. De combinatie van centrale ligging en natuurlijke rust maakt dit een unieke plek voor wie comfortabel en ruim wil wonen met alle gemakken binnen handbereik.
BELANGRIJKSTE KENMERKEN
- Ligging: aan rustige singel, direct aan het water
- Tuinoriëntatie: westen
- Woonoppervlakte: ca. 278 m²
- Perceeloppervlakte: ca. 1840 m²
- Bouwjaar: 1979
- Aantal kamers: 6
- Aantal slaapkamers: 6 (extra slaapkamer mogelijk op begane grond)
- Energielabel: D

TOELICHTINGSCLAUSULE NEN2580
De Meetinstructie is gebaseerd op de NEN2580. De Meetinstructie is bedoeld om een meer eenduidige manier van meten toe te passen voor het geven van een indicatie van de gebruiksoppervlakte. De Meetinstructie sluit verschillen in meetuitkomsten niet volledig uit, door bijvoorbeeld interpretatieverschillen, afrondingen of beperkingen bij het uitvoeren van de meting.

KOOPOVEREENKOMST PAS RECHTSGELDIG NA ONDERTEKENING
Een mondelinge overeenstemming tussen de particuliere verkoper en de particuliere koper is niet rechtsgeldig. Met andere woorden: er is geen koop. Er is pas sprake van een rechtsgeldige koop als de particuliere verkoper en de particuliere koper de koopovereenkomst hebben ondertekend. Dit vloeit voort uit artikel 7:2 Burgerlijk Wetboek. Een bevestiging van de mondelinge overeenstemming per e-mail of een toegestuurd concept van de koopovereenkomst wordt overigens niet gezien als een 'ondertekende koopovereenkomst'

“Deze informatie is door ons met de nodige zorgvuldigheid samengesteld. Onzerzijds wordt echter geen enkele aansprakelijkheid aanvaard voor enige onvolledigheid, onjuistheid of anderszins, dan wel de gevolgen daarvan. Alle opgegeven maten en oppervlakten zijn indicatief.”

Kenmerken

Overdracht
Vraagprijs
€ 1.195.000 k.k.
Status
beschikbaar
Aanvaarding
in overleg
Bouw
Soort woonhuis
Villa
Soort bouw
vrijstaande woning
Bouwjaar
1979
Energieklasse
D
Soort dak
samengesteld dak
Slaapkamers
6
Badkamers
2
Oppervlakten en inhoud
Woonoppervlakte
278 m2
Overige inpandige ruimte
27 m2
Gebouwgebonden buitenruimte
43 m2
Externe bergruimte
7 m2
Inhoud
1054 m3
Perceeloppervlakte
1840 m2
faciliteiten
Mechanische ventilatie
Buitenzonwering
Schuifpui
Dakraam
Natuurlijke ventilatie
Aan water
Aan rustige weg
In woonwijk
Beschutte ligging
Baerz & Co Property Brochure

Brochure

Informatie / bezichtigingsaanvraag

Video's

Video Burgemeester Lepelaarssingel 11

Foto's

Plattegronden