Baerz & Co is een landelijk samenwerkingsverband van zorgvuldig geselecteerde boutique luxury makelaars. Samen vormen wij één netwerk, met één gedeeld aanbod. De woningen die u op onze website ziet, zijn afkomstig van alle aangesloten kantoren binnen Baerz & Co. Daardoor is niet ieder object rechtstreeks door ons kantoor in verkoop, maar door een gespecialiseerde collega binnen ons netwerk. Heeft u een woning gevonden die u aanspreekt en wilt u meer informatie? Dan brengen wij u graag persoonlijk in contact met de betreffende verkoopmakelaar, zodat u direct en zorgvuldig wordt begeleid.

KRIMPEN AAN DE LEK
Dorpsstraat 12 - 2931 AE
Nederland

Niels Eering profile image
Niels Eering
Real Estate Agent
€1.495.000 k.k.
Woonoppervlakte
511m2
Perceeloppervlakte
1425m2
Slaapkamers
5

Omschrijving

ZEER KARAKTERISTIEK HERENHUIS MET VEEL MOGELIJKHEDEN

Ben je liefhebber van karakter, historie en ruimte? Dan is Dorpsstraat 12 in Krimpen aan de Lek iets voor jou. Dit vrijstaande herenhuis uit 1650 straalt authenticiteit uit en biedt dankzij het voormalig koetshuis, de fraaie serre, aparte garage en de indrukwekkende ommuurde tuin volop mogelijkheden om wonen en werken te combineren. Met ruim 500 m2 woonoppervlakte, ca. 1870 m3 inhoud en een perceel van 1425 m2 is er ruimte in overvloed voor wonen met winkel, een groot gezin, een B&B of een praktijk aan huis.

EEN HUIS MET HISTORIE EN AUTHENTIEKE DETAILS

Stap binnen in een woning waar je de geschiedenis voelt. De vestibule met mozaïekvloer en geslepen glasdeur, de imposante trappartij, originele granitovloeren, antieke schouwen, sierplafonds en de fraaie Art Deco serre en garage: alles ademt de sfeer van vervlogen tijden. Naast deze prachtige details zijn ook de nodige moderniseringen doorgevoerd, zoals vernieuwd dak- en zinkwerk, vervangen kozijnen met HR++ glas, 23 zonnepanelen (2023) en een nieuwe Nefit HR-combiketel (2025).

VERKOPER AAN HET WOORD
Wat hebben wij genoten van de mooie jaren in dit bijzondere, historische pand.
Zowel privé als zakelijk hebben wij hier onvergetelijke momenten mogen beleven.
Het huis ademt karakter, warmte en inspiratie.
Wij hopen dat de nieuwe bewoners hier net zoveel geluk zullen ervaren als wij.
Een plek om thuis te komen, te dromen en nieuwe herinneringen te maken.

RUIMTE VOOR IEDEREEN EN ELKE FUNCTIE

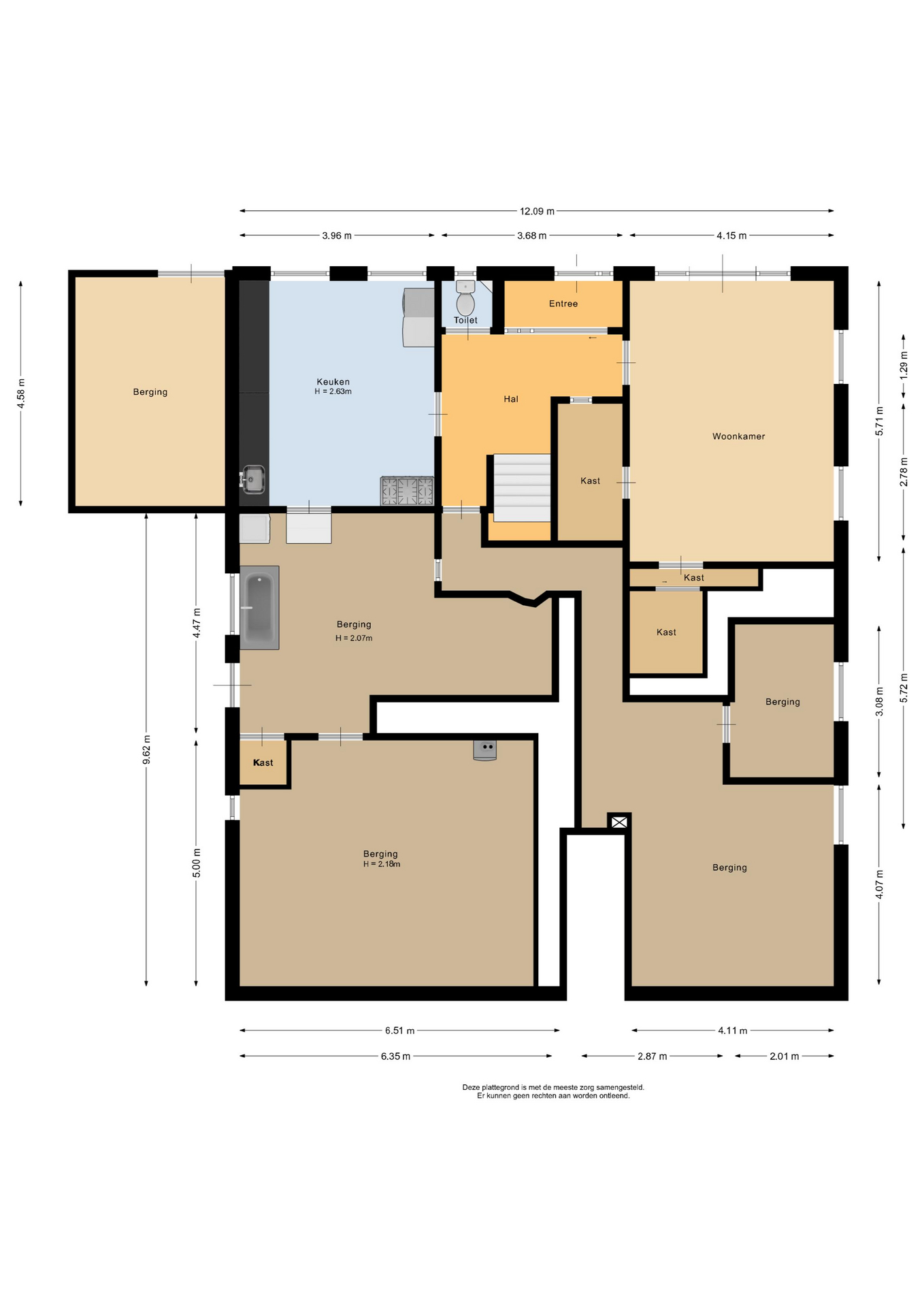
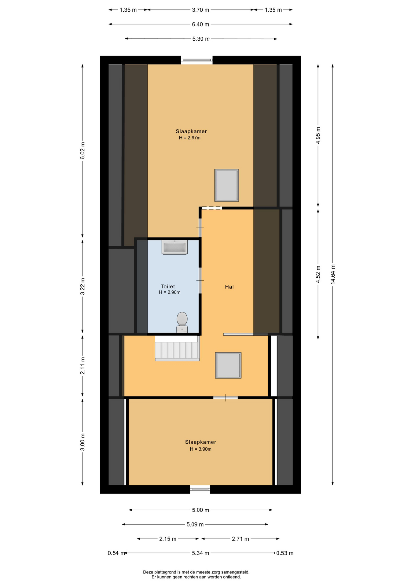
Het huis heeft een zeer praktische indeling over meerdere niveaus. Op dijkniveau vind je onder andere de sfeervolle woonkamer met open haard en plafondschildering, een eetkamer die door schuifdeuren verbonden is met de indrukwekkende serre, een slaapkamer en een badkamer met antiek ligbad. De eerste verdieping biedt royale slaapkamers, waaronder een kamer met eigen pantry en uitzicht op de rivier de Lek — perfect voor B&B of zelfstandig appartement. De tweede verdieping herbergt een sfeervolle grote zolderkamer met vernieuwde kozijnen. In het souterrain tref je een woonkeuken, een gezellige tuinkamer met openslaande deuren naar de tuin, diverse kelderruimtes en een wijnkelder.
De huidige winkelruimte beslaat thans 250m2 van de begane grond en een gedeelte van de verdiepingen, maar
het pand is ook geschikt voor een andere bestemming. Er zijn talloze gebruiksmogelijkheden, denk aan een sfeervolle B&B of gastenverblijf, een statige kantoorruimte, prettige praktijkruimte aan huis of gewoon als heerlijk riante woning.

OMMUURDE TUIN MET EIGEN FINSE COTTAGE

De ommuurde tuin is een oase van rust en harmonie, helemaal in lijn met de grandeur van het huis. Karaktervolle kastanjebomen, kronkelende grindpaden, een vijver en meerdere terrassen zorgen voor een unieke beleving. Achter in de tuin staat een Finse cottage met open haard — een heerlijke plek om te ontspannen of gasten te ontvangen. De tuin heeft bovendien een praktische zijuitgang naar naastgelegen parkeerplaatsen en het voetpad naar winkels en scholen.

WONEN IN HET HART VAN KRIMPEN AAN DE LEK

Dorpsstraat 12 ligt in de historische dorpskern van Krimpen aan de Lek. Hier woon je op een centrale locatie met alle voorzieningen binnen handbereik: scholen, winkels, horeca en openbaar vervoer bevinden zich op loopafstand. Ook de veerpont naar Kinderdijk en Ridderkerk is dichtbij. Krimpen aan de Lek combineert de charme van een dorp met de nabijheid van steden als Rotterdam, Gouda en Dordrecht. De omgeving biedt volop mogelijkheden om te wandelen en te fietsen langs de Lekdijk en door het groen van de Krimpenerwaard. Een perfecte plek voor gezinnen, ondernemers en rustzoekers die toch snel in de Randstad willen zijn.
BELANGRIJKSTE KENMERKEN:

Vraagprijs: € 1.495.000,- k.k.

Inhoud: ca. 1870m3

Woonoppervlakte: ca 500 m2

Perceeloppervlakte: 1425 m2 eigen grond

Bouwjaar: Oorspronkelijk 1650, met uitbreidingen in 1850 en 1920

Aantal verdiepingen: 4

Aantal kamers: 12+

Slaapkamers 6+

Er is geen energielabel omdat er sprake is van een gemeentelijk monument. Een gemeentelijk monument kan je van binnen en van buiten verbouwen. De gemeente toetst de plannen echter wel aan de monumentale waarden.

Oplevering: In overleg

Nieuwsgierig geworden naar dit zeer unieke pand met haar vele gebruiksmogelijkheden? We leiden je graag persoonlijk rond door deze bijzondere plek!

Kenmerken

Zonnepanelen
Overdracht
Vraagprijs
€ 1.495.000 k.k.
Status
verkocht onder voorbehoud
Aanvaarding
in overleg
Bouw
Soort woonhuis
Herenhuis
Soort bouw
vrijstaande woning
Bouwjaar
1650
Energieklasse
E
Soort dak
samengesteld dak
Slaapkamers
5
Badkamers
3
Oppervlakten en inhoud
Woonoppervlakte
511 m2
Overige inpandige ruimte
0 m2
Externe bergruimte
38 m2
Inhoud
1873 m3
Perceeloppervlakte
1425 m2
faciliteiten
Rookkanaal
Dakraam
Glasvezel kabel
Zonnepanelen
In centrum
Vrij uitzicht
Baerz & Co Property Brochure

Brochure

Video’s

11 Makelaars - Amsterdam Noord

Mt. Lincolnweg 36 - 617
1033SN Amsterdam

info@11makelaars.nl
+31 20 20 50 208

www.11makelaars.nl

Informatie / bezichtigingsaanvraag

Niels Eering profile image
Niels Eering
Real Estate Agent

Een luxe woning kopen in Krimpen aan de Lek

Krimpen aan de Lek biedt een gastvrije gemeenschap, een verfijnde leefstijl aan het water en vertrouwde service voor internationale kopers. Rust, comfort en hoogwaardige voorzieningen staan centraal.