Baerz & Co is een landelijk samenwerkingsverband van zorgvuldig geselecteerde boutique luxury makelaars. Samen vormen wij één netwerk, met één gedeeld aanbod. De woningen die u op onze website ziet, zijn afkomstig van alle aangesloten kantoren binnen Baerz & Co. Daardoor is niet ieder object rechtstreeks door ons kantoor in verkoop, maar door een gespecialiseerde collega binnen ons netwerk. Heeft u een woning gevonden die u aanspreekt en wilt u meer informatie? Dan brengen wij u graag persoonlijk in contact met de betreffende verkoopmakelaar, zodat u direct en zorgvuldig wordt begeleid.

ELST
De Oude Weg 29 - 3922 GB
Nederland

Niels Eering profile image
Niels Eering
Real Estate Agent
€984.000 k.k.
Woonoppervlakte
158m2
Perceeloppervlakte
700m2
Slaapkamers
4

Omschrijving

Vrijstaande woning grenzend aan de Uiterwaarden.

Aan De Oude Weg 29 in Elst treft u een ruime, moderne en vrijstaande woning die uitblinkt in comfort en functionaliteit. Met vier volwaardige slaapkamers, een lichte woonkamer met openslaande deuren naar de zonnige tuin, een open keuken, een praktische zolderruimte, een eigen garage én een royale, groene achtertuin met een sfeervolle overkapping biedt deze woning alles wat u zich kunt wensen. Bovendien zijn er zonnepanelen aanwezig, wat bijdraagt aan een duurzame woonervaring. Een unieke kans voor wie op zoek is naar ruimte, rust en veelzijdigheid onder één dak. Deze woning wilt u absoluut ervaren.

De Oude Weg 29 bevindt zich in een fijne, rustige wijk in Elst, met diverse voorzieningen op korte afstand. In de directe omgeving vindt u enkele voor winkels levensonderhoud en horecagelegenheden. Scholen en sportclubs bevinden zich op slechts enkele minuten fietsen, wat deze locatie ook zeker ideaal maakt voor gezinnen. Ook is de bereikbaarheid uitstekend: het openbaar vervoer is op loopafstand beschikbaar. De uitvalswegen richting Utrecht, Arnhem en Nijmegen (A12/A15) liggen binnen handbereik, waardoor u in no-time in andere delen van het land bent.

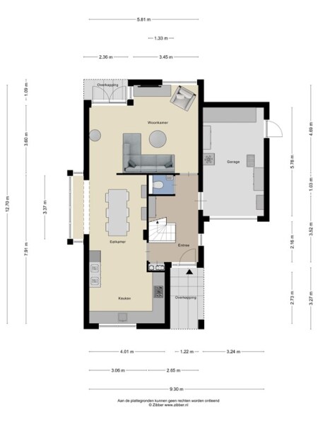
Entree:
Via de eigen oprit bereikt u de voordeur van de woning, die u binnenleidt in een ruime hal. Deze hal is het centrale punt van waaruit u toegang heeft tot de woonkamer, keuken, het toilet, inpandige garage en de trap naar de eerste verdieping. De verzorgde afwerking en het licht dat via de voordeur naar binnen valt, zorgen direct voor een aangename sfeer bij binnenkomst.

Woonkamer:
Deze royale woonkamer vormt het hart van de woning met een vrij zicht naar de uiterwaarden. Dankzij de grote raampartijen valt het daglicht hier rijkelijk naar binnen, wat de ruimte een open en luchtige uitstraling geeft. De indeling is flexibel en biedt volop mogelijkheden voor een gezellige zithoek. De openslaande deuren naar de tuin zorgen voor een fijne verbinding met buiten, terwijl de moderne afwerking het geheel compleet maakt.

Keuken:
Aansluitend op de woonkamer treft u de woonkeuken, gelegen aan de voorzijde van de woning. De luxe keuken is ruim van opzet, beschikt over een L-vormig werkblad en is voorzien van diverse inbouwapparatuur, waaronder Quooker, stoomoven, combi-oven vaatwasmachine, koken op gas. De keuken is de ideale plek om heerlijke gerechten te bereiden en mooie momenten te creëren met familie en vrienden.

1e verdieping:
De vaste trap leidt u naar de eerste verdieping waar een ruime overloop toegang biedt tot maar liefst vier slaapkamers, de badkamer en een handige berging. Deze verdieping biedt meer dan genoeg ruimte voor een gezin of voor het creëren van een werk- en hobbyruimte.

Slaapkamers:
Vier comfortabele slaapkamers grenzen aan de overloop, elk voorzien van een fijne lichtinval en voldoende ruimte voor een bed, bureau en kledingkast. De kamers zijn multifunctioneel inzetbaar en kunnen eenvoudig dienstdoen als kinderkamer, werkkamer of logeerkamer. Eén van de slaapkamers beschikt bovendien over directe toegang tot het balkon, met uitzicht op de fraai aangelegde tuin en de uiterwaarden.

Sanitair:
De badkamer is praktisch en stijlvol ingericht. Met een ruim ligbad, een inloopdouche, een wastafel met spiegel en opbergmeubel én een toilet, is hier aan alles gedacht. De ruimte is volledig betegeld en netjes afgewerkt, waardoor u er direct gebruik van kunt maken.

Berging:
Een handige bergruimte grenst aan de overloop. Deze is voorzien van een witgoedaansluiting en kan daardoor als wasruimte fungeren.

2e verdieping:
Een vlizotrap biedt toegang tot de zolderverdieping, gesitueerd in de nok van het dak. Deze ruimte is uitermate geschikt als opslagplaats voor bijvoorbeeld seizoensgebonden spullen.

Garage:
De inpandig geïsoleerde ruime garage is bereikbaar via de hal, tuin en via de garagedeur. In de garage is voldoende ruimte voor het parkeren van een auto.

Buitenruimte:
Via de openslaande deuren in de woonkamer stapt u de diepe, groene achtertuin in die grenst aan de Uiterwaarden – het ware hoogtepunt van deze woning. De tuin is fraai aangelegd met een mix van bestrating en groen, en biedt volop ruimte voor een loungeset of een buitentafel. De ligging zorgt ervoor dat u hier optimaal kunt genieten van de zonuren. Achter in de tuin bevindt zich een sfeervolle overkapping (voorzien van internet) waar u ook op minder zonnige dagen heerlijk buiten kunt zitten en/of werken. De tuin biedt veel privacy en vormt een oase van rust.
De fraaie voortuin is voorzien van een ruime oprit met parkeerplaats voor meerdere auto’s.

Algemene gegevens
- Type woning: Vrijstaand
- Bouwjaar: 2014
- Aantal kamers: 5
- Aantal slaapkamers: 4
- Aantal badkamers: 1
- Parkeerruimte: 4 op eigen terrein
- Aanwezig: dakkapel/garage/veranda/kippenhok/vrij uitzicht naar Uiterwaarden
- Ligging tuin: Rondom
- Ligging achtertuin: zuidwest
- Tuin bereik: opzij, via woning, via garage

Technische gegevens
- Warmwatervoorziening: Intergas Kombi Kompact 36 30
- Verwarmvoorziening: Intergas Kombi Kompact 36 30
- Zonnepanelen: 20 stuks
- Voorzieningen: rolluik/vliering/Quooker/openslaande deuren
- Mechanische ventilatie: aanwezig
- Isolatie: dak/spouw/vloer geheel
- Dubbel glas: geheel
- Glasvezel kabel, TV kabel
- Kozijnen: hout

WILT U EVEN BINNEN KIJKEN?

Voor meer informatie omtrent deze woning, kunt u contact opnemen met ons kantoor in Rhenen.

U bent van harte welkom! De beste indruk van deze woning krijgt u natuurlijk tijdens een bezichtiging. Wij proberen onze bezichtigingen altijd in samenspraak met verkoper en koper te plannen en nemen ruim de tijd, zodat u op uw gemak de woning kan bekijken en ervaren.
N.B. Aan de samenstelling van deze gegevens is maximale zorg besteed. Aan onvolkomenheden in de vermelde gegevens en tekeningen kunnen geen rechten en aanspraken worden ontleend.

Kenmerken

Zonnepanelen
Garage
Overdracht
Vraagprijs
€ 984.000 k.k.
Status
Available
Aanvaarding
In Concert
Referentie
07950
Bouw
Soort woonhuis
Single Family House
Soort bouw
Detached House
Bouwjaar
2014
Energieklasse
A+
Soort dak
front gable
Slaapkamers
4
Badkamers
1
Oppervlakten en inhoud
Woonoppervlakte
158 m2
Overige inpandige ruimte
26 m2
Gebouwgebonden buitenruimte
14 m2
Inhoud
682 m3
Perceeloppervlakte
700 m2
faciliteiten
Balcony
Fibreopticcable
Garage
Garden
Internetconnection
Rollerblinds
Solarpanels
Storageroom
Ventilation
Baerz & Co Property Brochure

Brochure

Video’s

Plattegronden

11 Makelaars - Amsterdam Noord

Mt. Lincolnweg 36 - 617
1033SN Amsterdam

info@11makelaars.nl
+31 20 20 50 208

www.11makelaars.nl

Informatie / bezichtigingsaanvraag

Niels Eering profile image
Niels Eering
Real Estate Agent

Een luxe woning kopen in Elst

Elst biedt een mix van privacy, hoogwaardige voorzieningen en een gastvrije sfeer. Bewoners profiteren van historische charme én moderne faciliteiten. Die combinatie spreekt (internationale) kopers aan die veiligheid, luxe en bereikbaarheid waarderen.