Ons kantoor is lid van Baerz & Co Luxury Homes; een internationaal platform dat exclusieve woningmakelaars met elkaar verbindt. Neem contact op met ons secretariaat voor meer informatie over het landelijke aanbod, waarvan u hieronder een selectie kunt bekijken.

Villa te koop in DORDRECHT

DORDRECHT Laan van Braets 94 - 3328 LK Nederland


Johan Oosterlee profile image
Johan Oosterlee
Real Estate Agent
+31 653723724
oosterlee@ozp-makelaars.nl

OZP Makelaars
Vissersdijk Beneden 25
3319 GW Dordrecht
NETHERLANDS
+31 786351753
www.ozp-makelaars.nl
info@ozp-makelaars.nl

Woonoppervlakte
158m2
Perceeloppervlakte
460m2
Slaapkamers
4

Omschrijving

Op een schitterende en groene woonlocatie in de gewilde wijk Wilgenwende, staat deze imposante vrijstaande woning met onder andere een eigen oprit en een inpandige garage. De woning is gebouwd op een ruim bemeten perceel van 460 m². Deze villa kenmerkt zich door een markante uitstraling, gecombineerd met hoogwaardige materialen en een riante inhoud van circa 596 m³. 

Deze woning beschikt onder andere over een ruime living, een luxe en complete keukeninrichting, een slaap- en badkamer, een grote garage en een bijkeuken op de begane grond. Op de 1e verdieping bevinden zich 3 ruime slaapkamers en een 2e en tevens complete badkamer. Het geheel wordt omsloten door een keurig aangelegde tuin. Daarnaast is de gehele woning voorzien van vloerverwarming.

Uiteraard is er bij de bouw van de woning ook rekening gehouden met de verduurzaming. Zo wordt de woning verwarmd middels een (bodem-)warmtepomp die zorgt voor de aansturing van de vloerverwarming in alle vertrekken en natuurlijk het verkrijgen van het warme water. Deze warmtepomp kan tevens koelen. Verder is natuurlijk de woning optimaal geïsoleerd. Dit alles zorgt voor een energielabel A++++!

Voor degene die een rustige omgeving zoekt en toch in de buurt wil wonen van alle voorzieningen in combinatie met een prettige woon-/speelomgeving voor uzelf en de kinderen, is deze woning een uitstekende keuze. 

Kortom: een waar paradijs, gelegen op slechts 10 minuten afstand van hartje stad! U zult zich snel thuis voelen aan de Laan van Braets 94!
     
Algemeen:
* Kadastrale aanduiding: gemeente Dordrecht, sectie V, nummer 2808, groot 460 m²;
* Woonoppervlakte: circa 158 m² (Inhoud: circa 596 m³). Overige inpandige ruimte: circa 35 m². Gebouw gebonden buitenruimte: circa 28 m²;
* Type woning: vrijstaand;
* Bouwjaar 2020;
* Energielabel A++++;
* De gehele woning is in een neutrale stijl en tot in de puntjes afgewerkt;
* Perfect geïsoleerd en volledig voorzien van kunststof kozijnen, welke volledig over isolerende (Triple) beglazing beschikken;
* De woning beschikt over maar liefst 26(!) zonnepanelen; 
* Verwarming middels (bodem-)warmtepomp en vloerverwarming (in alle vertrekken). De warmtepomp kan ook koelen;
* 2 parkeerplaatsen voor de deur;
* De raampartijen op de oost- en zuidkant hebben de beschikking over sunscreens (elektrisch bedienbaar);
* De woning is gelegen in een rustige omgeving aan een doodlopend hofje, maar zal mogelijk aangesloten worden op de Smitsweg middels een fietsbrug;
* Werken/kantoor aan huis behoort tot de mogelijkheden;
* Met een hoogte van 2,75 meter (inrijhoogte is 2,62 meter) is de garage (mogelijk) geschikt voor het stallen van een caravan;
* In alle beweegbare ramen heeft men de beschikking over inzethorren;
* Het platte dak is deels voorzien van een sedum dak;
* Een aansluiting voor een laadpaal is voorbereid in de garage;
* Gunstige en gewilde ligging aan de rand van de gewilde wijk Wilgenwende;
* Indicatie oplevering: in overleg.
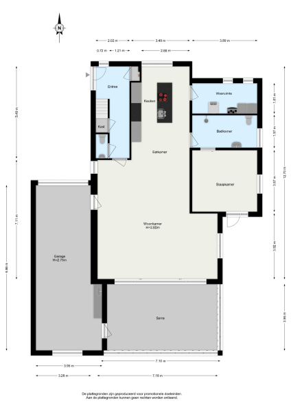
Begane grond:
Entree
In ruime hal met trapopgang naar de 1e verdieping, een trapkast, een toiletruimte, een meterkast (voorzien van 12 groepen, kookgroep, groep voor de zonnepanelen, groep voor de warmtepomp, 3 aardlekschakelaars en een glasvezelaansluiting) en toegang tot de woonkamer.

Toiletruimte
De geheel betegelde toiletruimte is fraai afgewerkt met een zwevend closet en een handwasbakje.

Woonkamer (oppervlakte ca. 45 m²)
De heerlijk ruime living heeft dankzij de vele raampartijen veel lichtinval en geniet u van een groen uitzicht. Via de achterkant van de woonkamer is de ruime serre te bereiken middels 2 schuifpuien. Tevens is via de woonkamer de garage bereikbaar. De gehele ruimte is afgewerkt met een Italiaans marmergrind vloer (Carrara) en behang op de wanden.

Keuken (ca. 5,49 x 3,49 m.)
De open woonkeuken is geplaatst in een recht deel en een kook-/spoeleiland met bar. De luxe keukeninrichting is verder voorzien van een inductiekookplaat, een afzuiginstallatie, een spoelbak met mengkraan, een vaatwasser, koelkast, stoomoven, combimagnetron, warmhoudlade en diverse bergkasten en pannenlades. Tevens heeft men beschikking over een verlaagd plafond met dimbare inbouwverlichting.

Bijkeuken/was-/technische ruimte (ca. 1,81 x 3,89 m.)
Via de keuken kan men de bijkeuken/was-/technische ruimte bereiken. Alhier bevinden zich de opstelplaats van de warmtepomp (bodemwarmte), de verdeler van de vloerverwarming, de mechanische ventilatiebox voor de begane grond en een aansluitpunt ten behoeve van de wasmachine.

Badkamer 1 (ca. 1,97 x 3,89 m.)
Tevens is via de keuken de badkamer met en-suite slaapkamer te bereiken. De luxe en geheel betegelde badkamer is voorzien van een inloopdouche (met thermostaatkraan), een zwevend closet en een wastafelmeubel. Via een schuifdeur is vanuit de badkamer de ruime slaapkamer te bereiken.

Slaapkamer 1 (ca. 3,67 x 3,89 m.)
Deze slaapkamer is keurig afgewerkt met tapijt op de vloer en behang op de wanden. Middels een enkele deur kan men vanuit de slaapkamer de tuin bereiken.
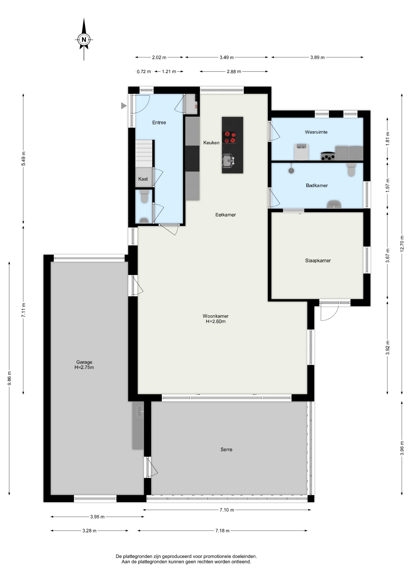
Eerste verdieping:
Overloop
Ruime en tevens lichte overloop met vaste kast (voorzien van een verdeler voor de vloerverwarming boven, een omvormer van de zonnepanelen en de mechanische ventilatiebox voor de 1e verdieping) en toegang tot de fraaie badkamer en de 3 slaapkamers.

Slaapkamer 2 (ca. 4,34 x 2,64 m.)
Deze ruime slaapkamer is gelegen aan de voorzijde van de woning en is afgewerkt met tapijt op de vloer en behang op de wanden. Door de vele raampartijen treedt er veel daglicht de kamer binnen.

Badkamer 2 (ca. 3,17 x 1,98 m.)
De fraaie badkamer is geheel betegeld en voorzien van een inloopdouche (met thermostaatkraan), een zwevend closet, een wastafelmeubel en een verlaagd plafond met inbouwverlichting.

Slaapkamer 3 (ca. 4,06 x 2,64 m.)
Deze slaapkamer is gelegen aan de achterzijde van de woning. De kamer is afgewerkt met tapijt op de vloer en behang op de wanden. Deze slaapkamer heeft tevens de beschikking over een sunscreen (elektrisch bedienbaar).

Slaapkamer 4 (ca. 2,91 x 3,02 m.)
Ook deze slaapkamer is gelegen aan de achterzijde van de woning en is afgewerkt met tapijt op de vloer en behang op de wanden. Tevens beschikt deze slaapkamer over een sunscreen (elektrisch bedienbaar).
Buitenruimte:
Garage (ca. 9,86 x 3,95/3,28 m.)
Vanuit de woonkamer is de royale L-vormige garage te bereiken. Deze garage heeft een plafondhoogte van 2,75 meter (inrijhoogte is 2,62 meter) en is hierdoor dus (mogelijk) geschikt voor het stallen van de caravan. De garage is bereikbaar middels een elektrisch bedienbare roldeur en is verder voorzien van een keukenblok (met koud water), een separate waterkraan en een loopdeur naar de serre.

Serre (ca. 3,96 x 7,10 m.)
De ruime serre is bereikbaar via zowel de woonkamer (via 2 schuifpuien) als de garage (enkele deur). Deze serre is geheel afsluitbaar door middel van glazen schuifdelen en is verder aan de bovenzijde voorzien van sunscreens (elektrisch bedienbaar) en elektra.

Voortuin
Aan de voorzijde heeft men de beschikking over een voortuin met meerdere parkeerplaatsen op eigen terrein voor de garage.

Achtertuin (oppervlakte ca. 145 m²)
De sfeervol en tevens groen aangelegde achtertuin op het zuiden is onder andere voorzien van zon- en schaduwterrassen, waar u heerlijk van de tuin en het omliggende groen kunt genieten! Verder beschikt deze achtertuin over een prieeltje (ca. 5,5 m²), een aantal regentonnen en een voorom.
De vermelde oppervlakte (m²) en inhoud (m³) zijn vastgesteld conform de branche brede NVM cs meetinstructie op basis van de NEN2580:2007 NL. De informatie in deze brochure is met de nodige zorg vastgesteld. Aan deze gegevens kunnen echter geen rechten worden ontleend, alle aansprakelijkheid van OZP-makelaars is derhalve uitgesloten. Voorts zijn wijzigingen voorbehouden.

Kenmerken

Overdracht
Vraagprijs
€ 945.000 k.k.
Status
beschikbaar
Aanvaarding
in overleg
Bouw
Soort woonhuis
Villa
Soort bouw
vrijstaande woning
Bouwjaar
2020
Energieklasse
A_PPPP
Soort dak
plat dak
Slaapkamers
4
Badkamers
2
Oppervlakten en inhoud
Woonoppervlakte
158 m2
Overige inpandige ruimte
35 m2
Gebouwgebonden buitenruimte
28 m2
Inhoud
596 m3
Perceeloppervlakte
460 m2
faciliteiten
Mechanische ventilatie
Buitenzonwering
Schuifpui
Glasvezel kabel
Zonnepanelen
In woonwijk
Baerz & Co Property Brochure

Brochure

Informatie / bezichtigingsaanvraag

Video's

Foto's

Plattegronden