Ons kantoor is lid van Baerz & Co Luxury Homes; een internationaal platform dat exclusieve woningmakelaars met elkaar verbindt. Neem contact op met ons secretariaat voor meer informatie over het landelijke aanbod, waarvan u hieronder een selectie kunt bekijken.

DEURNINGEN
Nieuwe Grensweg 2 - 7561 RX
Nederland

Harry Sentker profile image
Harry Sentker
Makelaar, Rentmeester, Taxateur
€1.975.000 v.o.n.
Woonoppervlakte
370m2
Perceeloppervlakte
23820m2
Slaapkamers
7

Omschrijving

Historische buitenplaats bestaande uit een fabrikantenvilla omgeven door een park in Engelse landschapsstijl; een verborgen juweel tussen twee meren in het prachtige natuurgebied tussen Hengelo en Enschede, opvallend centraal gelegen nabij voorzieningen en uitvalswegen. Via de 500 meter lange en exclusief voor bewoners toegankelijke oprijlaan over landgoed Het Lonnekermeer wordt de unieke ligging van de buitenplaats (2,385 ha) met villa Huize Oosterhof duidelijk. Gelegen tussen twee grote meren, waar de weidse natuur en de historische schoonheid van de villa en de omliggende tuin een zeer uniek ensemble vormen. Het absolute summum voor mensen die van bijzonder wonen in combinatie met natuur houden.

Ligging
De villa is gelegen op de plek waar de gemeentegrenzen van Hengelo, Enschede en Dinkelland bij elkaar komen, één van de meest unieke en groene locaties in Twente vanwege de aaneenschakeling van diverse landgoederen en natuurgebieden. Precies tussen de twee Lonnekermeren (6 en 10 ha) op een strook land met uitzicht over het water is de villa gesitueerd. Uren wandelen en fietsen in de prachtige beboste omgeving, schaatsen in de winter op de meren, hier is altijd iets moois te beleven. Ondanks dat de buitenplaats omgeven is door hoogwaardige natuur is de ligging zeer centraal. Alle denkbare voorzieningen, van gezellige horeca en theaters tot golfbanen, universiteit, hogescholen, ziekenhuizen en uitgebreide winkelcentra en openbaar vervoer zijn in de buurt. Het landgoed ligt namelijk vlak naast Hengelo en op slechts 10 minuten van Enschede (via een voor bewoners speciaal opengestelde route). Dankzij een fietsviaduct is de Hengelose wijk Hasseleres zelfs binnen enkele minuten bereikbaar. Ook de op en afritten van de autosnelweg A1 zijn binnen enkele minuten bereikbaar zodat er ook een goede aansluiting is met de rest van Nederland en Duitsland.

De villa
De villa uit 1901 naar ontwerp van architect Karel J. Muller in chaletstijl betreft een rijksmonument. Architect Muller is o.a. bekend van het Rijksmuseum te Enschede, tuindorp ’t Lansink in Hengelo en meerdere vooraanstaande landhuizen in Twente. Destijds was de opdrachtgever voor de bouw Otto Stork, telg uit een bekende fabrikantenfamilie. Na circa een eeuw in de familie, kocht het Overijssels Landschap begin 2000 het landgoed Lonnekermeer met daarop o.a. deze villa, welke enige tijd later aan de huidige bewoners werd verkocht en waarbij de grond in erfpacht werd uitgegeven. Het huis bevond zich toen in een matige staat van onderhoud en is na een grondige restauratie uiteindelijk weer in oude glorie hersteld met behoud van het oorspronkelijke karakter en de vele authentieke details. Zo zijn de terrazzo vloeren in goede staat en ligt de oorspronkelijke parketvloer er nog. De vele inbouwkasten en dienkasten in de keuken en dienkeuken zijn nog immer aanwezig. Ook de drie open haarden, de twee badkamers en vijf toiletten, veelal nog met bijzonder sanitair, zijn heden nog in het pand aanwezig. Er zijn een aantal oorspronkelijke lampen bewaard gebleven evenals de appeldroogkasten in de kelder. Door de vele raampartijen is er een zeer aangename lichtinval binnenshuis en is er gelijktijdig aan alle zijden een fenomenaal uitzicht. Nagenoeg alle bovenlichten bevatten glas-in-lood ramen. Ondanks de respectabele leeftijd en het uitgangspunt om zoveel mogelijk details te bewaren, biedt de villa een aangenaam wooncomfort. De hele villa is voorzien van voorzetramen, spouwmuren en een geïsoleerde kap. In 2023 werden een pelletkachel systeem, een houtkachel en een warmtepompboiler aangebracht. Dankzij nauwgezet planmatig jaarlijks onderhoud onder toezicht van Monumentenwacht verkeert het huis thans in een uitstekende staat. Een bouwkundig rapport is beschikbaar.
Aan de oostzijde van het ruime perceel is nog een zeer ruime garage met meerdere compartimenten aanwezig, waar tuinmachines en dergelijke kunnen worden gestald.

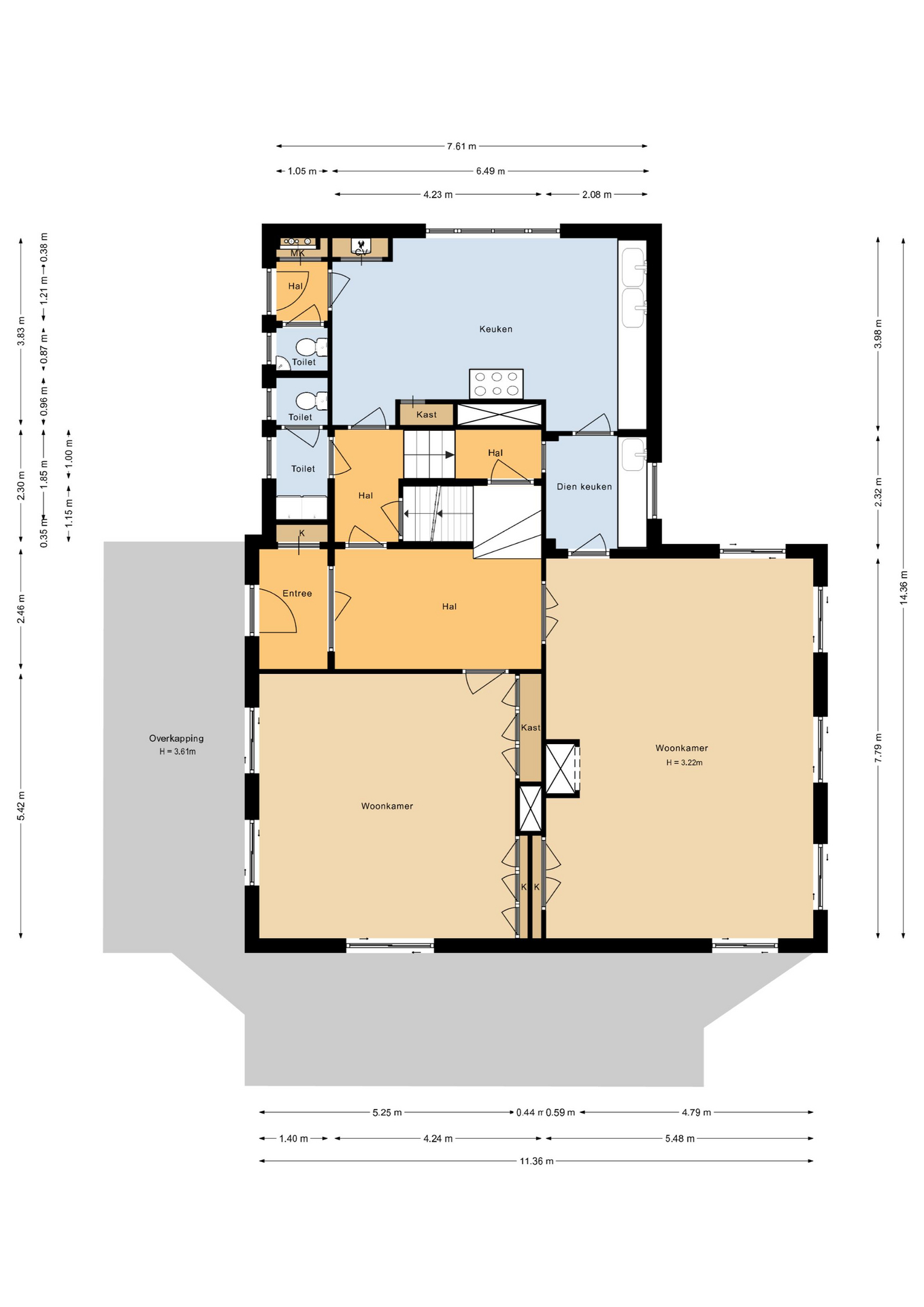
Voor de indeling van deze sfeervolle villa verwijzen wij u naar de bijgevoegde plattegronden. We kunnen u echter een betere en completere indruk geven tijdens een rondleiding of vraag de uitgebreide brochure bij ons op.

Tuin en landschap
De huidige eigenaren hebben er het afgelopen decennium alles aan gedaan om de buitenplaats weer in ere te herstellen. Samen met Landschap Overijssel en diverse gerenommeerde partners is een traject uitgevoerd voor restauratie van zowel de tuin als het park. Alles is volledig in lijn gedaan met de intenties van landschapsarchitect L.A. Springer die begin 1900 deze buitenplaats aanlegde. De twee grote zichtassen vanuit het huis op de meren zijn hersteld evenals meerdere zichtassen aan de beide zijkanten van het huis waaronder het zogenaamde meidenlaantje naar de nabijgelegen woonboerderij. Restauratie en (her)aanleg van de rozentuin, borders, gazons met tuinornamenten, sierbosranden en sierheesterperken, parkaanleg met oude bomen, boomgaard en een wilde bloemenweide met stinzenplanten vonden plaats en complementeren tuin en park. Het is haast niet te bevatten hoeveel planten (soorten) en struiken de afgelopen jaren zijn geplant.

Natuur
De villa ligt middenin een hoogwaardig natuurgebied (Natura 2000). Reeën, dassen, vele libellen soorten, bijzondere vogelsoorten als 6 soorten spechten, ijsvogel, boomvalk, visarend, roerdomp en vele andere zijn veelal bij het huis waar te nemen.

NSW landgoed
De buitenplaats is via een aanleunrangschikking als niet opengesteld NSW landgoed gerangschikt. Aan de opvolgend eigenaar/erfpachter wordt de verplichting gesteld het landgoed te herrangschikken. Hierdoor geniet u diverse fiscale voordelen waaronder o.a. een levering vrij van overdrachtsbelasting en een lagere onroerend goed belasting.

Rijksmonument
De villa is aangemerkt als Rijksmonument waardoor het in aanmerking komt voor een aantrekkelijke meerjarige onderhoudssubsidie (SIM), alsmede de jaarlijkse woonhuis subsidie.

Erfpacht
De grond is in eigendom van Landschap Overijssel. Via een heruitgifte in erfpacht met een daaraan gekoppeld recht van opstal wordt u gebruiker van de grond en eigenaar van de opstallen. Voor het gebruik van de grond betaalt u een jaarlijkse canon die thans op gelijke wijze als de rente op hypothecaire leningen fiscaal aftrekbaar is. Er wordt een moderne erfpachtovereenkomst aangegaan op basis van de daartoe strekkende bancaire richtlijn, waardoor een financiering mogelijk is.

Resumé
Neem contact op voor meer informatie en een bezichtiging. Wacht niet te lang, want kansen als deze komen zelden voorbij. Stap in de geschiedenis en de toekomst van buitenplaats Huize Oosterhof – een verborgen parel op Landgoed Lonnekermeer!

Canon: € 20.000,- per jaar.
De vraagprijs is vrij op naam, met uitzondering van de notariskosten.

Deze presentatie is informatief en geheel vrijblijvend. Tekeningen, maten, oppervlakte en inhoud zijn indicatief, hieraan kunnen geen rechten worden ontleend.

Kenmerken

Overdracht
Vraagprijs
€ 1.975.000 v.o.n.
Status
beschikbaar
Aanvaarding
in overleg
Bouw
Soort woonhuis
Villa
Soort bouw
vrijstaande woning
Bouwjaar
1901
Slaapkamers
7
Badkamers
2
Oppervlakten en inhoud
Woonoppervlakte
370 m2
Overige inpandige ruimte
52 m2
Gebouwgebonden buitenruimte
120 m2
Externe bergruimte
78 m2
Inhoud
1638 m3
Perceeloppervlakte
23820 m2
faciliteiten
Mechanische ventilatie
Tv kabel
Rookkanaal
Schuifpui
Dakraam
Aan bosrand
Aan water
Aan rustige weg
Vrij uitzicht
Beschutte ligging
Buiten bebouwde kom
In bosrijke omgeving
Landelijk gelegen
Baerz & Co Property Brochure

Brochure

Video’s

Landerijenbureau Kromhof-Pullen B.V.

Deldenerstraat 61
7551 AC Hengelo

info@kromhofpullen.nl
+31 852732800

www.kromhofpullen.nl

Informatie / bezichtigingsaanvraag

Harry Sentker profile image
Harry Sentker
Makelaar, Rentmeester, Taxateur

Een luxe woning kopen in Deurningen

Deurningen biedt een unieke balans tussen privacy, traditie en eigentijds wonen. Bewoners waarderen de sterke gemeenschap, maatwerkdiensten en goede bereikbaarheid, wat het dorp populair maakt bij internationale families en kopers.