Baerz & Co is een landelijk samenwerkingsverband van zorgvuldig geselecteerde boutique luxury makelaars. Samen vormen wij één netwerk, met één gedeeld aanbod. De woningen die u op onze website ziet, zijn afkomstig van alle aangesloten kantoren binnen Baerz & Co. Daardoor is niet ieder object rechtstreeks door ons kantoor in verkoop, maar door een gespecialiseerde collega binnen ons netwerk. Heeft u een woning gevonden die u aanspreekt en wilt u meer informatie? Dan brengen wij u graag persoonlijk in contact met de betreffende verkoopmakelaar, zodat u direct en zorgvuldig wordt begeleid.

DELFT
Oude Delft 47 - 2611 BC
Nederland

Niels Eering profile image
Niels Eering
Real Estate Agent
€2.950.000 k.k.
Woonoppervlakte
543m2
Perceeloppervlakte
301m2
Slaapkamers
5

Omschrijving

Uniek wonen aan de Oude Delft, monumentale elegantie en duurzame luxe in het hart van Delft.

In het historische centrum van Delft bevindt zich achter een imposante gevel dit bijzondere grachtenpand. Achter de statige voordeur ontvouwt zich een royaal, stijlvol en sfeervol woonhuis van circa 550 m².

Bij de verbouwing zijn kosten noch moeite gespaard om een uitzonderlijke woonbeleving te creëren. Het resultaat is een unieke, bijna exotische sfeer, gerealiseerd met natuurlijke materialen en organische vormen. Dankzij het gebruik van onder andere leemstuc en ronde lijnen is er veel aandacht besteed aan een gezond en aangenaam leefklimaat.
In opdracht van de huidige eigenaar is de woning grondig gerestaureerd en met oog voor detail en originele creativiteit verbouwd tot een luxe grachtenpand. Authentieke elementen zijn smaakvol behouden en gecombineerd met hoogwaardige materialen en hedendaags wooncomfort.

Een zeldzame kans voor wie royaal, karaktervol, duurzaam én stijlvol wil wonen op een van de mooiste locaties van Delft.

Hoogtepunten:

• Rijksmonument uit 1653;
• Woonoppervlakte: 543 m²;
• Monumentale gevel met zowel binnen als buiten diverse originele details;
• Riante, tropisch aangelegde tuin met volledige privacy;
• Gelegen aan de gracht, binnen beschermd stadsgezicht en aangemerkt als Rijksmonument;
• Energielabel B;
• Parkeergelegenheid voor 3 auto's.

Van deze woning is een unieke woningwebsite beschikbaar. Download op Funda de brochure voor de link naar deze unieke website, waar je alle gegevens en nog meer informatie van deze woning kunt vinden.

De indeling is als volgt:

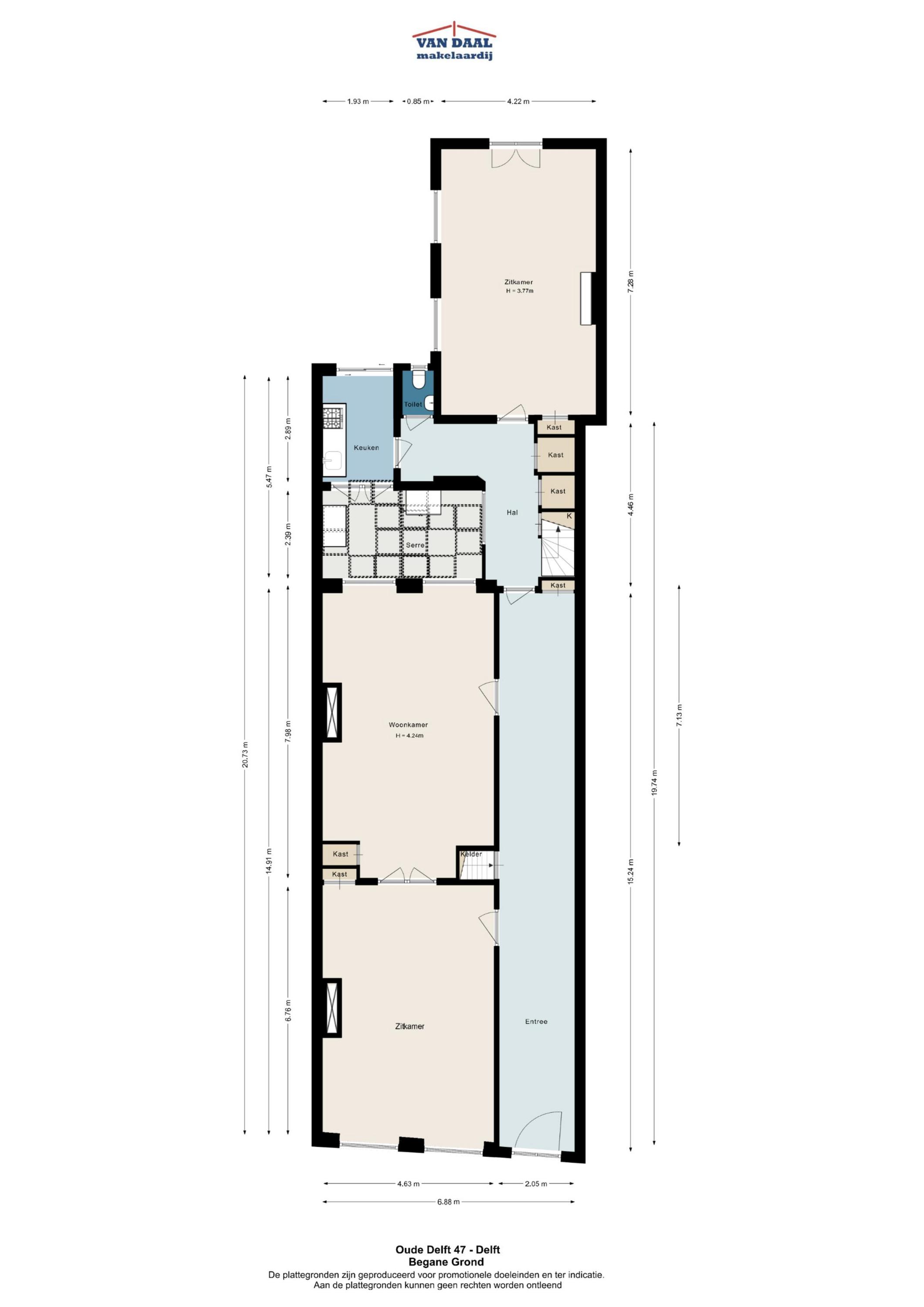
Begane grond
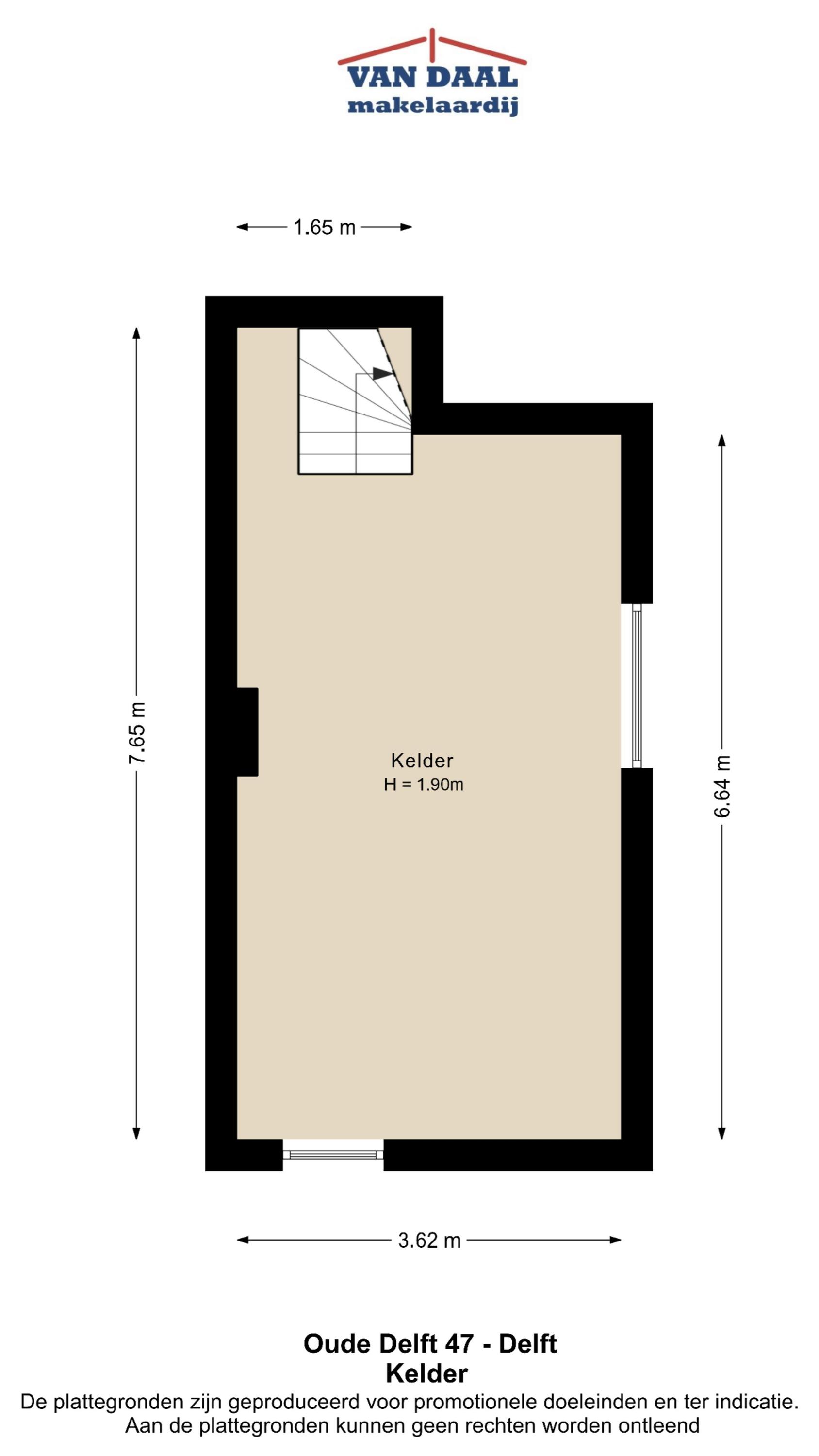
Achter de statige voordeur bevindt zich een indrukwekkende marmeren gang met ornamentenplafond. De hal biedt toegang tot de voor- en achterkamer, momenteel in gebruik als kantoor/werkkamer met een zeldzaam mooie schouw, een plafond in originele staat, en een antieke kroonluchter die de ruimte zacht verlicht. Vanuit de gang is er toegang tot de kelder van 27 m², uitgevoerd met een karakteristiek kruisgewelf. Verderop langs de wijnkelder kom je uit in de tuinkamer die is voorzien van vloerverwarming met een schilderij-achtig behang. Ernaast is een kleine pantry of zomerkeuken voor koffie, hapjes en drankjes, en hier is toegang tot de overdekte patio. Via deze keuken is er toegang tot de tropisch aangelegde achtertuin van circa 100 m², met een stenen schuur en een achterom naar het binnenterrein van het naastgelegen appartementencomplex. Hier is, middels recht van overpad, parkeergelegenheid voor drie auto's.

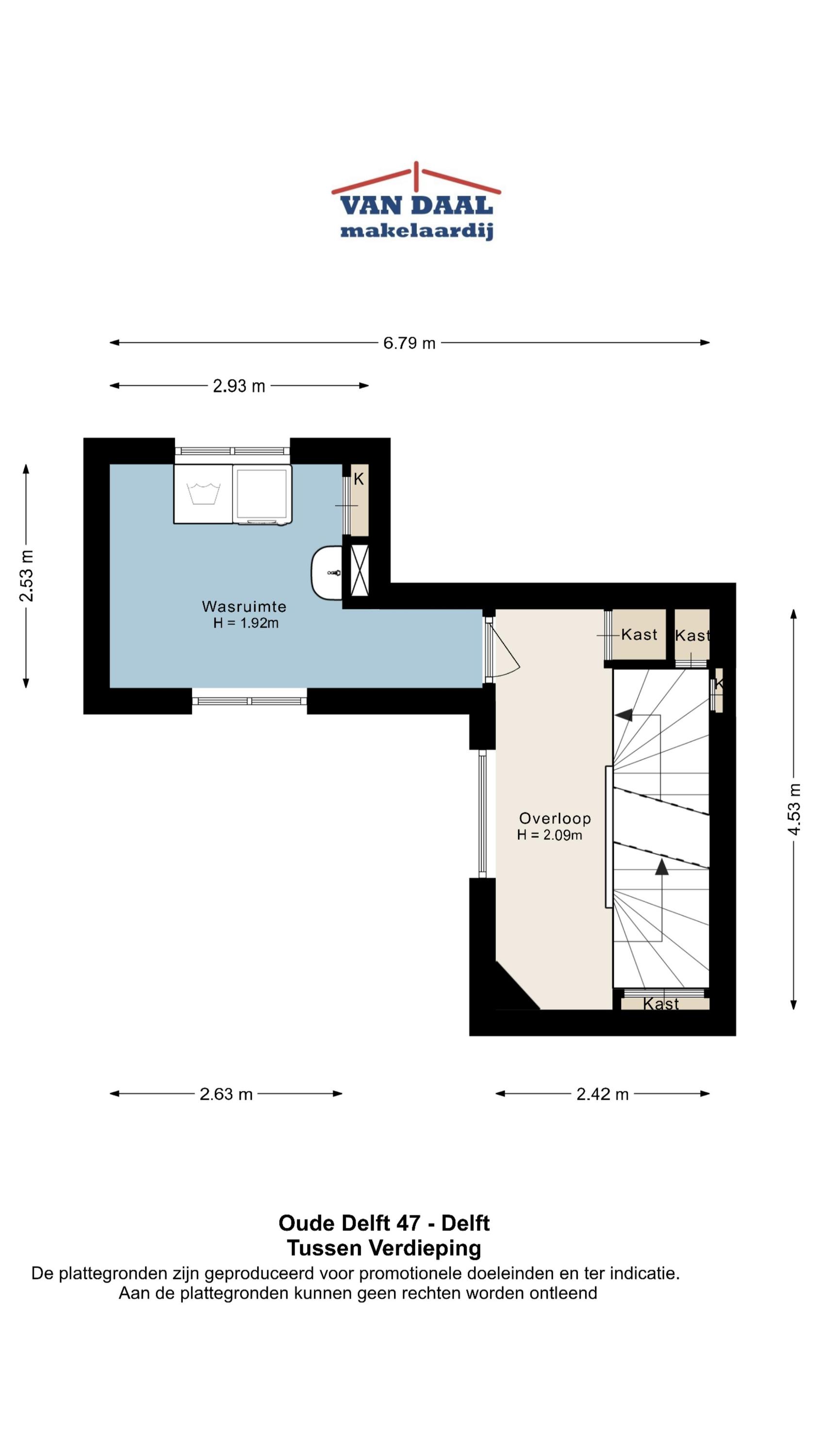
Tussenverdieping
Overloop met waskamer.

Via het elegante trappenhuis bereik je een slaapkamer in het achterhuis, voorzien van een imposant marmeren bad. En naast de slaapkamer: de master bathroom, met walk-in shower én een slimme waskoker die de was direct naar beneden laat verdwijnen.

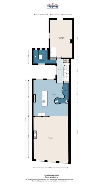
Eerste verdieping
Aan de grachtenzijde is de royale woonkamer met een indrukwekkende plafondhoogte van vier meter. De ruimte is voorzien van brede eikenhouten vloerdelen en biedt een prachtig uitzicht op de gracht en het historische Armamentarium.

Aan de achterzijde ligt de ruim opgezette, volledig uitgeruste keuken. Dit is een Bulthaup keuken, met Gaggenau-apparatuur. Door de indeling en het ontwerp vloeien koken en gezelligheid hier samen, met een uitnodigende bar.
In de woonkamer komt alles samen: hoge plafonds, unieke objecten en een marmeren open haard met Portugese tegels.
De muren ademen door de toepassing van leemstuc, en zorgen voor een heerlijk binnenklimaat, terwijl vloerverwarming en een warmtepomp zachtjes de temperatuur regelen. Zowel de woonkamer als de luxe keuken zijn verrijkt met een karakteristieke schouw, wat bijdraagt aan de authentieke sfeer. De toiletruimte is een bijzonder architectonisch element, vormgegeven met elegantie en ronde lijnen die perfect aansluiten bij de organische stijl van de woning.

In het achterhuis bevindt zich op de tweede verdieping een slaapkamer met zichtbare kapconstructie. Een wenteltrap leidt naar een extra verdieping binnen deze slaapkamer.

Tweede verdieping voorhuis
De verdieping opent met een brede overloop en een stijlvol vormgegeven toilet. De indeling is spectaculair: ronde welvingen in de wanden zorgen voor een natuurlijke scheiding tussen de verschillende ruimtes en versterken de organische architectuur van het huis. Er zijn twee ruime slaapkamers, een aparte berging en een royale wellnessruimte, compleet met een inloopdouche, dubbele wastafel, rond zitbad en een sauna.

Derde verdieping
Entree in het midden van de kapverdieping op een ruime overloop/werk-/speelruimte met dakvensters voor extra lichtinval. Sfeervolle slaapkamer aan de voorzijde met half inpandig balkon op het zuiden. Bergruimte met aangrenzende technische ruimte waar de warmtepompen en omvormers van de zonnepanelen zijn geplaatst.

Bijzonderheden / Kenmerken
• Bouwjaar circa 1653;
• Woonoppervlakte 543 m²;
• Rijksmonument binnen beschermd stadsgezicht;
• Grondige renovatie en verbouwing;
• Verwarming en warm water via warmtepompen;
• Buitenschilderwerk uitgevoerd in 2022;
• Voorzijde voorzien van Van Ruysdaelglas;
• Energielabel B (niet verplicht vanwege monumentstatus);
• Zonnepanelen en Zonneboilers aanwezig;
• Alarmsysteem en automatische deur opener aanwezig;
• Centraal stofzuigsysteem;
• Voor deze woning is een unieke woningwebsite beschikbaar;

Kortom:
Op nummer zevenenveertig van de Oude Delft… midden in de bruisende binnenstad… wacht een ontdekking.
Een zeldzaam rijksmonument uit 1653, in originele staat.
Download de brochure op Funda voor de link naar de website met alle gegevens en aanvullende informatie.

Oplevering in overleg.

Interesse in deze unieke woning?
Schakel direct uw eigen NVM-aankoopmakelaar in.
Uw NVM-aankoopmakelaar komt op voor uw belang en bespaart u tijd, geld en zorgen.
Adressen van collega NVM-aankoopmakelaars vindt u op Funda

Kenmerken

Zonnepanelen
Overdracht
Vraagprijs
€ 2.950.000 k.k.
Status
beschikbaar
Aanvaarding
in overleg
Bouw
Soort woonhuis
Grachtenpand
Soort bouw
tussenwoning
Bouwjaar
1653
Energieklasse
B
Soort dak
zadeldak
Slaapkamers
5
Badkamers
1
Oppervlakten en inhoud
Woonoppervlakte
543 m2
Overige inpandige ruimte
30 m2
Gebouwgebonden buitenruimte
5 m2
Externe bergruimte
9 m2
Inhoud
2417 m3
Perceeloppervlakte
301 m2
faciliteiten
Zonnecollectoren
Zonnepanelen
Aan water
In centrum
Baerz & Co Property Brochure

Brochure

Video’s

11 Makelaars - Amsterdam Noord

Mt. Lincolnweg 36 - 617
1033SN Amsterdam

info@11makelaars.nl
+31 20 20 50 208

www.11makelaars.nl

Informatie / bezichtigingsaanvraag

Niels Eering profile image
Niels Eering
Real Estate Agent

Een luxe woning kopen in Delft

Delft staat bekend om haar artistieke erfenis, verfijnde levensstijl en vooruitstrevend stedelijk karakter. De gemeenschap trekt veeleisende bewoners en investeerders aan, biedt maatwerk wonen, toegang tot topservices en internationale connecties.