Ons kantoor is lid van Baerz & Co Luxury Homes; een internationaal platform dat exclusieve woningmakelaars met elkaar verbindt. Neem contact op met ons secretariaat voor meer informatie over het landelijke aanbod, waarvan u hieronder een selectie kunt bekijken.

Woonboerderij te koop in DE HOEF

DE HOEF de Hoef Westzijde 47 - 1426 AT Nederland


John Korver profile image
John Korver
Real Estate Agent
+31 6 23 21 84 94
welkom@korvermakelaars.nl

Korver makelaars
Stationsweg 12
3641RG Mijdrecht
NETHERLANDS
+31 297 25 04 21
www.korvermakelaars.nl
welkom@korvermakelaars.nl

Woonoppervlakte
400m2
Perceeloppervlakte
4885m2
Slaapkamers
7

Omschrijving

Welkom bij deze buitengewone, vrijstaande rietgedekte woonboerderij, gelegen aan de schilderachtige oevers van de Kromme Mijdrecht in het idyllische De Hoef, vlakbij Amsterdam. Een plek waar rust, ruimte en natuurlijke schoonheid samenkomen met comfort, stijl en bereikbaarheid. Zodra je het erf oprijdt, valt alles op z’n plek: de charme van het rieten dak, de weidse uitzichten en de sfeer van thuiskomen. Bovendien een ideaal object voor de liefhebber en/of bezitter van paarden. Er is een eventuele mogelijkheid tot aankoop van het achtergelegen weiland ter grootte van 1,8 hectare.

Deze exclusieve woonboerderij is niet zomaar een huis. Het is een plek met karakter, een ziel. Alles is met liefde gerenoveerd, ingericht en onderhouden – dat voel je vanaf het allereerste moment dat je binnenstapt. Authentieke details en moderne afwerking gaan hier hand in hand. De rieten kap is recentelijk vernieuwd en vormt, samen met de rest van het huis, een prachtig geheel waar kwaliteit en sfeer moeiteloos samenkomen. De ruimtes zijn warm, royaal en uitnodigend, ideaal voor wie houdt van gezellig samenzijn én van ultieme privacy. Of je nu een boek leest bij de haard, geniet van lange diners met uitzicht op de ondergaande zon of wakker wordt met het geluid van vogels en kabbelend water – hier leef je écht.

Buiten wacht een gigantische achtertuin op je, met volop plek om te loungen, spelen, tuinieren of gewoon eindeloos te genieten van het uitzicht over het water en het groen. En dat water? Dat is niet alleen prachtig om naar te kijken – je kunt er ook in zwemmen, suppen, kanoën of met je bootje de omgeving verkennen. Ja, hier begin je de dag met een frisse duik of een tochtje over de Kromme Mijdrecht.

En dan te bedenken dat je je midden in de Randstad bevindt. De centrale ligging maakt het leven hier verrassend praktisch: binnen een mum van tijd ben je op de A2, A4, A9 of A10. Schiphol, de Zuidas, Amsterdam en omliggende steden zijn uitstekend bereikbaar. Alles wat je nodig hebt, van scholen en winkels tot sportfaciliteiten en openbaar vervoer, ligt binnen handbereik, terwijl je toch elke dag thuiskomt in een wereld van rust en ruimte.

Deze woonboerderij biedt het beste van twee werelden: de vrijheid en het buitenleven van het platteland, gecombineerd met de dynamiek en bereikbaarheid van de stad. Een zeldzame vondst, op een unieke plek.

Kom kijken, kom voelen – dit is geen huis, dit is een levensstijl.

De bijzondere indeling is als volgt:

BEGANE GROND
Via de zijgevel betreed je deze bijzondere woonboerderij, waar je welkom wordt geheten in een royale hal met een prachtige lichte vide die meteen de hoogte en ruimtelijkheid van het huis benadrukt. De hal is voorzien van een riante garderoberuimte en een luxe toiletruimte, waarin een imposant wastafelmeubel met een stenen waskom direct in het oog springt. In de hal vindt u achter een van de kasten de c.v.-installatie en heeft ook de meterkast een plekje. De stijlvolle trapopgang leidt naar de verdieping. Vanuit de hal heb je vanzelfsprekend toegang tot de vertrekken op de begane grond.

Rechts van de hal betreed je een adembenemende ruimte: de voormalige stal, nu getransformeerd tot een sfeervolle woonkamer en leefkeuken. Authentieke details, zoals de originele stalramen en de charmante houten luiken naar de vroegere hooizolder, herinneren nog aan het agrarische verleden. De betonvloer is voorzien van comfortabele vloerverwarming en aan het plafond hangen een paar robuuste turnringen – een speelse uitnodiging om het kind in jezelf de ruimte te geven. Zie het voor je: je zwaait jezelf van de ene kant van de ruimte naar de andere, met de zon die naar binnen valt door de hoge ramen. Of je nu kinderen hebt die er dolle pret mee beleven, of zelf even loskomt van de grond – deze details geven de ruimte net dat beetje extra karakter.

In het midden van de achtergevel prijken imposante stalen openslaande deuren, die de tuin als het ware naar binnen halen. Aan weerszijden vind je twee extra loopdeuren voor praktische toegang.

Blikvanger in de woonkamer is ongetwijfeld de grote open haard, omringd door een op maat gemaakte houtopslag waarin de televisie subtiel is verzonken. Dit unieke meubelstuk is een ontwerp van Don Zweedijk van De Mogelijkheidcollectie – een perfecte mix van kunst en functionaliteit.

De leefkeuken is ronduit spectaculair. De eyecatcher is de koperen bar met daaronder een ingebouwde horecakoelkast met maar liefst zeven lades – ideaal voor de culinaire liefhebber. Het royale aanrechtblad herbergt een imposant Viking fornuis met vier gaspitten en een bakplaat, klaar voor ieder gastronomisch avontuur. Centraal in de ruimte staat een spoeleiland met een hardstenen blad, voorzien van een vaatwasser en veel opbergruimte. Boven het eiland hangt een stoer hangrek, perfect voor potten, pannen en keukengerei die gezien mogen worden.

Weer terug in de hal, bevindt zich aan de linkerzijde een charmante slaap- of werkkamer. Deze kamer is slim ingedeeld met ingebouwde kasten en beschikt over een eigen deur naar buiten – ideaal voor wie rustig wil thuiswerken of gasten een privéplek wil bieden.

De opkamer is bereikbaar via een trap, waaronder zich de voormalige kaaskelder bevindt. Een ingenieus stukje vakmanschap: een deel van de trap kan worden geopend, waarna je toegang krijgt tot de kelder. Daar tref je nog steeds de originele houten kaasbakken aan – stille getuigen van een ambachtelijk verleden, waarin hier dagelijks geurige kazen lagen te rijpen. De opkamer zelf, gelegen pal boven deze karaktervolle ruimte, ademt sfeer en historie. Het is een verrassende extra ruimte die zich leent voor talloze invullingen: als knusse tv-kamer, rustige werkkamer of juist als speelkamer waar kinderen ongestoord hun gang kunnen gaan.

Aan de voorzijde van de woning bevindt zich een royale slaapkamer die zich uitstrekt over de volledige breedte. Een kamer met rust en ruimte, voorzien van een grote inbouwkast én een stijlvolle en suite badkamer. Deze badkamer is afgewerkt met een schuifdeur naar de douche, waarin je kunt kiezen tussen een luxe regendouche of een praktische handdouche. Het moderne wastafelmeubel maakt het geheel compleet – strak, functioneel en mooi in lijn met de rest van het interieur.

Wat deze slaapkamer extra bijzonder maakt, is het weidse uitzicht op het water van de Kromme Mijdrecht. Vanuit bed kijk je uit over het kabbelende water en het omliggende groen – een uitzicht dat elk moment van de dag rust brengt, of het nu bij het ontwaken is met de eerste zonnestralen, of juist in de avond als het licht langzaam over het water glijdt.

VERDIEPING
Via een brede, lichte trap kom je uit op een royale overloop waar het daglicht rijkelijk binnenvalt. De vide zorgt voor een prachtige doorkijk naar beneden en laat het licht vrij stromen door het hart van het huis. Deze verdieping ademt karakter en vakmanschap – met een speelse indeling, rijke materialen en bijzondere elementen.

De voormalige hooizolder is nu getransformeerd tot een indrukwekkende hoofdslaapkamer. De dakkapel zorgt voor veel licht, terwijl de aangrenzende walk-in closet een droom is voor iedere liefhebber van ruimte en stijl. In deze master suite vind je ook een open badkamer, stijlvol en stoer uitgevoerd met een zinken ligbad als blikvanger. Verder is er een royale zinken douchebak met stortdouche, en een wastafelmeubel met een robuuste hardstenen wasbak. De aparte toiletruimte is subtiel afgesloten voor extra privacy.

De midden slaapkamer met eveneens een dakkapel heeft een unieke, op maat gemaakte kast – een kunstwerk op zich, ontworpen door kunstenaar Daan van den Berg. Deze ruimte combineert praktisch gemak met creatieve flair.

De derde slaapkamer is knus en charmant, voorzien van een dakraam dat zorgt voor natuurlijk licht en ventilatie – ideaal als kinderkamer, thuiskantoor of logeerplek.

Er is ook een tweede badkamer op deze verdieping, functioneel ingericht met een klassieke granito vloer en een dakraam. Je vindt hier aansluitingen voor wasmachine en wasdroger, een inloopdouche, toilet en voldoende ruimte voor dagelijkse routines.

Tot slot is er aan de voorzijde een vierde slaapkamer die zich uitstrekt over de volledige breedte van de boerderij. Deze kamer is een waar pronkstuk dankzij het bijzondere raam en een ingebouwde bedstee, ontworpen door kunstenaar Rob Vrijen, met rondom praktische bergkasten. In de kastdeuren zijn oude deuren uit de oorspronkelijke boerderij verwerkt – een subtiele knipoog naar de historie van het pand.

Via een vaste ladder is er toegang tot de grote bergzolder, die zich uitstrekt over bijna de hele lengte van de boerderij. Deze zolder wordt nu veelvuldig gebruikt als logeerplek – sfeervol, ruim en vol potentie.

De woonoppervlakte van de woonboerderij zijn is 336 m².

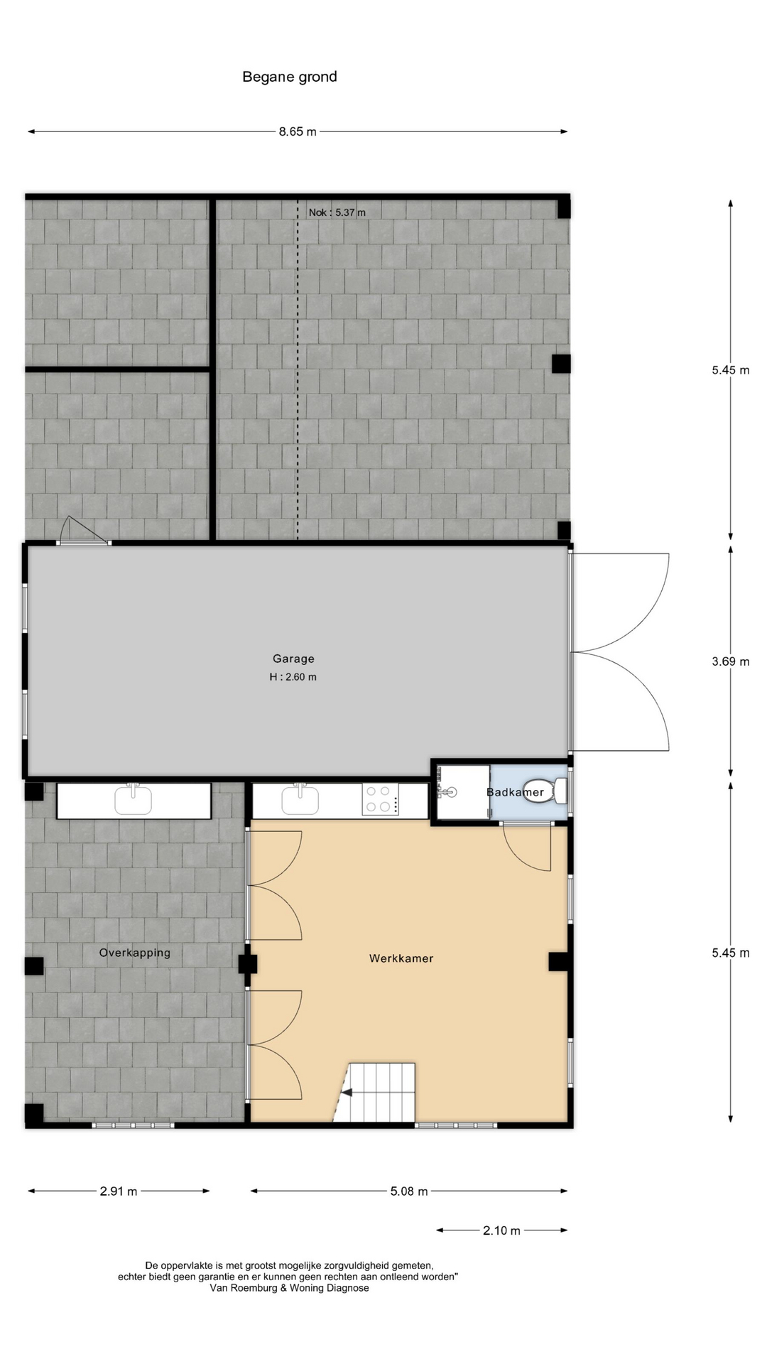
BIJGEBOUW
Aan de zijkant van de woonboerderij vind je het bijgebouw – een verrassend complete en sfeervolle plek met volop mogelijkheden. Je start hier onder de overkapping, waar een bijzondere buitenkeuken met doorlopend aanrechtblad direct in het oog springt. Het blad loopt van buiten naadloos door naar binnen, waar het dienstdoet als werkblad in de keukenruimte. Praktisch én stijlvol in één vloeiende lijn.

Achter twee keer dubbele deuren kom je in de ruimte die nu als werkkamer wordt gebruikt. Deze is voorzien van een nette keukenopstelling met het eerder genoemde aanrechtblad, een gaskookplaat en een spoelbak. Ook aan comfort is gedacht: er is een compacte badkamer met douche en toilet aanwezig.

Via de trap bereik je de eerste verdieping, momenteel ingericht als logeer-woonkamer. Ook hier is slim gebruikgemaakt van de ruimte, met onder andere een praktische bergkast – een ontwerp van Rob Vrijen. Voor deze kast zijn oude deuren uit de boerderij hergebruikt, wat zorgt voor een mooi stukje historie in een eigentijds ontwerp.

In het midden van het bijgebouw bevindt zich een ruime garage met dubbele deuren. Aan de andere zijde vind je nog een overkapping (nu in gebruik als opslag) en een carport met elektrische laadpaal. Deze kant van het bijgebouw biedt vergelijkbare ruimte als de andere zijde. Met enkele aanpassingen zou hier dus eenvoudig een tweede slaap-/werk-/woonvertrek gerealiseerd kunnen worden.

Kortom: een multifunctioneel bijgebouw met karakter, comfort en volop mogelijkheden voor eigen invulling.

De woonoppervlakte van het bijgebouw is 64 m².

PAARDENSTAL
Links achter de woning staat de voormalige paardenstal van 41 m² – een charmant bijgebouw met een nieuwe functie. Wat ooit onderdak bood aan paarden, wordt nu praktisch gebruikt als berging. De basis is stevig en verzorgd: het dak is recent vernieuwd en de ruimte is voorzien van elektriciteit en water, waardoor het gebouw klaar is voor veelzijdig gebruik.

Of je nu extra opslagruimte nodig hebt, een werkplaats overweegt of droomt van een hobbyruimte: deze paardenstal biedt een solide uitgangspunt met karakter en potentie.

DE TUIN
Rondom de woonboerderij ontvouwt zich een tuin die voelt als een eigen stukje natuur – groot, groen en verrassend onderhoudsarm. Het is een plek waar je moeiteloos tot rust komt, waar kinderen avonturen beleven en waar je elk seizoen intens beleeft.

Aan de achterzijde van de woning strekt het perceel zich breed uit, met een sfeervolle zitplek die een prachtig uitzicht biedt over de achtergelegen weilanden. Hier drink je koffie in de ochtendzon, dineer je met vrienden tijdens zwoele zomeravonden of droom je weg terwijl je over het landschap tuurt – stilte, ruimte en vrijheid in optima forma.

De tuin zelf heeft iets weg van een bos, met volgroeide bomen, speelse doorkijkjes en een natuurlijke indeling die tegelijkertijd overzichtelijk en verrassend is. En ja, er is zelfs een boomhut – stevig gebouwd en voorzien van een tokkelbaan – de ultieme speelplek voor kinderen (en stiekem ook voor volwassenen).

Aan de zijkant ligt de recent vernieuwde grindoprit, die niet alleen bijdraagt aan de verzorgde uitstraling van het erf, maar ook veel parkeerruimte biedt voor bewoners en gasten.

De voortuin is al even charmant: een royale groene entree met volwassen bomen die zorgen voor schaduw en sfeer. Maar misschien wel het mooiste aan de voorkant is de ligging aan de Kromme Mijdrecht. Hier beschik je over een eigen aanlegsteiger – een droom voor waterliefhebbers. Spring 's zomers direct vanaf je erf het water in voor een verfrissende duik, pak de sup, stap in een kano of maak een ontspannen vaartocht over de slingerende rivier. Hier wordt buitenleven een vanzelfsprekendheid.

Deze tuin is geen standaard achterplaats – het is een verlengstuk van het huis, een leefruimte op zich, rijk aan mogelijkheden en karakter. Of je nu zoekt naar ruimte om te spelen, te ontspannen, te genieten of te ontdekken: deze tuin geeft je precies wat je nodig hebt.

Wat maakt deze woonboerderij écht uniek?
+ Een beschermd stukje erfgoed – Deze woonboerderij is een gemeentelijk monument, wat zorgt voor een unieke uitstraling én een tastbare link met de geschiedenis van de regio.
+ Wonen aan het water – Met een eigen aanlegsteiger aan de Kromme Mijdrecht geniet je van zwemmen, suppen, varen of gewoon eindeloos turen over het kabbelende water.
+ Rijke historie, modern comfort – Authentieke details zoals stalramen, oude kaasbakken en hergebruikte boerendeuren gaan moeiteloos samen met stijlvolle, eigentijdse afwerking.
+ Rietgedekt en royaal – Een recent vernieuwd (2024) rieten dak, een indrukwekkend woonoppervlak en een karakteristieke uitstraling van top tot teen.
+ Spectaculaire keuken en leefruimtes – Denk: een Viking fornuis, koperen bar, open haard met kunstzinnige kast én vloerverwarming onder een robuuste betonvloer.
+ Volop extra’s buiten het hoofdgebouw – Een multifunctioneel bijgebouw met buitenkeuken, logeerverdieping, garage, carport én potentieel tweede gastenverblijf.
+ Tuin met wauw-factor – Bosachtig en onderhoudsarm, met uitzicht op weilanden, een boom

Kenmerken

Overdracht
Vraagprijs
€ 2.695.000 k.k.
Status
verkocht onder voorbehoud
Aanvaarding
in overleg
Bouw
Soort woonhuis
Woonboerderij
Soort bouw
vrijstaande woning
Bouwjaar
1880
Soort dak
zadeldak
Slaapkamers
7
Badkamers
4
Oppervlakten en inhoud
Woonoppervlakte
400 m2
Overige inpandige ruimte
32 m2
Gebouwgebonden buitenruimte
35 m2
Externe bergruimte
76 m2
Inhoud
1485 m3
Perceeloppervlakte
4885 m2
faciliteiten
Aan rustige weg
Vrij uitzicht
Beschutte ligging
Aan vaarwater
Landelijk gelegen
Baerz & Co Property Brochure

Brochure

Informatie / bezichtigingsaanvraag

Video's

Foto's

Plattegronden