Ons kantoor is lid van Baerz & Co Luxury Homes; een internationaal platform dat exclusieve woningmakelaars met elkaar verbindt. Neem contact op met ons secretariaat voor meer informatie over het landelijke aanbod, waarvan u hieronder een selectie kunt bekijken.

BREDA
Brabantlaan 14 - 4817 JW
Nederland

Lennart van Oosterhout profile image
Lennart van Oosterhout
Real Estate Agent
€1.995.000 k.k.
Woonoppervlakte
229m2
Perceeloppervlakte
660m2
Slaapkamers
4

Omschrijving

In de zeer gewilde villawijk "Van Koolwijkpark"gelegen, bijzonder sfeervolle en geheel gemoderniseerde villa met tuin
rondom en een volledige privacy biedende achtertuin met een modern zwembad.

Deze uitstekend onderhouden woning biedt onder andere een mooie, tuingerichte woonkamer, 5 (slaap-werk)kamers en 2 badkamers.

De ligging is uniek, in een zeer rustige woonwijk aan de rand van het centrum, op fietsafstand van alle denkbare voorzieningen en op loopafstand van onder andere het theater, de bioscoop en het centrum van Breda.
HAL/ENTREE
Hal/ entree met dubbele voordeur, garderobe, trapopgang naar
verdieping I en toegang tot portaal waarop uitkomen:

TOILET
Toiletruimte met wandcloset met inbouwreservoir en fonteintje.

KELDER
Kelder op stahoogte.

VOORKAMER
Voorkamer (nu in gebruik als werkkamer).
Deze sfeervolle kamer is voorzien van brede eiken vloerdelen.
Openslaande deuren bieden toegang tot de voortuin.

KEUKEN
Keuken met luxe inrichting van het merk Valcucine, bestaand uit een eiland met composiet blad met RVS spoelbak, combi- Quooker, BORA- inductiekookplaat met afzuiger (geïntegreerd), een eetbar en diverse kasten en lades. Wandmeubel met 2 koelkasten, een vriezer, espressomachine, combi-oven en 2 warmhoudlades en een vaatwasser. Aan de andere zijde is een meubel/koffiecorner geplaatst met klein composiet werkblad en kastruimte. Een loopdeur biedt toegang tot de tuin.

EETKAMER
De eetkamer grenst aan de keuken en gaat over in de woonkamer. In deze eetkamer tref je een wandmeubel met veel
kastruimte en een in een meubel geïntegreerde gashaard. Openslaande deuren verbinden deze kamer met de tuin.

WOONKAMER
Riante, lichte woonkamer met zowel aan voor- als achterzijde dubbele deuren naar de tuin. In deze woonkamer, die geheel is voorzien van brede houten vloerdelen, is een moderne schouw met inzethaard (houtgestookt) geplaatst. Het hoge loft-achtige plafond geeft een heerlijk ruimtelijk gevoel. Bovendien heb je vanuit de woonkamer fantastisch zicht op zowel de voor- als achtertuin. Woonkamer en eetkamer zijn van elkaar gescheiden middels schuifdeuren.
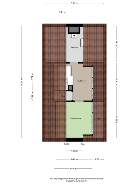
EERSTE VERDIEPING
OVERLOOP
Lichte overloop met toegang tot de diverse vertrekken;

SLAAPKAMER I
Ruime voorslaapkamer met Frans balkon en extra ruimtelijk effect doordat de kapconstructie in het zicht gebleven is. In deze kamer tref je een entresol/hoogslaper. Bovendien is deze kamer voorzien van airconditioning.

Grote vaste kast waarin aansluitpunten ten behoeve van wasmachine en droger.

Grote garderobekast.

TOILET
Toiletruimte met wandcloset met inbouwreservoir en fonteintje.

BADKAMER I
Badkamer met luxe inrichting, bestaand uit riante inloopdouche met hand- en regendouche, ligbad met designkraan en
wastafelmeubel met brede wastafel en dubbele kranen.

SLAAPKAMER II
Achterslaapkamer met garderobekast.

SLAAPKAMER III
Hoofdslaapkamer, aan de achterzijde gelegen, met prachtig zicht op de tuin en achtergelegen parkje.
Openslaande deuren geven toegang tot het balkon. Ook deze kamer is voorzien van airconditioning. Aan de zijkant is een ruime garderobekast geplaatst.

BADKAMER II
Aangrenzend treft u de tweede badkamer met inloopdouche met dubbele douchekop met thermostaatkranen, een wastafelmeubel en een toilet met inbouwreservoir.
TWEEDE VERDIEPING
OVERLOOP
Overloop met dakkapel: hierin is een fijne brede werkplek gecreëerd. En ook hier tref je een inbouwkast. Aan de voorzijde is een Velux dakraam voor extra daglichttoetreding geplaatst.

SLAAPKAMER IV
Achterslaapkamer met dakkapel en bergruimte achter de knieschotten. Ook deze kamer is uitgerust met airconditioning.

ZOLDER
Zolderruimte waar de mechanische ventilatie-unit en de Remeha cv-combiketel geplaatst zijn.
TUIN
De tuin is ontworpen door Ronnie Renette, Arterior en voorzien van een gazon, een modern, strak zwembad met roldek/solardek en warmtepomp, diverse terrassen. In de borders tref je variërende beplanting, siergrassen etc. Ook
tref je in deze prachtig aangelegde tuin diverse boompjes en hagen.

BERGING
Naast de woning is een zeer ruime berging geplaatst, deze is voorzien van water- en electra-aansluitingen. Ook tref je hier de (volautomatische) zwembadinstallatie alsmede een extra groepenkast. Deze ruime berging biedt daarnaats plaats aan tuingereedschap, fietsen etc. etc. Aan de voorzijde, middels een elektrisch bedienbare poort afsluitbaar, is parkeergelegenheid voor meerdere auto's.
WAT U VERDER NOG MOET WETEN
• De woning is deels voorzien van vloerisolatie, geheel voorzien van dakisolatie en muurisolatie,
alsmede geheel voorzien van dubbel glas.

• Er zijn 19 zonnepanelen geplaatst.

• De woning beschikt over een meterkast met 16 groepen en tweede groepenkast in de garage.

• De eerste en tweede verdieping zijn geheel voorzien van brede houten vloerdelen, op de begane grond zijn de hal, keuken en eetkamer voorzien van natuursteen, de woonkamer van brede houten vloerdelen.

Kenmerken

Zwembad
Zonnepanelen
Air conditioning
Overdracht
Vraagprijs
€ 1.995.000 k.k.
Status
verkocht onder voorbehoud
Aanvaarding
in overleg
Bouw
Soort woonhuis
Villa
Soort bouw
vrijstaande woning
Bouwjaar
1955
Energieklasse
D
Slaapkamers
4
Badkamers
2
Oppervlakten en inhoud
Woonoppervlakte
229 m2
Overige inpandige ruimte
44 m2
Gebouwgebonden buitenruimte
28 m2
Inhoud
1010 m3
Perceeloppervlakte
660 m2
faciliteiten
Mechanische ventilatie
Zwembad
Airconditioning
Dakraam
Zonnepanelen
Baerz & Co Property Brochure

Brochure

Video’s

Plattegronden

Storimans en Partners

Ginnekenweg 161
4818 JD Breda

lvanoosterhout@storimansenpartners.nl
+31 76 522 60 90

www.storimansenpartners.nl

Informatie / bezichtigingsaanvraag

Lennart van Oosterhout profile image
Lennart van Oosterhout
Real Estate Agent

Een luxe woning kopen in Breda

Breda trekt een veeleisende internationale gemeenschap met elegante woningen, een verfijnde levensstijl en hoogstaande vastgoedservice. De combinatie van rijk erfgoed en moderne voorzieningen maakt de stad blijvend geliefd bij wie stijlvol en comfortabel wil wonen in een energiek Nederlands decor.