Baerz & Co is een landelijk samenwerkingsverband van zorgvuldig geselecteerde boutique luxury makelaars. Samen vormen wij één netwerk, met één gedeeld aanbod. De woningen die u op onze website ziet, zijn afkomstig van alle aangesloten kantoren binnen Baerz & Co. Daardoor is niet ieder object rechtstreeks door ons kantoor in verkoop, maar door een gespecialiseerde collega binnen ons netwerk. Heeft u een woning gevonden die u aanspreekt en wilt u meer informatie? Dan brengen wij u graag persoonlijk in contact met de betreffende verkoopmakelaar, zodat u direct en zorgvuldig wordt begeleid.

BERGSCHENHOEK
Oltmansstraat 17 - 2662 AA
Nederland

Niels Eering profile image
Niels Eering
Real Estate Agent
€998.000 k.k.
Woonoppervlakte
174m2
Perceeloppervlakte
635m2
Slaapkamers
4

Omschrijving

***Englisch text below***

Wonen aan de Oltmansstraat 17 is wonen op niveau: licht, ruimte en rust komen hier op een unieke manier samen.

Deze gasloze, royale woning met een woonoppervlakte van ca. 174 m² ligt op een prachtig perceel van 635 m², direct aan het water. De uitgebouwde woonkamer vormt het hart van het huis en biedt dankzij de grote raampartijen, vloerverwarming en schuifpui naar de tuin een indrukwekkend gevoel van ruimte en comfort. Binnen en buiten vloeien hier naadloos in elkaar over. De separate, recent vernieuwde keuken met moderne inbouwapparatuur en een sfeervol zitgedeelte is ideaal voor zowel dagelijks gebruik als gezellige momenten met familie en vrienden. Met vier slaapkamers, een praktische zolderverdieping en veel privacy is dit een woning die volledig aansluit bij comfortabel gezinsleven.

De zonnige achtertuin op het westen is fraai aangelegd en beschikt over meerdere terrassen, een stijlvolle overkapping en een vlonder aan de singel — een heerlijke plek om te ontspannen tot in de late uurtjes. Aan de voorzijde is parkeergelegenheid voor drie auto’s op eigen terrein en directe toegang tot de garage.

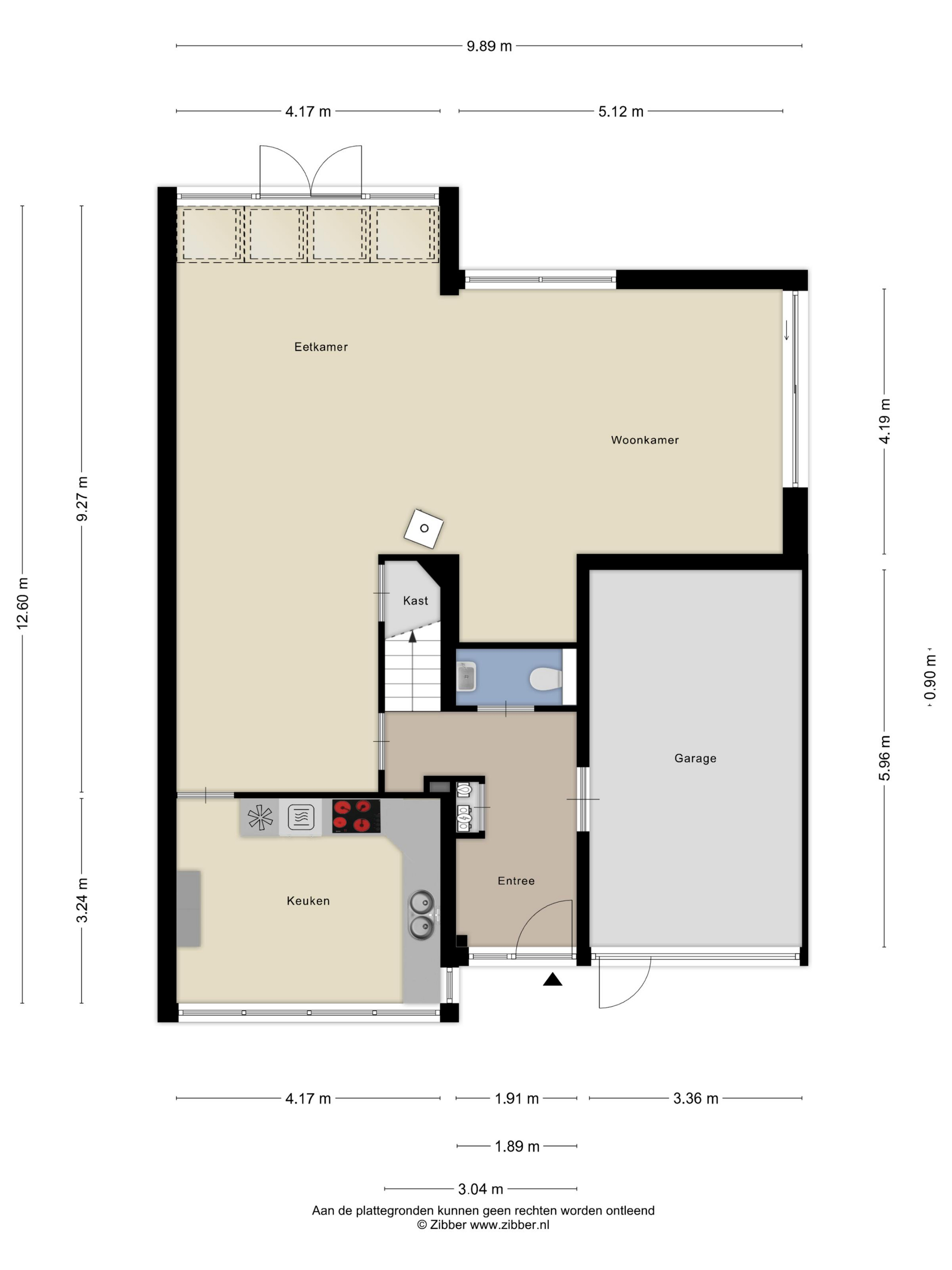
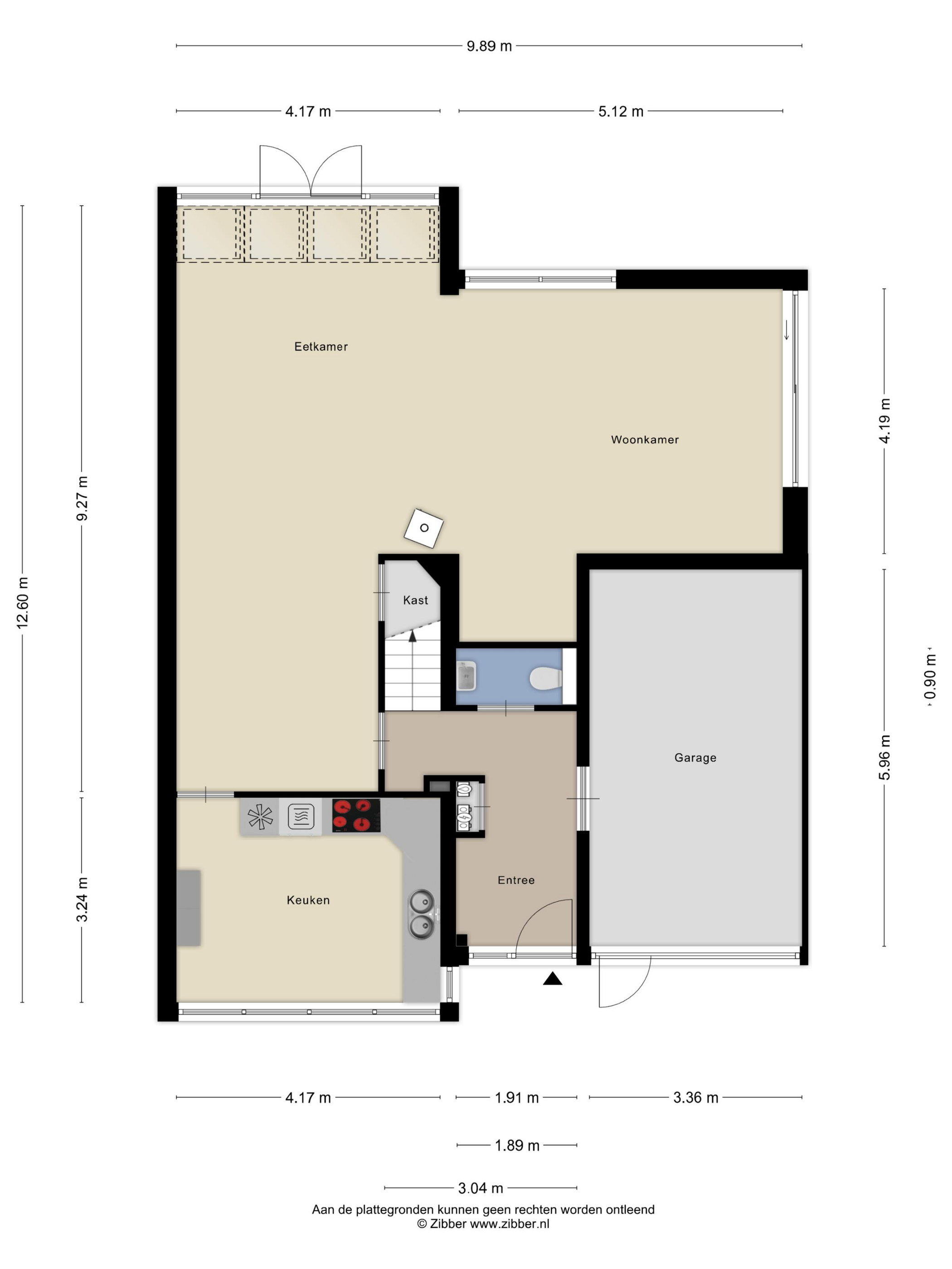
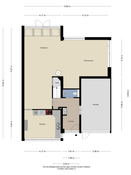
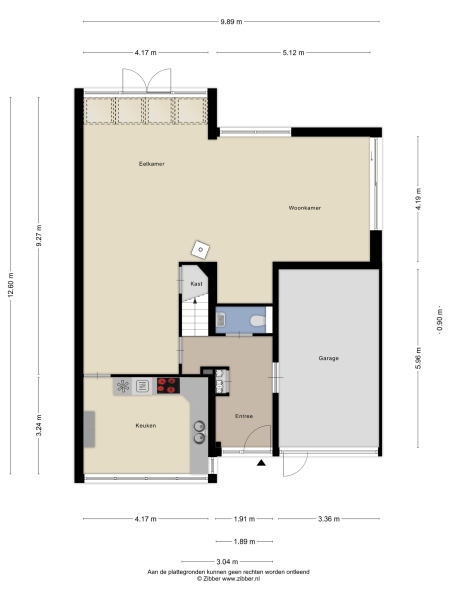
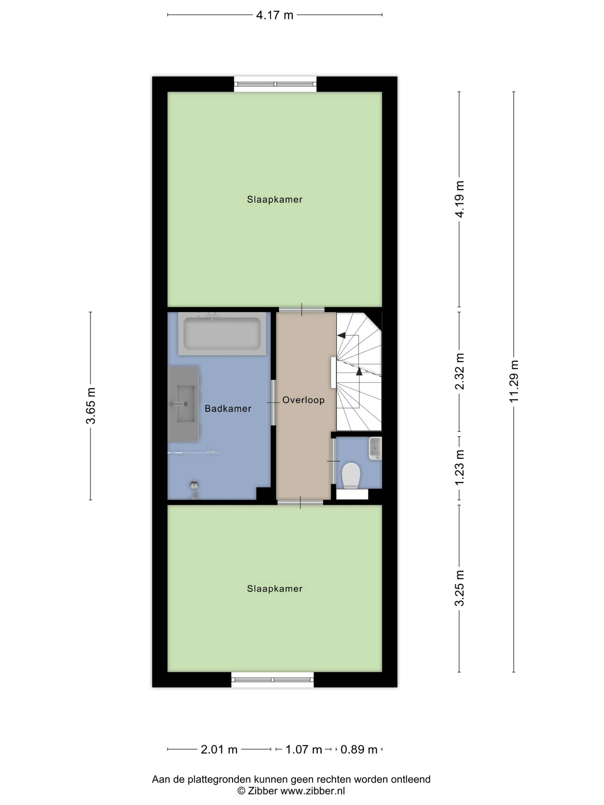
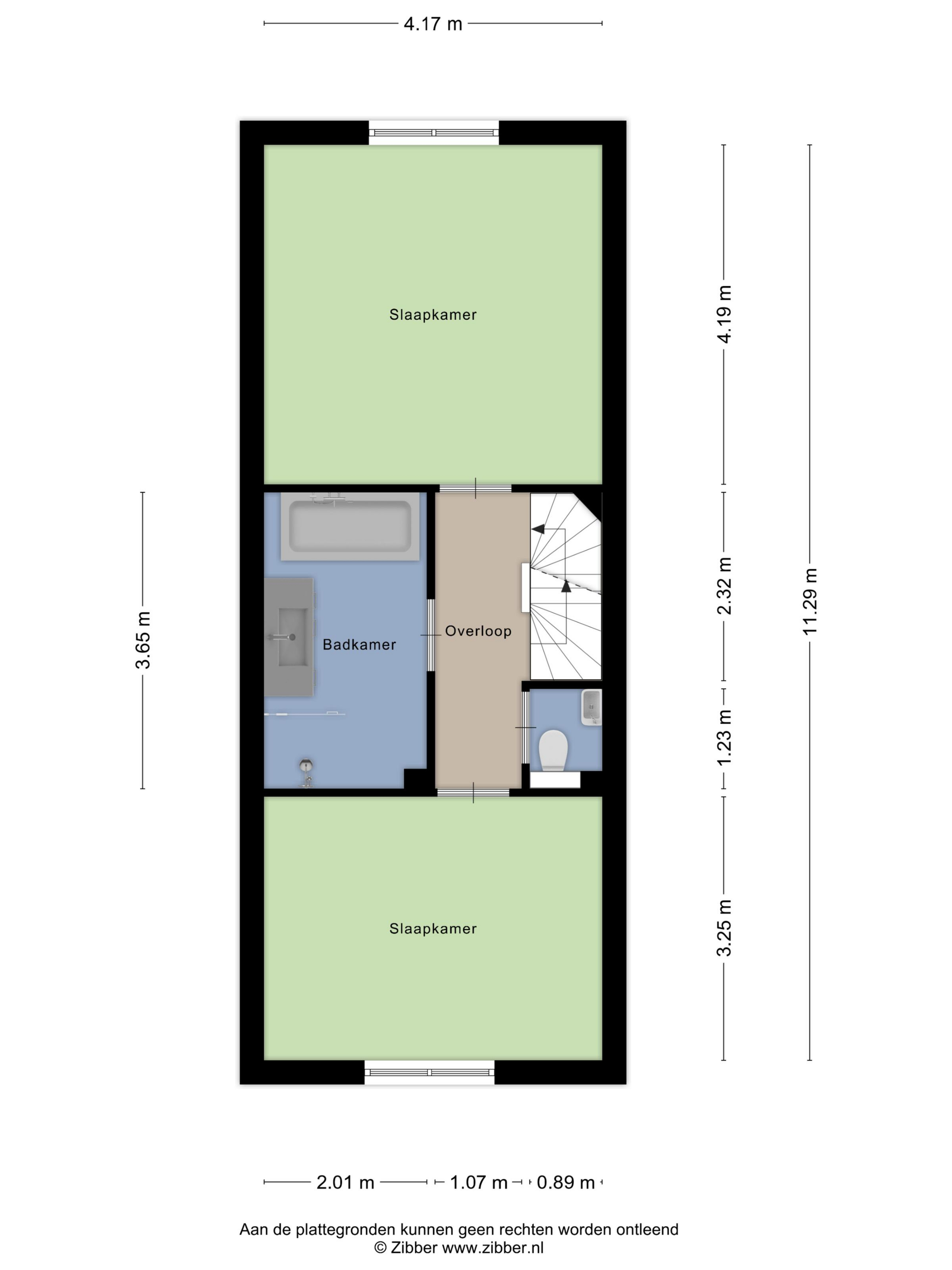
Indeling

Begane grond:
• Ruime hal/entree met toilet en meterkast
• Uitgebouwde, lichte woonkamer met vloerverwarming, plavuizenvloer, openslaande deuren én schuifpui naar de tuin
• Aparte keuken in L-opstelling met o.a. inductiekookplaat, vaatwasser, dubbele spoelbak, afzuigkap, oven en koel-/vriescombinatie

1e verdieping:
• Overloop met separaat toilet
• Twee ruime slaapkamers met Frans balkon
• Moderne badkamer met ligbad, douche, wastafelmeubel, vloerverwarming en designradiator

2e verdieping:
• Twee lichte slaapkamers, beide met Frans balkon
• Fonteintje en aansluitingen voor wasmachine en droger
• Extra afsluitbare berging: ideaal voor opslag, koffers, kerstspullen of hobby

Locatie:
De woning ligt in een rustig, autoluw hofje zonder doorgaand verkeer, ideaal voor rustzoekers en gezinnen.
Scholen, winkels, kinderopvang, sportverenigingen, horeca en het centrum van Bergschenhoek liggen op loopafstand.
Daarnaast fiets je zo naar recreatiegebied Rottemeren, natuurgebieden en diverse sport- en speelvoorzieningen.
De nieuwe verbinding met de A16 en omliggende uitvalswegen (N209, A13, A12, A20) zorgt ervoor dat je binnen korte tijd in Rotterdam, Den Haag, Delft of Zoetermeer bent.
Hier woon je rustig, maar toch midden in het gemak van de Randstad.

Bijzonderheden:
• Bouwjaar 2001
• Woonoppervlakte ca. 174 m²
• Perceel van ca. 635 m²
• Royale woonkamer met vloerverwarming
• Zonnige tuin op het westen, direct aan het water
• Vier slaapkamers + extra zoldergedeelte met bergruimte en deur
• Moderne badkamer + extra toilet op de 1e verdieping
• Fonteintje en witgoedaansluitingen op zolder
• Eigen oprit voor drie auto’s + garage
• Rustig, autoluw hofje
• Scholen, winkels en OV op loopafstand
• Oplevering in overleg en de complete inboedel is ter overname

Dit is een woning die je niet alleen moet zien, maar vooral moet voelen. We laten je graag ervaren hoe licht, ruimte en uitzicht hier samenkomen, welkom aan de Oltmansstraat 17.

Wij nodigen je van harte uit om deze ruime woning met eigen ogen te bewonderen.

Alle verstrekte informatie moet beschouwd worden als een uitnodiging tot het doen van een bod of om in onderhandeling te treden. De teksten en impressies zijn bedoeld om een goede indruk te geven van het object. Aan de inhoud ervan is de grootst mogelijke zorg besteed. Desondanks is alle informatie nadrukkelijk onder voorbehoud. Er kunnen geen rechten worden ontleend aan deze woninginformatie.

Koopovereenkomst pas rechtsgeldig na ondertekening:
Een mondelinge overeenstemming tussen de particuliere verkoper en de particuliere koper is niet rechtsgeldig. Met andere woorden: er is geen koop. Er is pas sprake van een rechtsgeldige koop als de particuliere verkoper en de particuliere koper de koopovereenkomst hebben ondertekend. Dit vloeit voort uit artikel 7:2 Burgerlijk Wetboek. Een bevestiging van de mondelinge overeenstemming per e-mail of een toegestuurd concept van de koopovereenkomst wordt overigens niet gezien als een 'ondertekende koopovereenkomst'.

Toelichtingsclausule Meetinstructie:
De woning is conform de Branchebrede Meetinstructie (BBMI) opgemeten. De Meetinstructie is bedoeld om een meer eenduidige manier van meten toe te passen voor het geven van een indicatie van de gebruiksoppervlakte. De Meetinstructie sluit verschillen in meetuitkomsten niet volledig uit, door bijvoorbeeld interpretatieverschillen, afrondingen of beperkingen bij het uitvoeren van de meting.

Living at Oltmansstraat 17 means living at a higher level, where light, space and tranquility come together in a truly unique way.

This spacious, gas-free home offers approximately 174 m² of living space and is situated on a beautiful 635 m² plot directly bordering the water. The extended living room forms the heart of the house and creates an impressive sense of openness and comfort thanks to its large windows, underfloor heating and sliding doors leading to the garden. Indoor and outdoor living blend seamlessly here. The separate, recently renovated kitchen features modern built-in appliances and a cozy seating area, making it perfect for both everyday use and enjoyable moments with family and friends. With four bedrooms, a practical attic floor and a high level of privacy, this home is perfectly suited for comfortable family living.

The sunny west-facing backyard is beautifully landscaped and includes multiple terraces, a stylish covered seating area and a wooden deck by the canal — an ideal place to relax well into the evening. At the front of the property, there is private parking for three cars on the driveway, as well as direct access to the garage.

Layout

Ground floor:
Spacious entrance hall with toilet and meter cupboard
Extended, bright living room with underfloor heating, tiled flooring, French doors and sliding doors to the garden
Separate L-shaped kitchen equipped with an induction hob, dishwasher, double sink, extractor hood, oven and fridge-freezer combination

First floor:
Landing with separate toilet
Two spacious bedrooms, each with a French balcony
Modern bathroom with bathtub, shower, washbasin unit, underfloor heating and designer radiator

Second floor:
Two bright bedrooms, both with French balconies
Small washbasin and connections for washing machine and dryer
Additional lockable storage room, ideal for storage, suitcases, seasonal items or hobbies

Location:
The property is located in a quiet, car-free residential courtyard with no through traffic, making it ideal for those seeking peace and for families.
Schools, shops, childcare facilities, sports clubs, restaurants and the center of Bergschenhoek are all within walking distance.
Recreational area Rottemeren, nature reserves and various sports and play facilities are easily accessible by bicycle.
Thanks to the new connection to the A16 and nearby main roads (N209, A13, A12 and A20), cities such as Rotterdam, The Hague, Delft and Zoetermeer can be reached within a short time.
Here you enjoy a peaceful living environment while still benefiting from the convenience of the Randstad metropolitan area.

Key features:

* Built in 2001
* Living area approx. 174 m²
* Plot size approx. 635 m²
* Spacious living room with underfloor heating
* Sunny west-facing garden directly on the water
* Four bedrooms plus additional attic storage area
* Modern bathroom and extra toilet on the first floor
* Washbasin and laundry connections on the attic floor
* Private driveway for three cars plus garage
* Quiet, car-free residential courtyard
* Schools, shops and public transport within walking distance
* Delivery in consultation

This is a home you don’t just have to see — you have to feel it. We would be delighted to let you experience how light, space and views come together here. Welcome to Oltmansstraat 17.

Kenmerken

Overdracht
Vraagprijs
€ 998.000 k.k.
Status
beschikbaar
Aanvaarding
in overleg
Bouw
Soort woonhuis
Eengezinswoning
Soort bouw
geschakelde woning
Bouwjaar
2001
Energieklasse
A
Soort dak
lessenaardak
Slaapkamers
4
Badkamers
1
Oppervlakten en inhoud
Woonoppervlakte
174 m2
Overige inpandige ruimte
20 m2
Externe bergruimte
2 m2
Inhoud
685 m3
Perceeloppervlakte
635 m2
faciliteiten
Mechanische ventilatie
Rolluiken
Buitenzonwering
Frans balkon
Glasvezel kabel
Aan water
In woonwijk
Beschutte ligging
Baerz & Co Property Brochure

Brochure

Video’s

Plattegronden

11 Makelaars - Amsterdam Noord

Mt. Lincolnweg 36 - 617
1033SN Amsterdam

info@11makelaars.nl
+31 20 20 50 208

www.11makelaars.nl

Informatie / bezichtigingsaanvraag

Niels Eering profile image
Niels Eering
Real Estate Agent

Een luxe woning kopen in Bergschenhoek

Bergschenhoek biedt een verfijnde gemeenschap met op maat gemaakte voorzieningen, groene landschappen en internationale oriëntatie – de ideale setting voor wie streeft naar hoogwaardig wonen en blijvende waarde.