Ons kantoor is lid van Baerz & Co Luxury Homes; een internationaal platform dat exclusieve woningmakelaars met elkaar verbindt. Neem contact op met ons secretariaat voor meer informatie over het landelijke aanbod, waarvan u hieronder een selectie kunt bekijken.

Villa te koop in BERGEN (NH)

BERGEN (NH) Wilgenlaan 12 - 1861 HH Nederland


Angeline Croonen profile image
Angeline Croonen
Real Estate Agent
+31 (0)72 743 32 44
info@croonmakelaars.nl

Croon Makelaars
Breelaan 41
1861 GD Bergen
NETHERLANDS
+31 (0)72 743 32 44
www.croonmakelaars.nl
info@croonmakelaars.nl

Woonoppervlakte
150m2
Perceeloppervlakte
600m2
Slaapkamers
3

Omschrijving

Geniet van de ideale combinatie van privacy en nabijheid van het centrum van Bergen in deze vrijstaande woning op een ruim perceel van 600 m². Gelegen aan de rustige, doodlopende Wilgenlaan, vlakbij de Lindenlaan, biedt deze woning rust en ruimte. Omringd door groen en vrijstaande huizen is dit de ideale plek voor wie een rustige woonomgeving zoekt, dicht bij alle voorzieningen.

Deze woning heeft een badkamer en extra kamer op de begane grond waardoor deze woning ook goed als levensloopbestendige woning te gebruiken is. Verder is de woning erg mooi en smaakvol afgewerkt waardoor u zich hier snel thuis zou kunnen voelen.

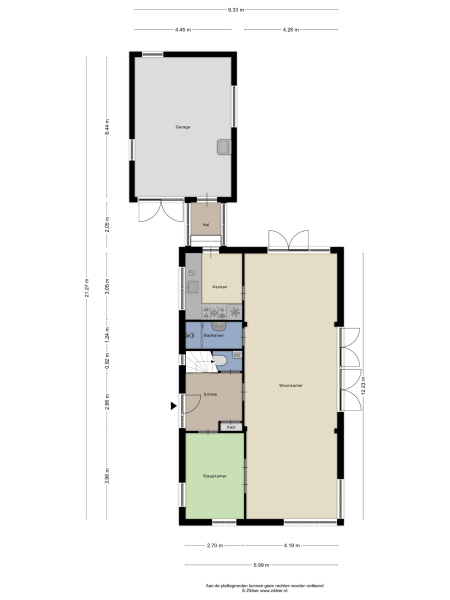
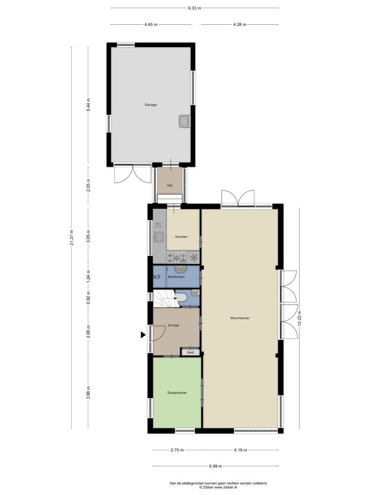
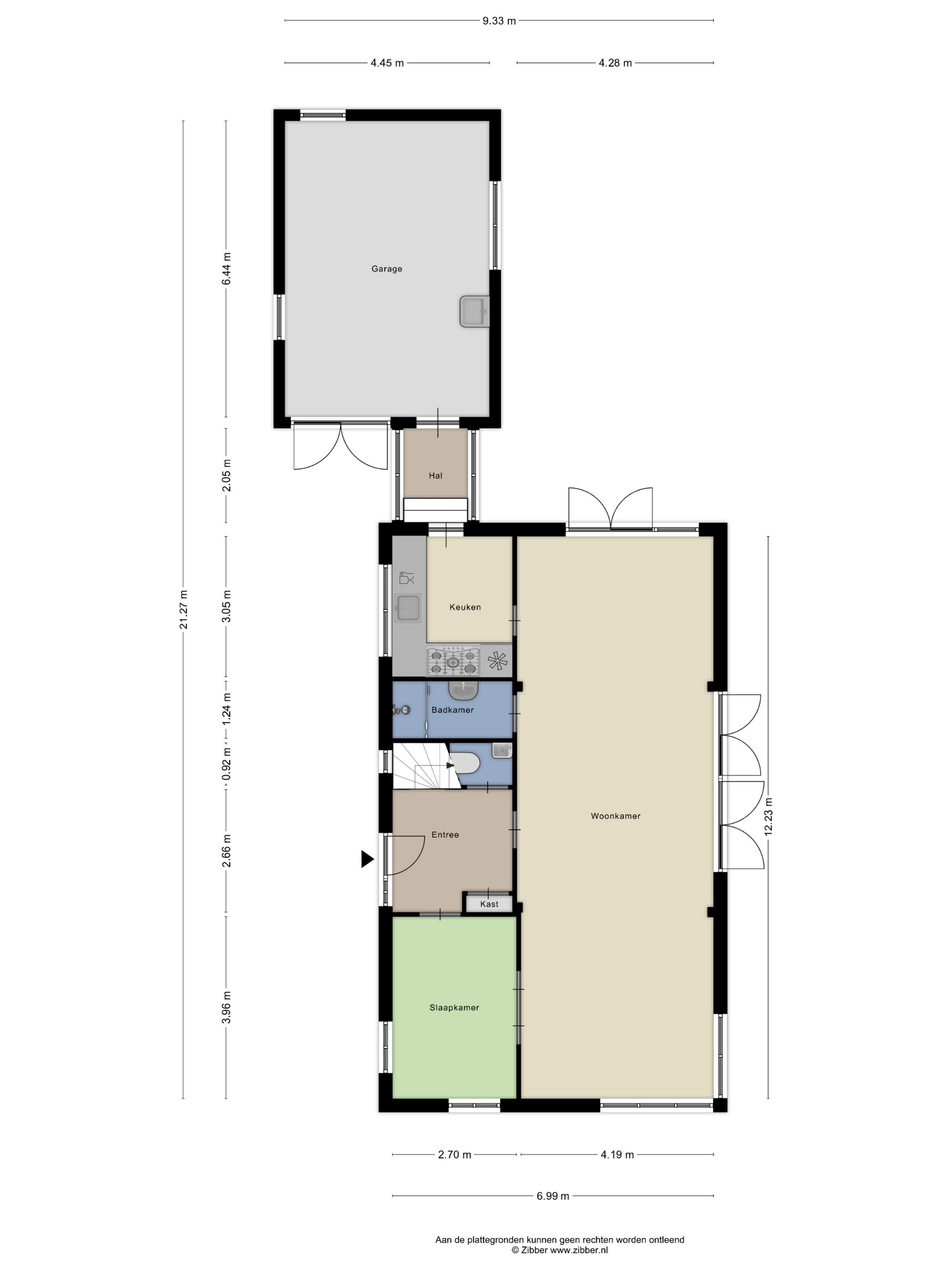
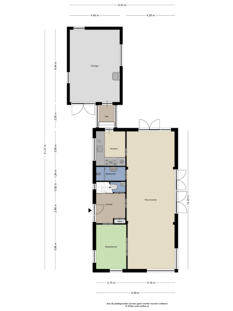
Bij binnenkomst via de hal met meterkast, toilet en trapopgang naar de eerste verdieping, bereikt u de lichte, lange en ruime woonkamer met eikenhouten vloer. Drie openslaande deuren bieden toegang tot de keurig aangelegde, ruime tuin. Naast de woonkamer bevindt zich een werk/hobbykamer, eveneens bereikbaar vanuit de hal via openslaande deuren. Aansluitend aan de woonkamer is er een badkamer met douche en wastafel.

De Bulthaup keuken is uitgerust met een Atag oven, 5-pits gasfornuis, vaatwasser en koelkast. Via een tussenhal met toegang tot de tuin bereikt u een grote berging, voorheen een garage. Deze is voorzien van een water en elektra aansluiting.

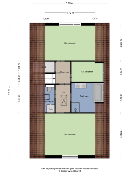
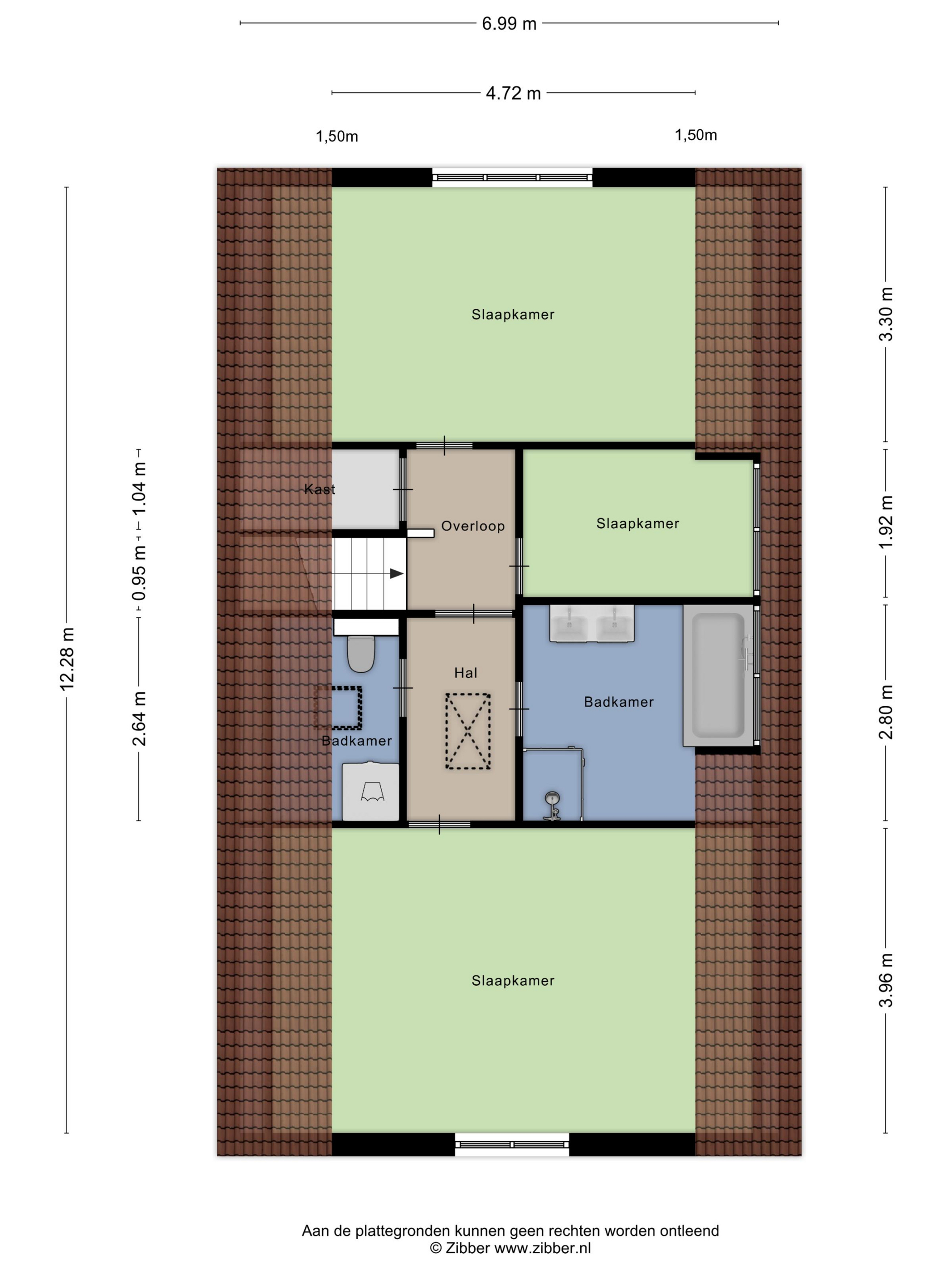
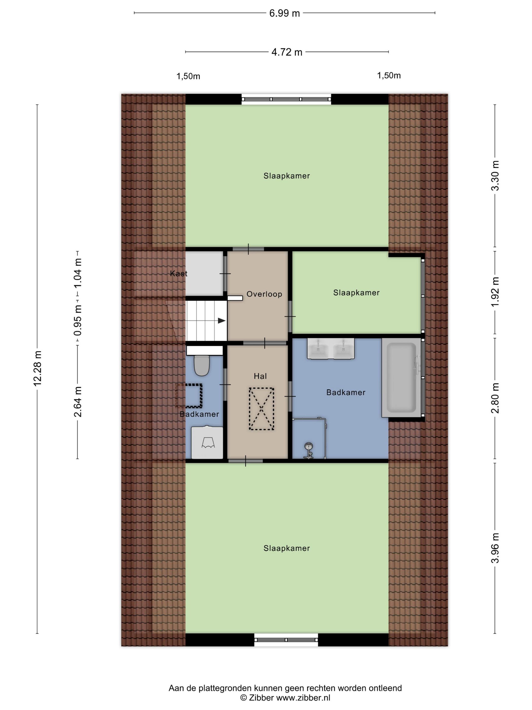
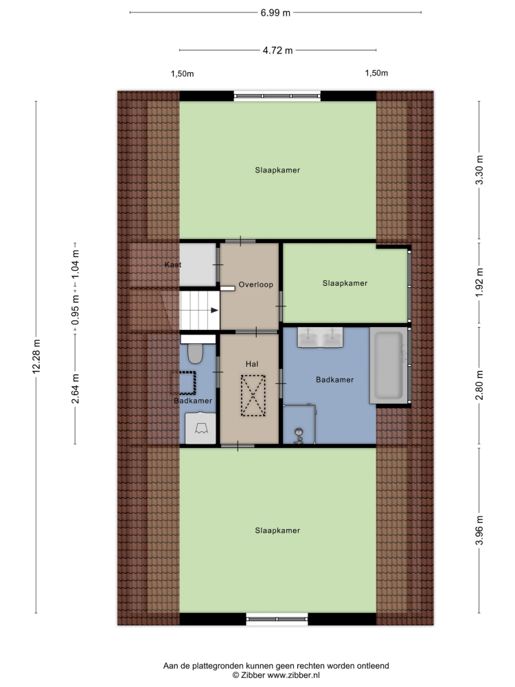
Op de eerste verdieping zijn twee ruime slaapkamers (waarvan één met airco) en een derde, kleinere slaapkamer. De badkamer heeft een dubbele wastafel, ligbad en inloopdouche. Op deze verdieping vindt u ook een ruim toilet en de was-/droogaansluiting. Een vlizotrap leidt naar de zolder die dient als bergruimte en waar de airco en ventilatie-installatie zich bevinden.

De grote zonovergoten tuin achter het huis, met diverse terrassen en veel privacy, maakt dit huis compleet.

Bent u nieuwsgierig geworden? Neem gerust contact met ons op voor een bezichtiging.

Kenmerken

Overdracht
Vraagprijs
€ 1.395.000 k.k.
Status
beschikbaar
Aanvaarding
in overleg
Bouw
Soort woonhuis
Eengezinswoning
Soort bouw
vrijstaande woning
Energieklasse
C
Soort dak
zadeldak
Slaapkamers
3
Badkamers
2
Oppervlakten en inhoud
Woonoppervlakte
150 m2
Overige inpandige ruimte
31 m2
Inhoud
672 m3
Perceeloppervlakte
600 m2
faciliteiten
Mechanische ventilatie
Alarminstallatie
Airconditioning
Aan rustige weg
Beschutte ligging
In bosrijke omgeving
Baerz & Co Property Brochure

Brochure

Informatie / bezichtigingsaanvraag

Video's

Foto's