Welkom bij 11 Makelaars - Amsterdam Noord Internationaal. Ook ver buiten Nederland zijn wij zeer actief. Via ons internationale netwerk binnen Baerz & Co Luxury Homes begeleiden onze Nederlandse (!) partners u vakkundig bij de aankoop van exclusieve tweede huizen. U vindt ons in 20 landen rond de Middellandse zee, de Alpen, Mexico en Dubai. Neem voor meer informatie contact op met ons secretariaat.

BENISSA
Spanje

Gé Hoeijmakers profile image
Gé Hoeijmakers
Personal Property Advisor
€2.450.000
Woonoppervlakte
N/A
Perceeloppervlakte
1530m2
Slaapkamers
4

Omschrijving

Dit project heeft een bouwvergunning voor directe bouw met een oplevertermijn van +- 18 maanden. ​​Gelegen in de prestigieuze woonwijk Raco de Galeno in Benissa Costa, biedt deze elegante villa met drie verdiepingen vanaf elke verdieping een panoramisch uitzicht op zee.
De architectuur van de villa is een perfecte mix van moderne architectuur en mediterrane charme. De woning onderscheidt zich door zijn strakke lijnen, grote panoramische ramen en natuurstenen muren die harmonieus integreren met het omringende landschap.
De woning beschikt over een licht en ruim interieur en combineert binnen- en buitenruimtes harmonieus met elkaar. Ruime terrassen en kamerhoge ramen laten het interieur baden in natuurlijk licht. De open woon-/eetkamer wordt aangevuld door een ultramoderne keuken met hoogwaardige apparatuur van het merk Bosch. Deze leefruimte heeft een naadloze verbinding met de royale terrassen en de infinity pool.
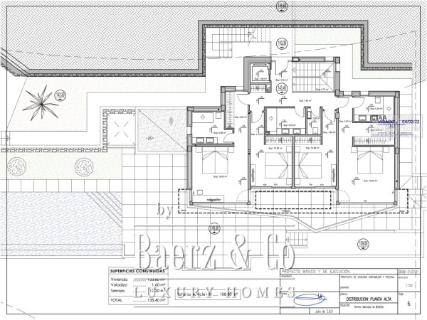
Elke slaapkamer beschikt over een en-suite badkamer en directe toegang tot privéterrassen. De master suite biedt een ongeëvenaard uitzicht op zee.
De woning is uitgerust met vloerverwarming, airconditioning en geavanceerde smart home-technologie voor optimaal comfort het hele jaar door.
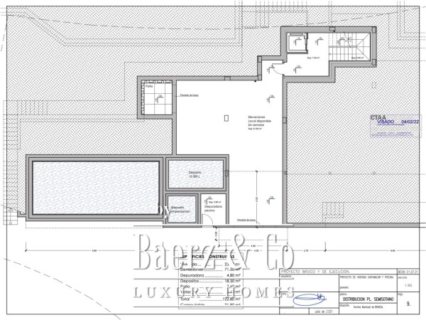
Er is ook de mogelijkheid om de woning uit te breiden met een kelderverdieping, wat veel mogelijkheden biedt voor aanpassingen.
De nabijheid van de snelweg AP-7 vergemakkelijkt reizen naar nabijgelegen steden zoals Moraira, Calpe en Alicante, waardoor de villa een aantrekkelijke keuze is voor permanente bewoning of als vakantiehuis.
Neem contact met ons op voor meer informatie of om een ​​bezichtiging te plannen.

Ontdek Benissa met Baerz, Uw Vertrouwde Personal Property Finder & Advisor

Het navigeren van het vastgoedaanbod in Benissa vraagt om diepgaande kennis van lokale details én internationale standaarden. Ervaren adviseurs bieden inzicht in stille verkoop en voeren met discretie en marktkennis de onderhandelingen. Hun dienstverlening omvat juridisch, bouwkundig/architectonisch en asset management, waardoor u zeker bent van waarde en gemoedsrust bij iedere transactie.

Vermijd veelvoorkomende valkuilen

Internationale kopers verspillen vaak kostbare tijd aan dubbele, verouderde of misleidende online aanbiedingen, en ook omdat bijna 30% van de luxe woningen nooit openbaar op de markt verschijnt. Verkopersmakelaars behartigen de belangen van de verkoper, niet die van kopers. Alleen al het aanvragen van informatie over een woning kan ertoe leiden dat een verkoopmakelaar u zonder uw toestemming als “cliënt” registreert.
Met Baerz Property Finders & Advisors voorkomt u al deze valkuilen volledig. Wij werken uitsluitend in uw belang en bieden onafhankelijke vertegenwoordiging, heldere begeleiding en toegang tot alle beschikbare woningen, inclusief off-market aanbiedingen die anderen nooit te zien krijgen.

Interesse in een Personal Property Advisor?

Wij tonen u alle beschikbare woningen op één plek. Neem gerust contact met ons op om te zien hoe wij aan uw wensen kunnen voldoen en uitsluitend uw belangen zullen beschermen.

Kenmerken

Zwembad
Alarm system
Air conditioning
Overdracht
Vraagprijs
€ 2.450.000
Referentie
5264
KAZ
Bouw
Soort woonhuis
villa
Kamers
N/A
Slaapkamers
4
Badkamers
3
Oppervlakten en inhoud
Woonoppervlakte
0 m2
Perceeloppervlakte
1530 m2
faciliteiten
Pool
Air conditioning duct based
Heating underfloor heating heat pump
Open terrace
Covered terrace
Terrace
Alarm
Garden
Storage room
Outdoor shower
Baerz & Co Property Brochure

Brochure

Video’s

Informatie / bezichtigingsaanvraag

Gé Hoeijmakers profile image
Gé Hoeijmakers
Personal Property Advisor

Een luxe woning kopen in Benissa

Benissa onderscheidt zich door haar authentieke mediterrane levensstijl, bloeiende gemeenschap en toewijding aan privacy en kwaliteit. Bewoners profiteren van maatwerk vastgoedservice, kosmopolitische aantrekkingskracht en een verfijnde cultuur, ideaal voor permanent of seizoensgebonden wonen.