Baerz & Co is een landelijk samenwerkingsverband van zorgvuldig geselecteerde boutique luxury makelaars. Samen vormen wij één netwerk, met één gedeeld aanbod. De woningen die u op onze website ziet, zijn afkomstig van alle aangesloten kantoren binnen Baerz & Co. Daardoor is niet ieder object rechtstreeks door ons kantoor in verkoop, maar door een gespecialiseerde collega binnen ons netwerk. Heeft u een woning gevonden die u aanspreekt en wilt u meer informatie? Dan brengen wij u graag persoonlijk in contact met de betreffende verkoopmakelaar, zodat u direct en zorgvuldig wordt begeleid.

AMSTERDAM
Van Breestraat 45 - 1071 ZG
Nederland

Niels Eering profile image
Niels Eering
Real Estate Agent
€4.250.000 k.k.
Woonoppervlakte
291m2
Perceeloppervlakte
115m2
Slaapkamers
4

Omschrijving

Van Breestraat 45, 1071 ZG AMSTERDAM

Op een van de mooiste gedeelten van de Van Breestraat, in het welbekende Museumkwartier, bieden wij dit royale familiehuis van ca. 291m², verdeeld over vijf volwaardige woonlagen, te koop aan. In 2012 is de woning volledig onder architectuur verbouwd door Dick van Gameren, een vooraanstaande prijswinnende Nederlandse architect. Zijn signatuur is duidelijk zichtbaar in de combinatie van ruimtelijke kwaliteit, duurzaamheid en leefcomfort, met speelse lichtinval, rustige maar royale ruimtes en een warme, persoonlijke sfeer: een huis waar u zich direct thuis en gelukkig kunt voelen. Het pand bevindt zich op een steenworp afstand van de P.C. Hooftstraat, het Vondelpark en het Museumplein. Dit familiehuis beschikt over vier slaapkamers, een zonnige achtertuin op het zuiden en meerdere balkons.

Ligging & Bereikbaarheid
De woning is zeer centraal gelegen in Amsterdam Oud-Zuid. Alle voorzieningen zijn binnen handbereik. Denk hierbij aan de diverse winkels, speciaalzaken en boetieks in de Cornelis Schuytstraat, P.C. Hooftstraat en de Beethovenstraat. Voor kunst en cultuur wandelt u naar het Museumplein of het Concertgebouw. Het Vondelpark, ideaal voor een wandeling, sport of recreatie, ligt op korte loopafstand. Iedere zaterdag is er een gezellige boerenmarkt op het Jacob Obrechtplein. De straat is ruim opgezet, rustig en groen, met een prettige, bijna dorps aandoende sfeer midden in de stad. Goed aangeschreven basis-, middelbare en internationale scholen bevinden zich op korte afstand. De bereikbaarheid is uitstekend. Er is ruimschoots openbaar vervoer in de nabije omgeving; tram- en bushaltes bevinden zich op loopafstand van de woning. De uitvalswegen zijn snel bereikbaar met de auto. Parkeren geschiedt op de openbare weg middels een vergunningsstelsel. Voor de deur is vrijwel altijd plaats.

Indeling
Al bij binnenkomst valt de speelse lichtinval op: een groot daklicht bovenin het huis laat het daglicht via de centrale trap en royale lichthal door de gehele woning stromen, wat zorgt voor een open en lichte sfeer op alle verdiepingen.

Begane grond
Via de entree komt u binnen in de royale hal van de woning. De sfeer van het huis is direct voelbaar dankzij de hoge plafonds en de fraaie originele details die in grote delen van de woning behouden zijn. Vanuit de hal bereikt u de riante leefkeuken aan de achterzijde. Deze luxe woonkeuken is volledig op maat ontworpen en voorzien van hoogwaardige inbouwapparatuur bestaande uit twee spoelbakken, waarvan één met Quooker, een 5-pits gasfornuis met afzuigkap, een separate oven, magnetron, volwaardige ijskast, vriezer en vaatwasser en een warmhoudlade, ideaal voor het bereiden van grotere diners. De keuken beschikt tevens over een open haard. Centraal in de ruimte bevindt zich een royaal spoeleiland met een gezellige baropstelling. Direct naast de keuken is een praktische voorraadruimte gesitueerd, geschikt voor keukenapparatuur en proviand. Openslaande deuren verschaffen toegang tot de overkapping en de zonnige achtertuin. De tuin vormt een logische verlenging van de leefkeuken, waardoor u in de zomer geniet van een dubbel zo grote, sfeervolle leefruimte. Daarnaast zijn vaste kasten en een toilet aanwezig. De moderne afwerking van de keuken contrasteert mooi met de meer klassieke elementen op de overige woonlagen.

Eerste verdieping
De eerste verdieping is een indrukwekkende woonlaag met een royale doorzonwoonkamer. De prachtige plafondornamenten en de open haard geven deze ruimte een warme en statige uitstraling. Aan de voorzijde bieden openslaande deuren toegang tot het balkon. Aangrenzend ligt een werkkamer, ideaal voor thuiswerken of studie. Een separaat toilet is eveneens aanwezig. De lichtinval vanuit de centrale lichthal zorgt ook hier voor een uitnodigende, open sfeer.

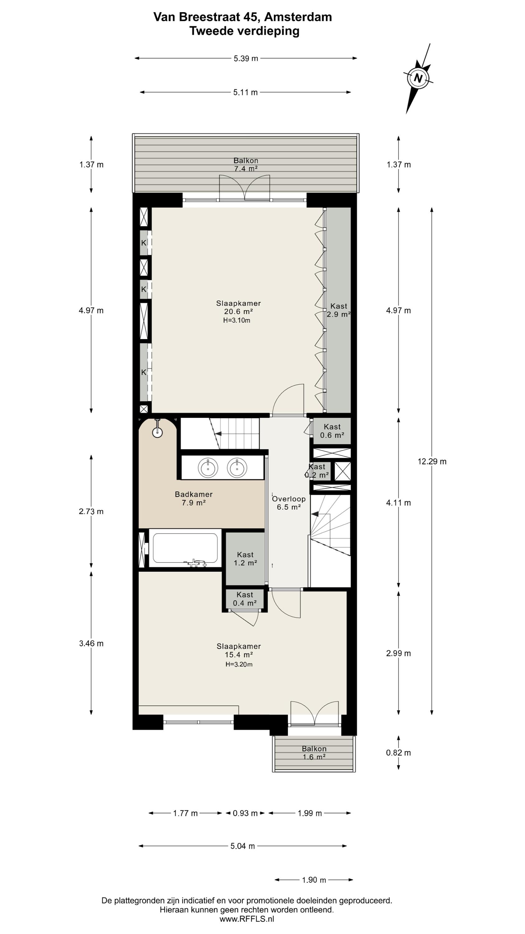
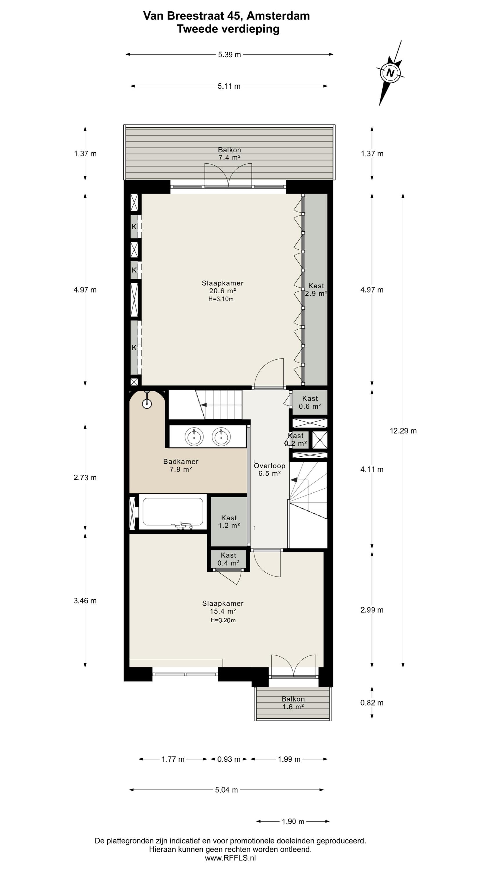
Tweede verdieping
Op de tweede verdieping bevinden zich twee ruime slaapkamers. De master bedroom ligt aan de achterzijde en beschikt over ingebouwde kasten, openslaande deuren naar het balkon en airconditioning. De tweede slaapkamer ligt aan de voorzijde en heeft eveneens toegang tot een balkon. Centraal op de verdieping ligt de luxe badkamer, uitgevoerd met een ligbad, een inloopdouche en een dubbele wastafel met meubel. De originele ornamenten zijn ook op deze verdieping behouden.

Derde verdieping
De derde verdieping biedt twee royale kamers: één slaapkamer aan de voorzijde en één aan de achterzijde. Beide kamers zijn voorzien van airconditioning en kunnen desgewenst worden ingericht als werk-, logeer- of hobbyruimte. Tevens bevindt zich op deze verdieping de tweede badkamer met inloopdouche en dubbele wastafel met meubel. Een separaat toilet en een stijlvolle vide completeren deze verdieping.

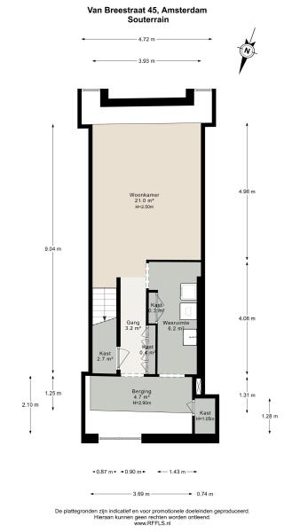
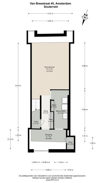
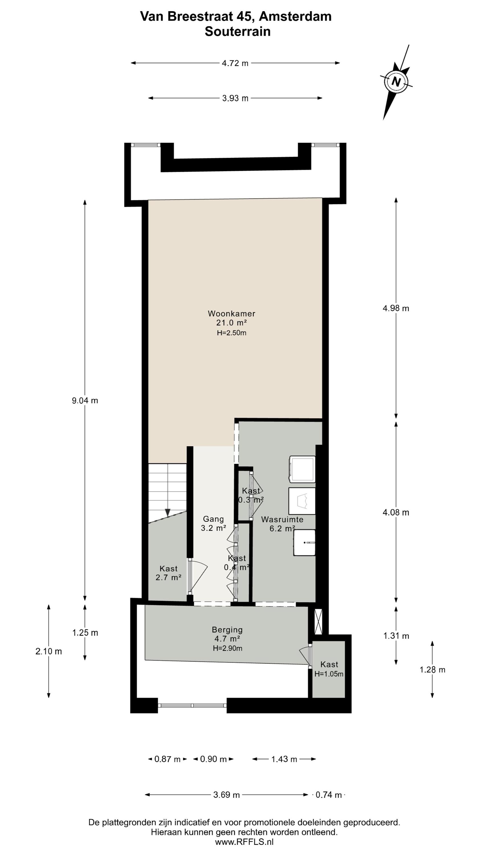
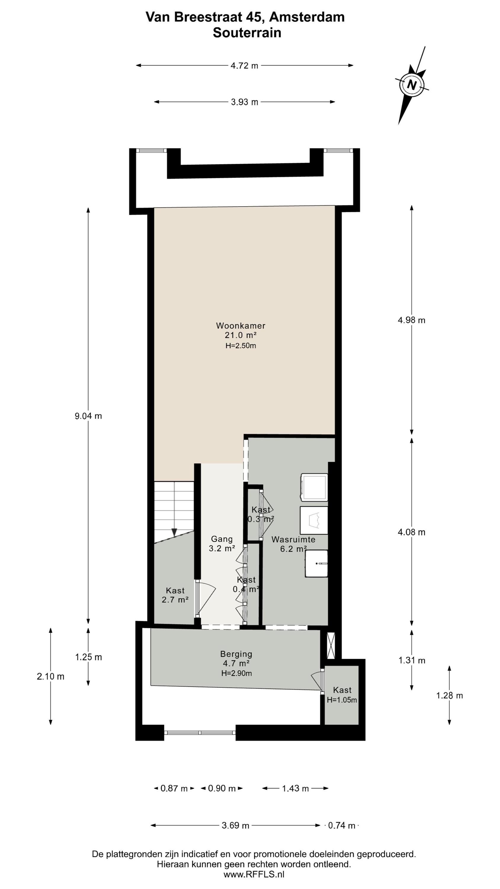
Souterrain
In het souterrain bevinden zich een ruime multifunctionele kamer, een wasruimte met aansluitingen voor wasmachine en droger en praktische bergruimte. Dankzij een slimme waskoker komt de was vanaf de verschillende verdiepingen direct in de wasruimte terecht, waardoor het huis eenvoudig opgeruimd blijft. Door de goede stahoogte en daglichttoetreding is deze verdieping geschikt voor uiteenlopende doeleinden, zoals speelkamer, gym, extra werkruimte of een extra volwaardige woonverdieping na het aanbrengen van sanitaire voorzieningen.

Bijzondere voorzieningen & comfort
Tijdens de verbouwing in 2012 is veel aandacht besteed aan toekomstbestendigheid en wooncomfort. De woning is voorzien van hoogwaardige geluidsisolatie, waardoor u in alle rust kunt wonen ondanks de centrale locatie. Er is een liftschacht aanwezig die momenteel dienstdoet als gangkast, maar met beperkte ingrepen kan worden omgebouwd tot personenlift, waardoor het huis levensloopbestendig kan worden gemaakt. Daarnaast is het huis volledig bekabeld voor data, internet, telefonie en televisie. Programmeerbare schakelaars maken het mogelijk om verlichting en energiegebruik efficiënt af te stemmen op persoonlijke voorkeuren. Onder andere een ‘alles-uit’-functie zorgt ervoor dat u met één druk op de knop alle verlichting kunt uitschakelen.

Bijzonderheden
- Woonoppervlakte 290,9m² (conform NEN2580, rapport aanwezig);
- Achtertuin op het zuiden gelegen 40,2 m² (conform NEN2580, rapport aanwezig);
- Volledig pand verdeeld over vijf verdiepingen;
- Familiehuis met vier slaapkamers;
- In 2012 volledig onder architectuur verbouwd door Dick van Gameren;
- Speelse lichtinval door groot centraal daklicht en lichthal;
- Hoogwaardige geluidsisolatie;
- Voorbereiding voor een personenlift aanwezig;
- Geavanceerde bekabeling in gehele woning voor data, internet, telefonie en TV;
- Programmeerbare schakelaars en ‘alles-uit’-functies;
- Slimme waskoker naar souterrain;
- Meerdere balkons;
- Airconditioning in diverse slaapkamers;
- Gelegen op eigen grond, géén erfpacht;
- Energielabel A;
- Wonen op een toplocatie in Amsterdam Oud-Zuid;
- Oplevering in overleg.

Deze informatie is door ons met de nodige zorgvuldigheid samengesteld. Onzerzijds wordt echter geen enkele aansprakelijkheid aanvaard voor enige onvolledigheid, onjuistheid of anderszins, dan wel de gevolgen daarvan. Alle opgegeven maten en oppervlakten zijn indicatief. Koper heeft zijn eigen onderzoeksplicht naar alle zaken die voor hem of haar van belang zijn. Met betrekking tot deze woning is de makelaar adviseur van verkoper. Wij adviseren u een deskundige (NVM-)makelaar in te schakelen die u begeleidt bij het aankoopproces. Indien u specifieke wensen heeft omtrent de woning, adviseren wij u deze tijdig kenbaar te maken aan uw aankopend makelaar en hiernaar zelfstandig onderzoek te (laten) doen. Indien u geen deskundige vertegenwoordiger inschakelt, acht u zich volgens de wet deskundige genoeg om alle zaken die van belang zijn te kunnen overzien. Van toepassing zijn de NVM voorwaarden.

Kenmerken

Zonnepanelen
Overdracht
Vraagprijs
€ 4.250.000 k.k.
Status
beschikbaar
Aanvaarding
in overleg
Bouw
Soort woonhuis
Eengezinswoning
Soort bouw
tussenwoning
Bouwjaar
1900
Energieklasse
A
Soort dak
plat dak
Slaapkamers
4
Badkamers
2
Oppervlakten en inhoud
Woonoppervlakte
291 m2
Overige inpandige ruimte
0 m2
Gebouwgebonden buitenruimte
19 m2
Inhoud
1183 m3
Perceeloppervlakte
115 m2
faciliteiten
Mechanische ventilatie
Domotica
Zonnepanelen
Aan rustige weg
In woonwijk
Baerz & Co Property Brochure

Brochure

Video’s

Virtuele rondleidingen

VIRTUAL TOUR
Virtual Tour Van Breestraat 45

11 Makelaars - Amsterdam Noord

Mt. Lincolnweg 36 - 617
1033SN Amsterdam

info@11makelaars.nl
+31 20 20 50 208

www.11makelaars.nl

Informatie / bezichtigingsaanvraag

Niels Eering profile image
Niels Eering
Real Estate Agent

Een luxe woning kopen in Amsterdam

Amsterdam biedt een kosmopolitische levensstijl, gekenmerkt door erfgoed, verbondenheid en discrete luxe. Bewoners profiteren van een sterke internationale gemeenschap, hoogwaardige dienstverlening en een bruisende cultuur. De blijvende aantrekkingskracht van de stad schuilt in de combinatie van geschiedenis, verfijning en een vooruitstrevende geest.