Ons kantoor is lid van Baerz & Co Luxury Homes; een internationaal platform dat exclusieve woningmakelaars met elkaar verbindt. Neem contact op met ons secretariaat voor meer informatie over het landelijke aanbod, waarvan u hieronder een selectie kunt bekijken.

AMSTERDAM
Stadionkade 18 2 - 1077 VK
Nederland

Niels Eering profile image
Niels Eering
Real Estate Agent
€995.000 k.k.
Woonoppervlakte
120m2
Perceeloppervlakte
N/A
Slaapkamers
2

Omschrijving

Stadionkade 18 2, 1077 VK Amsterdam

Op een prachtige locatie aan het water, in de populaire Stadion- en Beethovenbuurt, bieden wij dit goed ingedeelde hoekappartement van ca. 120 m² aan. De woning beschikt over een lichte woon- en eetkamer, twee slaapkamers, een balkon, lift én een ruime externe berging. Een comfortabel appartement op een rustige plek, met alle voorzieningen, groen en uitstekende verbindingen binnen handbereik.

Indeling
Het gezamenlijke trappenhuis is netjes en verzorgd onderhouden. U bereikt de tweede verdieping met de trap of lift, waar zich de eigen entree van het appartement bevindt.

Bij binnenkomst komt u in een centrale hal met ruimte voor een garderobe. Vanuit hier heeft u toegang tot alle vertrekken, waardoor de woning prettig en overzichtelijk aanvoelt.

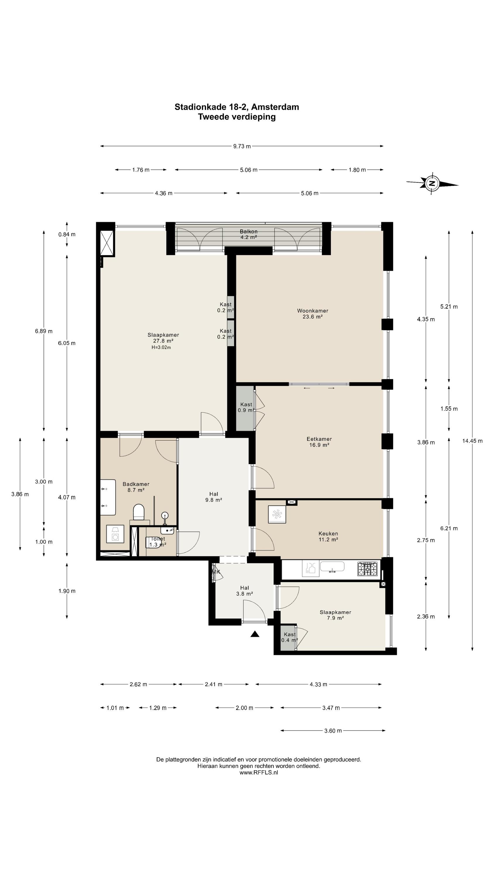
Tweede verdieping
Aan de achterzijde van de woning bevindt zich de woonkamer: een aangename leefruimte met grote raampartijen en een fijne, open sfeer. Vanuit de woonkamer heeft u toegang tot het balkon, waar u beschut kunt zitten en geniet van het groen en de rustige omgeving. Het vele daglicht en het vrije uitzicht geven deze ruimte een ontspannen karakter.

Grenzend aan de woonkamer ligt de eetkamer, een sfeervolle plek die voldoende ruimte biedt voor een grote eettafel. Dankzij de verbinding met de woonkamer voelt het geheel als één uitnodigende leefruimte, waarbij u desgewenst toch de ruimtes apart kunt benutten.

Aansluitend bevindt zich de keuken, uitgevoerd in een karaktervolle landelijke stijl met veel kastruimte en een praktische opstelling. Het houten werkblad, de stenen spoelbak en de originele tegelwand geven de keuken een warme uitstraling. De keuken beschikt over een 5-pits gasfornuis, oven en vaatwasmachine.

Aan de voorzijde van de woning ligt een ruime slaapkamer van goed formaat, ideaal als hoofdslaapkamer. Dankzij de royale afmetingen is er voldoende ruimte voor een groot bed én een kastenwand. Daarnaast beschikt de woning over een tweede kamer aan de voorzijde, die uitstekend geschikt is als werk-/logeerkamer, hobbyruimte of kinderkamer.

Centraal in de woning bevindt zich de badkamer, verzorgd en praktisch ingedeeld met een inloopdouche, een dubbele wastafel en een toilet. Daarnaast is er ruimte voor de opstelling van wasmachine en droger, waardoor alles comfortabel binnen handbereik is.

Op de vierde verdieping bevindt zich een ruime, externe berging van ca. 10m². Ideaal als extra bergruimte.

Locatie en bereikbaarheid
De woning is gelegen aan de Stadionkade, in een rustig en groen deel van de geliefde Stadion- en Beethovenbuurt in Amsterdam-Zuid. Deze karaktervolle kade ligt direct aan het water en biedt een prettige woonomgeving met een combinatie van rust, groen en stedelijke levendigheid. Dankzij de hoekligging geniet u van uitzicht over het water én de Minervalaan, wat zorgt voor een ruimtelijk gevoel en veel lichtinval. Voor de deur bevindt zich een beschut groenstrookje aan het water, waar u in alle rust kunt genieten van de langsvarende bootjes.

In de directe omgeving vindt u een ruim aanbod aan winkels voor zowel de dagelijkse boodschappen als luxe delicatessen en speciaalzaken. De Beethovenstraat, het Olympiaplein en de Stadionweg bieden onder meer supermarkten, ambachtelijke bakkers, delicatessenzaken en diverse horecagelegenheden. Ook het winkelcentrum Gelderlandplein is nabijgelegen. Voor ontspanning en sport zijn het Beatrixpark, het Olympisch Stadion en het Amsterdamse Bos eenvoudig per fiets bereikbaar.

De bereikbaarheid is uitstekend. Station Amsterdam Zuid/WTC ligt op korte afstand en biedt snelle verbindingen naar onder andere Schiphol, Den Haag en Utrecht. Daarnaast zijn tram 5 en bus 24 in de directe nabijheid gelegen. Met de auto bereikt u binnen enkele minuten de Ring A10 via afritten S108 en S109; Schiphol Airport ligt op circa 15 minuten rijden. Parkeren is mogelijk via het vergunningensysteem van de gemeente Amsterdam.

Bijzonderheden
- Appartementsrecht van ca. 120m² (gemeten conform NEN 2580 meting);
- Ruime, inpandige berging van ca. 10m² gelegen op de vierde verdieping;
- Voorzien van een lift;
- Actieve en gezonde Vereniging van Eigenaren (VvE) in professioneel beheer bij Aycon Vastgoedbeheer;
- VvE bijdrage is €314.05,- per maand ex voorschot stookkosten;
- Stadsverwarming met maandelijkse voorschot stookkosten van €153.93,- per maand;
- Huidig tijdvak is afgekocht tot 30 juni 2055 (AB 1994);
- Vanaf 01-07-2055 geldt een eeuwigdurende erfpacht met een jaarlijkse canon van circa € 3.831,52 per jaar (prijspeil 2026, onderhevig aan jaarlijkse indexatie);
- Meerjarenonderhoudsplan | MJOP aanwezig;
- Ouderdomsclausule;
- Parkeren gaat via vergunningstelsel;
- Oplevering in overleg.

Deze informatie is door ons met de nodige zorgvuldigheid samengesteld. Onzerzijds wordt echter geen enkele aansprakelijkheid aanvaard voor enige onvolledigheid, onjuistheid of anderszins, dan wel de gevolgen daarvan. Alle opgegeven maten en oppervlakten zijn indicatief. Koper heeft zijn eigen onderzoek plicht naar alle zaken die voor hem of haar van belang zijn. Met betrekking tot deze woning is de makelaar adviseur van verkoper. Wij adviseren u een deskundige (NVM-)makelaar in te schakelen die u begeleidt bij het aankoopproces. Indien u specifieke wensen heeft omtrent de woning, adviseren wij u deze tijdig kenbaar te maken aan uw aankopend makelaar en hiernaar zelfstandig onderzoek te (laten) doen. Indien u geen deskundige vertegenwoordiger inschakelt, acht u zich volgens de wet deskundige genoeg om alle zaken die van belang zijn te kunnen overzien. Van toepassing zijn de NVM voorwaarden.

Kenmerken

Overdracht
Vraagprijs
€ 995.000 k.k.
Status
beschikbaar
Aanvaarding
in overleg
Bouw
Soort woonhuis
Tussenverdieping
Soort bouw
appartement
Bouwjaar
1932
Energieklasse
C
Soort dak
zadeldak
Slaapkamers
2
Badkamers
1
Oppervlakten en inhoud
Woonoppervlakte
120 m2
Overige inpandige ruimte
0 m2
Gebouwgebonden buitenruimte
4 m2
Externe bergruimte
10 m2
Inhoud
443 m3
faciliteiten
Buitenzonwering
Lift
Natuurlijke ventilatie
Aan rustige weg
In woonwijk
Vrij uitzicht
Aan vaarwater
Baerz & Co Property Brochure

Brochure

Plattegronden

11 Makelaars - Amsterdam Noord

Mt. Lincolnweg 36 - 617
1033SN Amsterdam

info@11makelaars.nl
+31 20 20 50 208

www.11makelaars.nl

Informatie / bezichtigingsaanvraag

Niels Eering profile image
Niels Eering
Real Estate Agent

Een luxe woning kopen in Amsterdam

Amsterdam biedt een kosmopolitische levensstijl, gekenmerkt door erfgoed, verbondenheid en discrete luxe. Bewoners profiteren van een sterke internationale gemeenschap, hoogwaardige dienstverlening en een bruisende cultuur. De blijvende aantrekkingskracht van de stad schuilt in de combinatie van geschiedenis, verfijning en een vooruitstrevende geest.