Baerz & Co is een landelijk samenwerkingsverband van zorgvuldig geselecteerde boutique luxury makelaars. Samen vormen wij één netwerk, met één gedeeld aanbod. De woningen die u op onze website ziet, zijn afkomstig van alle aangesloten kantoren binnen Baerz & Co. Daardoor is niet ieder object rechtstreeks door ons kantoor in verkoop, maar door een gespecialiseerde collega binnen ons netwerk. Heeft u een woning gevonden die u aanspreekt en wilt u meer informatie? Dan brengen wij u graag persoonlijk in contact met de betreffende verkoopmakelaar, zodat u direct en zorgvuldig wordt begeleid.

AMSTERDAM
Prof. Tulpstraat 42 - 1018 HA
Nederland

Niels Eering profile image
Niels Eering
Real Estate Agent
€995.000 k.k.
Woonoppervlakte
101m2
Perceeloppervlakte
N/A
Slaapkamers
2

Omschrijving

Prof. Tulpstraat 42, 1018 HA Amsterdam

Een verborgen parel in hartje Amsterdam — voor het eerst in ruim 20 jaar beschikbaar

Direct achter Amstel Hotel, verscholen aan het water van de Singelgracht, ligt deze bijzondere benedenwoning met souterrain aan de Prof. Tulpstraat 42: een zeldzame kans op een van de meest karaktervolle locaties van Amsterdam.

Na ruim twintig jaar komt dit verborgen pareltje opnieuw op de markt. De woning combineert rust, privacy en ruimte met een uitzonderlijk lichte woonbeleving dankzij maar liefst 16 ramen, verdeeld over beide woonlagen. Door de hoekligging en de vele grote raampartijen op de begane grond valt het daglicht prachtig naar binnen en ontstaat gedurende de hele dag een aangename, open sfeer.

Wat deze woning extra bijzonder maakt, is de eigen entree, de hoge plafonds, het vrije uitzicht over het water van de Singelgracht en de fraaie afwerking, waaronder een prachtige kastelen eiken vloer die door de gehele woning is doorgelegd en direct warmte en karakter toevoegt. Het souterrain voelt door de opvallend grote ramen allesbehalve als een traditionele souterrain; juist hier ervaart men licht, lucht en comfort op een manier die zelden voorkomt.

Met een woonoppervlakte van circa 101 m², verdeeld over twee volwaardige woonlagen, beschikt de woning over een prettige indeling met onder meer een woonkamer, keuken en eetgedeelte op benedenverdieping en twee slaapkamers en een bijruimte voor diverse gebruiksmogelijkheden in het souterrain.

Het kleinschalige en hoogwaardige gebouw waarin het appartement zich bevindt, is in 2006 in opdracht van Stadsherstel Amsterdam volledig nieuw gerealiseerd en omvat slechts zeven luxe appartementen.

De ligging is uitzonderlijk: rustig wonen in een karaktervolle straat, in het centrum van Amsterdam, met de Utrechtsestraat en de Plantagebuurt op loopafstand.

Indeling
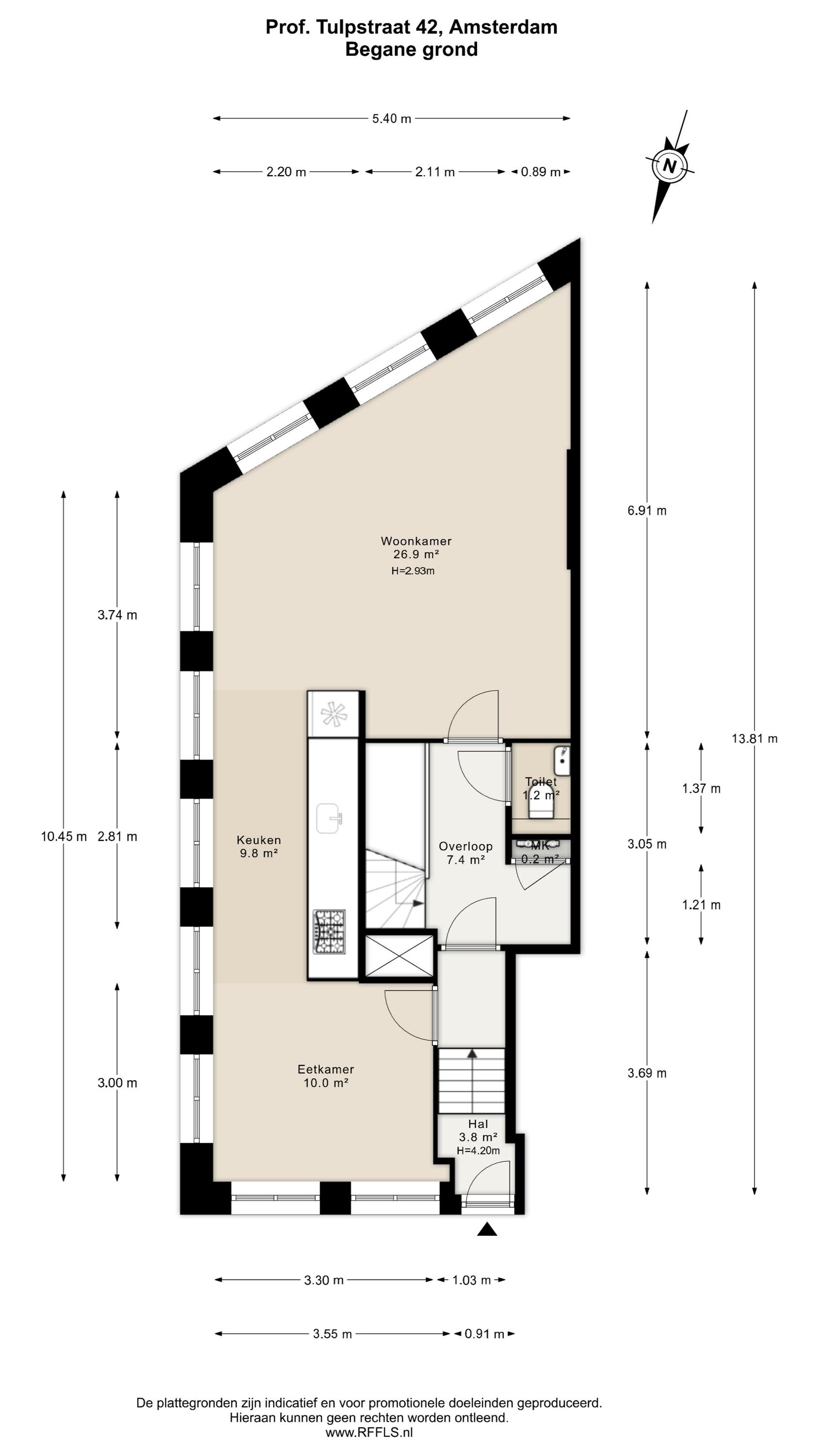
Begane grond
Via de entree betreedt u de woning, waarna u middels enkele treden het woongedeelte bereikt. Vanuit hier heeft u toegang tot de eetkamer of loopt u via de centrale overloop, waar zich tevens de meterkast en de trap naar het souterrain bevinden, door naar de woonkamer.

De woon- en eetkamer staan in open verbinding met elkaar, met de keuken als centraal verbinding. De keuken is functioneel ingericht en voorzien van diverse apparatuur, waaronder een losse koel-vriescombinatie, oven, gasfornuis, vaatwasser en afzuigkap. Daarnaast is er praktische bergruimte boven de keuken gerealiseerd.

De gehele verdieping wordt gekenmerkt door grote raampartijen aan meerdere zijden, wat zorgt voor een bijzonder aangename lichtinval en een vrij uitzicht over het water van de Singelgracht. De combinatie van de hoekligging en de lichttoetreding geeft de woonverdieping een open en ruimtelijk karakter. Aan de voorzijde van de woning is bovendien ruimte voor een zitje, een fijne plek om van de omgeving te genieten.

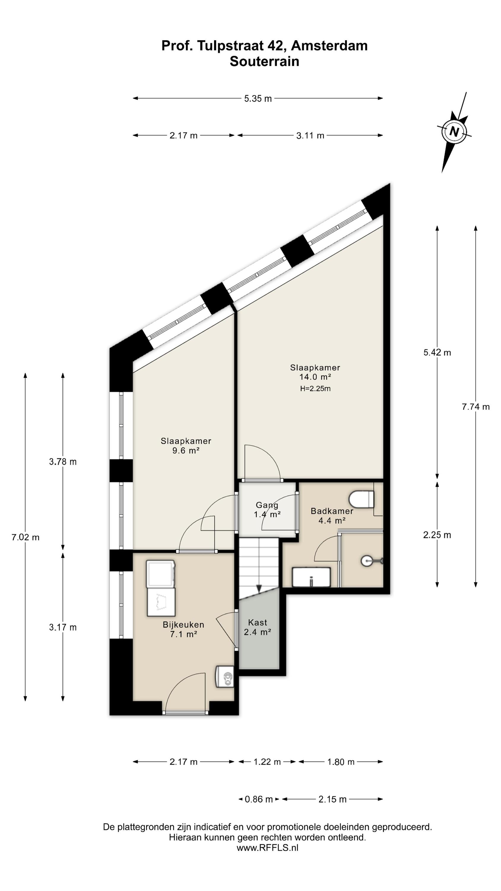
Souterrain
Via de trap op de overloop bereikt u het souterrain. Deze verdieping beschikt over drie goed ingedeelde vertrekken, waaronder twee volwaardige slaapkamers.

De badkamer is centraal gelegen en voorzien van een douche, toilet en wastafelmeubel. Daarnaast is er een separate bijkeuken aanwezig met ruimte voor een wasmachine en droger. Vanuit deze ruimte is er toegang tot de gemeenschappelijke verkeersruimte met de bergingen van de overige woningen in het pand.

Locatie en bereikbaarheid
De Prof. Tulpstraat is een bijzonder rustige en karaktervolle straat, gelegen in het Amsterdam-Centrum, direct achter het wereldberoemde Amstel Hotel. De straat kenmerkt zich door haar luwte en beperkte autoverkeer, terwijl alle dynamiek van de stad zich op korte afstand bevindt. De woning heeft een unieke ligging met vrij uitzicht over het water van de Singelgracht.

In de directe omgeving bevinden zich tal van voorzieningen. Voor dagelijkse boodschappen en winkels zijn onder andere de Wibautstraat en Sarphatistraat nabij gelegen. Daarnaast liggen de Amstel en de Utrechtsestraat op korte afstand, met een breed aanbod aan cafés en restaurants. Bekende adressen zoals De Ysbreeker, Zoldering en De Juwelier bevinden zich op loopafstand, evenals diverse andere hoogwaardige horeca en gezellige koffiezaken. Ook culturele en groene voorzieningen zoals Carré, de Hortus Botanicus en Artis bevinden zich in de directe nabijheid.

De bereikbaarheid is uitstekend. Op korte loopafstand bevinden zich diverse tram- en metrohaltes (onder andere Weesperplein), met directe verbindingen naar de rest van de stad. Met de auto is de ring A10 binnen circa 10 minuten bereikbaar. Parkeren geschiedt via het vergunningenstelsel.

Bijzonderheden
- Appartementsrecht van ca. 101m² (gemeten conform NEN 2580 meting);
- Benedenwoning met souterrain;
- Rijksbeschermd stadsgezicht;
- UNESCO werelderfgoed;
- Veel lichtinval en vrij uitzicht over het water;
- Eigendom gelegen op eigen grond;
- Actieve vereniging van eigenaren (VvE) in eigen beheer;
- Periodieke bijdrage bedraagt € 170.01 per maand;
- Oplevering in overleg.

Deze informatie is door ons met de nodige zorgvuldigheid samengesteld. Onzerzijds wordt echter geen enkele aansprakelijkheid aanvaard voor enige onvolledigheid, onjuistheid of anderszins, dan wel de gevolgen daarvan. Alle opgegeven maten en oppervlakten zijn indicatief. Koper heeft zijn eigen onderzoek plicht naar alle zaken die voor hem of haar van belang zijn. Met betrekking tot deze woning is de makelaar adviseur van verkoper. Wij adviseren u een deskundige (NVM-)makelaar in te schakelen die u begeleidt bij het aankoopproces. Indien u specifieke wensen heeft omtrent de woning, adviseren wij u deze tijdig kenbaar te maken aan uw aankopend makelaar en hiernaar zelfstandig onderzoek te (laten) doen. Indien u geen deskundige vertegenwoordiger inschakelt, acht u zich volgens de wet deskundige genoeg om alle zaken die van belang zijn te kunnen overzien. Van toepassing zijn de NVM voorwaarden.

Kenmerken

Overdracht
Vraagprijs
€ 995.000 k.k.
Status
beschikbaar
Aanvaarding
in overleg
Bouw
Soort woonhuis
Benedenwoning
Soort bouw
appartement
Bouwjaar
1850
Energieklasse
C
Soort dak
zadeldak
Slaapkamers
2
Badkamers
1
Oppervlakten en inhoud
Woonoppervlakte
101 m2
Overige inpandige ruimte
0 m2
Inhoud
395 m3
faciliteiten
Tv kabel
Natuurlijke ventilatie
Aan water
Aan rustige weg
In centrum
Aan vaarwater
Baerz & Co Property Brochure

Brochure

Video’s

Plattegronden

11 Makelaars - Amsterdam Noord

Mt. Lincolnweg 38 - 617
1033SN Amsterdam

info@11makelaars.nl
+31 20 20 50 208

www.11makelaars.nl

Informatie / bezichtigingsaanvraag

Niels Eering profile image
Niels Eering
Real Estate Agent

Een luxe woning kopen in Amsterdam

Amsterdam biedt een kosmopolitische levensstijl, gekenmerkt door erfgoed, verbondenheid en discrete luxe. Bewoners profiteren van een sterke internationale gemeenschap, hoogwaardige dienstverlening en een bruisende cultuur. De blijvende aantrekkingskracht van de stad schuilt in de combinatie van geschiedenis, verfijning en een vooruitstrevende geest.