Baerz & Co is een landelijk samenwerkingsverband van zorgvuldig geselecteerde boutique luxury makelaars. Samen vormen wij één netwerk, met één gedeeld aanbod. De woningen die u op onze website ziet, zijn afkomstig van alle aangesloten kantoren binnen Baerz & Co. Daardoor is niet ieder object rechtstreeks door ons kantoor in verkoop, maar door een gespecialiseerde collega binnen ons netwerk. Heeft u een woning gevonden die u aanspreekt en wilt u meer informatie? Dan brengen wij u graag persoonlijk in contact met de betreffende verkoopmakelaar, zodat u direct en zorgvuldig wordt begeleid.

AMSTERDAM
Minervaplein 36 5 - 1077 TT
Nederland

€1.200.000 k.k.
Woonoppervlakte
110m2
Perceeloppervlakte
N/A
Slaapkamers
2

Omschrijving

Minervaplein 36-5, 1077 TT Amsterdam

Licht en royaal hoekappartement (ruim 110 m²) op een toplocatie aan het statige Minervaplein, met een spectaculair vrij uitzicht over het plein en de skyline van de Zuidas . De woning bevindt zich op de vijfde verdieping van een verzorgd complex met lift en beschikt over twee slaapkamers, met de mogelijkheid eenvoudig een derde slaapkamer te realiseren.

Ligging & Bereikbaarheid

De woning is gelegen op een van de meest gewilde locaties in Amsterdam-Zuid. In de directe omgeving vindt u een breed aanbod aan hoogwaardige voorzieningen, waaronder de Beethovenstraat, Cornelis Schuytstraat en de P.C. Hooftstraat. Ook op cultureel vlak is de ligging uitstekend, met het Concertgebouw en het Museumplein, met onder andere het Rijksmuseum en het Van Gogh Museum, op korte afstand.

Voor ontspanning en sport liggen het Vondelpark en het Olympiaplein nabij. De buurt is rustig, groen en zeer kindvriendelijk, met diverse gerenommeerde (internationale) scholen, waaronder de British School, in de directe omgeving.

De bereikbaarheid is uitstekend: via de ring A10 (afslag S108) bent u snel de stad uit, terwijl openbaar vervoer (tram 5 en 24, bus 15) en station Amsterdam Zuid zich op korte afstand bevinden.

Indeling

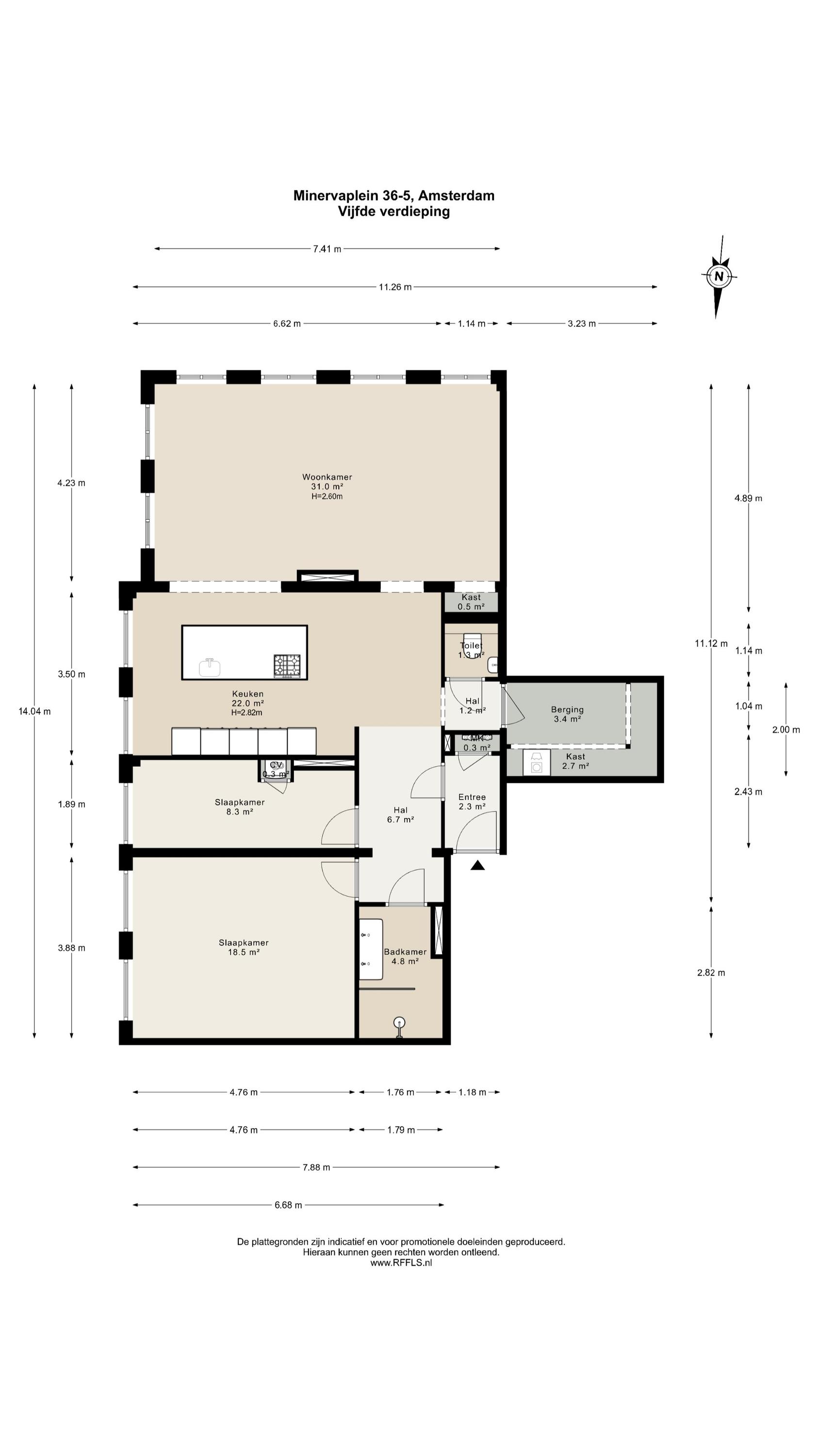
Via de verzorgde gemeenschappelijke entree bereikt u per lift of trap de vijfde verdieping.

Vijfde verdieping
Entree met garderoberuimte en toegang tot de centrale hal, die alle vertrekken met elkaar verbindt. De luxe woonkeuken met kookeiland vormt het hart van de woning en is voorzien van hoogwaardige Miele inbouwapparatuur, waaronder een inductiekookplaat, (combi) stoomoven, heteluchtoven met warmtelades, koffiemachine, koelkast, vriezer, vaatwasser en wijnklimaatkast. Het eiland beschikt tevens over een comfortabel bargedeelte.

De aangrenzende woonkamer profiteert optimaal van de hoekligging en is dankzij maar liefst acht raampartijen uitzonderlijk licht. Het vrije uitzicht over het Minervaplein, de Michelangelostraat en de skyline van de Zuidas is indrukwekkend en met name in de avond bijzonder sfeervol.

Vanuit de hal zijn tevens de interne berging (thans in gebruik als walk-in closet), het separate toilet en de twee slaapkamers bereikbaar. De eerste slaapkamer is momenteel ingericht als kinderkamer, maar leent zich ook uitstekend als werk- of studeerkamer. De ruime master bedroom (ca. 20 m²) biedt plaats aan een groot bed en royale kastruimte.

De verzorgde badkamer is voorzien van een inloop regendouche, dubbele wastafel met meubel en vloerverwarming.

Het appartement is afgewerkt met een fraaie houten visgraatvloer en alle kozijnen zijn vernieuwd en uitgevoerd in hardhout met HR++ beglazing, waarbij het karakteristieke schuifraamsysteem is behouden en gemoderniseerd.

Bijzonderheden:

- Appartementsrecht van ruim 110m² (gemeten conform NEN2580 meetinstructie)
- Twee slaapkamers waar eenvoudig een derde aan toe te voegen is
- Hoekappartementmet bijzonder fraai uitzicht over het Minervaplein en de Zuidas
- Gemeenschappelijk dakterras
- Energielabel D
- Alle kozijnen zijn vernieuwd en uitgevoerd in hardhout met HR++ beglazing, waarbij het karakteristieke schuifraamsysteem is behouden en gemoderniseerd
- Plafond en vloer goed geïsoleerd
- Elektra en leidingwerk volledig vernieuwd
- Lift aanwezig
- Voortdurend recht van erfpacht: huidig tijdvak loopt t/m 15 mei 2055
- Jaarcanon bedraagt € 1.453,68 met een jaarlijkse indexering
- Overstap eeuwigdurende erfpacht (AB 2016) vastgelegd bij notaris. Jaarcanon per 16 mei 2055: € 2.634,45 exclusief inflatie
- Mogelijkheid om 2 parkeervergunningen aan te vragen
- VvE professioneel beheerd, MJOP aanwezig
- Servicekosten €401,37 per maand. Daarnaast betaalt verkoper €89,25 voorschot stookkosten maar omdat dit appartement zijn eigen CV-installatie heeft wordt aan het einde van het jaar het grootste deel van het voorschot retour gestort
- Oplevering in overleg

Deze informatie is door ons met de nodige zorgvuldigheid samengesteld. Onzerzijds wordt echter geen enkele aansprakelijkheid aanvaard voor enige onvolledigheid, onjuistheid of anderszins, dan wel de gevolgen daarvan. Alle opgegeven maten en oppervlakten zijn indicatief. Koper heeft zijn eigen onderzoeksplicht naar alle zaken die voor hem of haar van belang zijn. Met betrekking tot deze woning is de makelaar adviseur van verkoper. Wij adviseren u een deskundige (NVM-)makelaar in te schakelen die u begeleidt bij het aankoopproces. Indien u specifieke wensen heeft omtrent de woning, adviseren wij u deze tijdig kenbaar te maken aan uw aankopend makelaar en hiernaar zelfstandig onderzoek te (laten) doen. Indien u geen deskundige vertegenwoordiger in-schakelt, acht u zich volgens de wet deskundige genoeg om alle zaken die van belang zijn te kun-nen overzien. Van toepassing zijn de NVM voorwaarden.

Kenmerken

Overdracht
Vraagprijs
€ 1.200.000 k.k.
Status
beschikbaar
Aanvaarding
in overleg
Bouw
Soort woonhuis
Bovenwoning
Soort bouw
appartement
Bouwjaar
1957
Soort dak
plat dak
Slaapkamers
2
Badkamers
1
Oppervlakten en inhoud
Woonoppervlakte
110 m2
Overige inpandige ruimte
0 m2
Inhoud
371 m3
faciliteiten
Mechanische ventilatie
Tv kabel
Lift
Aan rustige weg
In woonwijk
Vrij uitzicht
Baerz & Co Property Brochure

Brochure

Video’s

Plattegronden

11 Makelaars - Amsterdam

Mt. Lincolnweg 38 - 617
1033SN Amsterdam

info@11makelaars.nl
+31 20 20 50 208

www.11makelaars.nl

Informatie / bezichtigingsaanvraag

Niels Eering profile image
Niels Eering
Real Estate Agent

Een luxe woning kopen in Amsterdam

Amsterdam biedt een kosmopolitische levensstijl, gekenmerkt door erfgoed, verbondenheid en discrete luxe. Bewoners profiteren van een sterke internationale gemeenschap, hoogwaardige dienstverlening en een bruisende cultuur. De blijvende aantrekkingskracht van de stad schuilt in de combinatie van geschiedenis, verfijning en een vooruitstrevende geest.