Ons kantoor is lid van Baerz & Co Luxury Homes; een internationaal platform dat exclusieve woningmakelaars met elkaar verbindt. Neem contact op met ons secretariaat voor meer informatie over het landelijke aanbod, waarvan u hieronder een selectie kunt bekijken.

AMSTERDAM
Govert Flinckstraat 264 H - 1073 CE
Nederland

Niels Eering profile image
Niels Eering
Real Estate Agent
€1.100.000 k.k.
Woonoppervlakte
175m2
Perceeloppervlakte
108m2
Slaapkamers
5

Omschrijving

Uiterst voorstel dinsdag 18 november 2025 om 10 uur.

Govert Flinckstraat 264 H, 1073 CE AMSTERDAM

Aan de levendige Govert Flinckstraat, midden in de gewilde Pijp, bevindt zich dit unieke pand bestaande uit twee zelfstandige woningen met ieder een eigen huisnummer en entree. Het geheel is thans niet gesplitst in appartementsrechten, waardoor zowel gezinnen als investeerders hier diverse mogelijkheden hebben. Denk aan het realiseren van één royaal familiehuis, dubbele bewoning (bijvoorbeeld ouders en studerende kinderen), of het splitsen in twee zelfstandige appartementen na vergunningverlening. Het pand beslaat in totaal circa 175 m² woonoppervlakte verdeeld over vier woonlagen, met een zonnige achtertuin en een balkon op de bovenste verdieping, beide op het zuiden gelegen.

Ligging & Bereikbaarheid:
Het appartement is bijzonder centraal gelegen in de bruisende wijk De Pijp. Op slechts enkele minuten loopafstand bevindt zich de beroemde Albert Cuypmarkt, waar u terecht kunt voor verse producten, kleding-, en meer. Ook het sfeervolle Sarphatipark ligt in de buurt, perfect voor een ontspannen wandeling of picknick. In de directe omgeving vindt u tal van trendy cafés, restaurants, en unieke boetiekjes, waardoor er altijd iets te ontdekken valt. Voor de dagelijkse boodschappen zijn er meerdere supermarkten, zoals een Albert Heijn en Jumbo, diverse speciaalzaken, waaronder een bakker, biologische winkel en wijnhandel, allemaal binnen handbereik.
De locatie is uitstekend bereikbaar: binnen tien minuten fietsen bent u in het centrum van Amsterdam. De metrohalte van de Noord-/Zuidlijn is nog geen 5 minuten lopen en verschillende andere bus- en tramhaltes zijn nabij gelegen. Denk hierbij ook aan station Rai en station Zuid/WTC. Met de auto bereikt u de Ring A10 eveneens gemakkelijk via afslag Rai. En ook Schiphol Airport is gemakkelijk en binnen 15 minuten te bereiken. Daarnaast is er in de straat weinig autoverkeer waardoor er bijna altijd plek is om te parkeren. Kortom, een levendige en centrale plek met een authentieke Amsterdamse sfeer, waar alles binnen handbereik is.

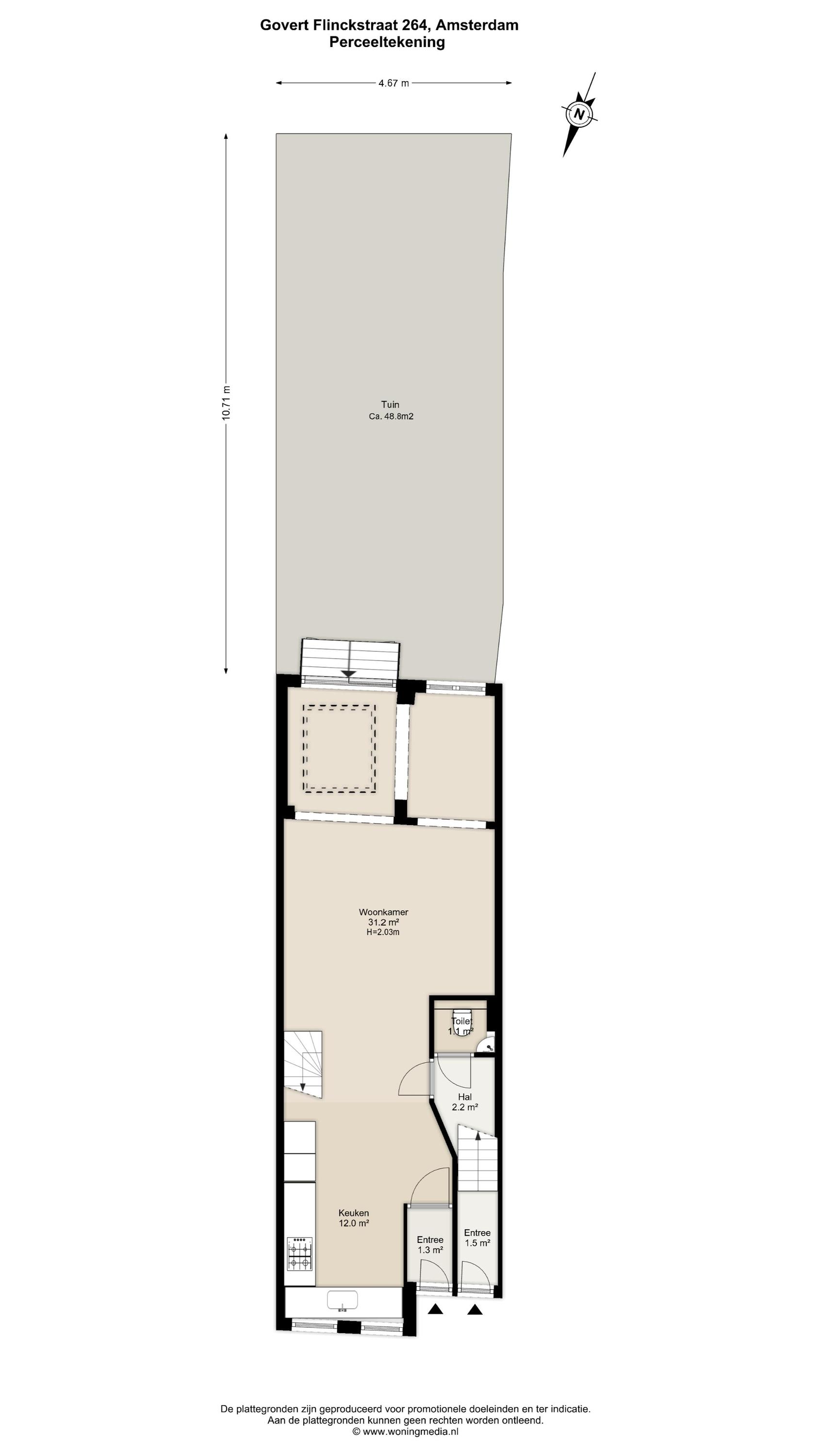
Indeling

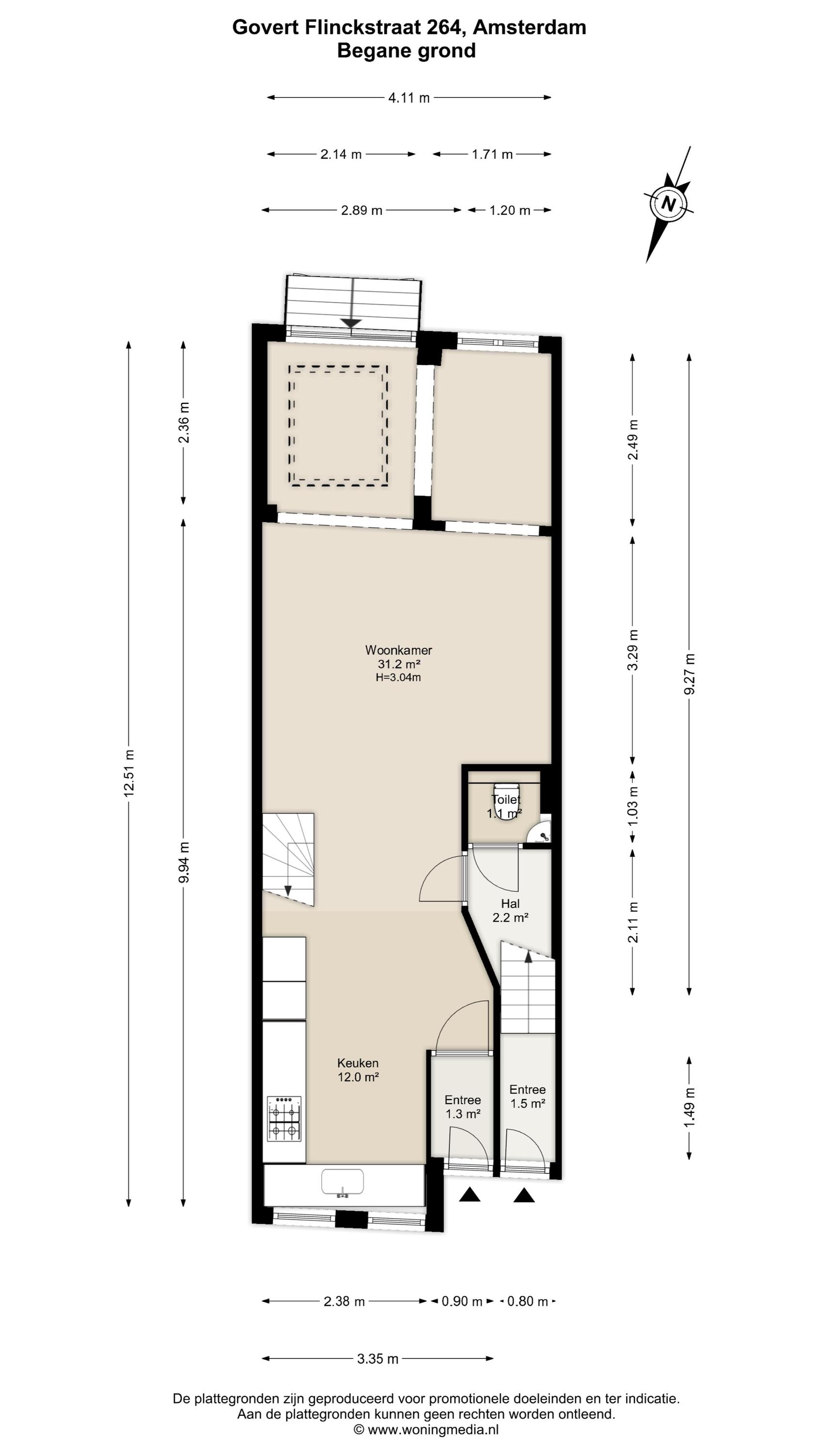
Begane grond
Middels de eigen entree aan de straatzijde en het tochtportaal bereikt u de open keuken en royale woonkamer welke aan de achterzijde is gelegen. Deze heeft een plafondhoogte van ruim 3 meter en wordt verlicht door een groot skylight en openslaande deuren naar de ruime achtertuin van ca. 49m². Deze is op het zuiden gesitueerd en biedt volop mogelijkheden voor een comfortabele loungehoek, een royale eettafel of een speelplek voor kinderen en is een heerlijke plek om de hele dag van de zon te genieten. De open keuken aan de voorzijde met zicht op de straat is voorzien van een spoelbak, Howat 3-1 kookwaterkraan, 5-pits gasfornuis, ingebouwde afzuigkap, vaatwasser, oven, magnetron, koelkast en een volwaardige vriezer.

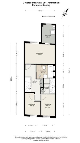
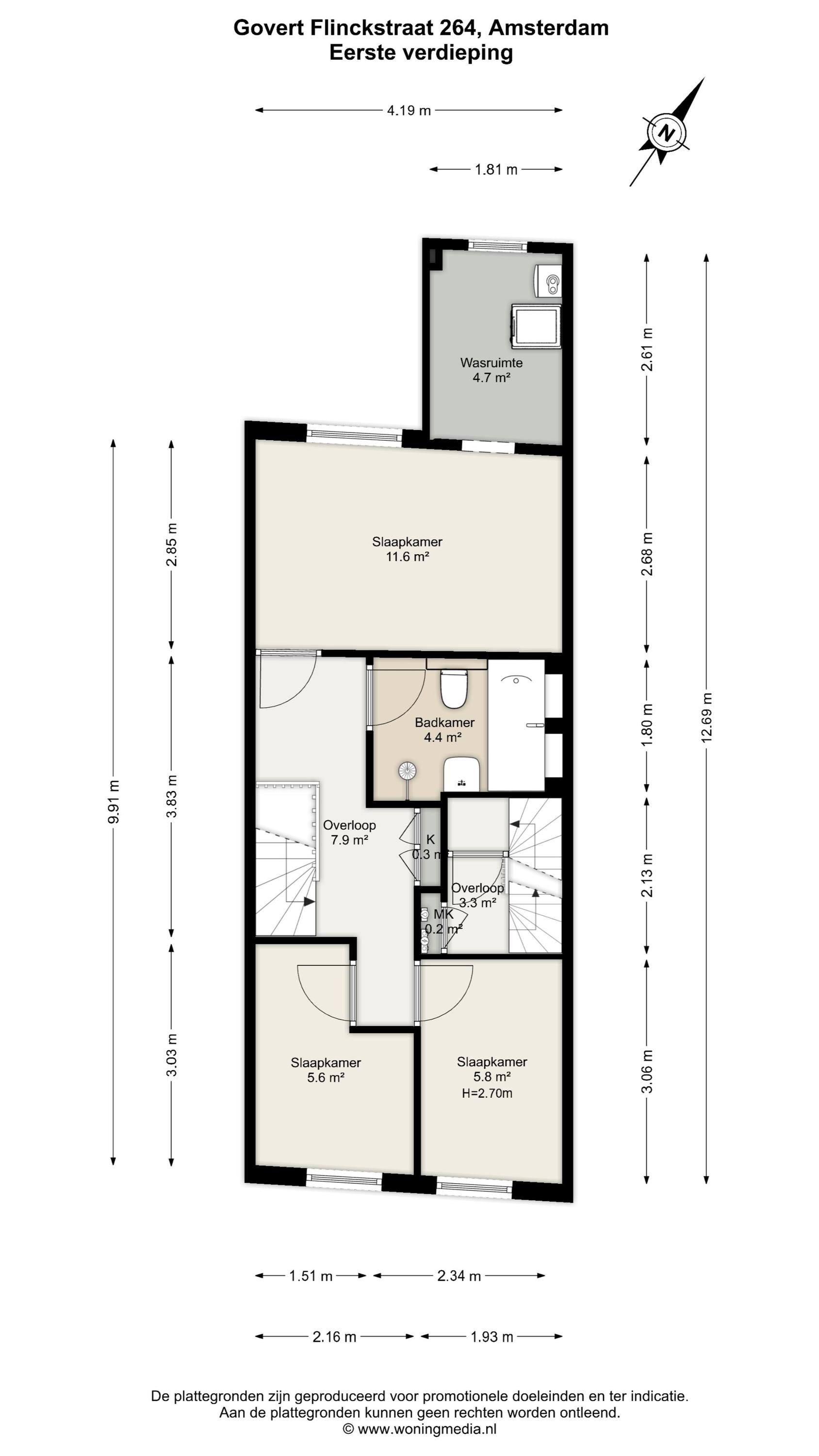
Eerste verdieping
De interne trap in de woonkamer verbindt de begane grond met de eerste verdieping, deze is ingedeeld met drie slaapkamers, een badkamer en een separate wasruimte. De grootste slaapkamer ligt aan de achterzijde, de andere twee slaapkamers zijn aan de voorzijde gesitueerd. De badkamer beschikt over een ligbad, inloopdouche, wastafel en toilet. De wasruimte biedt plaats voor een wasmachine en droger.

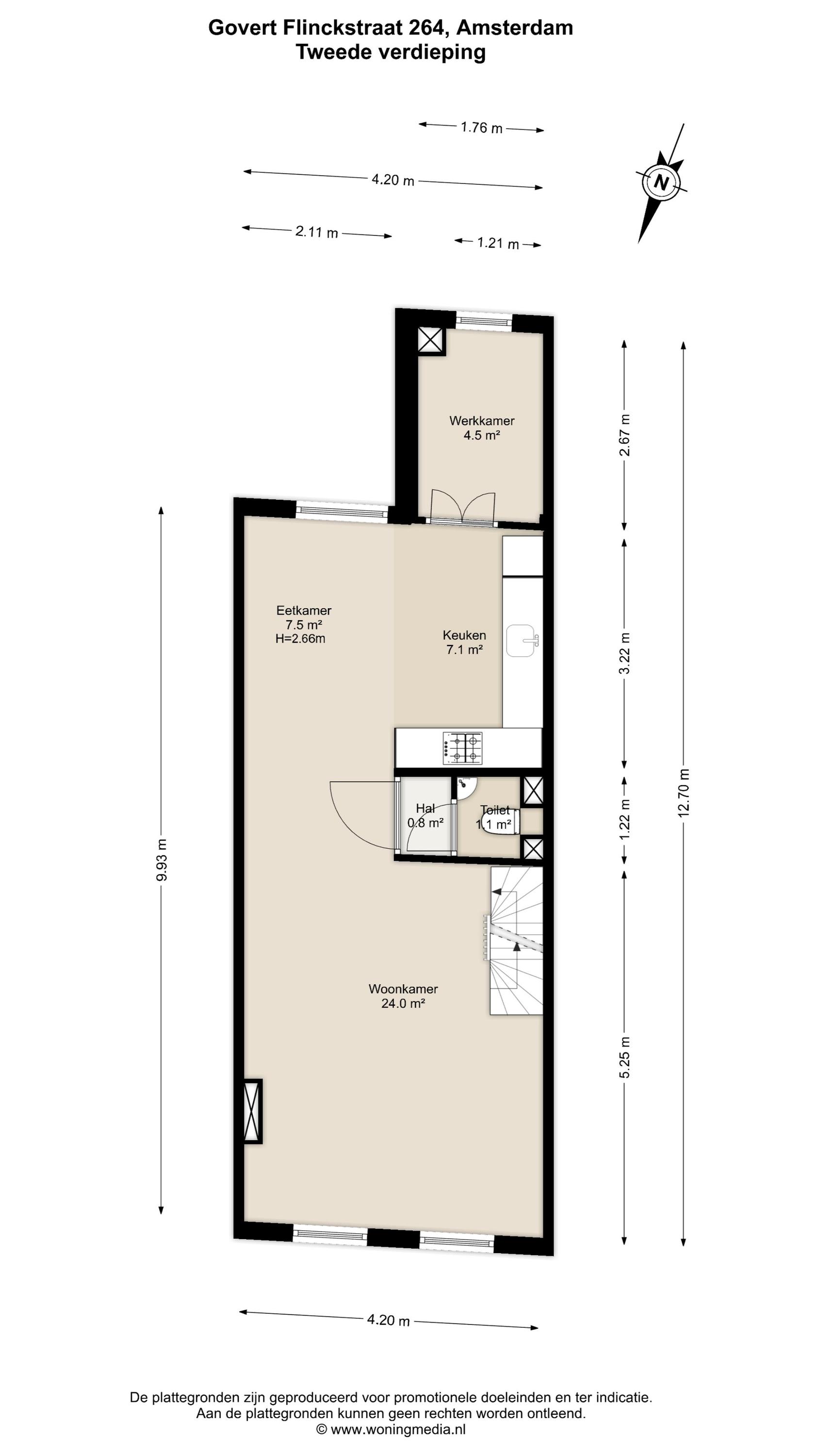
Tweede verdieping
De tweede verdieping heeft een eigen entree en trapopgang vanaf straatniveau. Deze verdieping is ingedeeld met een royale woonkamer aan de voorzijde en een eetgedeelte en open keuken aan de achterzijde. De keuken is voorzien van diverse inbouwapparatuur, waaronder een kookplaat, koelkast, vriezer, oven, magnetron, vaatwasser en afzuigkap. Aan de achterzijde bevindt zich een lichte werkkamer. Daarnaast is er een separaat toilet aanwezig.

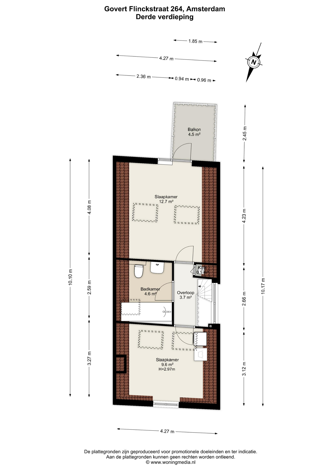
Derde verdieping
De bovenste verdieping beschikt over twee ruime slaapkamers en een tweede badkamer met bad/douche, wastafel en toilet. De hoofdslaapkamer aan de achterzijde heeft toegang tot het balkon van circa 4,5 m². De tweede slaapkamer ligt aan de voorzijde. Dankzij de charmante dakconstructie met dakkapellen en dakramen is dit een sfeervolle verdieping met veel lichtinval.

Bijzonderheden
- Ongesplitst, publiek rechtelijk 2 woningen en geheel leeg opgeleverd;
- Gebruiksoppervlakte woning ca. 175m² (NEN 2580 rapport aanwezig);
- Achtertuin op het zuiden van ca. 49m² (NEN 2580 rapport aanwezig);
- Balkon op het zuiden van ca. 5m² (NEN 2580 rapport aanwezig);
- Vijf slaapkamers;
- Twee grote badkamers en twee separate toiletten;
- Energielabel D;
- Ketel begane grond eigendom, ketel 2 hoog gehuurd;
- gehele inboedel 2 hoog over te nemen;
- Gelegen op eigen grond, dus geen erfpacht;
- Funderingscode 3 (2022);
- Twee parkeervergunningen mogelijk;
- As is where is clausule van toepassing;
- Oplevering in overleg geheel leeg en ontruimd;

Deze informatie is door ons met de nodige zorgvuldigheid samengesteld. Onzerzijds wordt echter geen enkele aansprakelijkheid aanvaard voor enige onvolledigheid, onjuistheid of anderszins, dan wel de gevolgen daarvan. Alle opgegeven maten en oppervlakten zijn indicatief. Koper heeft zijn eigen onderzoeksplicht naar alle zaken die voor hem of haar van belang zijn. Met betrekking tot deze woning is de makelaar adviseur van verkoper. Wij adviseren u een deskundige (NVM-)makelaar in te schakelen die u begeleidt bij het aankoopproces. Indien u specifieke wensen heeft omtrent de woning, adviseren wij u deze tijdig kenbaar te maken aan uw aankopend makelaar en hiernaar zelfstandig onderzoek te (laten) doen. Indien u geen deskundige vertegenwoordiger inschakelt, acht u zich volgens de wet deskundige genoeg om alle zaken die van belang zijn te kunnen overzien. Van toepassing zijn de NVM voorwaarden.

Kenmerken

Overdracht
Vraagprijs
€ 1.100.000 k.k.
Status
verkocht onder voorbehoud
Aanvaarding
in overleg
Bouw
Soort woonhuis
Eengezinswoning
Soort bouw
tussenwoning
Bouwjaar
1885
Energieklasse
D
Soort dak
mansarde dak
Slaapkamers
5
Badkamers
2
Oppervlakten en inhoud
Woonoppervlakte
175 m2
Overige inpandige ruimte
0 m2
Gebouwgebonden buitenruimte
5 m2
Inhoud
611 m3
Perceeloppervlakte
108 m2
faciliteiten
Tv kabel
Natuurlijke ventilatie
In centrum
In woonwijk
Baerz & Co Property Brochure

Brochure

Video’s

11 Makelaars - Amsterdam Noord

Mt. Lincolnweg 36 - 617
1033SN Amsterdam

info@11makelaars.nl
+31 20 20 50 208

www.11makelaars.nl

Informatie / bezichtigingsaanvraag

Niels Eering profile image
Niels Eering
Real Estate Agent

Een luxe woning kopen in Amsterdam

Amsterdam biedt een kosmopolitische levensstijl, gekenmerkt door erfgoed, verbondenheid en discrete luxe. Bewoners profiteren van een sterke internationale gemeenschap, hoogwaardige dienstverlening en een bruisende cultuur. De blijvende aantrekkingskracht van de stad schuilt in de combinatie van geschiedenis, verfijning en een vooruitstrevende geest.