Baerz & Co is een landelijk samenwerkingsverband van zorgvuldig geselecteerde boutique luxury makelaars. Samen vormen wij één netwerk, met één gedeeld aanbod. De woningen die u op onze website ziet, zijn afkomstig van alle aangesloten kantoren binnen Baerz & Co. Daardoor is niet ieder object rechtstreeks door ons kantoor in verkoop, maar door een gespecialiseerde collega binnen ons netwerk. Heeft u een woning gevonden die u aanspreekt en wilt u meer informatie? Dan brengen wij u graag persoonlijk in contact met de betreffende verkoopmakelaar, zodat u direct en zorgvuldig wordt begeleid.

AMSTERDAM
Dam 5 U - 1012 JS
Nederland

Niels Eering profile image
Niels Eering
Real Estate Agent
€3.900.000 k.k.
Woonoppervlakte
165m2
Perceeloppervlakte
N/A
Slaapkamers
3

Omschrijving

Een bijzonder appartement van circa 165 m², met conciërge, valet-parking voor meerdere auto’s en gelegen op een van de meest prestigieuze plekken midden in het centrum van Amsterdam. Dit volledig gemeubileerde appartement kijkt uit op het Koninklijk Paleis en de Dam en u begeeft zich op loopafstand van de grachtengordel. Wonen op dit niveau in Amsterdam is zeldzaam en voornamelijk te vinden in wereldsteden als New York, Parijs, Singapore of Londen. Dankzij de vijfsterrenservice van het naastgelegen Grand Hotel Krasnapolsky ervaart u hier hetzelfde internationale wooncomfort. Roomservice, housekeeping en diverse hotelvoorzieningen staan tot uw beschikking. Dit maakt het appartement zowel aantrekkelijk als pied-à-terre voor internationale bewoners als voor Amsterdammers die kiezen voor ultiem gemak en comfort.

De glazen puien geven u de mogelijkheid het levendige stadsleven direct binnen te laten, of juist volledig buiten te sluiten en te genieten van rust en privacy. De hoogwaardige bouwkwaliteit en materialen zorgen daarbij voor een aangenaam en geborgen gevoel. Het interieur is tot in detail ontworpen onder supervisie van internationaal interieurarchitect Pieter Laureys en op topniveau afgewerkt. De woning wordt bovendien aangeboden inclusief nieuw, zorgvuldig geselecteerd maatwerkmeubilair.

Ligging & Bereikbaarheid

Wonen aan de Dam betekent wonen in het absolute centrum van Amsterdam, op een plek die wereldwijd tot de verbeelding spreekt. U bevindt zich hier te midden van luxe warenhuizen zoals De Bijenkorf, designerboetieks en exclusieve flagshipstores. Ook op culinair vlak heeft u de keuze uit een breed scala aan hippe horeca: van trendy koffiebars en cosmopolitische cocktailbars tot restaurants met Michelinsterren en verfijnde internationale keukens. Ondanks de bruisende stadse dynamiek vindt u in de directe omgeving ook rust en groen. Binnen enkele minuten wandelt u naar het Rokin, de rustige grachten of richting de Plantagebuurt en het Vondelpark. Zo combineert u de energie van de stad met de mogelijkheid tot ontspanning in het groen.

Qua bereikbaarheid zit u optimaal: alle belangrijke tramlijnen stoppen voor de deur, metrostation Rokin met de Noord/Zuidlijn ligt op steenworp afstand en het Centraal Station bereikt u binnen enkele minuten te voet. Schiphol en de Zuidas zijn daardoor in slechts een kwartier bereikbaar. Voor uw auto is eveneens gezorgd. Als bewoner profiteert u van valet-parking in de parkeergarage van het naastgelegen Krasnapolsky. U rijdt eenvoudig voor, waarna uw auto voor u wordt weggezet en weer klaargezet op het moment dat u deze nodig heeft – comfortabeler kan bijna niet in hartje Amsterdam.

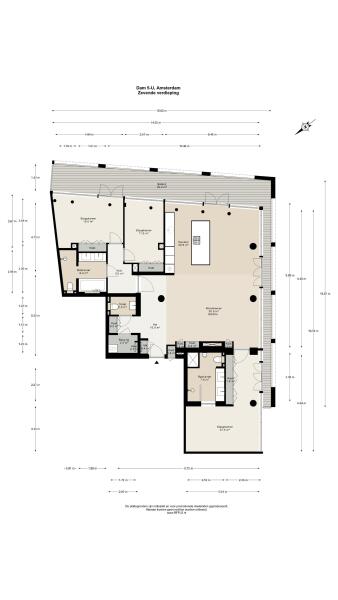
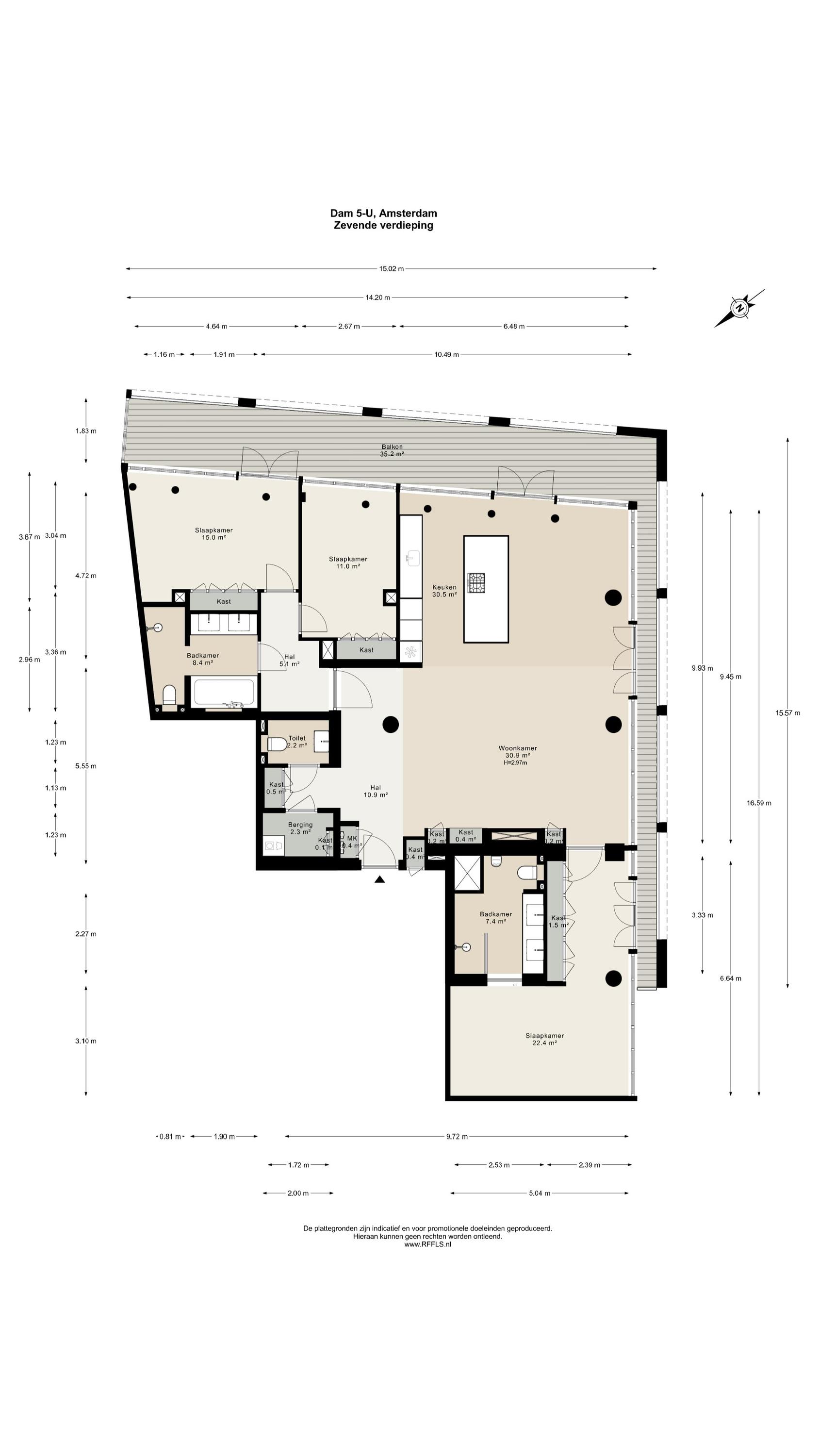
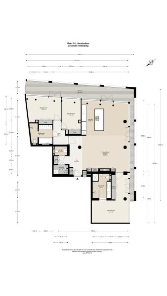
Indeling

Via de gemeenschappelijke entree en de lift bereikt u de zevende verdieping. De hal is ruim opgezet en voorzien van een separaat toilet. Vanuit hier stapt u binnen in de lichte woonkamer, met een inbouwhaard en karaktervolle stalen deuren met rookglas. De open keuken met kookeiland vormt het hart van de woning. Deze is volledig ingericht met hoogwaardige Miele-apparatuur, waaronder een wijnklimaatkast, stoomoven en koffieautomaat. Aansluitend vindt u de eetkamer en het royale terras, waar u kunt genieten van een bijzonder uitzicht op de Dam.

Het appartement beschikt over drie slaapkamers, allen voorzien van luxe Hästens bedden. De master suite heeft een eigen walk-in closet en een luxe badkamer met ligbad, dubbele wastafel, inloopdouche en separaat toilet. De tweede badkamer, uitgevoerd in warme aardetinten, is eveneens volledig uitgerust en praktisch ingedeeld. Door de woning ligt een fraaie houten vloer, gecombineerd met vloerverwarming en -koeling, ingebouwde verlichting en elektrische zonwering. Aangrenzend aan het appartement beschikt u over een separate berging, evenals een technische ruimte en een wasruimte.

Bijzonderheden:

- Appartementsrecht van ca. 165 m² (gemeten conform NEN2580 meetinstructie)
- Gelegen op de 7e verdieping
- Separate berging van ca. 6 m²
- Valet-parking in de garage van Krasnapolsky
- Gelegen op eigen grond (géén erfpacht)
- Drie slaapkamers en twee luxe aangrenzende badkamers
- Ruim terras op het zuiden met indrukwekkend uitzicht over de Dam
- Afwerking op internationaal hoog niveau
- Voorzien van praktische domotica-installatie
- Royale, comfortabele living
- Exclusieve 5-sterren service van het naastgelegen Grand Hotel Krasnapolsky
- Bijdrage VvE: € 2.004,57 per maand
- Vloer- en plafondverwarming met koelfunctie
- Lift aanwezig
- Mogelijkheid tot oplevering inclusief exclusief geselecteerd meubilair
- Ontworpen door internationaal gerenommeerd architect Cees Dam
- Oplevering in overleg

Deze informatie is door ons met de nodige zorgvuldigheid samengesteld. Onzerzijds wordt echter geen enkele aansprakelijkheid aanvaard voor enige onvolledigheid, onjuistheid of anderszins, dan wel de gevolgen daarvan. Alle opgegeven maten en oppervlakten zijn indicatief. Koper heeft zijn eigen onderzoeksplicht naar alle zaken die voor hem of haar van belang zijn. Met betrekking tot deze woning is de makelaar adviseur van verkoper. Wij adviseren u een deskundige (NVM-)makelaar in te schakelen die u begeleidt bij het aankoopproces. Indien u specifieke wensen heeft omtrent de woning, adviseren wij u deze tijdig kenbaar te maken aan uw aankopend makelaar en hiernaar zelfstandig onderzoek te (laten) doen. Indien u geen deskundige vertegenwoordiger inschakelt, acht u zich volgens de wet deskundige genoeg om alle zaken die van belang zijn te kunnen overzien. Van toepassing zijn de NVM voorwaarden.

Kenmerken

Alarm system
Air conditioning
Overdracht
Vraagprijs
€ 3.900.000 k.k.
Status
beschikbaar
Aanvaarding
in overleg
Bouw
Soort woonhuis
Penthouse
Soort bouw
appartement
Bouwjaar
2017
Slaapkamers
3
Badkamers
2
Oppervlakten en inhoud
Woonoppervlakte
165 m2
Overige inpandige ruimte
0 m2
Gebouwgebonden buitenruimte
46 m2
Externe bergruimte
6 m2
Inhoud
579 m3
faciliteiten
Mechanische ventilatie
Alarminstallatie
Buitenzonwering
Lift
Airconditioning
Schuifpui
Domotica
In centrum
Vrij uitzicht
Baerz & Co Property Brochure

Brochure

Video’s

Plattegronden

11 Makelaars - Amsterdam Noord

Mt. Lincolnweg 36 - 617
1033SN Amsterdam

info@11makelaars.nl
+31 20 20 50 208

www.11makelaars.nl

Informatie / bezichtigingsaanvraag

Niels Eering profile image
Niels Eering
Real Estate Agent

Een luxe woning kopen in Amsterdam

Amsterdam biedt een kosmopolitische levensstijl, gekenmerkt door erfgoed, verbondenheid en discrete luxe. Bewoners profiteren van een sterke internationale gemeenschap, hoogwaardige dienstverlening en een bruisende cultuur. De blijvende aantrekkingskracht van de stad schuilt in de combinatie van geschiedenis, verfijning en een vooruitstrevende geest.