Baerz & Co is een landelijk samenwerkingsverband van zorgvuldig geselecteerde boutique luxury makelaars. Samen vormen wij één netwerk, met één gedeeld aanbod. De woningen die u op onze website ziet, zijn afkomstig van alle aangesloten kantoren binnen Baerz & Co. Daardoor is niet ieder object rechtstreeks door ons kantoor in verkoop, maar door een gespecialiseerde collega binnen ons netwerk. Heeft u een woning gevonden die u aanspreekt en wilt u meer informatie? Dan brengen wij u graag persoonlijk in contact met de betreffende verkoopmakelaar, zodat u direct en zorgvuldig wordt begeleid.

AMSTERDAM
Amsteldijk 143 3 - 1079 LE
Nederland

€850.000 k.k.
Woonoppervlakte
82m2
Perceeloppervlakte
134m2
Slaapkamers
3

Omschrijving

Amsteldijk 143 3, 1079 LE Amsterdam

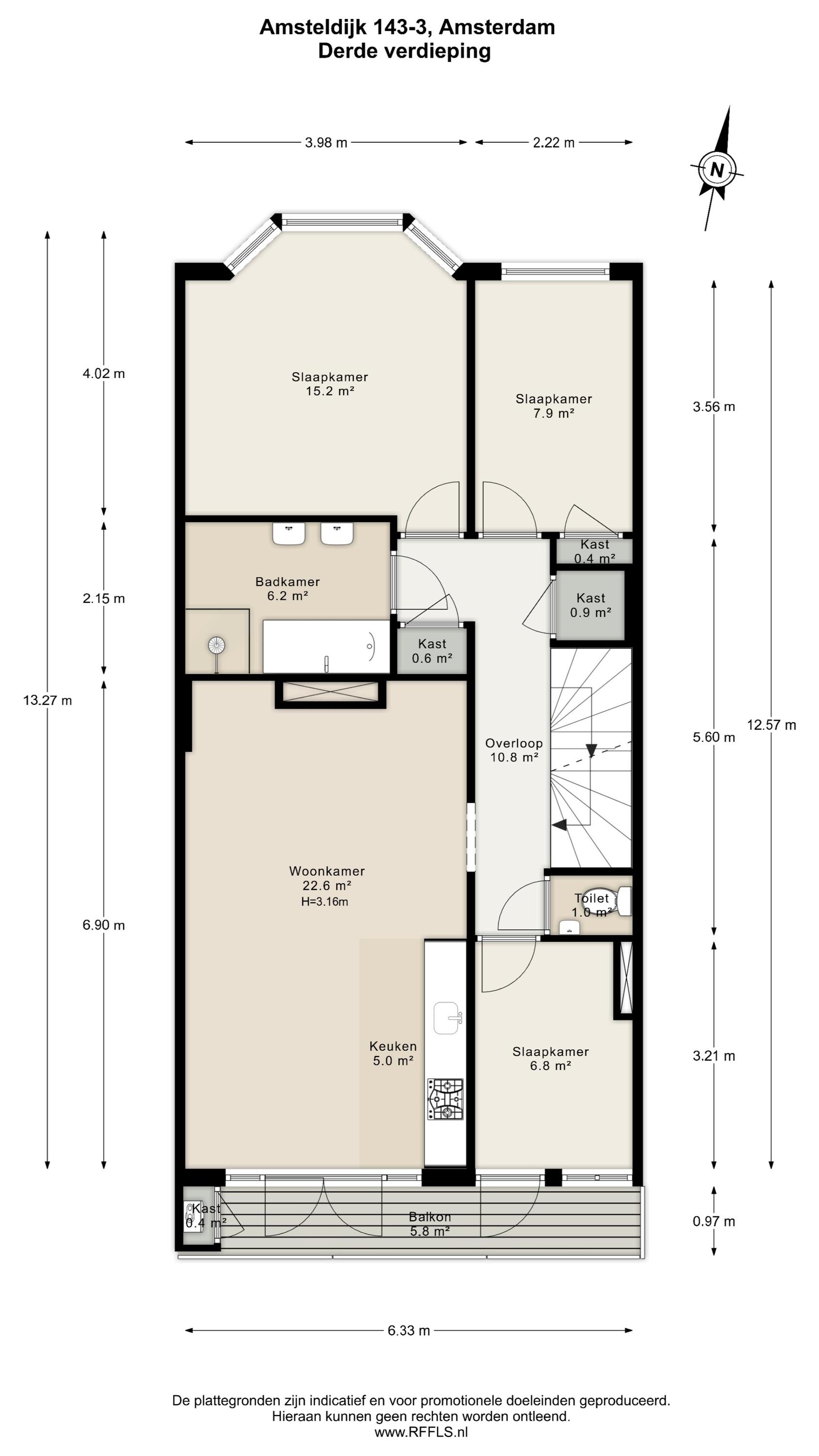
Compleet gerenoveerd en high-end appartement van ca. 82 m² met hoge plafonds (3,16 m) drie slaapkamers, luxe badkamer, zonnig balkon en courant dakterras (ca. 33 m²) met buitenkeuken en buitenbad. Het appartement bevindt zich in een goed onderhouden pand, welke in 2023 opnieuw is gesplitst op één van de leukste plekken aan de Amstel.

Ligging & bereikbaarheid:
De Amsteldijk is een ruim opgezette straat langs de Amstel voorzien van statige bouw en veel groen. De locatie kenmerkt zich als een prettige, centrale en toch rustige locatie aan de zonnige kant van de Amstel. In de buurt zijn diverse mogelijkheden voor de dagelijkse boodschappen zoals de Albert Heijn, Etos en de Albert Cuypmarkt. Daarbij zijn er in de directe nabijheid vele leuke restaurants en buurtcafés. Wanneer u de Nieuwe Amstelbrug over fietst, staat u direct in de gezellige Pijp met een ruim aanbod aan hippe winkels en boetieks, gezellige terrassen en populaire restaurants. Voor ontspanning zijn het Oosterpark en het Sarphatipark op 10 minuten fietsafstand, maar ook voor de deur kunt u genieten van een zonnige dag aan De Amstel.

De woning heeft een gunstige ligging ten opzichte van diverse uitvalswegen (A10 en A2) en het openbaar vervoer. Op steenworp afstand bevinden zich metrostation Amstel, Station Rai en Station Zuid, waar frequent diverse treinen, bussen en trams vertrekken in verschillende richtingen.

Indeling:
Binnenkomst in het appartement via de overloop met twee bergruimtes en separaat toilet met zweeftoilet en fonteintje. De overloop biedt toegang tot alle vertrekken. Aan de achterzijde de ruime en lichte woonkamer met gashaard en luxe open keuken welke is voorzien van diverse inbouwapparatuur (Siemens). Middels openslaande deuren toegang tot het sfeervolle balkon. Ook de slaapkamer aan de achterzijde biedt toegang tot het balkon. Aan de voorzijde de Master bedroom met erker en de derde slaapkamer. Beiden slaapkamers bieden een fraai uitzicht op de Amstel. De centraal gelegen luxe badkamer is voorzien van een ligbad, inloopdouche en dubbele wasbak met meubel.
Via de interne trap bereikt u het elegante dakterras, welke van alle gemakken is voorzien: ledverlichting, zonnescherm, groenvoorziening, volledige buitenkeuken en een buitenbad. Vanaf het dakterras geniet u de hele dag van de zon en het vrije uitzicht over de Amstel.

Tijdens de renovatie zijn kosten noch moeite bespaard gebleven, er is gebruik gemaakt van hoogwaardig materiaal bij de luxe afwerking. In het hele appartement ligt een eikenhouten visgraatvloer met vloerverwarming en chique hoge plinten. Alle ruimtes zijn voorzien van inbouwspots, wandlampen en sierlijsten.

Bijzonderheden:
- Appartementsrecht van 81,6m² (gemeten conform NEN2580 meetinstructie);
- Riant dakterras van 33m² (gemeten conform NEN2580 meetinstructie);
- Dakterras voorzien van buitenkeuken en buitenbad;
- Luxe gerenoveerd;
- 3 slaapkamers;
- Volledig voorzien van vloerverwarming;
- Hoge plafonds (> 3 meter);
- Vrij uitzicht over de Amstel;
- Luxe gashaard;
- Recht van erfpacht: AB2000. Huidig tijdvak loopt t/m 31-05-2049 / Afgekocht;
- VvE, servicekosten: € 120,- per maand;
- Oplevering in overleg, kan snel.
Deze informatie is door ons met de nodige zorgvuldigheid samengesteld. Onzerzijds wordt echter geen enkele aansprakelijkheid aanvaard voor enige onvolledigheid, onjuistheid of anderszins, dan wel de gevolgen daarvan. Alle opgegeven maten en oppervlakten zijn indicatief. Koper heeft zijn eigen onderzoek plicht naar alle zaken die voor hem of haar van belang zijn. Met betrekking tot deze woning is de makelaar adviseur van verkoper. Wij adviseren u een deskundige (NVM-)makelaar in te schakelen die u begeleidt bij het aankoopproces. Indien u specifieke wensen heeft omtrent de woning, adviseren wij u deze tijdig kenbaar te maken aan uw aankopend makelaar en hiernaar zelfstandig onderzoek te (laten) doen. Indien u geen deskundige vertegenwoordiger inschakelt, acht u zich volgens de wet deskundige genoeg om alle zaken die van belang zijn te kunnen overzien. Van toepassing zijn de NVM voorwaarden.

Kenmerken

Overdracht
Vraagprijs
€ 850.000 k.k.
Status
onder bod
Aanvaarding
in overleg
Bouw
Soort woonhuis
Bovenwoning
Soort bouw
appartement
Bouwjaar
1925
Energieklasse
A
Soort dak
plat dak
Slaapkamers
3
Badkamers
1
Oppervlakten en inhoud
Woonoppervlakte
82 m2
Overige inpandige ruimte
0 m2
Gebouwgebonden buitenruimte
39 m2
Inhoud
306 m3
Perceeloppervlakte
134 m2
faciliteiten
Mechanische ventilatie
Tv kabel
Buitenzonwering
Aan water
Vrij uitzicht
Aan vaarwater
Baerz & Co Property Brochure

Brochure

Video’s

Plattegronden

11 Makelaars - Amsterdam

Mt. Lincolnweg 38 - 617
1033SN Amsterdam

info@11makelaars.nl
+31 20 20 50 208

www.11makelaars.nl

Informatie / bezichtigingsaanvraag

Niels Eering profile image
Niels Eering
Real Estate Agent

Een luxe woning kopen in Amsterdam

Amsterdam biedt een kosmopolitische levensstijl, gekenmerkt door erfgoed, verbondenheid en discrete luxe. Bewoners profiteren van een sterke internationale gemeenschap, hoogwaardige dienstverlening en een bruisende cultuur. De blijvende aantrekkingskracht van de stad schuilt in de combinatie van geschiedenis, verfijning en een vooruitstrevende geest.