Ons kantoor is lid van Baerz & Co Luxury Homes; een internationaal platform dat exclusieve woningmakelaars met elkaar verbindt. Neem contact op met ons secretariaat voor meer informatie over het landelijke aanbod, waarvan u hieronder een selectie kunt bekijken.

Tussenverdieping te koop in AMSTELVEEN

AMSTELVEEN Texelstraat 110 - 1181 ES Nederland


Sander Bovenkerk profile image
Sander Bovenkerk
Real Estate Agent
+31 6 55 74 61 72
info@heerenmakelaars.nl

Heeren Makelaars
Stadionweg 75
1077 SE Amsterdam
NETHERLANDS
+31 204702255
www.heerenmakelaars.nl
info@heerenmakelaars.nl

Woonoppervlakte
224m2
Perceeloppervlakte
N/A
Slaapkamers
5

Omschrijving

Texelstraat 110, 1181 ES Amstelveen

Gelegen aan de Texelstraat 110 in Amstelveen, in het luxe complex Forest Hill Luxury Apartments, bevindt zich dit stijlvolle en royale hoekappartement van ca. 221 m² met twee zonnige terrassen van in totaal circa 33 m². De woning ligt op de tweede verdieping en combineert luxe, comfort en ruimte op een unieke locatie aan de rand van het Amsterdamse Bos en nabij het Stadshart Amstelveen. De indrukwekkende woonkamer van ca. 120 m² beschikt over een moderne Siematic-keuken. Grote schuifdeuren verbinden de leefruimte met de terrassen en zorgen voor een prachtig buiten-binnengevoel. Verder biedt het appartement vijf ruime slaapkamers, twee luxe badkamers en is dankzij de hoekligging bijzonder licht. Er zijn meerdere parkeerplaatsen/boxen te koop in de ondergelegen parkeergarage. Een uitzonderlijk appartement voor wie groots en comfortabel wil wonen op een toplocatie in Amstelveen.

FOREST HILL LUXURY APARTMENTS in Amstelveen biedt een unieke kans om per direct te wonen in een volledig nieuw en hoogwaardig afgewerkt appartement. De 25 exclusieve woningen combineren luxe, comfort en elegantie met een rustige ligging nabij alle stedelijke voorzieningen. De ruime appartementen beschikken over grote raampartijen, een Siematic keuken met Siemens apparatuur en luxe sanitair. Bewoners genieten van moderne gemakken zoals een ondergrondse parkeergarage met laadpunten en een lift naar de woonverdiepingen. Geïnspireerd door de Japanse natuurtherapie Shirin Yoku, ademt het complex rust en verbinding met de natuur. Dankzij de centrale ligging tussen Stadshart Amstelveen, het Gelderlandplein en het Amsterdamse Bos ervaart u het beste van twee werelden: serene woonkwaliteit met alle stedelijke luxe binnen handbereik.

Locatie en bereikbaarheid
FOREST HILL LUXURY APARTMENTS bevindt zich in de populaire en groene wijk Randwijck in Amstelveen — een van de meest gewilde woonomgevingen in de regio. Hier woont u rustig en omringd door natuur, met alle stedelijke gemakken binnen handbereik. In de directe omgeving vindt u diverse scholen, waaronder de Amity International School en de Brede School Roelof Venema, evenals meerdere kinderdagverblijven, supermarkten en het winkelcentrum Kostverlorenhof voor de dagelijkse boodschappen.

Wie op zoek is naar wat meer luxe, heeft keuze te over: het Stadshart Amstelveen en het Gelderlandplein in Amsterdam liggen beide op slechts enkele minuten afstand. Deze winkelcentra staan bekend om hun brede aanbod aan kwaliteitswinkels, speciaalzaken, traiteurs en gezellige horeca — van de Bijenkorf tot een Starbucks en Rituals-shop. En wilt u een dagje cultuur snuiven, dan is het Cobra Museum een bezoek meer dan waard. Daarnaast ligt het uitgestrekte Amsterdamse Bos om de hoek, met talloze wandel- en fietsroutes, sportfaciliteiten, theater, festivals en sfeervolle eetgelegenheden. Voor wie wil ontspannen, biedt Spa & Wellness Zuiver aan de Bosbaan een oase van rust, terwijl u bij restaurant Loetje aan de Amstel geniet van goed eten en het uitzicht op het water.

De ligging van de woning is bijzonder centraal en uitstekend bereikbaar. Met de auto bent u binnen enkele minuten op de A9, A10 en A2 richting Amsterdam, Schiphol of de rest van de Randstad. Ook met het openbaar vervoer is de bereikbaarheid optimaal: bus- en tramlijnen richting Amsterdam-Zuid, de Zuidas en Amstelveen Stadshart stoppen in de directe nabijheid. Fietsers bereiken binnen korte tijd zowel de Zuidas als het centrum van Amstelveen, waardoor woon-werkverkeer snel en efficiënt verloopt. En na een drukke dag is het heerlijk thuiskomen in deze rustige, groene omgeving waar stadse voorzieningen en natuur moeiteloos samenkomen.

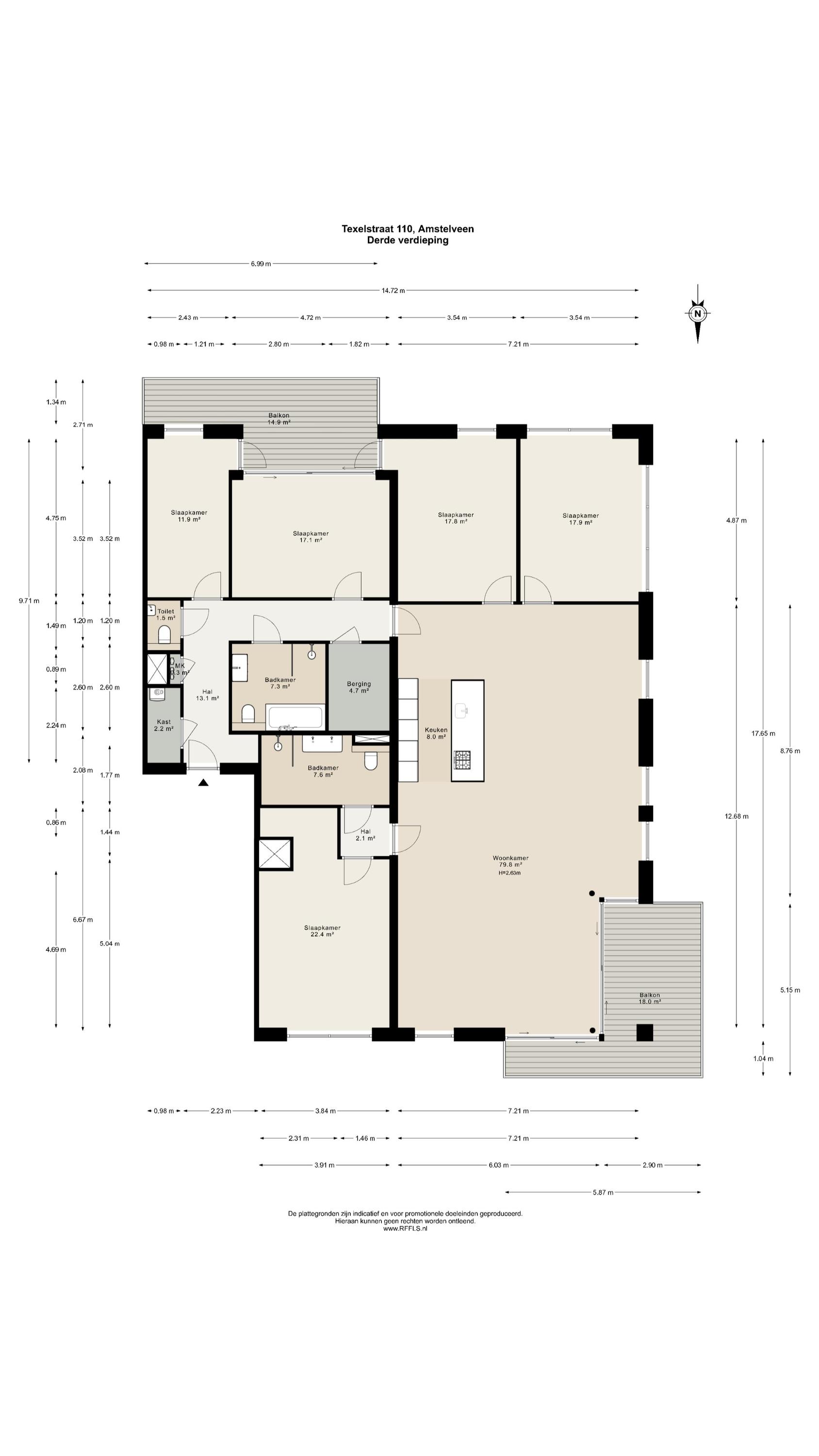
Indeling
U bereikt het appartement comfortabel met de lift, waarna u via de verzorgde hal binnenstapt in een stijlvolle en lichte woning. De lange centrale gang leidt naar dubbele openslaande deuren die toegang geven tot de royale woonkamer. Hier springen de ruimte, het overvloedige licht en de verfijnde afwerking direct in het oog. De moderne keuken met kookeiland vormt het hart van de leefruimte en is uitgerust met op maat gemaakte houten kasten, een natuurstenen werkblad en diverse inbouwapparatuur met geïntegreerde afzuiging. Het bargedeelte nodigt uit tot ontspannen samenzijn en maakt de keuken tot een ideale plek om te koken én te genieten. Grote schuifdeuren geven toegang tot het zonnige hoekterras, waar u aan twee zijden geniet van een vrij uitzicht en een heerlijk buiten-binnengevoel creëert op warme dagen.

Het appartement beschikt over maar liefst vijf ruime slaapkamers, waarvan vier aan de rustige achterzijde liggen — twee daarvan met directe toegang tot een tweede terras. Beide badkamers zijn voorzien van een inloopdouche, wastafelmeubel, toilet en één met ligbad. Daarnaast is er een praktische inpandige berging/wasruimte aanwezig. Dankzij de gunstige hoekligging is de woning uitzonderlijk licht en biedt deze een aangenaam gevoel van ruimte en rust.

Tot slot heeft u de mogelijkheid om in de onderbouw een (of meerdere) parkeerplaats(en) te kopen:
- Vraagprijs parkeerplaats: € 62.500,- k.k. per pp
- Vraagprijs parkeerplaats box: € 82.500,- k.k. per pp

Bijzonderheden:
- Appartementsrecht 221 m² (NEN-2580 rapport aanwezig)
- Vijf slaapkamers
- Royale living van 120m²
- Twee inpandige bergingen
- Twee riante terrassen
- Vlakbij het Amsterdamse Bos
- A++ energielabel
- Vloerverwarming
- HR++ glas
- Parkeerplaats(en) te koop voor: € 62.500,- k.k. of een box voor: € 82.500,- k.k.
- Servicekosten VvE € 396,84 per maand
- Oplevering per direct

Deze informatie is door ons met de nodige zorgvuldigheid samengesteld. Onzerzijds wordt echter geen enkele aansprakelijkheid aanvaard voor enige onvolledigheid, onjuistheid of anderszins, dan wel de gevolgen daarvan. Alle opgegeven maten en oppervlakten zijn indicatief. Koper heeft zijn eigen onderzoek plicht naar alle zaken die voor hem of haar van belang zijn. Met betrekking tot deze woning is de makelaar adviseur van verkoper. Wij adviseren u een deskundige (NVM-)makelaar in te schakelen die u begeleidt bij het aankoopproces. Indien u specifieke wensen heeft omtrent de woning, adviseren wij u deze tijdig kenbaar te maken aan uw aankopend makelaar en hiernaar zelfstandig onderzoek te (laten) doen. Indien u geen deskundige vertegenwoordiger inschakelt, acht u zich volgens de wet deskundige genoeg om alle zaken die van belang zijn te kunnen overzien.

Kenmerken

Overdracht
Vraagprijs
€ 2.045.000 k.k.
Status
beschikbaar
Aanvaarding
direct
Bouw
Soort woonhuis
Tussenverdieping
Soort bouw
appartement
Bouwjaar
2022
Energieklasse
A_PP
Soort dak
plat dak
Slaapkamers
5
Badkamers
2
Oppervlakten en inhoud
Woonoppervlakte
224 m2
Overige inpandige ruimte
0 m2
Gebouwgebonden buitenruimte
33 m2
Externe bergruimte
7 m2
Inhoud
718 m3
faciliteiten
Mechanische ventilatie
Tv kabel
Schuifpui
Glasvezel kabel
Zonnepanelen
Aan bosrand
In woonwijk
Vrij uitzicht
Open ligging
Baerz & Co Property Brochure

Brochure

Informatie / bezichtigingsaanvraag

Video's

Video Texelstraat 110

Foto's

Plattegronden