Ons kantoor is lid van Baerz & Co Luxury Homes; een internationaal platform dat exclusieve woningmakelaars met elkaar verbindt. Neem contact op met ons secretariaat voor meer informatie over het landelijke aanbod, waarvan u hieronder een selectie kunt bekijken.

Herenhuis te koop in AMSTELVEEN

AMSTELVEEN Amstelzijde 40 - 1184 VA Nederland


Sander Bovenkerk profile image
Sander Bovenkerk
Real Estate Agent
+31 6 55 74 61 72
info@heerenmakelaars.nl

Heeren Makelaars
Stadionweg 75
1077 SE Amsterdam
NETHERLANDS
+31 204702255
www.heerenmakelaars.nl
info@heerenmakelaars.nl

Woonoppervlakte
160m2
Perceeloppervlakte
175m2
Slaapkamers
4

Omschrijving

Amstelzijde 40, 1184 VA Amstelveen

Aan de Amstelzijde, direct aan het water, ligt deze karaktervolle woning uit 1940. Met een woonoppervlak van ca. 160 m², verdeeld over drie woonlagen én een kelder, biedt het huis een unieke combinatie van historische charme en modern comfort. Grote raampartijen, een royale tuin met steiger en de mogelijkheid om de indeling naar eigen wens aan te passen maken dit tot een bijzonder woonhuis op een uitzonderlijke locatie.

Indeling
Via de entree aan de autoluwe straatzijde betreedt u de woning in de hal, voorzien van een garderoberuimte en separaat toilet met fontein. Vanuit de hal bereikt u de kamer aan de voorzijde van de woning, die dankzij de hoge ramen veel lichtinval heeft en ideaal kan dienen als kantoor of praktijkruimte. Deze ruimte beschikt tevens over een eigen (tweede) entree.

De royale woonkamer strekt zich uit over de volle breedte van de woning en kenmerkt zich door de fraaie houten, visgraatvloer en grote raampartijen met openslaande deuren naar de tuin. Hierdoor geniet de woonkamer van veel daglicht en een prachtig uitzicht over de achtergelegen tuin en de Amstel.

Aangrenzend bevindt zich de halfopen keuken, modern uitgevoerd in houttinten met een donker werkblad, vloerverwarming en voorzien van diverse inbouwapparatuur, waaronder een 5-pits gasfornuis, Quooker, combi-oven, vaatwasser en koel-vriescombinatie. Ook vanuit de keuken is er toegang tot de tuin.

De achtertuin is fraai aangelegd met veel groen en beschikt over een steiger aan de Amstel. Hier kunt u in alle rust genieten van de unieke ligging en het vrije uitzicht over het water. De tuin is tevens bereikbaar via een privé zij-ingang naast de woning.

Onder het huis bevindt zich een praktische kelder van ca. 11m² met een stahoogte van bijna 2 meter. Deze ruimte is ideaal als provisiekelder of extra bergruimte. Dankzij de vaste kasten en planken is de kelder efficiënt ingedeeld en biedt het volop opslagmogelijkheden.

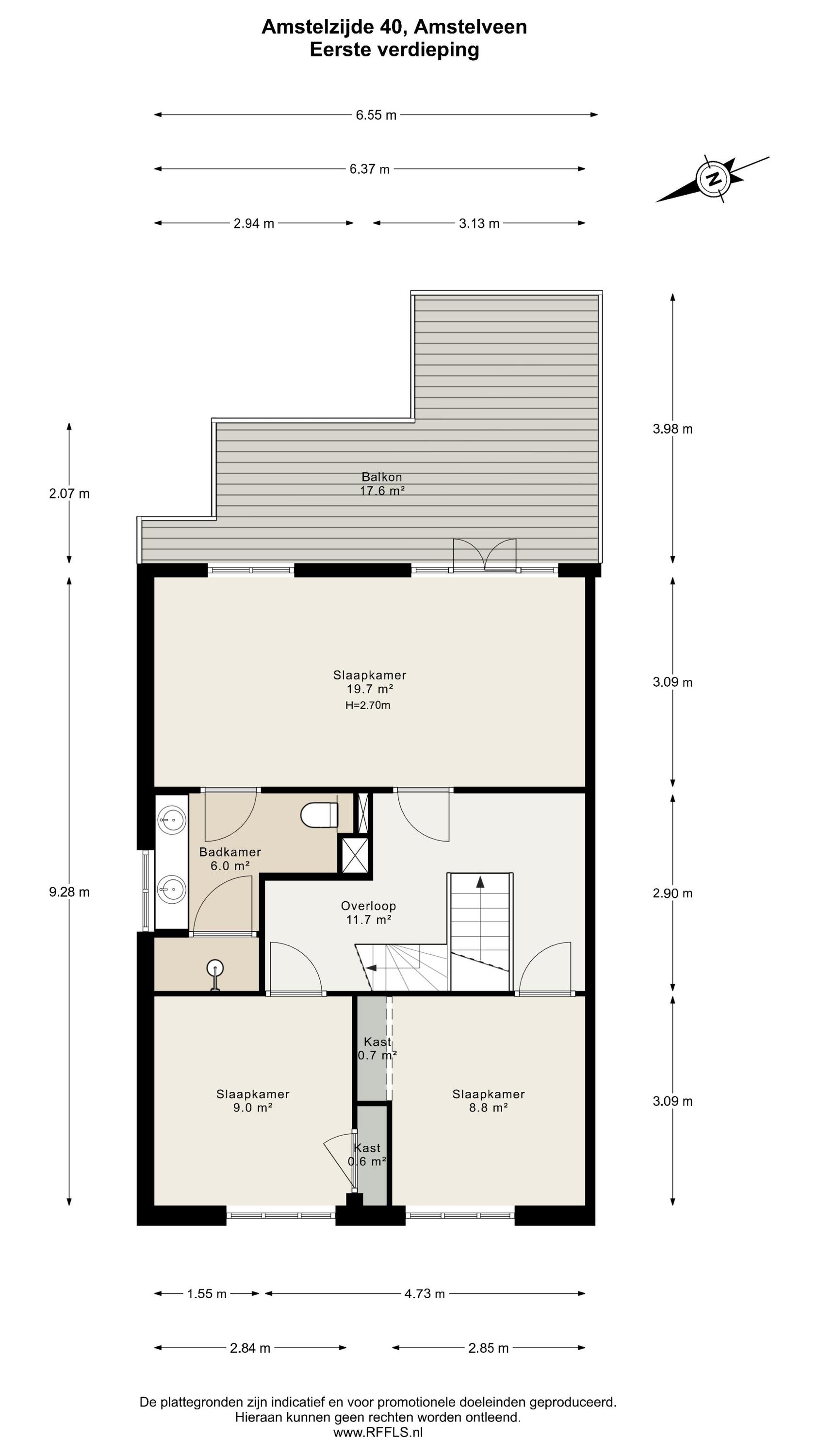
Eerste verdieping
De ruime overloop geeft toegang tot drie slaapkamers en de badkamer. De hoofdslaapkamer ligt aan de achterzijde en beschikt over dubbele openslaande deuren naar een groot balkon van ca. 17 m² met een adembenemend uitzicht over de Amstel. De kamer is royaal en voorzien van een fraaie houten vloer.

Aan de voorzijde bevinden zich twee goed bemeten slaapkamers, waarvan één momenteel in gebruik is als garderobe-/inloopkast. Dankzij de vaste kasten en praktische indeling zijn deze kamers veelzijdig te gebruiken, bijvoorbeeld als logeer- of werkkamer.

De badkamer is uitgerust met een inloopdouche, dubbele wastafel met houten meubel en een tweede toilet. Dankzij het raam is er natuurlijke lichtinval en ventilatie. Bovendien is de badkamer voorzien van vloerverwarming.

Tweede verdieping
De bovenste verdieping is een open ruimte met hoge nok (ruim 3 meter) en grote dakramen en dakkapellen die zorgen voor veel lichtinval. Hier bevindt zich tevens een moderne badkamer met inloopdouche, wastafelmeubel, vloerverwarming en een derde toilet. Deze verdieping is bovendien voorzien van airconditioning, wat extra comfort biedt in alle seizoenen. De combinatie van het authentieke balkenplafond en de strakke afwerking geeft deze ruimte een bijzondere uitstraling. Indien gewenst kan de verdieping relatief eenvoudig worden opgedeeld in twee aparte slaapkamers.

Locatie en omgeving
Wonen aan de Amstelzijde betekent wonen op een van de meest karakteristieke en geliefde plekken langs de Amstel. Deze bijzondere straat, aangewezen als beschermd dorpsgezicht, vormt een harmonisch geheel van historische panden en monumentale gebouwen. De rijke historie is zichtbaar in de gevels, panden en bijzondere details, zoals de monumentale weegbrug. De straat kent nauwelijks verkeer en is uitsluitend vanuit één richting bereikbaar.

De Amstelzijde vormt samen met Ouderkerk aan de Amstel een charmant en dorps geheel. Hier vindt u sfeervolle restaurants en cafés, waaronder culinaire hotspots als Restaurant Paardenburg, Ron Gastrobar, Restaurant SAAM en Loetje, maar ook alle dagelijkse voorzieningen zoals scholen, winkels en sportfaciliteiten. Bovendien liggen recreatiemogelijkheden letterlijk om de hoek: de Amstel, tennisparken, maneges en uitgestrekte wandel- en fietsroutes zorgen voor volop ontspanning en natuur.

Wonen aan de Amstelzijde is genieten van historie, levendigheid en natuur, allemaal op een steenworp afstand van de grote stad.

Bereikbaarheid
De bereikbaarheid van de woning is uitstekend. Met de fiets bent u in circa 20 minuten in het centrum van Amsterdam via de schilderachtige Amstelroute. De Zuidas en Schiphol liggen op korte afstand en zijn zowel met de auto als met het openbaar vervoer eenvoudig bereikbaar. Een snelle busverbinding richting Amsterdam Arena, Schiphol en Haarlem bevindt zich in de directe omgeving. Ook de nabijgelegen uitvalswegen (A2, A9 en A10) zorgen voor een optimale aansluiting met de rest van de Randstad.

Daarnaast is het parkeren in de straat goed geregeld. Bewoners kunnen een parkeervergunning aanvragen en hebben daarmee toegang tot parkeerplaatsen op loopafstand van de woning. Hierdoor hoeven zij zich geen zorgen te maken over de drukte door bezoekers van nabijgelegen horecagelegenheden.

Bijzonderheden
- Woonoppervlak van ca. 160 m² (gemeten conform NEN2580 meetinstructie);
- Mogelijkheid tot het creëren van vijf slaapkamers;
- Unieke locatie met vrij uitzicht over de Amstel;
- Bouwjaar 1940;
- Direct aan het water met steiger (huur van de provincie);
- Laatste strook tuin aan de Amstel van de provincie;
- C.V. ketel is in 2025 vernieuwd;
- Zonnepanelen;
- Aan autoluwe straat;
- Parkeren op loopafstand alleen voor bewoners met parkeervergunning;
- Beschermd dorpsgezicht;
- Gelegen op eigen grond;
- Project notaris : Hamans Blocks
- As is, where is clausule, niet-zelfbewoningsclausule en ouderdomsclausule.
- Nabij het dorp Ouderkerk aan de Amstel;
- Oplevering in overleg.

Deze informatie is door ons met de nodige zorgvuldigheid samengesteld. Onzerzijds wordt echter geen enkele aansprakelijkheid aanvaard voor enige onvolledigheid, onjuistheid of anderszins, dan wel de gevolgen daarvan. Alle opgegeven maten en oppervlakten zijn indicatief. Koper heeft zijn eigen onderzoek plicht naar alle zaken die voor hem of haar van belang zijn. Met betrekking tot deze woning is de makelaar adviseur van verkoper. Wij adviseren u een deskundige (NVM-)makelaar in te schakelen die u begeleidt bij het aankoopproces. Indien u specifieke wensen heeft omtrent de woning, adviseren wij u deze tijdig kenbaar te maken aan uw aankopend makelaar en hiernaar zelfstandig onderzoek te (laten) doen. Indien u geen deskundige vertegenwoordiger inschakelt, acht u zich volgens de wet deskundige genoeg om alle zaken die van belang zijn te kunnen overzien. Van toepassing zijn de NVM voorwaarden.

Kenmerken

Overdracht
Vraagprijs
€ 1.500.000 k.k.
Status
verkocht onder voorbehoud
Aanvaarding
in overleg
Bouw
Soort woonhuis
Herenhuis
Soort bouw
vrijstaande woning
Bouwjaar
1940
Energieklasse
D
Soort dak
zadeldak
Slaapkamers
4
Badkamers
2
Oppervlakten en inhoud
Woonoppervlakte
160 m2
Overige inpandige ruimte
11 m2
Gebouwgebonden buitenruimte
26 m2
Inhoud
630 m3
Perceeloppervlakte
175 m2
faciliteiten
Aan water
Aan rustige weg
Vrij uitzicht
Aan vaarwater
Baerz & Co Property Brochure

Brochure

Informatie / bezichtigingsaanvraag

Video's

Video Amstelzijde 40

Foto's

Plattegronden