Baerz & Co is een landelijk samenwerkingsverband van zorgvuldig geselecteerde boutique luxury makelaars. Samen vormen wij één netwerk, met één gedeeld aanbod. De woningen die u op onze website ziet, zijn afkomstig van alle aangesloten kantoren binnen Baerz & Co. Daardoor is niet ieder object rechtstreeks door ons kantoor in verkoop, maar door een gespecialiseerde collega binnen ons netwerk. Heeft u een woning gevonden die u aanspreekt en wilt u meer informatie? Dan brengen wij u graag persoonlijk in contact met de betreffende verkoopmakelaar, zodat u direct en zorgvuldig wordt begeleid.

'S-HERTOGENBOSCH
Sint Janskerkhof 19 - 5211 LA
Nederland

Niels Eering profile image
Niels Eering
Real Estate Agent
€825.000 k.k.
Woonoppervlakte
125m2
Perceeloppervlakte
N/A
Slaapkamers
3

Omschrijving

Wonen op een van de meest bijzondere plekken van ’s-Hertogenbosch

Aan het idyllische Sint Janskerkhof, pal naast de Sint-Janskathedraal, ligt deze ruime en karaktervolle bovenwoning van ca. 125 m² met dakterras. Een unieke combinatie van rust, historie en stadsleven, midden in de binnenstad maar toch verrassend stil.

Monumentale bomen, kinderkopjes in de straat en vrijwel alleen bestemmingsverkeer zorgen voor een serene sfeer, terwijl de Parade, de Markt, het centrum en het Bossche Broek allemaal op loopafstand liggen.

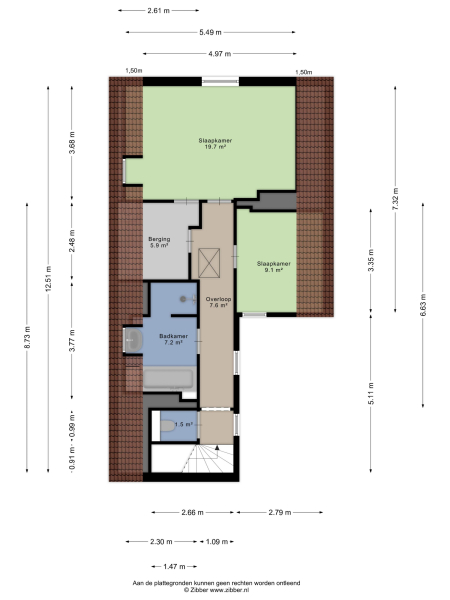
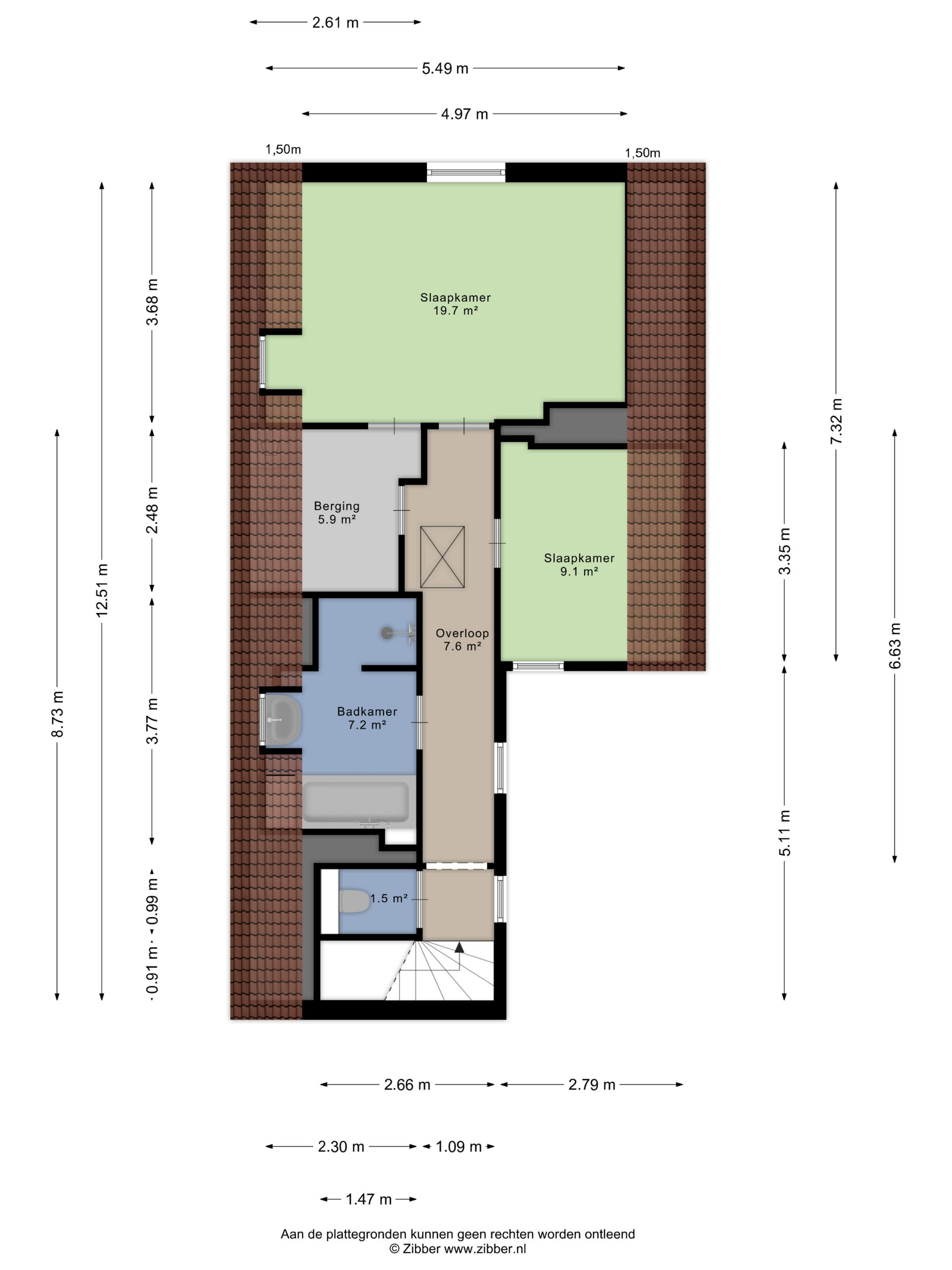
Indeling
Begane grond
Eigen entree met exclusieve hal, voorzien van fraaie Winckelmans-tegels en ruimte voor garderobe én fiets.

Woonvloer
De woonkamer ligt op de hoek en heeft daardoor een mooi uitzicht op de Sint-Jan én het pleintje ernaast. De semi-open keuken is verbonden zonder dat je het gevoel hebt in de kamer te staan koken. Daarnaast bevindt zich op deze verdieping, naast het dakterras, ook een extra kamer, ideaal als werk- of logeerkamer.

Tweede verdieping
Twee slaapkamers, waarvan aan de hoofdslaapkamer een inloopkast ligt. De badkamer is in 2011 vernieuwd en voorzien van een ligbad, royale inloopdouche en wastafel – uiteraard met uitzicht op de Sint-Jan.
Ook het tweede toilet is hier apart van de badkamer.

Parkeren is mogelijk met vergunning of op een steenworp afstand in de parkeergarage Sint-Jan.

Een woning als deze komt zelden beschikbaar: royaal, sfeervol en gelegen op een heel bijzonder plekje.

Kenmerken

Overdracht
Vraagprijs
€ 825.000 k.k.
Status
beschikbaar
Aanvaarding
in overleg
Bouw
Soort woonhuis
Bovenwoning
Soort bouw
appartement
Bouwjaar
1957
Energieklasse
C
Soort dak
dwarskap
Slaapkamers
3
Badkamers
1
Oppervlakten en inhoud
Woonoppervlakte
125 m2
Overige inpandige ruimte
2 m2
Gebouwgebonden buitenruimte
7 m2
Inhoud
419 m3
faciliteiten
Dakraam
Aan rustige weg
In centrum
Vrij uitzicht
Beschutte ligging
Baerz & Co Property Brochure

Brochure

Plattegronden

11 Makelaars - Amsterdam Noord

Mt. Lincolnweg 36 - 617
1033SN Amsterdam

info@11makelaars.nl
+31 20 20 50 208

www.11makelaars.nl

Informatie / bezichtigingsaanvraag

Niels Eering profile image
Niels Eering
Real Estate Agent