Baerz & Co is een landelijk samenwerkingsverband van zorgvuldig geselecteerde boutique luxury makelaars. Samen vormen wij één netwerk, met één gedeeld aanbod. De woningen die u op onze website ziet, zijn afkomstig van alle aangesloten kantoren binnen Baerz & Co. Daardoor is niet ieder object rechtstreeks door ons kantoor in verkoop, maar door een gespecialiseerde collega binnen ons netwerk. Heeft u een woning gevonden die u aanspreekt en wilt u meer informatie? Dan brengen wij u graag persoonlijk in contact met de betreffende verkoopmakelaar, zodat u direct en zorgvuldig wordt begeleid.

'S-HERTOGENBOSCH
Brede Haven 38 - 5211 TM
Nederland

€1.000.000 k.k.
Woonoppervlakte
138m2
Perceeloppervlakte
53m2
Slaapkamers
2

Omschrijving

Wonen op één van de mooiste plekken van ’s-Hertogenbosch: de Brede Haven. Dit sfeervolle herenhuis combineert historisch wonen met modern comfort en biedt een uniek uitzicht over het water zowel aan de voor- als achterzijde van de woning.
Hier woon je rustig en karaktervol in het hart van de stad, met alle voorzieningen, horeca en het station op korte afstand.

Wonen aan het water
De Brede Haven staat bekend om haar prachtige gevelwand en bijzondere ligging. Vanaf de woonkamer aan de voorzijde kijk je uit over de haven en zie je de stad tot leven komen. Aan de achterzijde kijk je over de Dommel, waar bootjes en suppers voorbijglijden. Zo geniet je op ieder moment van de dag van een ander uitzicht én van zowel ochtend- als avondzon.

Indeling

Begane grond
Entree via de karakteristieke voordeur met bovenlicht. Vanuit de hal bereik je de keuken aan de voorzijde met een hoog raam en uitzicht over de haven. Achterin bevindt zich de eetkamer: een sfeervolle plek voor lange diners en gezellige avonden. Achter de eetkamer ligt een ruime berging.

Tussenverdieping / eerste niveau
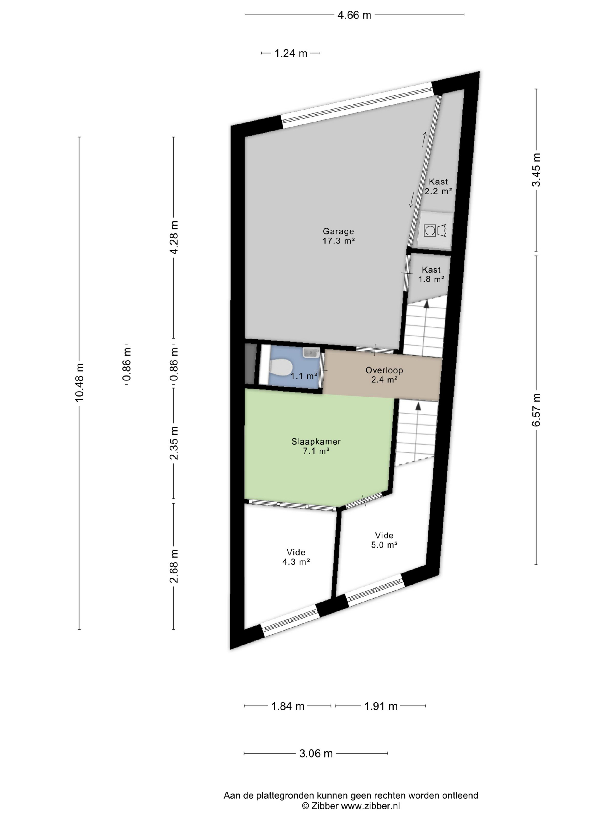
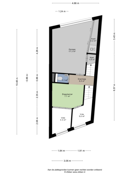
Hier bevindt zich een ideale werk- of studeerkamer met prachtig uitzicht over de Brede Haven. Daarnaast zijn hier een toilet en de toegang tot de inpandige garage.

Inpandige garage
Een unieke luxe voor de binnenstad. De garage is bereikbaar via de Buitenhaven en biedt ruimte voor een auto, fietsen en extra opslag. Ook is hier plek voor de wasmachine. Deze ruimte kan eventueel ook dienen als werkruimte of kantoor aan huis met eigen entree.

Tweede verdieping
De lichte woonkamer bevindt zich op deze verdieping en biedt een schitterend uitzicht over de haven. Aan de achterzijde ligt een tweede zitkamer met uitzicht over de Dommel en de avondzon – een heerlijke plek om te ontspannen.

Derde verdieping
Hier bevinden zich twee slaapkamers. De hoofdslaapkamer ligt aan de voorzijde onder de kap en heeft een charmante sfeer dankzij de hoge dakconstructie en dakkapel. De tweede slaapkamer is eveneens ruim en multifunctioneel.

De badkamer is in 2024 vernieuwd en beschikt over een inloopdouche, dubbele wastafel, toilet en designradiator.

Bijzonderheden

Wonen op een unieke locatie aan de Brede Haven

Uitzicht op water aan voor- én achterzijde

Inpandige garage in de binnenstad

Woonoppervlakte ca. 132 m²

Inhoud ca. 551 m³

Perceel ca. 53 m²

Bouwjaar herbouw: 1979

Energielabel C

Cv-ketel (2013)

Badkamer vernieuwd in 2024

Kortom
Een bijzonder herenhuis op een van de meest geliefde plekken van ’s-Hertogenbosch. Hier woon je aan het water, midden in de stad, met ruimte, comfort en een uitzicht dat nooit verveelt.

Kenmerken

Overdracht
Vraagprijs
€ 1.000.000 k.k.
Status
beschikbaar
Aanvaarding
in overleg
Bouw
Soort woonhuis
Grachtenpand
Soort bouw
tussenwoning
Bouwjaar
1979
Energieklasse
C
Soort dak
schilddak
Slaapkamers
2
Badkamers
1
Oppervlakten en inhoud
Woonoppervlakte
138 m2
Overige inpandige ruimte
23 m2
Inhoud
553 m3
Perceeloppervlakte
53 m2
faciliteiten
Mechanische ventilatie
Dakraam
Aan water
In centrum
Baerz & Co Property Brochure

Brochure

Plattegronden

11 Makelaars - Amsterdam

Mt. Lincolnweg 38 - 617
1033SN Amsterdam

info@11makelaars.nl
+31 20 20 50 208

www.11makelaars.nl

Informatie / bezichtigingsaanvraag

Niels Eering profile image
Niels Eering
Real Estate Agent