Baerz & Co is een landelijk samenwerkingsverband van zorgvuldig geselecteerde boutique luxury makelaars. Samen vormen wij één netwerk, met één gedeeld aanbod. De woningen die u op onze website ziet, zijn afkomstig van alle aangesloten kantoren binnen Baerz & Co. Daardoor is niet ieder object rechtstreeks door ons kantoor in verkoop, maar door een gespecialiseerde collega binnen ons netwerk. Heeft u een woning gevonden die u aanspreekt en wilt u meer informatie? Dan brengen wij u graag persoonlijk in contact met de betreffende verkoopmakelaar, zodat u direct en zorgvuldig wordt begeleid.

'S-GRAVENHAGE
Willemstraat 51 - 2514 HK
Nederland

€1.995.000 k.k.
Woonoppervlakte
277m2
Perceeloppervlakte
247m2
Slaapkamers
5

Omschrijving

Stijlvol en met oog voor detail gerenoveerd herenhuis in het hart van Den Haag

Gelegen aan een van de meest sfeervolle en karakteristieke straten in het centrum van Den Haag bevindt zich dit uitzonderlijk aantrekkelijke en royaal bemeten herenhuis. Op loopafstand van Noordeinde, de Paleistuin, de Hofvijver en een breed aanbod aan winkels, restaurants en culturele voorzieningen, combineert deze locatie levendigheid met rust en een statige woonomgeving.

Achter de charmante en indrukwekkende gevel schuilt een bijzonder verzorgd woonhuis waarin klassieke grandeur en hedendaags wooncomfort op fraaie wijze samenkomen. De woning is de afgelopen jaren met veel zorg, smaak en vakmanschap gerenoveerd en afgewerkt. Kenmerkende elementen zoals hoge plafonds, rijke wandafwerkingen, ornamenten en een elegante uitstraling worden harmonieus gecombineerd met moderne voorzieningen, hoogwaardige materialen en een eigentijdse afwerking.

De woning beschikt over circa 277 m² woonoppervlakte en heeft een verrassend ruime, lichte en veelzijdige indeling. Grote raampartijen, mooie zichtlijnen en zorgvuldig gekozen materialen zorgen voor een luxueuze maar warme sfeer. Daarnaast is de woning voorzien van een warmtepomp, vloerverwarming en een uitstekend energielabel A+, wat bijdraagt aan een comfortabel en energiezuinig binnenklimaat.

Bijzonder aantrekkelijk is de combinatie van representatieve leefruimtes, royale slaapkamers, meerdere badkamers, diverse buitenruimtes en een volledig zelfstandig ingedeelde bovenverdieping. Hierdoor is de woning uitermate geschikt voor grote gezinnen, dubbele bewoning, inwonende familieleden, een au pair, gastenverblijf of werken aan huis.

Indeling:

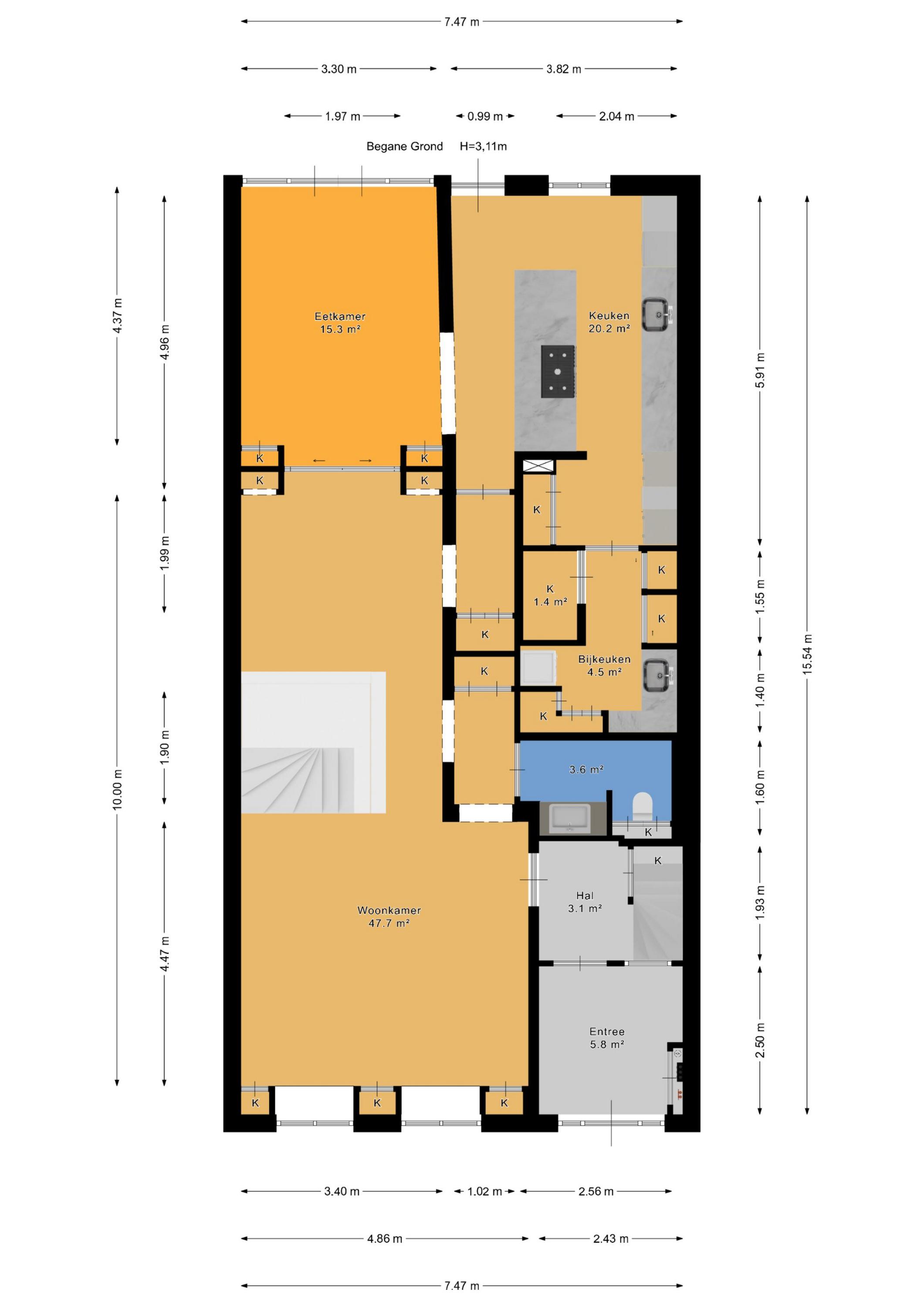
Begane grond:
De entreehal biedt toegang tot de royale woonverdieping. Aan de voorzijde bevindt zich de woonkamer met een spectaculaire trap naar de eerste verdieping en een ruime badkamer. Dit is een stijlvolle ruimte met een fraaie afwerking, hoge plafonds en een elegante, luxueuze uitstraling.

Aan de achterzijde bevindt zich de separate eetkamer, die dankzij grote openslaande deuren veel daglicht ontvangt en direct in verbinding staat met de tuin.

De luxe keuken vormt het hart van de woning en is voorzien van een groot kookeiland, hoogwaardige inbouwapparatuur en veel bergruimte. Aangrenzend bevindt zich een praktische bijkeuken.

Via de eetkamer is de fraai aangelegde diepe achtertuin bereikbaar, met een aantrekkelijke combinatie van terras, groen, een overdekte zitplek en een vrijstaande berging. Een heerlijke plek om in alle rust buiten te zitten, te dineren of gasten te ontvangen.

Eerste verdieping:
De eerste verdieping is ingericht als comfortabele slaapverdieping en beschikt over drie ruime slaapkamers, waaronder een bijzonder aantrekkelijke hoofdslaapkamer met directe toegang tot een balkon en een aangrenzende inloopkast.

Op deze verdieping bevinden zich tevens twee badkamers, beide modern en hoogwaardig afgewerkt. De hoofdbadkamer is royaal van opzet en voorzien van luxe sanitair en een strak design. Daarnaast is er nog een tweede balkon.

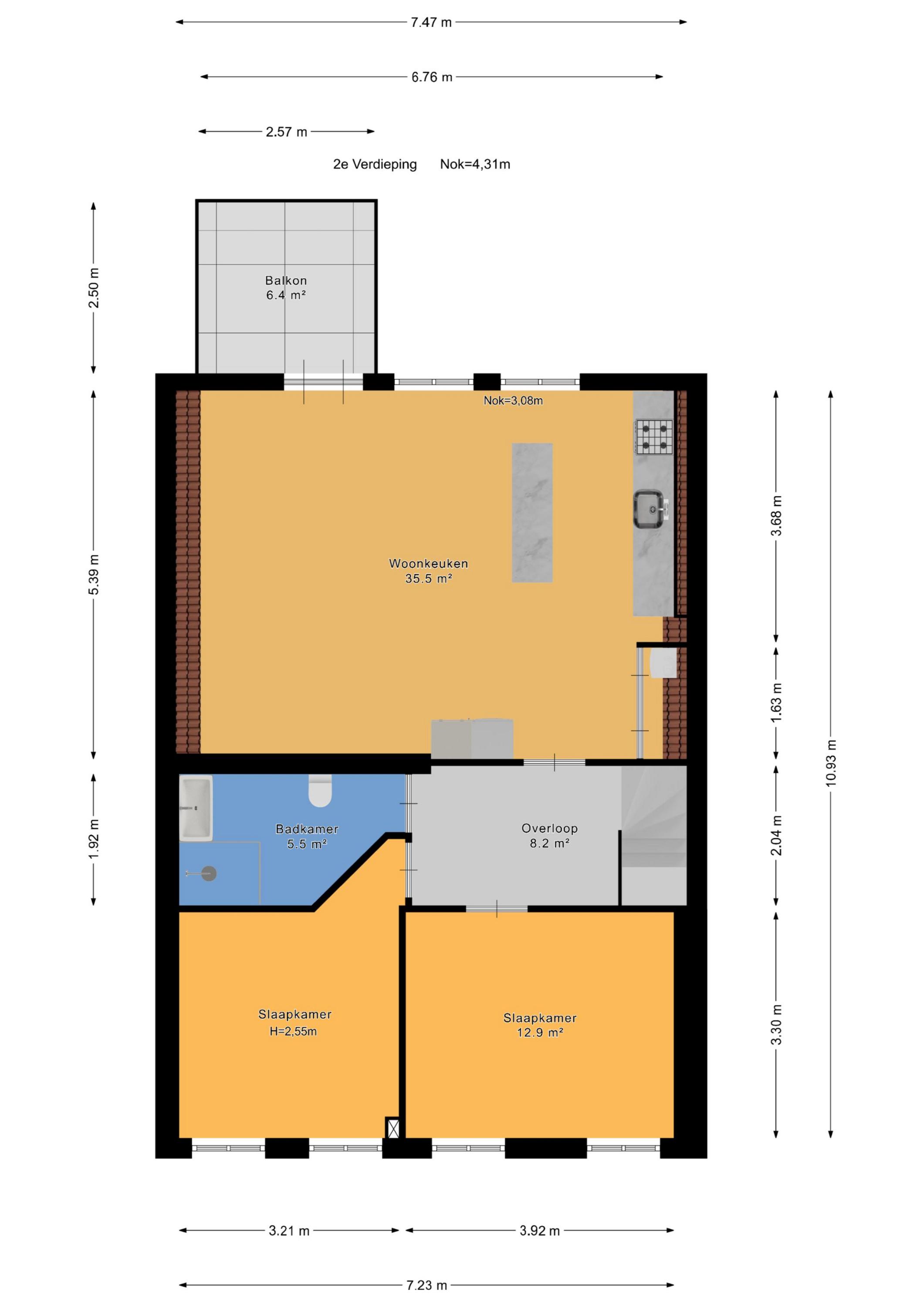
Tweede verdieping:
De tweede verdieping is ingericht als een volledig zelfstandig appartement en bereikbaar via een separate trap. Deze verdieping beschikt over een ruime woonkeuken, twee slaapkamers, een badkamer, een centrale overloop en een eigen balkon.

De zichtbare kapconstructie en prettige lichtinval geven deze verdieping extra sfeer en karakter. Deze etage is uitermate geschikt als gastenverblijf, au pair-ruimte, woonruimte voor familieleden of als zelfstandige werk- en verblijfsruimte binnen de woning.

Sfeer en afwerking:
Wat deze woning bijzonder maakt, is de hoge kwaliteit van afwerking. Door de gehele woning is een stijlvolle en consistente ontwerpstijl doorgevoerd, met onder andere visgraatvloeren, rijke wandpanelen, maatwerk kasten, luxe sanitair en een hoogwaardige keuken. De combinatie van klassieke details en modern design zorgt voor een exclusieve maar warme woonbeleving.

Bijzonderheden:
-Eigen grond
-Energielabel A+
-Woonoppervlakte circa 277 m²
-Hoogwaardig gerenoveerd en stijlvol afgewerkt
-Voorzien van warmtepomp en vloerverwarming
-Diepe achtertuin met overdekt terras en berging
-Achterom aanwezig
-Vijf slaapkamers verdeeld over de verdiepingen
-Vier badkamers
-Tweede verdieping ingericht als zelfstandig appartement met separate toegang
-Uitstekende ligging in het centrum van Den Haag
-Oplevering in overleg (indicatie: augustus/september 2026)

Stylishly and meticulously renovated townhouse in the heart of The Hague

Situated on one of the most atmospheric and characterful streets in the centre of The Hague, this exceptionally attractive and generously proportioned townhouse is now available. Located within walking distance of Noordeinde, the Palace Garden, the Hofvijver and a wide range of shops, restaurants and cultural venues, this is a vibrant yet quiet and distinguished residential setting.

Behind the charming and impressive façade lies an exceptionally well-presented home in which classical grandeur and contemporary living comfort come together beautifully. The property has been renovated and finished over recent years with great care, taste and craftsmanship. Features such as high ceilings, rich wall finishes, ornamental details and an elegant appearance are harmoniously combined with modern amenities, high-quality materials and a contemporary finish.

The house offers approximately 277 sq m of living space and features a surprisingly spacious, bright and versatile layout. Large windows, attractive sightlines and carefully selected materials create a luxurious yet warm atmosphere throughout. In addition, the property is equipped with a heat pump, underfloor heating and an excellent energy label A+, contributing to a comfortable and energy-efficient indoor climate.

Particularly appealing is the combination of representative living areas, generous bedrooms, multiple bathrooms, several outdoor spaces and a fully self-contained top floor. As a result, this home is ideally suited to large families, dual occupancy, live-in family members, an au pair, guest accommodation or working from home.

Layout:

Ground floor:
The entrance hall provides access to the generous main living floor. At the front is the living room, featuring a spectacular staircase leading to the first floor, and a spacious bathroom. This is a stylish space with a beautiful finish, high ceilings and an elegant, luxurious feel.

At the rear is the separate dining room, which enjoys abundant natural light and connects directly to the garden through large French doors.

The luxurious kitchen truly forms the heart of the home and is fitted with a large island, high-end built-in appliances and ample storage space. Adjacent is a practical utility room.

From the dining room you access the beautifully landscaped deep rear garden, offering an attractive combination of terrace space, greenery, a covered seating area and a detached storage shed. A wonderful place to sit outside in peace, dine or entertain guests.

First floor:
The first floor is arranged as a comfortable bedroom level and comprises three spacious bedrooms, including a particularly attractive principal bedroom with direct access to a balcony and an adjoining walk-in wardrobe.

This floor also features two bathrooms, both modern and finished to a high standard. The main bathroom is generously sized and fitted with luxury sanitary ware and a sleek, stylish design. A second balcony is also located on this floor.

Second floor:
The second floor is arranged as a fully self-contained apartment, accessible via a separate staircase. It includes a spacious kitchen/living area, two bedrooms, a bathroom, a central landing and a private balcony.

The exposed roof structure and pleasant natural light give this level additional atmosphere and character. This floor is ideally suited for use as guest accommodation, an au pair suite, living space for family members or an independent work and guest area within the home.

Atmosphere and finish:
What makes this property especially appealing is the quality of its finish. A stylish and consistent design language has been applied throughout the house, including herringbone floors, rich wall panelling, bespoke cabinetry, luxurious sanitary fittings and a high-quality kitchen. The combination of classical details and contemporary design creates an exclusive yet warm living experience.

Particulars:
-Freehold property
-Energy label A+
-Living area of approximately 277 m2
-High-quality renovation and stylish finish
-Equipped with a heat pump and underfloor heating
-Deep rear garden with covered terrace and storage shed
-Five bedrooms spread over the upper floors
-Four bathrooms
-Second floor arranged as a self-contained apartment with separate access
-Excellent location in the centre of The Hague
-Available from August/September 2026

Kenmerken

Zonnepanelen
Air conditioning
Overdracht
Vraagprijs
€ 1.995.000 k.k.
Status
beschikbaar
Aanvaarding
in overleg
Bouw
Soort woonhuis
Herenhuis
Soort bouw
tussenwoning
Bouwjaar
1903
Energieklasse
A+
Slaapkamers
5
Badkamers
3
Oppervlakten en inhoud
Woonoppervlakte
277 m2
Overige inpandige ruimte
0 m2
Gebouwgebonden buitenruimte
18 m2
Externe bergruimte
7 m2
Inhoud
1062 m3
Perceeloppervlakte
247 m2
faciliteiten
Tv kabel
Airconditioning
Zonnecollectoren
Zonnepanelen
Aan rustige weg
In woonwijk
Baerz & Co Property Brochure

Brochure

Video’s

Plattegronden

11 Makelaars - Amsterdam

Mt. Lincolnweg 38 - 617
1033SN Amsterdam

info@11makelaars.nl
+31 20 20 50 208

www.11makelaars.nl

Informatie / bezichtigingsaanvraag

Niels Eering profile image
Niels Eering
Real Estate Agent

Een luxe woning kopen in Den Haag

Den Haag biedt een stijlvolle gemeenschap, internationale verbindingen en gerenommeerde culturele instellingen. Bewoners genieten van premium dienstverlening, elegante omgevingen en directe toegang tot internationale voorzieningen, alles in een discrete en veilige stedelijke context.